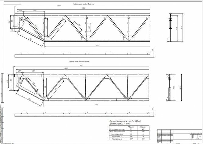
Для студентов МГТУ им. Н.Э.Баумана по предмету Проектирование сварных соединений (МТ-7)Расчет и проектирование двух вариантов изготовления сварных пространственных узлов главной и горизонтальной фермы мостового кранаРасчет и проектирование двух вариантов изготовления сварных пространственных узлов главной и горизонтальной фермы мостового крана
4,90546592
2021-04-212024-09-03СтудИзба
Расчет и проектирование двух вариантов изготовления сварных пространственных узлов главной и горизонтальной фермы мостового крана
-41%
Описание
Характеристики курсовой работы
Учебное заведение
Семестр
Просмотров
36
Размер
894,36 Kb
Список файлов
Расчет и проектирование двух вариантов изготовления сварных пространственных узлов главной и горизонтальной фермы мостового крана
Capture.PNG
Лист 1.pdf
Лист 2.pdf
Лист 3.pdf
Лист 4.pdf

Друзья, спасибо за доверие! Если вам понравилась работа – поставьте 5⭐ и напишите отзыв. Это поможет другим студентам, а мне даст силы делать ещё больше качественных материалов для вас 🔥