Для студентов ПГУПС по предмету Проектирование металлических мостовПроектирование металлического мостаПроектирование металлического моста
2024-10-042024-10-04СтудИзба
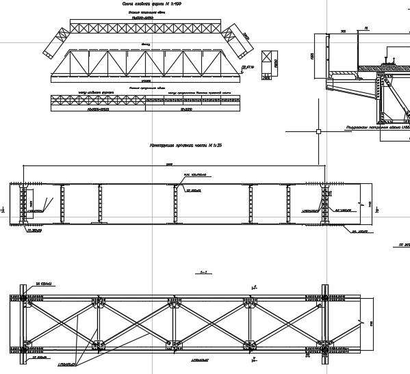
Курсовая работа: Проектирование металлического моста вариант 4
Описание
Характеристики курсовой работы
Учебное заведение
Вариант
Программы
Просмотров
5
Качество
Идеальное компьютерное
Размер
1,58 Mb
Список файлов
пз.docx
узлы.dwg
балка.dwg
варианты.dwg

ПГУПС

















