Для студентов МГТУ им. Н.Э.Баумана по предмету Подъёмно-транспортные машины (ПТМ)Курсовая работаКурсовая работа
5,0053
2020-12-242024-06-26СтудИзба
Курсовая работа
Описание
- Полный комплект: Исходник всех листов, сами листы в формате pdf и РПЗ. Без моделей.
- Защищен на хор, при этом сама работа преподавателю понравилась
- Оглавление
Введение. .................................................................................................................. 4
1. Расчет механизма подъема ................................................................................. 5
1.1.Выбор электродвигателя .................................................................................. 5
1.2. Выбор каната .................................................................................................... 6
1.3.Расчет канатного барабана ............................................................................... 6
1.4.Расчет прочности барабана .............................................................................. 6
1.5.Выбр редуктора ................................................................................................. 7
1.6. Проверка выбранного электродвигателя ....................................................... 8
1.7. Выбор тормоза .................................................................................................. 9
1.8. Выбор муфты, соединяющей валы электродвигателя и редуктора (быстроходного) ...................................................................................................... 9
1.9. Расчет блоков .................................................................................................. 10
1.10. Выбор крюковой подвески .......................................................................... 11
2. Расчет металлоконструкции ............................................................................. 12
2.1 Исходные данные ............................................................................................ 12
2.2. Выбор основных размеров. ........................................................................... 13
2.3. Определение веса стрелы. ............................................................................. 14
2.4. Проверка статического прогиба. .................................................................. 14
3.Выбор подшипников опор крана ...................................................................... 16
3.1. Нагрузка на опорные узлы ............................................................................ 16
3.2. Расчет подшипника ........................................................................................ 17
3.3. Проверка подшипников опор крана по статической грузоподъемности . 18
4.Расчёт болтового соединения крепления крана к стене. ................................ 19
4.1.Расчет соединения. .......................................................................................... 19
Список литературы ...............................................................................................21
Характеристики курсовой работы
Учебное заведение
Семестр
Просмотров
212
Размер
3,13 Mb
Список файлов
Курсовая работа по ПТМ_Неровнов Д.А
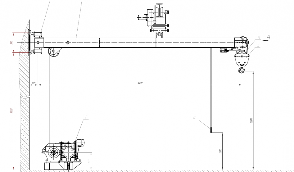
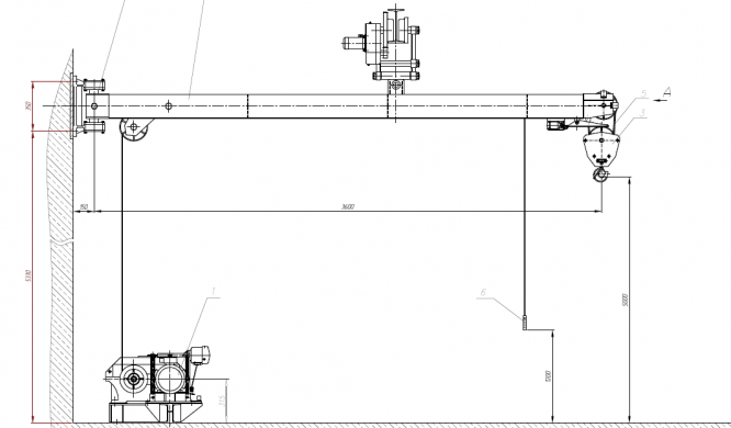
1 Лист (Общий вид крана).pdf
2 Лист (Механизм подъема).pdf
3 Лист (Подвеска крюковая).pdf
3.1 Лист (Опорный узел).pdf
Исходники (Все листы).dwg
РПЗ.docx
РПЗ.pdf
Спецификация (к 1ому листу).pdf
Комментарии
Нет комментариев
Стань первым, кто что-нибудь напишет!
МГТУ им. Н.Э.Баумана
















