Для студентов МГТУ им. Н.Э.Баумана по предмету Подъёмно-транспортные машины (ПТМ)ПТМ-30-06 - Кран велосипедныйПТМ-30-06 - Кран велосипедный
5,0053
2024-09-19СтудИзба

Курсовая работа 30: ПТМ-30-06 - Кран велосипедный вариант 6

-50%

Описание

ПТМ-30-06 - Кран велосипедный

Содержание

  • ВВЕДЕНИЕ
  • 1 ОПИСАНИЕ УСТРОЙСТВА И РАБОТЫ ВЕЛОСИПЕДНОГО КРАНА
  • 2 РАСЧЕТ МЕХАНИЗМА ПОДЪЕМА ГРУЗА
  • 2.1 Расчет барабана
  • 2.2 Расчёт крепления каната к барабану
  • 2.3 Расчет и выбор электродвигателя
  • - Расчёт дискового тормоза
  • - Необходимый момент тормоза
  • - Расчёт пружины
  • - Расчёт электромагнита
  • 3 РАСЧЕТ МЕХАНИЗМА ПЕРЕДВИЖЕНИЯ
  • 3.1 Расчет нагрузки на колеса и выбор ходового колеса
  • 3.2 Расчет и выбор электродвигателя
  • 3.3 Максимально допустимое ускорение крана при пуске
  • 3.4 Расчет редуктора
  • 4. РАСЧЕТ МЕТАЛЛОКОНСТРУКЦИИ
  • 2.1 Выбор основных размеров
  • 2.3 Проверка прочности
  • - Напряжение изгиба в вертикальной плоскости
  • 5 Расчет крюковой подвески
  • 5.1 Подшипники блока
  • 5.2 Упорные подшипники крюка
  • 5.3 Ось блока и траверса
  • - Шпоночное соединение электродвигателя с редуктором
  • - Расчёт шлицевого соединения вала редуктора с тормозом
  • - Расчет подшипников барабана
  • - Расчёт шлицевого соединения вала редуктора с колесом
  • - Расчет подшипников колеса
  • СПИСОК ИСПОЛЬЗУЕМЫХ ИСТОЧНИКОВ

ВВЕДЕНИЕ

Грузоподъемные машины — высокоэффективное средство комплексной механизации и автоматизации подъемно—транспортных, погрузочно-разгрузочных и складских работ. Применение таких машин уменьшает объем использования тяжелых ручных операций и способствует резкому повышению производительности труда. Автоматизация ПТМ позволяет включить ее в поточную линию, а универсальность использования — сделать составным элементом гибкого автоматизированного производства.
Курсовое проектирование ПТМ, основываются на практике ранее выполнявшихся графических и расчетных работ по черчению, теории механизмов и машин, деталям машин, призвано выработать навыки проектирования машины в целом.
Целью данного курсового проекта является конструирование велосипедного крана. Краны находят широкое применение как средства механизации машиностроительного и других производств.
Вместе с этим курсовое проектирование позволяет осветить ряд вопросов, которые будут изучаться в будущих спец дисциплинах. Характер работы в процессе курсового проектирования позволяет решить задачи научно-исследовательской работы.

1 ОПИСАНИЕ УСТРОЙСТВА И РАБОТЫ ВЕЛОСИПЕДНОГО КРАНА

Простейшие краны, как и большинство грузоподъёмных машин, до конца XVIII века изготовлялись из деревянных деталей и имели ручной привод. Само название «кран » происходит от нем. Kranich — журавль. К началу XIX века ответственные, быстро изнашивающиеся детали (оси, колёса, захваты) стали делать металлическими. В 20-х гг. XIX века появились первые цельнометаллические подъёмные краны, сначала с ручным, а в 30-е гг. — с механическим приводом. Первый паровой стационарный кран, был запатентован в 1827 г.
Велосипедный кран — машина для подъёма и горизонтального перемещения грузов, передвигающаяся по однорельсовому наземному пути. На 2- или 4-осной тележке велосипедного крана установлена колонна, несущая вращающуюся укосину. Устойчивость крана в поперечном направлении обеспечивают реборды ходовых колёс и верхние ролики на вертикальных осях, катящиеся между двумя опорными потолочными балками. Кран при укосине, повёрнутой в направлении движения, занимает мало места; обслуживает по ширине площадь, равную вылету крана по обе стороны пути. Грузоподъёмность до 10 т, вылет стрелы 3—7 м, привод электрический. Велосипедные краны предназначаются для механизации грузоподъёмных и погрузочно-разгрузочных работ в производственных цехах и закрытых складах.
Кран представляет собой грузоподъемную машину циклического действия. Цикл работы крана состоит из трех этапов:
-захват груза;
-рабочий ход (перемещение груза, разгрузка);
-холостой ход (возврат грузоподъемного механизма в исходное положение).
Конструкция крана включает в себя:
-несущий элемент;
-грузоподъемное устройство, состоящее из гибкого подъемного органа (стального каната или цепи) и грузовой лебедки. Для обеспечения безопасности в работе грузоподъемный механизм оснащается различными ограничителями (грузоподъемности, грузового момента, хода грузозахватного органа);
-грузозахватный орган, который может быть неавтоматического действия (крюк) или автоматического действия (электромагнит, пневматический присос и др.).
Самыми мощными в мире являются 2 крана, установленные на полупогруженном корабле «Микопери-7000 » (190 м в длину, 89 м в ширину). Краны принадлежат компании «Оффичине мекканиче реджане » (Италия), спроектированы американской фирмой «Херст энд Деррик » , построены итальянской компанией «Монфалконе » и введены в строй 15 декабря 1986 г. Каждый имеет грузоподъёмность 6895 т. Вместе они могут поднять 14 тыс. т. груза. В первые 6 месяцев работы один из них поднял рекордный груз в 5700 т.

Чертежи

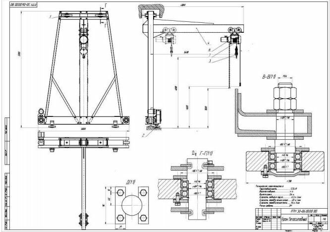
Лист 1 - Механизм подъема

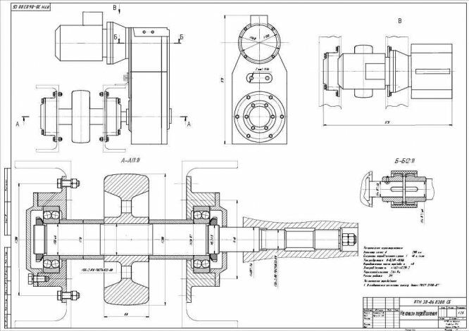
Лист 2 - Механизм передвижения

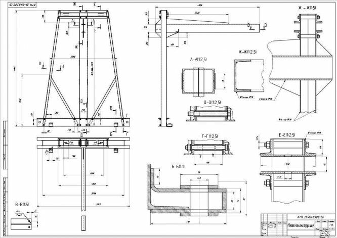
Лист 3 - Металлоконструкция

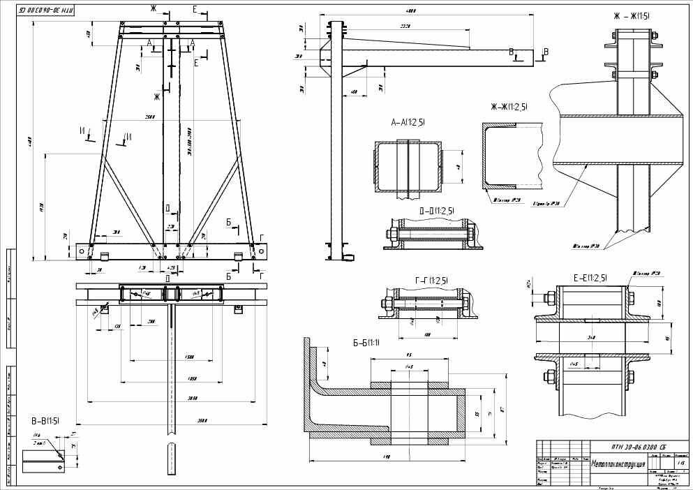
Лист 4 - Общий вид (Без спецификации)

Файлы условия, демо

Характеристики курсовой работы

Учебное заведение
Семестр
Номер задания
Вариант
Программы
Просмотров
609
Качество
Идеальное компьютерное
Размер
1,41 Mb

Список файлов

ПТМ-30-06
Металлоконструкция.cdw
Металлоконструкция.pdf
Механизм передвижения.cdw
Механизм передвижения.pdf
Механизм подъема.cdw
Механизм подъема.pdf
Общий вид.cdw
Общий вид.pdf
РПЗ.docx
Картинка-подпись
Если вам всё понравилось, поставьте оценку и напишите пару слов о работе - так вы поможете другим покупателям. В благодарность мы вернём вам 40 рублей на счёт.❤️

Комментарии

Нет комментариев
Стань первым, кто что-нибудь напишет!
Поделитесь ссылкой:
Цена: 5 000 2 500 руб.
Расширенная гарантия +3 недели гарантии, +10% цены
Рейтинг покупателей
5 из 5
Поделитесь ссылкой:
Сопутствующие материалы

Подобрали для Вас услуги

-26%
Вы можете использовать курсовую работу для примера, а также можете ссылаться на неё в своей работе. Авторство принадлежит автору работы, поэтому запрещено копировать текст из этой работы для любой публикации, в том числе в свою курсовую работу в учебном заведении, без правильно оформленной ссылки. Читайте как правильно публиковать ссылки в своей работе.
Свежие статьи
Популярно сейчас
Почему делать на заказ в разы дороже, чем купить готовую учебную работу на СтудИзбе? Наши учебные работы продаются каждый год, тогда как большинство заказов выполняются с нуля. Найдите подходящий учебный материал на СтудИзбе!
Ответы на популярные вопросы
Да! Наши авторы собирают и выкладывают те работы, которые сдаются в Вашем учебном заведении ежегодно и уже проверены преподавателями.
Да! У нас любой человек может выложить любую учебную работу и зарабатывать на её продажах! Но каждый учебный материал публикуется только после тщательной проверки администрацией.
Вернём деньги! А если быть более точными, то автору даётся немного времени на исправление, а если не исправит или выйдет время, то вернём деньги в полном объёме!
Да! На равне с готовыми студенческими работами у нас продаются услуги. Цены на услуги видны сразу, то есть Вам нужно только указать параметры и сразу можно оплачивать.
Отзывы студентов
Ставлю 10/10
Все нравится, очень удобный сайт, помогает в учебе. Кроме этого, можно заработать самому, выставляя готовые учебные материалы на продажу здесь. Рейтинги и отзывы на преподавателей очень помогают сориентироваться в начале нового семестра. Спасибо за такую функцию. Ставлю максимальную оценку.
Лучшая платформа для успешной сдачи сессии
Познакомился со СтудИзбой благодаря своему другу, очень нравится интерфейс, количество доступных файлов, цена, в общем, все прекрасно. Даже сам продаю какие-то свои работы.
Студизба ван лав ❤
Очень офигенный сайт для студентов. Много полезных учебных материалов. Пользуюсь студизбой с октября 2021 года. Серьёзных нареканий нет. Хотелось бы, что бы ввели подписочную модель и сделали материалы дешевле 300 рублей в рамках подписки бесплатными.
Отличный сайт
Лично меня всё устраивает - и покупка, и продажа; и цены, и возможность предпросмотра куска файла, и обилие бесплатных файлов (в подборках по авторам, читай, ВУЗам и факультетам). Есть определённые баги, но всё решаемо, да и администраторы реагируют в течение суток.
Маленький отзыв о большом помощнике!
Студизба спасает в те моменты, когда сроки горят, а работ накопилось достаточно. Довольно удобный сайт с простой навигацией и огромным количеством материалов.
Студ. Изба как крупнейший сборник работ для студентов
Тут дофига бывает всего полезного. Печально, что бывают предметы по которым даже одного бесплатного решения нет, но это скорее вопрос к студентам. В остальном всё здорово.
Спасательный островок
Если уже не успеваешь разобраться или застрял на каком-то задание поможет тебе быстро и недорого решить твою проблему.
Всё и так отлично
Всё очень удобно. Особенно круто, что есть система бонусов и можно выводить остатки денег. Очень много качественных бесплатных файлов.
Отзыв о системе "Студизба"
Отличная платформа для распространения работ, востребованных студентами. Хорошо налаженная и качественная работа сайта, огромная база заданий и аудитория.
Отличный помощник
Отличный сайт с кучей полезных файлов, позволяющий найти много методичек / учебников / отзывов о вузах и преподователях.
Отлично помогает студентам в любой момент для решения трудных и незамедлительных задач
Хотелось бы больше конкретной информации о преподавателях. А так в принципе хороший сайт, всегда им пользуюсь и ни разу не было желания прекратить. Хороший сайт для помощи студентам, удобный и приятный интерфейс. Из недостатков можно выделить только отсутствия небольшого количества файлов.
Спасибо за шикарный сайт
Великолепный сайт на котором студент за не большие деньги может найти помощь с дз, проектами курсовыми, лабораторными, а также узнать отзывы на преподавателей и бесплатно скачать пособия.
Популярные преподаватели
Добавляйте материалы
и зарабатывайте!
Продажи идут автоматически
6948
Авторов
на СтудИзбе
265
Средний доход
с одного платного файла
Обучение Подробнее
{user_main_secret_data}