Для студентов МГТУ им. Н.Э.Баумана по предмету Основы конструирования приборов (ОКП)Исполнительный привод - Расчет вал и опор + Детальная проработкаИсполнительный привод - Расчет вал и опор + Детальная проработка
5,0051
2023-12-262023-12-26СтудИзба
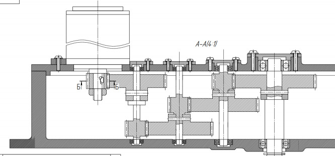
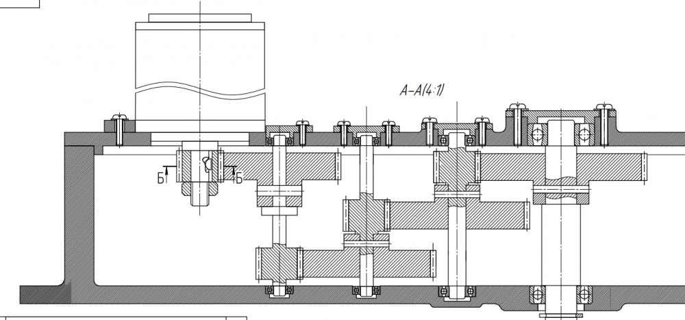
ДЗ 2: Исполнительный привод - Расчет вал и опор + Детальная проработка вариант 16
Описание
При покупке Вы можете получить подарок 20 руб.
Зачтено на максимальный балл!!!
Идеальное качество файлов, документов 💥 💥 💥
Не только копировать, а нужно понимать!
Характеристики домашнего задания
Учебное заведение
Номер задания
Вариант
Программы
Просмотров
22
Качество
Идеальное компьютерное
Размер
32,01 Mb
Список файлов
24.11.2023_детальная_проработка_21.pdf
1.11.2023 Расчет + валы и опоры (1).pdf

Ваше удовлетворение является нашим приоритетом. Вставьте 5 звезд и позитивные комментарии сразу дам Вам подарок. Благодарю за использование моей службы!!