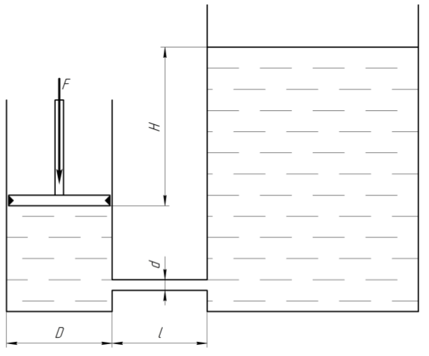
Для студентов по предмету Механика жидкости и газа (МЖГ или Гидравлика)Поршень диаметром D движется равномерно вниз в цилиндре, подавая жидкость в открытый резервуар с постоянным уровнем. Диаметр трубопровода d, длина l. Поршень диаметром D движется равномерно вниз в цилиндре, подавая жидкость в открытый резервуар с постоянным уровнем. Диаметр трубопровода d, длина l.
5,0051
2022-06-262022-06-26СтудИзба
Поршень диаметром D движется равномерно вниз в цилиндре, подавая жидкость в открытый резервуар с постоянным уровнем. Диаметр трубопровода d, длина l. Когда поршень находится ниже уровня жидкости в резервуаре на Н, потребная для его перемещения сила р
Описание
Поршень диаметром D движется равномерно вниз в цилиндре, подавая жидкость в открытый резервуар с постоянным уровнем. Диаметр трубопровода d, длина l. Когда поршень находится ниже уровня жидкости в резервуаре на Н, потребная для его перемещения сила равна F. Определить скорость поршня и расход жидкости в трубопроводе. Построить напорную и пьезометрическую линии. Коэффициент гидравлического трения трубы принять λ=0,03. Коэффициент сопротивления входа в трубу ξвх=0,5. Коэффициент сопротивления выхода в трубу ξвых=1,0.
Вариант | Жидкость | F, H | D, мм | d, мм | l, м | Н, м |
2 | Керосин | 27700 | 270 | 90 | 27 | 7,7 |
Характеристики решённой задачи
Номер задания
Вариант
Программы
Просмотров
7
Качество
Идеальное компьютерное
Размер
134,29 Kb
Список файлов
Задача.docx
