Для студентов МГТУ им. Н.Э.Баумана по предмету Конструирование оптико-электронных приборовЭлектромеханический привод с механизмом линейного перемещения.Электромеханический привод с механизмом линейного перемещения.
4,35553
2024-02-162024-02-16СтудИзба
Курсовая работа: Электромеханический привод с механизмом линейного перемещения. вариант 18
Описание
РПЗ курсового проекта объемом 67 страниц содержит: 25 рисунков и 4 таблицы. В оглавлении перечислены пункты расчетов курсового задания со ссылками на источники (15 штук).
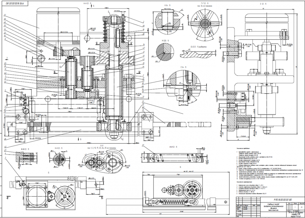
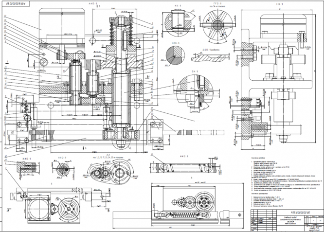
Так же представлены спецификации к сборкам, таблица составных частей в чертежу ОВ и 5 листов чертежей А1, которые включают:
Габаритный чертеж 1хА2
Чертеж общего вида 1хА1
Сборочные чертежи (всего устройства 1хА1 и отдельных частей 4хА3)
Структурная схема деления 1хА2
Кинематическая схема 1хА2
Чертежи деталей 3хА3 и 2хА4
Оглавление
1. Техническое задание. 3
2. Назначение устройства. 4
2.1 Описание работы выбранного аналога. 4
2.2 Описание схемы разрабатываемого привода. 5
3. Проектировочный расчет ЭМП.. 6
3.1 Выбор электродвигателя по мощности. 6
3.2 Кинематический расчет. 8
3.2.1 Проверка выбора двигателя по моменту. 8
3.2.2 Определение числа ступеней и разбиение передаточного отношения по ступеням.. 8
3.2.3 Определение числа зубьев колес редуктора. 9
3.3 Силовой расчет. 12
3.3.1 Расчет моментов в кинематических цепях ЭМП.. 12
3.3.2 Расчет зубчатых передач на прочность. 13
3.4 Расчет реечной передачи. 15
3.5 Геометрический расчет зубчатого колеса. 15
4. Проверочный расчет ЭМП.. 18
4.1 Проверка правильности выбора двигателя с учетом уточненных КПД в зацеплениях. 18
4.2 Проверочный расчет на контактную прочность. 21
4.3 Проверочный расчет при кратковременных перегрузках. 24
4.4 Расчет на быстродействие. 25
4.5 Точностной расчет ЭМП.. 25
4.5.1 Выбор степени точности. 26
4.5.2 Выбор вида сопряжений. 26
4.5.3 Определение кинематической погрешности вероятностным методом.. 27
4.5.4 Определение мертвого хода кинематической цепи. 30
4.5.5 Анализ результатов. 33
5. Расчет предохранительной муфты.. 34
5.1 Предварительный проектный расчет валов. 34
5.2 Определение геометрических параметров. 36
5.2.1 Проверка шпонки на смятие и срез. 37
5.2.2 Подбор подшипника скольжения. 38
5.3 Проверка параметров муфты на износостойкость и прочность. 41
5.4 Подбор и расчет пружины.. 42
6. Расчет люфтовыбирающего устройства. 44
7. Расчет валов и опор редуктора. 48
7.1 Расчет вала на прочность. 48
7.2 Расчет вала на статическую прочность. 51
7.3 Расчет вала на крутильную жесткость. 52
7.4 Расчет вала на изгибную жесткость. 52
7.5 Расчет опор и выбор подшипников. 54
8. Дополнительные расчеты.. 55
8.1 Проверочный расчет штифтового соединения. 55
8.2 Расчёт размерной цепи. 56
8.3 Расчет пресс-посадки. 58
9. Описание работы конструкции. 62
10. Структурная схема сборки. 65
11. Вывод о проделанной работе. 66
12. Список использованной литературы.. 67
Так же представлены спецификации к сборкам, таблица составных частей в чертежу ОВ и 5 листов чертежей А1, которые включают:
Габаритный чертеж 1хА2
Чертеж общего вида 1хА1
Сборочные чертежи (всего устройства 1хА1 и отдельных частей 4хА3)
Структурная схема деления 1хА2
Кинематическая схема 1хА2
Чертежи деталей 3хА3 и 2хА4
Оглавление
1. Техническое задание. 3
2. Назначение устройства. 4
2.1 Описание работы выбранного аналога. 4
2.2 Описание схемы разрабатываемого привода. 5
3. Проектировочный расчет ЭМП.. 6
3.1 Выбор электродвигателя по мощности. 6
3.2 Кинематический расчет. 8
3.2.1 Проверка выбора двигателя по моменту. 8
3.2.2 Определение числа ступеней и разбиение передаточного отношения по ступеням.. 8
3.2.3 Определение числа зубьев колес редуктора. 9
3.3 Силовой расчет. 12
3.3.1 Расчет моментов в кинематических цепях ЭМП.. 12
3.3.2 Расчет зубчатых передач на прочность. 13
3.4 Расчет реечной передачи. 15
3.5 Геометрический расчет зубчатого колеса. 15
4. Проверочный расчет ЭМП.. 18
4.1 Проверка правильности выбора двигателя с учетом уточненных КПД в зацеплениях. 18
4.2 Проверочный расчет на контактную прочность. 21
4.3 Проверочный расчет при кратковременных перегрузках. 24
4.4 Расчет на быстродействие. 25
4.5 Точностной расчет ЭМП.. 25
4.5.1 Выбор степени точности. 26
4.5.2 Выбор вида сопряжений. 26
4.5.3 Определение кинематической погрешности вероятностным методом.. 27
4.5.4 Определение мертвого хода кинематической цепи. 30
4.5.5 Анализ результатов. 33
5. Расчет предохранительной муфты.. 34
5.1 Предварительный проектный расчет валов. 34
5.2 Определение геометрических параметров. 36
5.2.1 Проверка шпонки на смятие и срез. 37
5.2.2 Подбор подшипника скольжения. 38
5.3 Проверка параметров муфты на износостойкость и прочность. 41
5.4 Подбор и расчет пружины.. 42
6. Расчет люфтовыбирающего устройства. 44
7. Расчет валов и опор редуктора. 48
7.1 Расчет вала на прочность. 48
7.2 Расчет вала на статическую прочность. 51
7.3 Расчет вала на крутильную жесткость. 52
7.4 Расчет вала на изгибную жесткость. 52
7.5 Расчет опор и выбор подшипников. 54
8. Дополнительные расчеты.. 55
8.1 Проверочный расчет штифтового соединения. 55
8.2 Расчёт размерной цепи. 56
8.3 Расчет пресс-посадки. 58
9. Описание работы конструкции. 62
10. Структурная схема сборки. 65
11. Вывод о проделанной работе. 66
12. Список использованной литературы.. 67





Характеристики курсовой работы
Учебное заведение
Семестр
Вариант
Программы
Просмотров
62
Качество
Идеальное компьютерное
Размер
3,91 Mb
Преподаватели
Список файлов
РЛ5.18.00.00.00 - Следящий привод возвратно-поступательного движения правильный.pdf
РЛ5.18.00.00.00 Е1 - Структурная схема деления.pdf
РЛ5.18.01.00.01 - Зубчатое колесо 1.pdf
РЛ5.18.01.02.00 - Вал 1 в сборе.pdf
РЛ5.18.01.02.01 - Вал 1.pdf
РЛ5.18.01.02.02 - Стакан 1.pdf
РЛ5.18.01.06.05 - Пружина сжатия расслабленная.pdf
РЛ5.18.02.00.00 - Рейка в сборе.pdf
РЛ5.18.02.00.04 - Замыкатель.pdf
РЛ5.18.03.00.00 - Двигатель в сборе.pdf
Муфта на А3.pdf
РЛ5.18.00.00.00 - Сборочный привода.pdf
Kinematicheskaya_skhema_RL5_18_00_00_00(1).pdf
Габаритный.pdf
Курсовая РПЗ.docx
Сборочный привода.pdf
Сборочный редуктора.pdf
Таблица составных частей ч1.pdf
Таблица составных частей ч2.pdf
РЛ5.18.00.00.00 Е1 - Структурная схема деления.pdf
Сборка двигателя.pdf
Сборочный вал 1.pdf
Сборочный муфты.pdf