Задача 4: Привод пневматический
Описание
Привод пневматический 00-000.06.04.04.00 ЧЕРТЕЖ
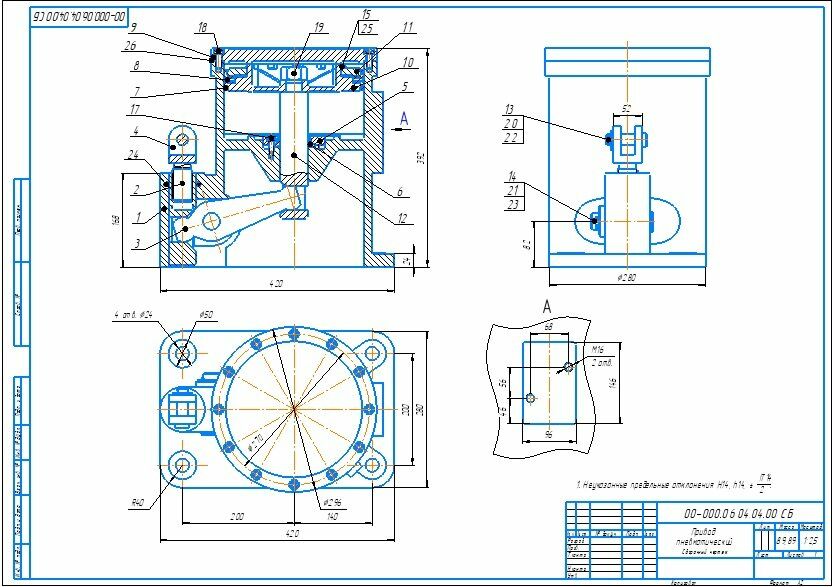
Привод предназнач
ен для поджатия деталей усилием до 5 т при сборочно-сварочных операциях.В центральное отверстие ф50 корпуса 1 вставляется шток 12 и уплотняется манжетой 6 при помощи крышки сальника 5 и винтов 17. Вилка 4 в сборе с осью 13, шайбой 20 и шплинтом 22 вворачивается до упора в отверстие М36 толкателя 2. После чего толкатель в сборе вставляется в боковое отверстие ⌀50 корпуса 1 и уплотняется промасленным войлочным кольцом 24. Рычаг 3 длинным концом вставляется в паз опушенного в нижнее положение штока 12, а коротким концом в паз толкателя 2 и закрепляется в корпусе 1 с помощью оси 14, шайбы 21 и шплинта 23.Поршень 10 в сборе с манжетами 7, кольцом 8, диском нажимным 11 и болтами 15 надевается на шток 12 и зажимается гайкой 19. Для предотвращения самоотвинчивания болты 15 и гайки 19 стопорятся проволокой 25. Крышка 9 к корпусу 1 крепится винтами 18. Гермитизация соединения осуществляется картонной прокладкой 26.
В качестве заглушек технологических отверстий М10x1,25-6H В корпусе 1 и крышке 9 используются винты 16, установленные на сурике.
Управление работой пневматического привода осуществляется с помощью распределительного устройства, закрепленного на приливе корпуса 1 к двум отверстиям М16. При подаче сжатого воздуха давлением 4 атм в полость под поршнем, последний вместе со штоком движется вверх. Рычаг 3 поворачивается вокруг оси 14, вследствии чего толкатель 2 перемещается вниз. Обратное движение толкателя 2 осуществляется путем подачи сжатого воздуха В полость под поршнем.
Привод пневматический 00-000.06.04.04.00 сб
Привод пневматический 00-000.06.04.04.00 спецификация
Привод пневматический 00-000.06.04.04.00 3d сборка
Привод пневматический 00-000.06.04.04.00 чертежи
Корпус 00-000.06.04.04.01
Толкатель 00-000.06.04.04.02
Рычаг 00-000.06.04.04.03
Вилка 00-000.06.04.04.04
Крышка 00-000.06.04.04.05
Манжета ф50 00-000.06.04.04.06
Манжета ф250 00-000.06.04.04.07
Кольцо 00-000.06.04.04.08
Крышка 00-000.06.04.04.09
Поршень 00-000.06.04.04.10
Диск 00-000.06.04.04.11
Шток 00-000.06.04.04.12
Ось 00-000.06.04.04.13
Ось 00-000.06.04.04.14
Все чертежи и 3d модели (все на скриншотах показано и присутствует в архиве) выполнены в КОМПАС 3D.Также открывать и просматривать, печатать чертежи и 3D-модели, выполненные в КОМПАСЕ можно просмоторщиком КОМПАС-3D Viewer.
Привод предназнач
ен для поджатия деталей усилием до 5 т при сборочно-сварочных операциях.В центральное отверстие ф50 корпуса 1 вставляется шток 12 и уплотняется манжетой 6 при помощи крышки сальника 5 и винтов 17. Вилка 4 в сборе с осью 13, шайбой 20 и шплинтом 22 вворачивается до упора в отверстие М36 толкателя 2. После чего толкатель в сборе вставляется в боковое отверстие ⌀50 корпуса 1 и уплотняется промасленным войлочным кольцом 24. Рычаг 3 длинным концом вставляется в паз опушенного в нижнее положение штока 12, а коротким концом в паз толкателя 2 и закрепляется в корпусе 1 с помощью оси 14, шайбы 21 и шплинта 23.Поршень 10 в сборе с манжетами 7, кольцом 8, диском нажимным 11 и болтами 15 надевается на шток 12 и зажимается гайкой 19. Для предотвращения самоотвинчивания болты 15 и гайки 19 стопорятся проволокой 25. Крышка 9 к корпусу 1 крепится винтами 18. Гермитизация соединения осуществляется картонной прокладкой 26. В качестве заглушек технологических отверстий М10x1,25-6H В корпусе 1 и крышке 9 используются винты 16, установленные на сурике.
Управление работой пневматического привода осуществляется с помощью распределительного устройства, закрепленного на приливе корпуса 1 к двум отверстиям М16. При подаче сжатого воздуха давлением 4 атм в полость под поршнем, последний вместе со штоком движется вверх. Рычаг 3 поворачивается вокруг оси 14, вследствии чего толкатель 2 перемещается вниз. Обратное движение толкателя 2 осуществляется путем подачи сжатого воздуха В полость под поршнем.
Привод пневматический 00-000.06.04.04.00 сб
Привод пневматический 00-000.06.04.04.00 спецификация
Привод пневматический 00-000.06.04.04.00 3d сборка
Привод пневматический 00-000.06.04.04.00 чертежи
Корпус 00-000.06.04.04.01
Толкатель 00-000.06.04.04.02
Рычаг 00-000.06.04.04.03
Вилка 00-000.06.04.04.04
Крышка 00-000.06.04.04.05
Манжета ф50 00-000.06.04.04.06
Манжета ф250 00-000.06.04.04.07
Кольцо 00-000.06.04.04.08
Крышка 00-000.06.04.04.09
Поршень 00-000.06.04.04.10
Диск 00-000.06.04.04.11
Шток 00-000.06.04.04.12
Ось 00-000.06.04.04.13
Ось 00-000.06.04.04.14
Все чертежи и 3d модели (все на скриншотах показано и присутствует в архиве) выполнены в КОМПАС 3D.Также открывать и просматривать, печатать чертежи и 3D-модели, выполненные в КОМПАСЕ можно просмоторщиком КОМПАС-3D Viewer.Файлы условия, демо
Характеристики решённой задачи
Предмет
Семестр
Номер задания
Программы
Теги
Просмотров
32
Качество
Идеальное компьютерное
Размер
1,22 Mb
Список файлов
00-000.06.04.04
00-000.06.04.04.00 СБ_Привод пневматический.a3d
00-000.06.04.04.00 СБ_Привод пневматический.cdw
00-000.06.04.04.00 СП_Привод пневматический.cdw
00-000.06.04.04.01 Корпус.cdw
00-000.06.04.04.01_Корпус.m3d
00-000.06.04.04.02 Толкатель.cdw
00-000.06.04.04.02_Толкатель.m3d
00-000.06.04.04.03 Рычаг.cdw
00-000.06.04.04.03_Рычаг.m3d
00-000.06.04.04.04 Вилка.cdw
00-000.06.04.04.04_Вилка.m3d
00-000.06.04.04.05 Крышка.cdw
00-000.06.04.04.05_Крышка.m3d
00-000.06.04.04.06 Манжета ф50.cdw
00-000.06.04.04.06_Манжета ф50.m3d
00-000.06.04.04.07 Манжета ф250.cdw
00-000.06.04.04.07_Манжета ф250.m3d
00-000.06.04.04.08 Кольцо.cdw
00-000.06.04.04.08_Кольцо.m3d
00-000.06.04.04.09 Крышка.cdw
00-000.06.04.04.09_Крышка.m3d
00-000.06.04.04.10 Поршень.cdw
00-000.06.04.04.10_Поршень.m3d
00-000.06.04.04.11 Диск.cdw
00-000.06.04.04.11_Диск.m3d
00-000.06.04.04.12 Шток.cdw
00-000.06.04.04.12_Шток.m3d
00-000.06.04.04.13_Ось.m3d
00-000.06.04.04.14 Ось.cdw
00-000.06.04.04.14_Ось.m3d
Комментарии
Нет комментариев
Стань первым, кто что-нибудь напишет!
coolns






















