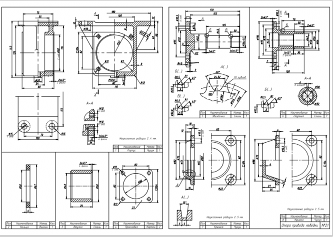
ДЗ: Опора привода лебедки вариант 21
Описание
Характеристики домашнего задания
Предмет
Учебное заведение
Семестр
Вариант
Просмотров
26
Размер
1,99 Mb
Список файлов
Втулка 3.ipt
Звездочка 5.ipt
Кольцо 2.ipt
Корпус 1.ipt
Крышка 7.ipt
Крышка 8.ipt
Прокладка 4.ipt
Ступица 6.ipt
Комментарии
Нет комментариев
Стань первым, кто что-нибудь напишет!
МГТУ им. Н.Э.Баумана
















