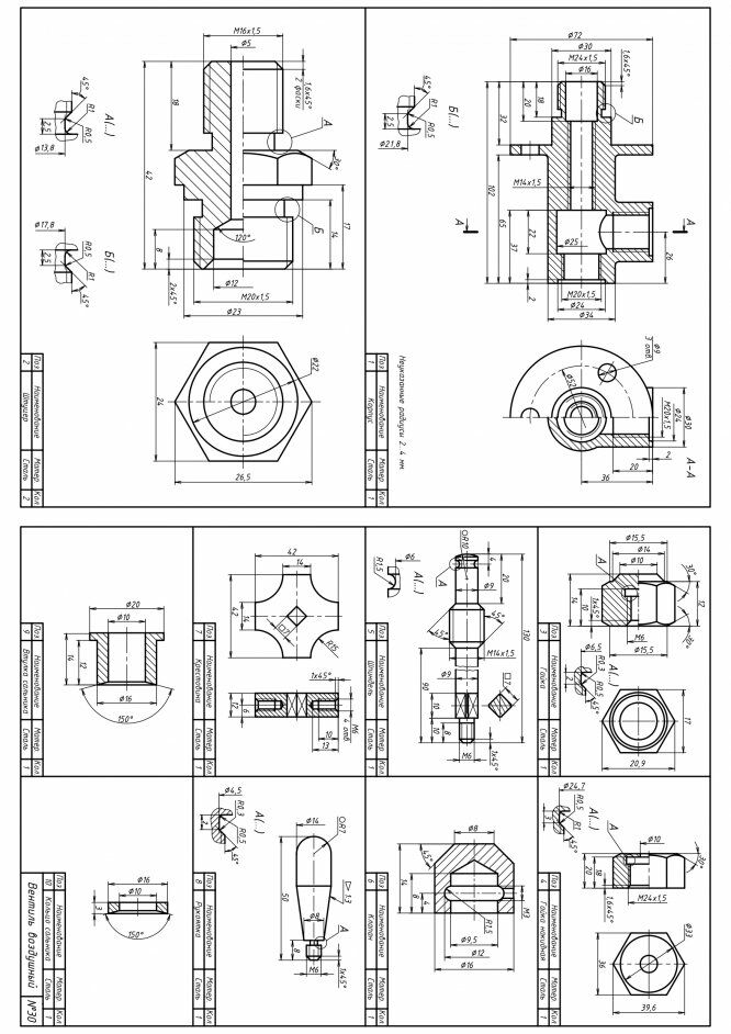
Для студентов МГТУ им. Н.Э.Баумана по предмету Инженерная графикаСборка 30 - Вентиль воздушныйСборка 30 - Вентиль воздушный
5,0055
2020-10-212020-10-21СтудИзба
ДЗ: Сборка 30 - Вентиль воздушный вариант 30
Описание
Характеристики домашнего задания
Предмет
Учебное заведение
Семестр
Вариант
Просмотров
136
Размер
3,07 Mb
Список файлов
Gayka (1).ipt
Gayka_nakidnaya (1).ipt
Klapan (1).ipt
Koltso_salnika (1).ipt
Korpus (1).ipt
Krestovina (1).ipt
Rukoyatka (1).ipt
Shpindel (1).ipt
Shtutser (1).ipt
Tsuranov.dwg
Tsuranov.pdf
Tsuranov_Spets.dwg
Tsuranov_Spets.pdf
Tsuranov_page-0001.jpg
Vtulka_salnika (1).ipt
Комментарии
Нет комментариев
Стань первым, кто что-нибудь напишет!
МГТУ им. Н.Э.Баумана



















