Главная » Учебные материалы » Элементы систем управления компьютерно-интегригованным производством » Курсовые работы » МГТУ им. Н.Э.Баумана » 8 семестр » Курсовой проект на тему Проектирование автоматизированной производственной ячейки (модуля)
Для студентов МГТУ им. Н.Э.Баумана по предмету Элементы систем управления компьютерно-интегригованным производствомКурсовой проект на тему Проектирование автоматизированной производственной ячейки (модуля)Курсовой проект на тему Проектирование автоматизированной производственной ячейки (модуля)
4,90550466
2024-09-03СтудИзба

Курсовая работа: Курсовой проект на тему Проектирование автоматизированной производственной ячейки (модуля)

-41%

Описание

Введение
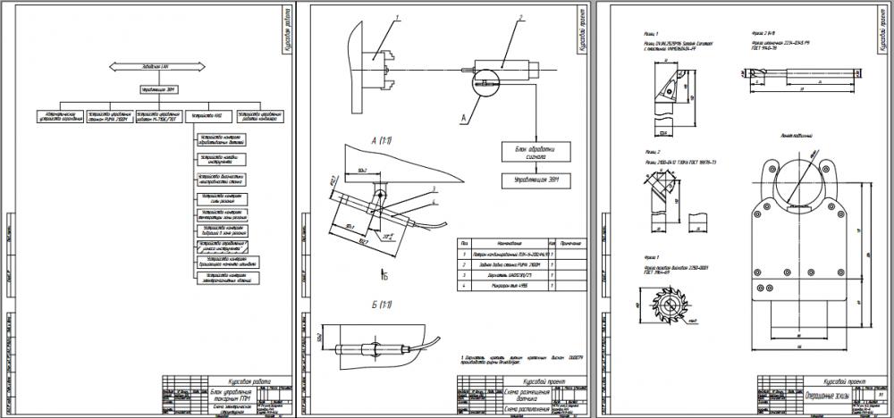
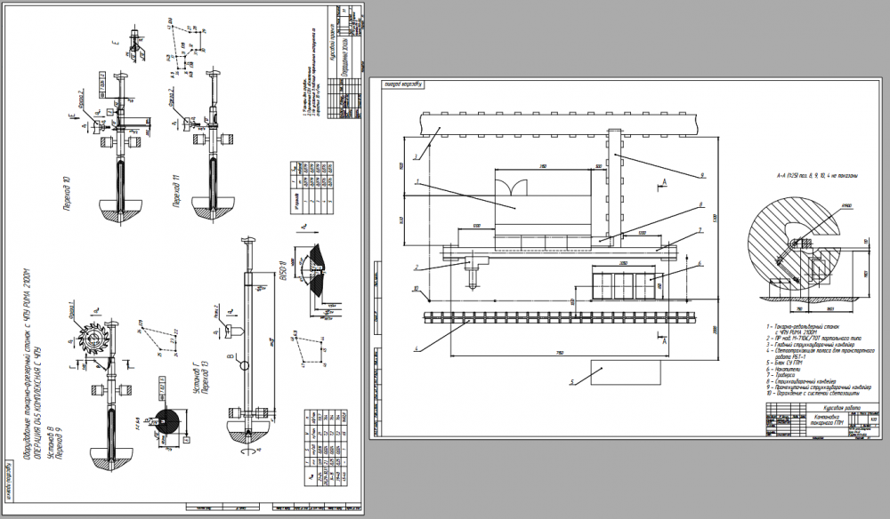
Технологический процесс изготовления детали типа «Винт», разработанный в рамках выполнения курсового проекта по дисциплине «Основы гибкой автоматизации», был основан на применении современных станков с ЧПУ для выполнения операций механообработки. Во многом благодаря этому трудоемкость изготовления детали снизилась в 8 раз, а оптимальный выбор заготовки уменьшил металлоемкость производства в 4 раза. Технологический процесс обладает рядом недостатков, главным из которых является слабая автоматизация как заготовительных, так и механообрабатывающих операций, что серьезно ограничивает рост производительности труда, существенно снижает гибкость производственной системы и сокращает номенклатуру выпускаемых изделий1. Гибкая производственная ячейка (модуль), разрабатываемая в рамках настоящего курсового проекта, позволит частично устранить недостатки технологического процесса и послужит основой для создания в дальнейшем ГПС более высокого уровня [8, 41]. ГПМ (ГПЯ) разрабатывается на основе операционной технологии одной из операций технологического процесса. Наиболее подходящей является операция 045 «Комплексная с ЧПУ». Выбор этой операции обусловлен следующим: • инфраструктура операции наиболее подготовлена к автоматизации; • операция более затратна по времени, по сравнению с другими операциями, следовательно эффект от её автоматизации будет наибольшим; • операция включает в себя отделочные переходы, для выполнения которых требуется высокая точность наладки инструмента и непрерывный контроль процесса обработки; • решения, примененные к операции 045, могут быть использованы для автоматизации операции 035; Автоматизация операции 045 повысит общую надежность и точность изготовления детали. Актуальность решаемой в курсовом проекте задачи обусловлена разнообразием и широким распространением деталей типа «Винт» и соответственно операций их механообработки.

На основании операционной карты и операционных эскизов, разработанных в курсовом проекте на тему «Разработка технологического процесса изготовления детали типа винт» по дисциплине «Основы гибкой автоматизации», выполним анализ операции. Тип производства – единичный. Норма подготовительно-заключительного времени на операцию – 25,2 мин. Норма штучного времени на операцию – 20,4 мин. Обрабатываемая заготовка имеет размеры: max Ø15 мм и длина 265 мм. Масса заготовки не более 0,3 кг, масса готовой детали 0,23 кг. Материал - сталь 40ХН2МА ГОСТ 4543-71. Твердость поверхности 28-32 HRC

Характеристики курсовой работы

Список файлов

Курсовой проект на тему Проектирование автоматизированной производственной ячейки (модуля).pdf
Картинка-подпись
Друзья, спасибо за доверие! Если вам понравилась работа – поставьте 5⭐ и напишите отзыв. Это поможет другим студентам, а мне даст силы делать ещё больше качественных материалов для вас 🔥

Комментарии

Нет комментариев
Стань первым, кто что-нибудь напишет!
Поделитесь ссылкой:
Цена: 999 590 руб.
Расширенная гарантия +3 недели гарантии, +10% цены
Рейтинг автора
4,9 из 5
Поделитесь ссылкой:
Сопутствующие материалы

Подобрали для Вас услуги

-26%
Вы можете использовать курсовую работу для примера, а также можете ссылаться на неё в своей работе. Авторство принадлежит автору работы, поэтому запрещено копировать текст из этой работы для любой публикации, в том числе в свою курсовую работу в учебном заведении, без правильно оформленной ссылки. Читайте как правильно публиковать ссылки в своей работе.
Свежие статьи
Популярно сейчас
Зачем заказывать выполнение своего задания, если оно уже было выполнено много много раз? Его можно просто купить или даже скачать бесплатно на СтудИзбе. Найдите нужный учебный материал у нас!
Ответы на популярные вопросы
Да! Наши авторы собирают и выкладывают те работы, которые сдаются в Вашем учебном заведении ежегодно и уже проверены преподавателями.
Да! У нас любой человек может выложить любую учебную работу и зарабатывать на её продажах! Но каждый учебный материал публикуется только после тщательной проверки администрацией.
Вернём деньги! А если быть более точными, то автору даётся немного времени на исправление, а если не исправит или выйдет время, то вернём деньги в полном объёме!
Да! На равне с готовыми студенческими работами у нас продаются услуги. Цены на услуги видны сразу, то есть Вам нужно только указать параметры и сразу можно оплачивать.
Отзывы студентов
Ставлю 10/10
Все нравится, очень удобный сайт, помогает в учебе. Кроме этого, можно заработать самому, выставляя готовые учебные материалы на продажу здесь. Рейтинги и отзывы на преподавателей очень помогают сориентироваться в начале нового семестра. Спасибо за такую функцию. Ставлю максимальную оценку.
Лучшая платформа для успешной сдачи сессии
Познакомился со СтудИзбой благодаря своему другу, очень нравится интерфейс, количество доступных файлов, цена, в общем, все прекрасно. Даже сам продаю какие-то свои работы.
Студизба ван лав ❤
Очень офигенный сайт для студентов. Много полезных учебных материалов. Пользуюсь студизбой с октября 2021 года. Серьёзных нареканий нет. Хотелось бы, что бы ввели подписочную модель и сделали материалы дешевле 300 рублей в рамках подписки бесплатными.
Отличный сайт
Лично меня всё устраивает - и покупка, и продажа; и цены, и возможность предпросмотра куска файла, и обилие бесплатных файлов (в подборках по авторам, читай, ВУЗам и факультетам). Есть определённые баги, но всё решаемо, да и администраторы реагируют в течение суток.
Маленький отзыв о большом помощнике!
Студизба спасает в те моменты, когда сроки горят, а работ накопилось достаточно. Довольно удобный сайт с простой навигацией и огромным количеством материалов.
Студ. Изба как крупнейший сборник работ для студентов
Тут дофига бывает всего полезного. Печально, что бывают предметы по которым даже одного бесплатного решения нет, но это скорее вопрос к студентам. В остальном всё здорово.
Спасательный островок
Если уже не успеваешь разобраться или застрял на каком-то задание поможет тебе быстро и недорого решить твою проблему.
Всё и так отлично
Всё очень удобно. Особенно круто, что есть система бонусов и можно выводить остатки денег. Очень много качественных бесплатных файлов.
Отзыв о системе "Студизба"
Отличная платформа для распространения работ, востребованных студентами. Хорошо налаженная и качественная работа сайта, огромная база заданий и аудитория.
Отличный помощник
Отличный сайт с кучей полезных файлов, позволяющий найти много методичек / учебников / отзывов о вузах и преподователях.
Отлично помогает студентам в любой момент для решения трудных и незамедлительных задач
Хотелось бы больше конкретной информации о преподавателях. А так в принципе хороший сайт, всегда им пользуюсь и ни разу не было желания прекратить. Хороший сайт для помощи студентам, удобный и приятный интерфейс. Из недостатков можно выделить только отсутствия небольшого количества файлов.
Спасибо за шикарный сайт
Великолепный сайт на котором студент за не большие деньги может найти помощь с дз, проектами курсовыми, лабораторными, а также узнать отзывы на преподавателей и бесплатно скачать пособия.
Популярные преподаватели
Добавляйте материалы
и зарабатывайте!
Продажи идут автоматически
7017
Авторов
на СтудИзбе
261
Средний доход
с одного платного файла
Обучение Подробнее
{user_main_secret_data}