Для студентов МГТУ им. Н.Э.Баумана по предмету Детали машин (ДМ)Привод ленточного транспортера с одноступенчатым цилиндрическим шевронным редуктором и ременной передачи от электродвигателя к редуктору + 3D МОДЕЛИ ИПривод ленточного транспортера с одноступенчатым цилиндрическим шевронным редуктором и ременной передачи от электродвигателя к редуктору + 3D МОДЕЛИ И
5,005102
2023-05-102025-04-08СтудИзба
Привод ленточного транспортера с одноступенчатым цилиндрическим шевронным редуктором и ременной передачи от электродвигателя к редуктору + 3D МОДЕЛИ И СБОРКИ
-44%
Описание
ДМ № ПСА 6 - Привод ленточного транспортера с одноступенчатым цилиндрическим шевронным редуктором и ременной передачи от электродвигателя к редуктору + 3D МОДЕЛИ И СБОРКИ
Курсач сдан и защищен на 5!
В архиве представлены: чертежи всех деталей (.cdw) + модели деталей + сборки + спецификации + РПЗ
Условие курсача в прикрепленном файле.
Примеры выполнения представлены ниже:
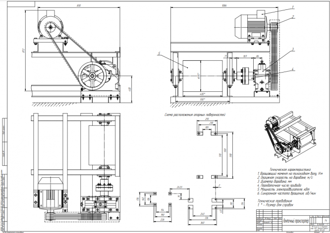
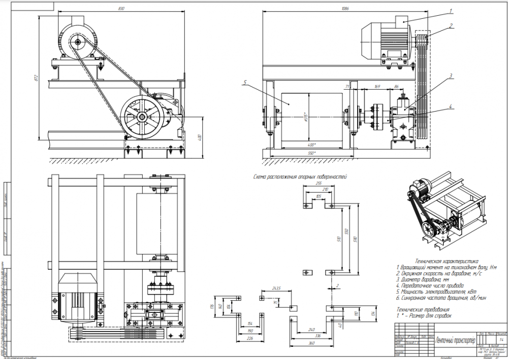
-5 лист:
-Деталь:
-Сборка
-РПЗ:
![]()
Курсач сдан и защищен на 5!
В архиве представлены: чертежи всех деталей (.cdw) + модели деталей + сборки + спецификации + РПЗ
Условие курсача в прикрепленном файле.
Примеры выполнения представлены ниже:
-5 лист:




Файлы условия, демо
Характеристики курсовой работы
Предмет
Учебное заведение
Семестр
Вариант
Теги
Просмотров
38
Качество
Идеальное компьютерное
Размер
35,49 Mb
Преподаватели
Список файлов
Барабан
Вал Приводной (1)
Барабан
Барабан.bak
Барабан.frw
Барабан.m3d
Барабан.m3d.bak
Вал
ВАЛ-Деталь.bak
ВАЛ-Деталь.m3d
ВАЛ-Деталь.m3d.bak
Вал.bak
Вал.frw
Втулка опоры
Втулка опоры.bak
Втулка опоры.m3d
Втулки для опор на вал
111.bak
Втулка на скользящую опору.bak
Втулка на скользящую опору.m3d
Левая втулка.bak
Левая втулка.m3d
Правая втулка.bak
Правая втулка.m3d
Кольцо барабана
Кольцо барабана.bak
Кольцо барабана.m3d
Крышка
Крышка Сквозная.bak
Крышка Сквозная.m3d
Крышка Сквозная.m3d.bak