Для студентов МГТУ им. Н.Э.Баумана по предмету Детали машин (ДМ)КП №6. Привод ленточного транспортера с цепной передачей и одноступенчатым цилиндрическим редуктором с косозубой передачей внутреннего зацепленияКП №6. Привод ленточного транспортера с цепной передачей и одноступенчатым цилиндрическим редуктором с косозубой передачей внутреннего зацепления
5,0053
2020-09-132025-08-05СтудИзба
КП №6. Привод ленточного транспортера с цепной передачей и одноступенчатым цилиндрическим редуктором с косозубой передачей внутреннего зацепления
Описание
Введение
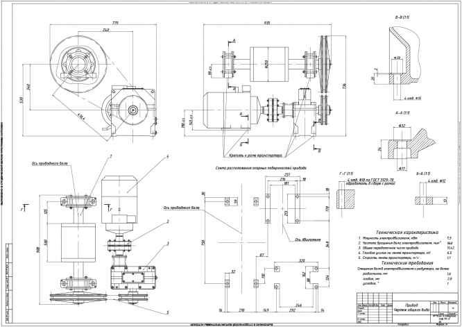
Целью выполнения работы является спроектировать привод ленточного транспортера.
Составными частями привода являются: асинхронный электродвигатель, Зубчатый цилиндрический редуктор с разъёмным корпусом, компенсирующая упругая муфта, цепная передача и приводной вал с тяговым барабаном, приводящим в движение ленту транспортёра.
Движение в приводе передаётся с вала электродвигателя через муфту быстроходному валу редуктора и далее с выходного вала редуктора через цепную передачу на приводной вал.
Требуется определить рациональные параметры редуктора, выполнить необходимые проектные и проверочные расчёты узлов и деталей привода и разработать его конструкторскую документацию в следующем виде:
- чертеж общего вида привода;
- сборочный чертеж редуктора;
- сборочный чертеж приводного вала;
- сборочный чертеж компенсирующей упругой муфты;
- рабочие чертежи деталей редуктора;
- расчетно-пояснительную записку и спецификации.
P.S. Чертежи сделаны в AutoCAD 2020.
Характеристики курсовой работы
Предмет
Учебное заведение
Семестр
Номер задания
Вариант
Просмотров
329
Размер
14,89 Mb
Список файлов
Курсач ДЕТМАШ
Исходные данные и результаты расчетов
Варианты зубчатых зацеплений ЭВМ.jpg
Варианты зубчатых зацеплений ЭВМ.pdf
Зубчатое зацепление ЭВМ.jpg
Зубчатое зацепление ЭВМ.pdf
Условие (поправленное).png
Условие проекта (начальное).jpg
Условие проекта (начальное).pdf
Цепная передача ЭВМ.jpg
Цепная передача ЭВМ.pdf
Итоговое
Лист 1 - Привод ВО.dwg
Лист 1 - Привод ВО.pdf
Лист 2 - Редуктор СБ.pdf
Лист 2, 3- Редуктор СБ.dwg
Лист 3 - Редуктор СБ.pdf
Лист 4 - Приводной вал СБ.dwg
Лист 4 - Приводной вал СБ.pdf
Лист 5.1 - Муфта СБ.pdf
Лист 5.2 - Зубчатое колесо.pdf
Лист 5.3 - Звездочка.pdf
Лист 5.4 - Вал.pdf
Лист 5.dwg
Пояснительная записка.docx
Пояснительная записка.pdf
Спецификации.dwg
Чертеж1.dwl
Чертеж1.dwl2
Расчеты в Mathcad
Подшипники
Комментарии
Нет комментариев
Стань первым, кто что-нибудь напишет!

МГТУ им. Н.Э.Баумана


















