описание станка (987162), страница 2
Текст из файла (страница 2)
§ 5. ВЕРТИКАЛЬНО-ФРЕЗЕРНЫЙ СТАНОК С КРЕСТОВЫМ СТОЛОМ И ЧПУ МА655ФЗ
Станок предназначен для обработки деталей сложной криволинейной формы типа шаблонов, вырубных штампов, пресс-форм, кулачков и других в единичном, серийном и мелкосерийном производстве. Станок может встраиваться в автоматизированный участок с управлением от ЭВМ. Если на вертикально-фрезерных консольных станках точность обработки получают в пределах =±(0,1—0,15) мм, то станок МА655ФЗ обеспечивает точность обработки 0,03—0,05 мм. Для достижения высокой жесткости принята компоновка вертикально-фрезерного станка с крестовым 152
столом. Изменена также конструкция шпиндельной бабки — шпиндель смонтирован не в гильзе, а в ползуне, перемещающемся по вертикальным направляющим бабки.
Высокая жесткость привода подач и уменьшение масс его
£ движущихся элементов обеспечивают частоту собственных коле-
f баний механических звеньев привода около 350 рад/с. При такой
f- частоте станок практически не оказывает влияния на динамиче-
'| ские параметры системы управления. Для повышения точности
в приводе подач применены направляющие качения с предварительным натягом.
Т
ехническая характеристика станка. Размеры рабочей поверхности стола (ширинахдлина) 500x1250 мм, наибольшее перемещение стола: продольное 1000 мм; поперечное 500 мм; число частот вращения шпинделя 17; пределы частот вращения шпинделя 63—
XY Z
Рис. 78. Блок-схема устройства ЧПУ УМС-2Ф
2500 об/мин; регулирование по- | ув \ дач — бесступенчатое; пределы подач стола и ползуна 12— 700 мм/мин; ускоренный ход 1400 мм/мин;габаритные размеры станка 2320x2035x2700 мм.
Система ЧПУ — фазово-им-пульсная со встроенным линейно-круговым интерполятором УМС-2Ф. Программоноситель — перфолента; скорость считывания информации 600 строк/с.
В станке по программе предусмотрено перемещение стола, салазок и ползуна шпиндельной бабки, выбор величины рабочих подач и ускоренных перемещений и т. д.
На рис. 79 приведена блок-схема устройства УМС-2Ф. Фото-считывающая приставка ФСП считывает информацию с перфоленты, и сигналы поступают в устройство ввода У В, которое контролирует считываемую информацию, осуществляет дешифрацию вводимых команд. В УВ находится буферная память, которая хранит численную информацию до тех пор, пока линейно-круговой интерполятор ЛКИ не отработает предыдущий кадр. Только после этого вводится новый кадр. Блок задания скорости БЗС обеспечивает необходимую скорость работы JIt\M, благодаря этому регулируется заданная скорость подачи. Устройство расчета зквидистанты УРЭ производит расчет, исходя из величин координат начальной и конечной точки дуги обрабатываемого контура и величины радиуса фрезы. Блок третьей координаты БТК обеспечивает непрерывное управление по трем координатам, причем третья координата задается как линейная функция от перемещения по двум основным координатам. Тактовый генератор ТГ выдает тактовую частоту (40 кГц) на все блоки, а блок питания БП обеспечивает питанием все узлы. Управление осуществляется с пульта управления ПУ.
153
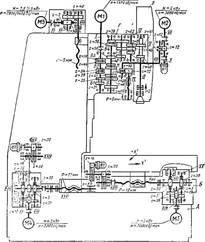
Основные узлы и движения в станке. По горизонтальным направляющим станины А (рис. 80) перемещаются салазки крестового стола Б (координата У), а по направляющим салазок в про-
И=5,5кВт
Рис. 80. Кинематическая схема вертикально-фрезерного станка с крестовым столом И ЧПУ МЛ655ФЗ
дельном направлении — стол (координата X'). По вертикальным направляющим станины может перемещаться шпиндельная бабка /" с главным приводом (установочное перемещение), а по направляющим шпиндельной бабки движется ползун В со шпинделем VI станка (подача по оси Z). Шпиндель станка получает главное движение.
Кинематика станка. Главное движение. Ступенчатая коробка скоростей приводится во вращение от асинхронного двигателя Ml (N = 5,5 кВт, п = 1450 об/мин). Управление коробкой скоростей осуществляется от селективного однорукояточного механизма. Для уменьшения шума валы коробки смонтированы на подшипниках качения повышенной точности. Передвижные блоки зубчатых колес Б1, Б2, БЗ, Б4, Б5 обеспечивают \7 практических значений частот вращения шпинделя в пределах 63— 2500 об/мин.
Минимальная частота вращения шпинделя
, .СЛ 21 28 32 19 со л/ "mm = 145° 69 62 Ж ТГ ^ 63 об/мин-
В станке применен быстросменный патрон, позволяющий закреплять инструмент без шомпола, снизу.
Приводы подач. В качестве приводов подач по осямХ', У, Z применен тиристорный следящий электропривод с использованием малоинерционных электродвигателей с гладким якорем типа ПГТ-2. Следящий электропривод представляет собой двух-контурную систему автоматического регулирования с жесткими обратными связями по скорости и пути. Для контроля скорости используют тахогенераторы, в качестве путевого датчика — вращающиеся трансформаторы, ВТ которые соединены с ходовыми винтами через беззазорные редукторы.
Привод ползуна по оси Z осуществляется от двигателя М2 (N = 2 кВт, п = 3000 об/мин) через беззазорные передачи z = = 12—12, 36—72 и передачу винт—гайка качения IX с шагом Р = 6 мм. Обратная связь осуществляется с помощью вращающегося трансформатора на валу X, соединенного с ходовым винтом через беззазорный редуктор.
Привод стола и салазок по осям X' и У осуществляется от малоинерционных двигателей постоянного тока с гладким якорем МЗ и М4 (N = 2 кВт, п = 3000 об/мин). Привод салазок размещен в станине, а привод стола — в левой части салазок. Салазки станка представляют собой массивную чугунную отливку, имеющую в нижней части направляющие для поперечного перемещения, а в верхней части продольные направляющие качения. Для создания предварительного натяга в направляющих служат нажимные ролики. Для получения поперечного перемещения движение передается винт—гайке качения XVII от двигателя МЗ через зубчатую пару z = 19—38 и червячный редуктор г = = 3—30. Для устранения зазора в зубчатых зацеплениях редуктор имеет две параллельные кинематические ветви. Устранение зазора осуществляется смещением одного из червяков в осевом направлении.
С зубчатым колесом z = 60 на валу XVIII связан беззазорный редуктор к вращающемуся трансформатору. Зазор в зубчатых передачах z = 16—64 и 20—60 устраняют пружинами. Необходимо, чтобы 1 мм перемещения салазок соответствовал одному
155
обороту вращающегося трансформатора. Эту зависимость можно выразить уравнением
1 Л 16 20 10 1
1 °б GTW12=1 ММ'
Таким образом, при контроле углового перемещения ходового винта одному командному импульсу (0,01 мм) соответствует поворот ротора вращающегося трансформатора на 3,6°.
Аналогично устроен и редуктор к ВТ продольного перемещения. Ходовой винт XXVI продольного перемещения получает вращения от двигателя М4 через зубчатую пару z = 19—38 и червячный редуктор z = 3—30. Для защиты направляющих и ходовых винтов от стружки и эмульсии предусмотрены телескопические щитки. Установка стола и салазок в исходное положение происходит с помощью оптических и отсчетных микроскопов.
Привод установочного перемещения шпиндельной бабки осуществляется от электродвигателя переменного тока М5 через червячную пару z = 2—30, зубчатую передачу z = 40—40 и ходовой винт с шагом Р = 8 мм. Зажим шпиндельной бабки производится гидроцилиндром; действие зажимного устройства сблокировано с пуском привода перемещения шпиндельной бабки.
Глава XVI МНОГООПЕРАЦИОННЫЕ СТАНКИ
§ 1. КОНСТРУКТИВНЫЕ ОСОБЕННОСТИ МНОГООПЕРАЦИОННЫХ СТАНКОВ
Многооперационным станком называется станок с ЧПУ, обеспечивающий выполнение многих технологических операций на сложных деталях с разных сторон без их перебазирования и, как правило, с автоматической сменой инструмента [14]. Они делятся на станки для обработки деталей типа корпусных и типа тел вращения. Станки для обработки деталей типа тел вращения распространены в меньшей степени. Рассмотрим многооперационные станки для корпусных деталей. На них можно сверлить, зенкеровать, развертывать, растачивать, нарезать резьбу, фрезеровать плоские поверхности и контуры. Производительность изготовления деталей на таких станках в 4—10 раз выше, чем на универсальных станках. Это происходит за счет резкого сокращения затрат вспомогательного и подготовительно-заключительного времени, интенсификации режимов резания, сокращения времени на контрольные операции и т. д. На этих станках вручную лишь устанавливают и закрепляют деталь. Для сокращения времени загрузки заготовок и съема готовых деталей используют устройства для автоматической смены приспособле-156
ний — спутники, маятниковые столы; поворотные столы, работающие поочередно и др. Все шире применяется агрегатирование узлов многооперационных станков.
Компоновка станков. Различают станки вертикальной и горизонтальной компоновки. Вертикальные многооперационные станки, характеризующиеся вертикально расположенным шпинделем, предназначены для деталей, которые обрабатывают с одной стороны. Их выполняют по типу: 1) вертикального консольно-фрезерного станка; 2) бесконсольного вертикально-фрезерного станка или одностоечного координатно-расточного; 3) продольно-фрезерного или двухстоечного координатно-расточного станка. По такому типу выполнены многооперационные станки 243ВМФ2, СМ-213 и др.
Горизонтальные многооперационные станки предназначены для обработки деталей с двух-четырех, а иногда и пяти сторон. Их выполняют по типу горизонтальных консольно-фрезерных и горизонтально-расточных станков. Шпиндель в таких станках расположен горизонтально. Наиболее распространены станки, имеющие крестовый и поворотный столы, вертикально перемещающуюся шпиндельную бабку. К станкам с горизонтальной компоновкой относятся 6902ПМФ2, 6904ВФ4, 6305Ф4 и др.
Точностные характеристики станков должны обеспечить выполнение предварительных и финишных операций, поэтому их выпускают классов точности П и В.
Системы ЧПУ. Многооперацнонные станки работают совместно с позиционными, контурными и универсальными системами ЧПУ. Минимальное число управляемых координат равно трем. Системы обеспечивают направление и величину рабочих перемещений, выдают команды на выполнение вспомогательных функций: автоматический поиск инструмента и его смену после обработки, установку шпинделя в определенное положение при смене инструмента, изменение режимов обработки, включение и отключение СОЖ в зону обработки, реверс шпинделя при выполнении резьбонарезных операций, фиксацию узлов после их позиционирования и т. д.
Главный привод. Учитывая большое число разнохарактерных операций, выполняемых на многооперационном станке, применяют приводы с регулированием скоростей в широком диапазсне. Для малых типоразмеров этих станков предназначены приводы с асинхронным электродвигателем и коробками скоростей (иногда дополнительно устанавливают вариатор). В станках больших типоразмеров применяют электродвигатели постоянного тока, регулируемого с помощью тиристорного привода. Этот привод будет распространен вскоре на большинство типоразмеров много-операционных станков.
Для повышения жесткости шпинделя исключено его осевое перемещение путем монтажа шпинделя непосредственно в перемещаемой шпиндельной головке.
157
















