РПЗ (777665), страница 2
Текст из файла (страница 2)
Nкр – число крепежных деталей.
Nст = 90; Nобщ = 256; Nкр = 83;
Кпр.ст =
= 0,52 < 1 – согласно [ 2]
-
коэффициент сборности:
Kсб =
, где
Е - число сборочных единиц;
Д - число деталей, не входящих в состав ни в одну из сборочных единиц.
Е=2; Д=251;
Ксб=
= 0,33 < 0.75 – согласно [ 2]
-
коэффициент стандартизации и унификации:
Kст =
, где
Ест – число стандартных, нормализованных и унифицированных сборочных единиц в изделии;
Дст – число стандартных, нормализованных и унифицированных сборочных единиц в изделии (крепежные детали не учитываются);
Вывод: Сборочная единица для условий серийного производства технологична.
1.3. Расчет размерных цепей с выбором методов достижения точности сборки.
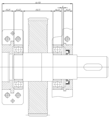
Для нормального функционирования редуктора осевой зазор в подшипниках 0… 0,15 мм [4]. Заданы номинальные размеры, составляющие размерную цепь:
Исходные данные:
высота крышек подшипников:
А1 = 29 ± 0,065 мм;
А5 = 22 ± 0,065 мм;
высота подшипников:
А2 = А4 = 22 ± 0,25 мм;
расстояние между заплечиками вала под подшипники (14 квалитет):
А3 = 73 ± 0,42 мм;
размер корпуса:
А6 = 172 ± 0,125 мм;
Для регулирования осевого зазора предусмотрено компенсаторное кольцо X (замыкающий размер). Необходимо определить толщину компенсатора для одного изделия.
Расчет номинального размера:
Номинальный размер компенсатора Х определяется из уравнения:
А0 =
-
- Х
где n – число увеличивающих размеров;
p – число уменьшающих размеров;
А0 – осевой зазор в подшипниках (замыкающий размер)
Для нормального функционирования редуктора осевой зазор в подшипниках должен быть в интервале 0…0.3 мм.
Х = 172 – 29 – 22 – 73 – 22 – 22 – 0 = 4
Допуск на размер компенсаторного кольца выбираем по 12 квалитету:
Тк = 120 мкм
Проверка возможности обеспечения требуемой точности методом полной взаимозаменяемости (расчет на max-min):
Т0 ≥ Т1 + Т2 + Т3 + Т4 + Т5 + Т6 + ТХ
150 мкм ≥ (130 + 130 + 500 + 500 + 840 + 120) мкм
150 ≥ 2220 – заданную точность невозможно обеспечить методом максимума-минимума, требуется регулировка.
Проверка возможности обеспечения требуемой точности методом полной взаимозаменяемости (расчет вероятностным методом):
Т0 ≥
Т0 ≥
= 1,25 мм = 1250 мкм
150 ≥ 1250 – заданную точность невозможно обеспечить и вероятностным методом.
Поскольку требуемую точность зазоров в подшипниках невозможно обеспечить методами полной взаимозаменяемости, необходима регулировка.
Для регулировки в конструкции изделия, как уже говорилось, предусмотрено компенсаторное кольцо, которое подшлифовываем для получения точности зазоров.
1.4. Разработка и обоснование технологической схемы общей сборки узла.
За базовую деталь выбран корпус редуктора поз.1, так как данная деталь обеспечивает достаточную устойчивость редуктора в процессе его сборки (корпус удобно положить на стол и собирать в него остальные сборочные узлы).
При разработке ТП сборки изделие необходимо расчленить на элементы таким образом, чтобы конструктивные условия позволяли осуществить сборку наибольшего количества этих элементов независимо друг от друга.
Поэтому целесообразно разделить изделие по следующим основным узлам:
-
вал промежуточный в сборе поз.2.
-
вал быстроходный в сборе поз.3
-
вал тихоходный в сборе поз.4
Т.к. для сборки данных узлов потребуется пресс, а после сборки можно использовать данные узлы при общей сборки без специального оборудования.
Технологическая схема общей сборки показана в графической части проекта.
1.5. Разработка технологического процесса сборки с выбором оборудования, инструментов, техническим нормированием времени и определением суммарной трудоемкости сборки узла.
Технологический процесс сборки двухступенчатого цилиндрического редуктора представлен в маршрутно-операционной карте. Карты представлены в приложении № 1.
(нормирование проводилось в соответствие с [11] ).
Узловая сборка промежуточного вала поз.2.
| № | Содержание работы | Время, мин |
| 1 | Осмотреть промежуточный вал поз.2 со всех сторон с необходимыми поворотами, масса детали до 5 кг | 0.210 |
| 2 | Осмотреть зубчатое колесо поз.23 со всех сторон с необходимыми поворотами, масса детали до 20 кг | 0.210 |
| 3 | Продуть промежуточный вал поз.2 | 0.11 |
| 4 | Продуть зубчатое колесо поз.23 | 0.12 |
| 5 | Протереть промежуточный вал поз.2 | 0.193 |
| 6 | Протереть зубчатое колесо поз.23 | 0.170 |
| 7 | Освободить подшипник поз.17 от упаковки (2 шт.) | 0.130 |
| 8 | Осмотреть подшипник поз.17 со всех сторон с необходимыми поворотами (2 шт.) | 0.150 |
| 9 | Установить промежуточный вал поз.2 в приспособление, масса до 10 кг | 0.17 |
| 10 | Напрессовать зубчатое колесо поз.23 на промежуточный вал поз.2 | 0.180 |
| 11 | Установить промежуточный вал поз.2 в приспособление контрольно-измерительного устройства, масса до 20 кг | 0.17 |
| 12 | Контролировать торцовое биение зубчатого венца относительно посадочных поверхностей под подшипники | 0.360 |
| 13 | Установить промежуточный вал поз.2 в приспособление, масса до 3 кг | 0.17 |
| 14 | Напрессовать подшипник поз.17 на промежуточный вал поз.2 | 0.17 |
| 15 | Установить промежуточный вал поз.2 в приспособление другим концом, масса до 20 кг | 0.17 |
| 16 | Напрессовать подшипник поз.17 на промежуточный вал поз.2 | 0.260 |
| 17 | Проверить плотность прилегания колец подшипников поз.17 к торцам промежуточного вала поз.2 щупом 0,02 мм (2 шт.) | 0.346 |
| 3.29 |
Общее оперативное время:
tоп = 3.29 мин
Штучное время:
tшт = tоп ∙ (1 +
); где
α – время на техническое обслуживание рабочего места;
β – время на организационное обслуживание рабочего места;
γ – время на регламентированный отдых.
α + β + γ = 8…12 % от оперативного времени
tшт = 3.29∙(1+
); tшт = 3.62
Трудоёмкость сборки промежуточного вала равна 3.62 мин.
Узловая сборка быстроходного вала поз.3.
| № | Содержание работы | Время, мин |
| 1 | Осмотреть быстроходный вал поз.3 со всех сторон с необходимыми поворотами, масса детали до 5 кг | 0,210 |
| 2 | Продуть быстроходный вал поз.3 | 0,11 |
| 3 | Протереть быстроходный вал поз.3 | 0,193 |
| 4 | Освободить маслозащитные кольца поз.18 и поз.25 от упаковки | 0,130 |
| 5 | Осмотреть маслозащитные кольца поз.18 и поз.25со всех сторон с необходимыми поворотами | 0,150 |
| 6 | Освободить подшипник поз.19 от упаковки (2 шт.) | 0,130 |
| 7 | Осмотреть подшипник поз.19 со всех сторон с необходимыми поворотами (2 шт.) | 0,150 |
| 9 | Установить быстроходный вал поз.3 в приспособление, масса до 10 кг | 0,17 |
| 10 | Напрессовать маслозащитное кольцо поз.18 на быстроходный вал поз.3 | 0,17 |
| 11 | Напрессовать подшипник поз.19 на быстроходный вал поз.3 | 0,17 |
| 12 | Установить быстроходный вал поз.3 в приспособление другим концом, масса до 20 кг | 0,17 |
| 13 | Напрессовать маслозащитное кольцо поз.25 на быстроходный вал поз.3 | 0,17 |
| 14 | Напрессовать подшипник поз.19 на быстроходный вал поз.3 | 0,17 |
| 15 | Проверить плотность прилегания колец подшипников поз.19 к торцам быстроходного вала поз.3 щупом 0,02 мм (2 шт.) | 0,346 |
| 2,44 |
Общее оперативное время:
tоп = 2.44 мин
Штучное время:
tшт = 2.44∙(1+
); tшт = 2.68
Трудоёмкость сборки тихоходного вала равна 2.68 мин.
Узловая сборка тихоходного вала поз.4.
| № | Содержание работы | Время, мин |
| 1 | Осмотреть тихоходный вал поз.4 со всех сторон с необходимыми поворотами, масса детали до 5 кг | 0.210 |
| 2 | Осмотреть зубчатое колесо поз.21 со всех сторон с необходимыми поворотами, масса детали до 20 кг | 0.210 |
| 3 | Продуть тихоходный вал поз.4 | 0.11 |
| 4 | Продуть зубчатое колесо поз.21 | 0.12 |
| 5 | Протереть тихоходный вал поз.4 | 0.193 |
| 6 | Протереть зубчатое колесо поз.21 | 0.170 |
| 7 | Освободить подшипник поз.20 от упаковки (2 шт.) | 0.130 |
| 8 | Осмотреть подшипник поз.20 со всех сторон с необходимыми поворотами (2 шт.) | 0.150 |
| 9 | Установить тихоходный вал поз.4 в приспособление, масса до 10 кг | 0.17 |
| 10 | Напрессовать зубчатое колесо поз.21 на тихоходный вал поз.4 | 0.180 |
| 11 | Установить тихоходный вал поз.4 в приспособление контрольно-измерительного устройства, масса до 20 кг | 0.17 |
| 12 | Контролировать торцовое биение зубчатого венца относительно посадочных поверхностей под подшипники | 0.360 |
| 15 | Установить тихоходный вал поз.4 в приспособление, масса до 3 кг | 0.17 |
| 16 | Напрессовать подшипник поз.20 на тихоходный вал поз.4 | 0.17 |
| 17 | Установить тихоходный вал поз.4 в приспособление другим концом, масса до 20 кг | 0.17 |
| 18 | Напрессовать подшипник поз.20 на тихоходный вал поз.4 | 0.260 |
| 19 | Проверить плотность прилегания колец подшипников поз.20 к торцам тихоходного вала поз.4 щупом 0,02 мм (2 шт.) | 0.346 |
| 4.389 |
Общее оперативное время:
tоп = 4.389 мин
tшт = 4.389∙(1+
); tшт = 4.83
















