146280 (729490), страница 2
Текст из файла (страница 2)
Например, в пролетном строении, имеющим 7 балок и присвоении крайней левой балке номера «ноль» для вычисления ординаты линии влияния под левой консолью индексы n и r будет иметь следующие значения:
Для крайней балки №0
Найденные ординаты откладываются под соответствующими консолями и их концы соединяются прямой линией с концами уже построенной линии влияния.
Далее над линией влияния в пределах ширины пролетного строения устанавливается временная нагрузка с соблюдением требований СниП 2.05.03-84 по установке временных нагрузок по ширине моста, т.е. автомобильная нагрузка А-II одна или две полосы может быть установлена на мосту с соблюдением и без соблюдения полосы безопасности, нагрузка НК-80 только с соблюдением полосы безопасности и только на одной полосе движения. Ордината линии влияния под равнодействующей временной нагрузки будет равна коэффициенту поперечной установки для данной нагрузки.
Например: Пользуясь линией влияния для крайней балки №0, найти КПУ для временных нагрузок.
Для НК-80
Для толпы на одном тротуаре (левом)
Для автомобильной равномерной части нагрузки А – II, установленной без соблюдения полосы безопасности.
Для автомобильной равномерной части нагрузки А – II, установленной без соблюдения полосы безопасности для тележки А – II.
Для автомобильной равномерной части нагрузки А – II, установленной c соблюдения полосы безопасности.
Для автомобильной равномерной части нагрузки А – II, установленной c соблюдения полосы безопасности для тележки А – II.
11. Расчетные усилия в сечениях главной балки
Расчетную временную нагрузку на главную балку получают умножением нормативной нагрузки на соответствующие коэффициенты надежности на нагрузке (
), коэффициенты динамичности (1+) и коэффициенты поперечной установки ().
Коэффициенты надежности по нагрузке (
) для временных вертикальных нагрузок в СНиП 2.05.03-84, табл.14 имеют следующие величины:
Для нагрузки НК–80 ________________________________1,0;
Для нагрузки от толпы на тротуаре при
учете совместно с другими нагрузками_________________1,2;
Для равномерной части нагрузки А–II __________________1,2;
Для тележки нагрузки А–II ___________________________
где - длина загружения линии влияния одного знака
При расчете элементов пролетных строений автодорожных мостов (главные балки, диафрагмы) должны рассматриваться три основные сочетания постоянных и временных нагрузок (СниП 2.05.03-84 п.2.12):
Первое – постоянная нагрузка плюс НК-80;
Второе – постоянная нагрузка плюс А-II (один или два ряда) без соблюдения полосы безопасности;
Третье – постоянная нагрузка плюс А-II с соблюдением полосы безопасности и плюс толпа на тротуарах.
При этом число полос нагрузки, размещаемой на мосту, не должно превышать установленного числа полос движения.
Расстояние между осями смежных полос нагрузки должны быть не менее 3,0м.
При многополосном движении в каждом направлении и отсутствии разделительной полосы на мосту ось крайней (внутренней) полосы нагрузки каждого направления не должна быть расположена ближе 1,5м и от осевой линии или линии, разделяющей направления движения. При этом на мосту размещается столько полос движения, сколько их поместится над линией влияния давлений на главную балку одного знака.
11.1 Расчетный изгибающий момент в середине пролета главной балки.
При вычислении изгибающего момента удобно пользоваться линией влияния моментов для расчетного сечения, загруженной действующими равномерно распределенными и сосредоточенными нагрузками (рис. 14.1).
Рис.1 4.1 Схема к определению изгибающего момента в середине пролета балки: а – расчетная схема балки; б – линия влияния изгибающего момента в середине пролета балки и ее загружение; l – расчетный пролет балки,
- ординаты линии влияния под осями тележки А–II, P – давление одной оси тележки, - площадь линии влияния, q – все виды равномерно распределенной нагрузки.
Изгибающий момент в середине пролета балки
вычисляем для трех сочетаний загружения, кНм.
Первое загружение – постоянная нагрузка плюс НК – 80
где
– расчетная постоянная нагрузка на 1 погонный метр главной балки, кНм
– эквивалентная равномерно распределенная нагрузка от НК – 80, кНм
– коэффициент поперечной установки для НК – 80
Второе загружение – постоянная нагрузка плюс нагрузка А – II без соблюдения полосы безопасности (одна или две и более поло, но не больше общего числа полос движения)
где q11 и Р11 – соответственно равномерная часть нагрузки А – II и давление одной оси тележки А – II
– коэффициент надежности по нагрузке для равномерной части А – II и тележки соответственно
Третье загружение – постоянная нагрузка, плюс А – II с соблюдением полосы безопасности и плюс толпа на одном или двух тротуарах.
где
– КПУ для нагрузки А – II, установленной на мосту с соблюдением полосы безопасности;
qТО – 3,92 – 0,0196=3,92-0,19621,3=3,50, но не менее 1,96кН/м2 – равномерная нагрузка на один м2 тротуара от толпы;
– длина загружения линии влияния, =l ;
Т – ширина тротуара в метрах.
Из трех значений момента (
) за расчетный принимаем большее.
-
Расчет балки на прочность по изгибающему моменту в середине пролета.
При выполнении курсового проекта расчет по прочности сводится к определению количества растянутой арматуры, ее размещение в ребре балки и вычислению несущей способности балки при заданных геометрических размерах поперечного сечения.
Вначале необходимо назначить класс бетона и арматуры, которые будут использованы для изготовления рассчитываемой балки. Выписать их основные характеристики, указать расчетный пролет балки (l), основные размеры расчетного сечения (
).
Далее предварительно назначаем расстояние от низа балки до центра тяжести растянутой арматуры (Qs), равным 10 – 15 см.
Вычисляем далее рабочую высоту сечения балки, см
где h – высота балки, см
Требуемую площадь сечения растянутой арматуры, определяем по формуле, полагая, что высота сжатой зоны бетона будет равна расчетной высоте плиты балки.
где
– расчетный изгибающий момент
Rs – расчетное сопротивление арматуры для первой группы предельных составлений
Для армирования ребра балки рекомендуется применять арматуру диаметром 28 или 32 мм. Площадь поперечного сечения одного стержня (А1) принимают по таблицам или вычисляют как для круга диаметром, равным номинальному диаметру арматуры.
Требуемое число стержней принятого диаметра (d) будет равно:
Полученное число стержней округляем до большего ближайшего четного числа, принимаем 12 штук.
В ребре балки принятую арматуру размещают обычно в два ряда по ширине ребра (симметрично относительно продольной оси балки) и в несколько рядов по высоте балки. Обычно вертикальные ряды арматуры объединяют сваркой в два плоских каркаса. В случае расположения арматуры в таких каркасах более чем в три ряда по высоте необходимо через каждые три ряда устраивать просвет, равные диаметру арматуры. Просветы образуют установкой арматурных коротышей (длиной, равной шести диаметрам арматуры, 6d) в местах отгибов, а также через 1м по длине каркаса.
Толщина защитного слоя бетона с боков и от низа ребра балки должна быть не менее 3 см.
Принятое число стержней располагаем в ребре балки, объединив их в два плоских каркаса.
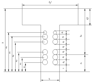
Рис. 15.1. Схема к определению центра тяжести арматуры и рабочей высоты сечения балки: а1 – а2 – расстояние от низа балки до центра тяжести стержней;
– наружные диаметры арматуры,
с=3 см – защитный слой бетона.
После размещения арматуры уточняем положение ее центра тяжести, см.
– наружные диаметры стержней арматуры, см
– площадь поперечного сечения одного стержня, см2
Далее из уравнения равновесия внутренних усилий (
) находим высоту сжатой зоны бетона, предполагая, что граница сжатой зоны бетона в пределах полки.
где Rb – призменная прочность бетона для предельных состояний первой группы.
Здесь дальше может быть два случая расчета таврового сечения.
Первый случай – когда
и второй – когда
.
Рис.15.2. Схема к расчету балки таврового сечения.
Если
, находим высоту растянутой части сечения балки (h-x). Далее одну пятую ее высоты
сопоставляют с расстояниями рядов арматуры от низа балки, т.е. с величинами а1, а2, а3, а4…аi. Если для i–го ряда арматуры аi окажется более чем
, то для этого ряда и каждого вышележащего необходимо вычислить коэффициент условий работы арматуры по формуле:















