formoob (729450)
Текст из файла
Министерство высшего и среднего специального образования РФ
Московская государственная академия приборостроения и информатики
Кафедра ______________________________________________________________
ПОЯСНИТЕЛЬНАЯ ЗАПИСКА
к курсовой работе на тему:
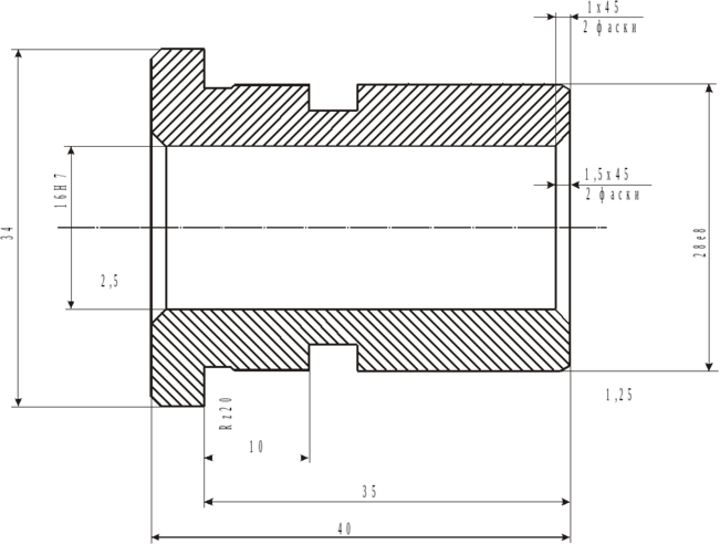
Разработка общего плана обработки детали «Втулка» с подробной разработкой технологических переходов для поверхности 28e8
Студент Бакачев А.И. _
подпись, дата инициалы, фамилия
Обозначение курсовой работы КР-2068757-1201.02-МТ8-40-99 _
Группа МТ-8 Специальность 1201 _
номер, наименование
Отделение ____________________________________________________________
Работа защищена ________________________ Оценка _______________________
Руководитель работы Шебров О.М. _
подпись, дата инициалы, фамилия
Члены комиссии ______________________________________________________
подпись, дата инициалы, фамилия
______________________________________________________
подпись, дата инициалы, фамилия
Введение
В развитии технологии обработки металлов резанием за последние годы происходят принципиальные изменения. Интенсификация технологических процессов на основе применения режущих инструментов из новых инструментальных материалов, расширение области применения оборудования с ЧПУ, создание роботизированных станочных комплексов и гибких производственных систем с управлением от ЭВМ, повышение размерной и геометрической точности, достигаемой при обработке - таков неполный перечень важнейших направлений развития технологии механической обработки в машиностроении.
Сведения о технологических процессах, в том числе о процессах с применением инструментов из сверхтвердых материалов и минералокерамики, о технологических методах достижения высокой точности для прецизионных деталей, об особенностях внедрения гибких производственных систем, робототехнических станочных комплексов, станков с ЧПУ и многооперационных станков, станочных приспособлений, вспомогательного инструмента, а также рекомендации по выбору режимов резания и технико-экономической эффективности совершенствования технологии механообрабатывающего производства являются необходимой базой для создания новых технологических процессов, разработки наладок, внедрения прогрессивного металлорежущего оборудования, инструментов, контрольно-измерительных приборов и др.
К
МГАПИ, МТ-8
УКП Стромынка
-
Общие положения
-
Цель и задачи курсовой работы.
Цель курсовой работы - привить навыки самостоятельного решения задач по проектированию технологических процессов изготовления деталей.
Задачей курсовой работы является разработка маршрута обработки двух - трех элементарных поверхностей детали (с использованием коэффициента уточнения) и составления общего плана обработки детали.
-
Тема курсовой работы.
Темой курсовой работы является разработка общего плана обработки детали с подробной разработкой для двух - трех элементарных поверхностей.
-
Состав и объем курсовой работы.
В курсовую работу входит: расчетно-пояснительная записка объемом 8 ...12 страниц рукописного текста, рисунков и таблиц.
Графическая часть курсовой работы включает 1 лист формата А1: чертеж детали; операционные эскизы на переходы элементарной поверхности детали; карта эскизов маршрута обработки.
-
Требования к оформлению расчетно-пояснительной записки и графической части курсовой работы.
Записка оформляется на листах формата А4 в соответствии с СТП МИП 02.001 - 88.
Графическая часть курсовой работы оформляется в соответствии с СТП МИП 02.001 - 88 и методических указаний.
-
Исходные данные.
Базовыми исходными данными являются: чертеж детали «втулка» с техническими условиями на ее изготовление и элементарная поверхность детали 28e8
.
Вид заготовки – прокат 34-0,1. Материал заготовки – A12B.
При анализе исходных данных устанавливаем, что в процессе механической обработки рассматриваемой поверхности допуск размера диаметра исходной заготовки з = 0,1 мм уменьшается до допуска размера диаметра детали д = 0.033 мм (соответственно возрастает точность размера). Общий коэффициент уточнения точности размера вычисляется по формуле:
o = з / д
где з - допуск размера исходной заготовки;
д - допуск размера детали
o = 0,1 / 0,033 = 3,03
Количество необходимых технологических переходов определяется по следующей формуле:
mm.n. = lgo / 0,46
где o - общий коэффициент уточнения точности;
mm.n. = 0,48 / 0,46 = 1,04
Принимаем mm.n. = 2
Допуск размера диаметра заготовки з = 0.1 мм соответствует примерно, 12-му квалитету точности, а допуск размера детали - 8-му квалитету. Следовательно, точность повышается на 4 квалитета. Для обеспечения заданной точности обработки должен быть правильно спроектирован технологический процесс с учетом экономической точности, достигаемой различными методами обработки.
1 переход – обтачивание - 10-й квалитет, Ra = 6…8 мкм
2 переход – шлифование – 8-й квалитет, Ra = 2…2,5 мкм
Допуск размера диаметра исходной заготовки з = 0,1 мм уменьшается после первого перехода – до 1 = 0,09 мм (10-й квалитет), после второго – до 2 = 0,054 мм (8-й квалитет).
Таким образом, первый переход обеспечивает уточнение
1 = з / 1
1 = 0,1 / 0,09 = 1,11
второй –
2 = 1 / 2
2 = 0,09 / 0,054 = 1,6
В результате сочетания предложенных способов обработки общий коэффициент уточнения o получается равным
o` = 1 2 3
o` = 1,11 1,6 = 1,77
Таким образом, намеченный технологический процесс обработки рассматриваемой поверхности гарантированно обеспечивает требуемую точность.
Исходя из требований чертежа детали, вида заготовки, маршрута обработки каждой поверхности детали разрабатывается общий план обработки детали в виде табличной формы.
Анализ теоретических схем базирования по переходам
для поверхности 28e8
.
| № | Наименование | Теоретическая схема базирования | Схема реализации или схема закрепления |
| 1 | Токарная с ЧПУ | ||
| 2 | Шлифование |
Формирование маршрута обработки
| № | Маршрут обработки | Ra, мкм | Квалитет | Маршрут обработки детали | |||
| 1 | 2 | 3 | 4 | ||||
| 1 | Точение | 6 | 10 | + | |||
| Шлифование | 2,5 | 8 | + | ||||
| Термическая обработка | - | - | + | ||||
| 2 | Точение | 6 | 10 | + | |||
| Шлифование | 2,5 | 8 | + | ||||
| Термическая обработка | - | - | + | ||||
| 3 | Сверление | 8 | 10 | + | |||
| Зенкерование | 2,5 | 10 | + | ||||
| 4 | Развертывание | 1,2 | 7 | + | |||
| Точение | 6 | 10 | + | ||||
| Термическая обработка | - | - | + | ||||
| 5 | Точение | 8 | 12 | + | |||
| Термическая обработка | - | - | + | ||||
| 6 | Точение | 8 | 12 | + | |||
| Термическая обработка | - | - | + | ||||
| Номер операции | 005 | 010 | 015 | 020 | |||
| Оборудование | 1E140 | 1П340ПЦ | 3М153Е | печь | |||
Характеристики
Тип файла документ
Документы такого типа открываются такими программами, как Microsoft Office Word на компьютерах Windows, Apple Pages на компьютерах Mac, Open Office - бесплатная альтернатива на различных платформах, в том числе Linux. Наиболее простым и современным решением будут Google документы, так как открываются онлайн без скачивания прямо в браузере на любой платформе. Существуют российские качественные аналоги, например от Яндекса.
Будьте внимательны на мобильных устройствах, так как там используются упрощённый функционал даже в официальном приложении от Microsoft, поэтому для просмотра скачивайте PDF-версию. А если нужно редактировать файл, то используйте оригинальный файл.
Файлы такого типа обычно разбиты на страницы, а текст может быть форматированным (жирный, курсив, выбор шрифта, таблицы и т.п.), а также в него можно добавлять изображения. Формат идеально подходит для рефератов, докладов и РПЗ курсовых проектов, которые необходимо распечатать. Кстати перед печатью также сохраняйте файл в PDF, так как принтер может начудить со шрифтами.















