145886 (728902), страница 7
Текст из файла (страница 7)
рис.16.2
17. Описание компоновки главного здания электростанции.
Главным корпусом тепловой электростанции называют главное ее здание, внутри которого размещается основное и связанное с ним вспомогательное энергетическое оборудование, осуществляющее главный технологический процесс преобразования теплоты сгорания топлива в электрическую энергию.
В главный корпус подается топливо, подлежащее использованию, вода для охлаждения отработавшего пара турбин и для других целей и т. д. Из главного корпуса отводятся охлаждающая вода после конденсаторов, дымовые газы парогенераторов, шлак и зола при использовании твердых топлив и т. Из главного корпуса выводится конечная продукция электростанции – электрическая энергия.
В соответствии с установкой в главном корпусе основных энергетических агрегатов парогенераторов и турбоагрегатов в состав главного корпуса входят два основных помещения (отделения): парогенераторное и турбинное (машинный зал) и, кроме того, так называемое промежуточное помещение между парогенераторным и турбинным помещениями для различного вспомогательного оборудования турбоагрегатов и парогенераторов. Промежуточное помещение выполняют многоэтажным (в виде «этажерки»); наличие его способствует устойчивости строительных конструкций главного корпуса, включающих, в частности, колонны наружных (фасадных) стен машинного зала и отделения парогенераторов.
В промежуточном помещении находятся деаэраторы с баками, иногда бункеры топлива и оборудование пылеприготовления. Оно выполняется или однопролетным в виде совмещенного бункерно-деаэраторного помещения. Кроме того, в нем размещают РОУ и БРОУ, трубопроводы, электрическое распределительное устройство собственного расхода и тепловые щиты, в том числе блочные щиты управления. Эти щиты размещают на основном уровне обслуживания, составляющем –10 м и совпадающем с таковым в помещениях турбоагрегатов и парогенераторов. Совмещенное бункерно-деаэраторное помещение входит в состав парогенераторного отделения
Парогенераторное помещение
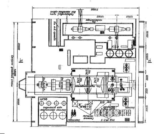
Компоновка энергоблоков 500 Мвт электростанции, использующей экибастузские угли включает парогенератор Т-образной конструкции, способствующей снижению скоростей дымовых газов в двух конвективных шахтах, и турбоагрегат 500 Мвт, установленный поперек машинного зала (рис. ).
Парогенератор опирается на самостоятельный фундамент. Бункеры и молотковые мельницы устанавливаются между парогенераторами, регенеративные воздухоподогреватели и конвейеры топливоподачи – в пристройке к помещению парогенератора. Ячейка энергоблоков имеет размер 66 м, пролет машинного зала 51 м.
Часть вспомогательного оборудования парогенераторов: воздухоподогреватели регенеративного типа, электрофильтры дымососы и дутьевые вентиляторы устанавливают в пристройке к помещению парогенераторов.
Компоновка помещения турбогенератора.
Решения, реализованные в компоновке основного и вспомогательного оборудования, способствуют обеспечению высоких показателей надежности, экономичности и ремонтопригодности турбоустановки.
Компоновка выполнена для условий работы турбоагрегата в моноблоке с одпокорпуспым котлом П-57 с укрупненным вспомогательным оборудованием, паропроводами свежего и вторичного пара. Турбина сопрягается с генератором ТГВ-500,
В основу выполненной компоновки заложены следующие основные принципы.
-
В ячейке размещается все оборудование турбоустановки, за исключением системы регенерации фильтров блочной обессоливающей установки, которая размещается у колонн ряда А (фасадной стены) в ремонтном пролете.
2. Для размещения оборудования при ремонте турбоагрегата предусмотрен дополнительный пролет за каждым нечетным блоком.
3. Основная отметка обслуживания турбоагрегата 10,2 м, глубина подвала 4,2 м.
4, Б машинном зале в этажерке у ряда А) размещаются из электрической части только аккумуляторные батареи - и установка ионного возбуждения, Размещение РУ( Н= =6 кВ и 0,4 кВ предусмотрено в бункерно-деаэраторной этажерке. Там же на отметке 10,2 м напротив основной ремонтной площадки между соседними энергоблоками размещается блочный щит управления.
5. Трассы кабельных коммуникаций приняты проходными ~22 м) и предусмотрены с обеих сторон фундамента турбоагрегата.
На рис. ( ) показаны план машинного зала для головного образца турбоустановки К-500-240-2.
Компоновка турбоустановки поперечная, т. е. продольная ось турбоагрегата перпендикулярна оси колонн главного корпуса ГРЭС. Ось турбоагрегата совпадает с осью котла. Такое расположение турбоагрегата обеспечивает наиболее короткие связи с котлом по свежему и вторично перегретому пару, питательной воде, симметричность основных трубопроводов и отсутствие неуравновешенных поперечных компенсационных усилий на корпусе турбины. Относительно оси турбины компоновка несимметричная: слева от оси по виду со стороны ряда Б в сторону ряда А – 1,5 пролета, справа – 2,5 пролета
Слева от оси турбины расположены: конденсатные насосы первой и второй ступеней; блочная обессоливающая установка; эжекторная группа; подогреватели низкого давления (ПНД-1 – ПНД-5); сетевые подогреватели (основной и пиковый бойлеры с охладителем дренажа); дренажные насосы ПНД и насосы сетевых подогревателей.
Справа от оси турбины размещены: питательная группа (питательные и бустерные насосы); подогреватели высокого давления (ПВД-7 – ПВД-9); оборудование масляного хозяйства турбины и генератора.
Для данной компоновки принята ячейка машинного зала размерами 5148 м, что соответствует удельной площади 4,54 м'/Мвт
Значительная насыщенность ячейки оборудованием потребовала многоярусного размещения узлов и трубопроводов установки и ремонтных площадок. Примерами такого размещения могут служить: маслохозяйство турбоустановки, расположенное под ремонтной площадкой отметки 10,2 м, конденсатные дренажные, сетевые и другие насосы со стороны ПНД под площадкой отметки 5,6 м, на которой устанавливаются эжекторы пусковые, сальниковый и другие.
18. Мероприятия по охране труда и пожарной профилактике по котельному или турбинному отделению котлотурбинного цеха.
Охраной труда называют систему организационных и технических мероприятий, осуществляемых на производстве для защиты здоровья и жизни работников от вредных условий, несчастных случаев и травматизма.
Охрана труда состоит из двух самостоятельных разделов промышленной санитарии (санитарно гигиенические мероприятия) и техники безопасности (мероприятия по технической охране труда).
Промышленная санитария включает мероприятия по борьбе с вредными воздействиями на организм человека промышленных ядов, газов, пыли, производственного шума, а также по рациональному устройству отопления, вентиляции и освещения.
Техника безопасности включает в себя мероприятия по защите работников от несчастных случаев, возникающих на производстве, а также по предупреждению этих случаев.
Промышленная санитария. Для снижения температуры воздуха в помещениях и на рабочих местах кроме общей вентиляции устраивают местную вентиляцию, подавая к рабочим местам свежий и более холодный воздух, увлажняемый при необходимости разбрызгиваемой водой. Для работы в барабанах котлов и других местах с высокой температурой применяют специальные душирующие установки.
При температуре выше 40-45 С и работе средней тяжести независимо от влажности и скорости движения воздуха охлаждение тела человека не наступает, что может вызвать тепловой удар.
Поэтому в барабанах остановленных котлов, в которых относительная влажность очень высока, запрещается работать при температуре выше 45 С, а при более низких температурах после 20 мин работы устанавливается отдых вне барабана продолжительностью также 20 мин.
Работа в топках и газоходах при температуре на рабочих местах выше 60 С не допускается. При более высоких температурах работа должна производится в теплой спецодежде и валенках.
Освещенность рабочих мест. Напряжение в нормальной осветительной сети равно 127 или 220 В, оно опасно для здоровья и жизни людей, попавших под напряжение. Поэтому напряжение местного освещения, аппаратуры, приборов, органов управления, водомерных колонок и других элементов паровых котлов, которые обслуживаются людьми в непосредственной близости от осветительной аппаратуры, должно быть не более 36 В.
При работах в барабанах, топках, газоходах котлов, а также в мельницах, шахтах, коробах, воздухопроводах и других тесных местах с хорошей проводимостью тока человек может попасть под ток. В таких случаях применяют освещение напряжением не выше 12 В, питающееся от специальных трансформаторов. Для освещения указанных мест служат переносные лампы со шнуром длиной 25-40 м.
Условия работы в котельных цехах электростанций требуют от каждого рабочего знания правил техники безопасности и их беспрекословного выполнения. Несчастные случаи с людьми происходят главным образом из-за незнания правил или их нарушений. Поэтому все рабочие котельных цехов проходят специальное обучение правилам безопасности, которое включает в себя следующие формы: вводный инструктаж; индивидуальное обучение по инструкциям и пособиям; инструктаж перед началом работы; периодический инструктаж по общим вопросам техники безопасности и инструктаж на рабочем месте; организованное обучение на курсах; проработка отдельных вопросов техники безопасности на собраниях.
Пожарная безопасность. Противопожарные мероприятия при ремонте оборудования имеют профилактический характер. К ним относятся, в основном, режимные мероприятия, устраняющие непосредственные или возможные причины возникновения пожаров.
Места производства электро-, газосварочных и других огневых работ должны быть согласованы с пожарной охраной, обеспечены средствами пожаротушения (огнетушитель или ящик с песком, лопата и ведро с водой). При наличии вблизи или под местом этих работ сгораемых конструкций (лесов, подмостей, настилов и т.п.) последние должны быть надежно защищены от возгорания металлическими экранами или политы водой, а также должны быть приняты меры против разлета искр и попадания их на сгораемые конструкции и нижележащие площадки.
Ремонтные площадки должны содержаться в чистоте. Не допускается загромождение проходов и подступов к пусковым и электрораспределительным устройствам, а также к пожарному инвентарю.
Ветошь, промасленные обтирочные материалы после употребления следует складывать в специально предназначенные для них металлические ящики. Случайно пролитые горючие жидкости (керосин, масла и т.д.) необходимо немедленно собрать и удалить с места производства работ.
Бензин, керосин и смазочные материалы должны храниться в металлической таре, запирающимся металлических шкафах. Их количество не должно превышать суточной нормы. Допускается только раздельное хранение горючих жидкостей, баллонов с кислородом и барабанов с карбидом кальция в безопасных кладовых.
Различные нагревательные приборы (отопительные, производственные) должны содержаться в исправности, а после окончания работы приводиться в такое состояние, чтобы они не могли послужить причиной возникновения пожара. Особенно тщательно надо следить за состоянием электропроводок и предотвращением коротких замыканий, при которых нередко возникают пожары.
Средства пожаротушения должны храниться на видных, легкодоступных местах и содержаться в постоянной готовности. Весь персонал должен знать местонахождение средств пожаротушения и уметь приводить их в действие.
Организационные мероприятия, обеспечивающие безопасность работ. К числу мероприятий, обеспечивающих безопасность работ при ремонте теплосилового оборудования электростанций, относятся: оформление работы нарядом или распоряжением; соблюдение специальных правил допуска к работе; осуществление регламентированного надзора во время работы; соблюдение правил перевода на другое рабочее место; оформление перерывов и окончания работ.
Нарядом называют письменное распоряжение на работу, определяющее место, время, условия проведения работы и необходимые меры безопасности, а также состав бригады и фамилии работников, ответственных за безопасность работ. Перечень работ выполняемых по нарядам, устанавливается на каждой электростанции.
Право выдачи нарядов и распоряжений на ремонт котельного оборудования предоставлено начальникам котельных (котлотурбинных) цехов и их заместителям, инженерам и мастерам этих цехов, а также при необходимости начальникам смен станции, если они уполномочены распоряжением по электростанции.
После получения наряда ответственный руководитель работ выполняет общий инструктаж членов бригады и осуществляет допуск к работе. Производитель работ допускает к работе и инструктирует каждого члена бригады на его рабочем месте.
Точное выполнение перечисленных организационных мероприятий обеспечивает безопасное проведение работ на действующем оборудовании или вблизи него.
18.1.Мероприятия по охране труда.
Техника безопасности при производстве ремонтов оборудования турбинных цехов.
Важными мероприятиями при подготовке и проведению ремонтов являются мероприятия по технике безопасности. Анализ несчастных случаев , имевших место при ремонтах оборудования, свидетельствует о том, что преобладающее большинство несчастных случаев является результатом невыполнения установленных Правил по технике безопасности вследствие неудовлетворительного знания персоналом этих правил, а в некоторых случаях из-за пренебрежительного отношения к этим правилам как со стороны рабочих, так и инженерно-технических работников. Для ликвидации несчастных случаев необходимо безусловно выполнять все технические и организационные мероприятия, направленные на обеспечение безопасной работы персонала.















