148040 (692171)
Текст из файла
МИНИСТЕРСТВО СЕЛЬСКОГО ХОЗЯЙСТВА РОССИЙСКОЙ ФЕДЕРАЦИИ
ФГОУ ВПО КОСТРОМСКАЯ ГСХА
Кафедра "Детали машин"
Расчётно-графическая работа
на тему "Расчёт конструкции с передачей винт - гайка"
Выполнил: студент 3 курса 11 группы
факультета механизации с/х
Горбунов Ю.Н.
Принял: Скрипкин С.П.
"Кострома 2006"
Содержание
Задание №11
1. Общие сведения
2. Критерии работоспособности передачи винт-гайка
3. Определение размеров винта и гайки
4. Проверка соблюдения условия самоторможения
5. Определение кпд винтовой пары передачи винт-гайка
6. Проверка винта на устойчивость
7. Расчет элементов винта и гайки на прочность
8. Конструирование и расчёт дополнительных элементов передачи винт-гайка
Задание №11
Спроектировать (рассчитать и выполнить эскиз) съемник для снятия напрессованных втулок. В результате расчета определить: размеры винта, высоту гайки, наружный диаметр гайки, длину рукоятки, размеры траверса и лап съемника. Определить КПД винтовой пары.
F = 4.5 kH,A = 300 mm,D = 250 mm. Материал гайки - бронза.
Профиль резьбы - трапецеидальная, материал винта Сталь 40.
1. Общие сведения
Основное назначение передачи винт-гайка преобразование вращательного движения в поступательное. Примером использования передачи могут служить механизмы в домкратах, прессах, металлорежущих станках, сельскохозяйственных машинах, грузоподъемных механизмах.
Передачи винт-гайка бывают с трением скольжения, с трением качения и весьма разнообразны по конструктивным решениям. В домкратах и прессах гайка обычно неподвижна, а винт совершает вращательное и поступательное движения. Встречаются домкраты с вращающейся гайкой, в этом случае винт совершает только поступательное движение.
В передачах винт-гайка применяют в основном стандартные трапецеидальные и упорные резьбы. Резьба с прямоугольным профилем не стандартизирована. Эта резьба обеспечивает некоторый выигрыш в силе и более высокий КПД, но она нетехнологична и прочность её витков ниже, чем у трапецеидальной и упорной резьбы. Кроме того, у прямоугольной резьбы при износе получается неустранимый "мертвый ход", тогда как у трапецеидальной резьбы его можно ликвидировать, используя стяжные гайки. Для изготовления винтов обычно применяют среднеуглеродистые стали марок Ст.4, Ст.5, Сталь 40, Сталь 50. Винты из легированных сталей с термической обработкой предназначены для передач, работающих при интенсивных перемещениях. В этих случаях применяют Сталь 40Х, Сталь 40ХН, Сталь 65 и др.
Для гаек в передачах с повышенным износом применяют оловянистые бронзы марок Бр. ОФ10-05, Бр. ОСЦ6-6-3, Бр. ОФ-10-1. При работе с большими перерывами и умеренными нагрузками используют антифрикционный чугун АСЧ или АВЧ, а также серый чугун СЧ-12, СЧ-15, СЧ-18, СЧ-21.
2. Критерии работоспособности передачи винт-гайка
В большинстве случаев основным критерием работоспособности винтовой пары является её износоустойчивость. Расчет по этому критерию сводится к ограничению давления между поверхностями резьбы винта и гайки.
Указанный расчет выполняют в качестве проектного, служащего для определения диаметра винта.
Вторым критерием работоспособности служит прочность винта, который в большинстве случаев работает на сжатие и кручение. Для винтов сжатия к числу критериев работоспособности так же следует отнести их устойчивость, определяемую коэффициентом запаса устойчивости (Sус).
К критериям работоспособности винтовых механизмов относятся прочность гаек, рукояток, штурвалов, винтов для стопорения гаек и других, дополнительных элементов.
3. Определение размеров винта и гайки
Расчет передачи винт гайка начинают с определения среднего диаметра резьбы (d2) по критерию износоустойчивости.
(1)
где
F - расчетное усилие, Н;
H = Hг / d - коэффициент высоты гайки, Нг - высота гайки, мм;
Рекомендуемое значение коэффициента высоты гайки 1,2...2,5.
h = h / P - коэффициент высоты резьбы, h = 0,5;
h - рабочая высота профиля резьбы, мм.;
Р - шаг резьбы, мм;
[р] - допускаемое давление в резьбе, МПа. [р] = 12 МПа.
мм. (2)
Полученное значение среднего диаметра резьбы d2 корректируется.
Параметры нестандартной прямоугольной (квадратной) резьбы согласовываются с возможностью ее изготовления на токарно-винторезных станках, поэтому шаг нарезки полученный по рекомендации: P = 0.22d2, следует скорректировать со значением шага любой стандартной резьбы (Приложение).
Принимаем: Р = 3, тогда
P = 3; d2 = D2 = 28,5;
Высоту гайки Н определяют по формуле (2), в зависимости от принятого значения коэффициента высоты гайки - H.
Нг = H d2; Нг = 0,5 28,5 = 57 мм.
Число витков резьбы в гайке вычисляется по выражению:
Z = Hг / P; Z = 57/3 = 19.
Z < 10, следовательно выбранная резьба удовлетворяет нас.
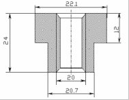
Рис.1 Эскиз гайки с размерами.
Высота буртика гайки h (рис 1) принимается h = (0.5...0.6) Нг: h = 11.7, мм.
Нижняя часть гайки работает на растяжение, поэтому диаметр Dг определяется формулой
(3)
где [р] = 640 МПа.
, мм.
Диаметр буртика гайки Dг1 определяется по напряжению смятия силой F, действующей по оси винта
(4)
для бронзовых гаек [cм] = 70 - 80 МПа.
, мм.
4. Проверка соблюдения условия самоторможения
Для большинства механизмов, использующих передачу винт-гайка, является обязательным удовлетворение условия самоторможения:
,
где - угол подъема винтовой линии по среднему диаметру;
- угол трения винтовой пары.
Угол трения определяется из соотношения:
= arc tg fд
где fд - действительный коэффициент трения в винтовой паре.
Действительный коэффициент трения для сочетания: сталь по стали принимают - 0.15, сталь по чугуну - 0.3, сталь по бронзе - 0.12.
При типах резьб отличных от прямоугольной (квадратной), вместо коэффициента fд подставляют условный (приведенный) коэффициент трения.
,
где
- угол между боковой стороной профиля резьбы в направлении действия нагрузки и перпендикуляром к оси винта.
Для резьб, отличных по профилю от прямоугольной, используют понятие приведенного угла трения:
, где fпр = 1,03fД
;
Для всех видов резьб угол подъема нарезки резьбы определяется по соотношению:
(5)
где Р - шаг резьбы, мм;
d2 - средний диаметр резьбы, мм.
(6)
Для самотормозящих винтов величина угла трения винтовой пары находится в пределах 5°...7°. Тогда, чтобы с гарантией соблюсти условие самоторможения - (), разность между и должна составлять не менее 1°.
1,920 < 6,84 - условие выполняется.
5. Определение кпд винтовой пары передачи винт-гайка
Определение КПД винтовой пары для прямоугольной резьбы проводится по уравнению:
(7)
Для резьбы другого профиля вместо
подставляется
.
6. Проверка винта на устойчивость
Проверка сжатых винтов на устойчивость сводится к определению коэффициента запаса устойчивости (n). Гибкость винта зависит от его диаметра, длины и определяется по формуле:
, (8)
где - гибкость винта;
l - расчетная длина винта, т.е. расстояние от середины гайки до опорной поверхности головки домкрата при вывернутом до отказа винте.
l = Нб + Hг / 2, l = 300 + 57/ 2 = 328,5 мм.
i - радиус инерции для круглого сечения (по внутреннему диаметру резьбы d1).
(9)
где Iпр - приведённый момент инерции круглого сечения
(10)
- коэффициент приведения длины винта, зависит от расчётной схемы винта ( = 2 - домкраты, съемники, струбцины; = 1-ходовые винты и валики).
, мм4.
, мм.
;
В зависимости от гибкости винта () или его приведённой длины ( l), критическая сила (нагрузка) на винт определяется по формулам Эйлера или Ясинского. Если < 100 или ( l) < 25 d1, то критическую силу определяют по формуле Ясинского:
(11)
где a и b - коэффициенты, принимаемые в зависимости от материала винта. Для Сталь 45: a = 450МПа, b = 1,67МПа.
, (Н).
Запас устойчивости винта определяется по уравнению:
Sус = Fкр / F [Sус] (12)
где Sус должен составлять не менее 2,5
Sус = 164502,667/20000 = 8,225 > 2,5.
Следовательно, выбранный диаметр винта удовлетворяет нас.
7. Расчет элементов винта и гайки на прочность
Винт в передаче винт-гайка испытывает напряжения сжатия или растяжения и кручения. Для оценки величины этих напряжений следует определить величину эквивалентного напряжения и сравнить ее с допускаемым напряжением растяжения:
(13)
где р - напряжения растяжения или сжатия, определяемые формулой
(14)
, МПа.
Для подсчета напряжений кручения, связанных с моментом трения в резьбе, используется следующая зависимость
(15)
где Ттр - момент трения в резьбе, подсчитывается по формуле:
Ттр = 0,5 d2 F tg ( + ) (16)
Ттр = 0,5 27 20000 tg (1,92 + 6.84) = 43916,617 Нмм.
, МПа.
, МПа.
Допускаемые напряжения сжатия или растяжения берутся из справочника [1, т.1].
Если в передаче гайка изготовляется из менее прочного материала чем винт, то резьбу в гайке следует проверить на срез по выражению:
(17)
где Н - высота гайки, мм.
Кн - коэф. неравномерности распределения нагрузки по виткам резьбы, принимается равным 0,6...0,7.
Кn - коэф. полноты резьбы, (принимается по данным таблицы 6).
[ср] - допускаемое напряжение среза, подсчитывается по выражению
[ср] = (0,6…0,65) (в / [S]),
где в - временное сопротивление материала гайки, (принимается по таблице 7 МУ или по справочнику [2, т.1]).
[ср] = 0,6 (/) = МПа.
Т. е. условие ср [ср] выполняется.
8. Конструирование и расчёт дополнительных элементов передачи винт-гайка
8.1 Выбор размеров головки винта
Размеры подъемной головки винта (Рис.3) назначаются конструктивно:
Характеристики
Тип файла документ
Документы такого типа открываются такими программами, как Microsoft Office Word на компьютерах Windows, Apple Pages на компьютерах Mac, Open Office - бесплатная альтернатива на различных платформах, в том числе Linux. Наиболее простым и современным решением будут Google документы, так как открываются онлайн без скачивания прямо в браузере на любой платформе. Существуют российские качественные аналоги, например от Яндекса.
Будьте внимательны на мобильных устройствах, так как там используются упрощённый функционал даже в официальном приложении от Microsoft, поэтому для просмотра скачивайте PDF-версию. А если нужно редактировать файл, то используйте оригинальный файл.
Файлы такого типа обычно разбиты на страницы, а текст может быть форматированным (жирный, курсив, выбор шрифта, таблицы и т.п.), а также в него можно добавлять изображения. Формат идеально подходит для рефератов, докладов и РПЗ курсовых проектов, которые необходимо распечатать. Кстати перед печатью также сохраняйте файл в PDF, так как принтер может начудить со шрифтами.















