147986 (692134), страница 4
Текст из файла (страница 4)
b1
Б
Б
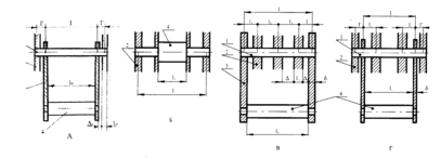
Рисунок П.2 Эскизная компоновка подвески (а), расчетные схемы (б, в, г) и схемы подвесок типа 1 (А), 2 (Б), 3 (В), 4 (Г): 1-ось блоков, 2-блок, 3-серьга, 4-траверса.
Рисунок П.5 Типовые графики загрузки механизма подъема груза: а, б, в – соответственно для легкого, среднего и тяжелого режимов работы
Рисунок П.6 График загрузки электродвигателя механизма подъема в течении цикла
Рисунок П.7 Механизмы передвижения тележки с центральным расположением редуктора типа ВК (а) и ВКН (б): 1-электродвигателб, 2-муфта с тормозным шкивом, 3-вертикальный редуктор, 4-муфта, 5-ходовое колесо, 6-рельс, 7-тормозной шкив.
1 В схеме на рис. 1 показать свой вариант полиспаста. Схема механизма подъема и варианты полиспастов приведены на рис. П.1.
1 Эта формула справедлива при
. При других значениях количество слагаемых в числителе равно кратности полиспаста.
1 Указать, при каком режиме работы. Выбрать канат по условию
желательно при маркировочных группах 1568 и 1764 МПа.
2 Выбрать из ряда 260, 335, 400 и 510 мм, по условию
1 Для стали по стали
МПа
2 Для метрической резьбы из конструктивных соображений
1 Для механизма подъема
, передвижения
2 Выбрать по условиям
(крюка),
1 На рис. 2 показать свой вариант подвески (рис.П.2), расчетные схемы элементов и эпюры механизмов
2 Рассчитать для заданной подвески. Размеры принять по ГОСТ 6636-69 [3]
3 Здесь
- диаметр шейки крюка
4 Длина зависит от типа крюковой подвески (рис.2): с одной стороны
, с другой для третьего и четвертого типа подвесок здесь надо разместить блоки; принимать зазор между блоками
, между блоками и серьгой
мм.
1 Указать для какого крана принимаем «
»
1 При отсутствии заедания
= 60…65 МПа
2 Принять большее значение [3]. Для подвески II типа – кратное «5».
1 Можно применять тот же материал, что для траверсы. Если принята другая сталь, привести расчет
2 Рассчитать для заданного типа подвески. Привести расчетную схему.
3 Расчет выполнить для наибольшего момента; результат округлить до кратного пяти.
1 Согласовать размерность скорости и диаметров
1 Если
мин-1, расчет выполнить при 10 мин-1.
2 Указать при каком режиме работы и сроке службы в часах
3 Выбрать при условиях
. Или d=dц для подвески II типа.
4 См. расчет траверсы
1 Здесь
- больше из
и
2 Указать, что находится в контакте с серьгой
1 Указать при каких подшипниках.
2 Выбрать двигатель MTF [1, табл.ІІІ, 3.5] или МТН [2, табл.2]. По условию
(ближайшее меньшее). Для легкого режима принять ПВ = 15, среднего 25, тяжелого 40%
3 Диаметр барабана
- см. п.2.5. Согласовать размерности скорости и диаметров.
1 Выбрать редуктор Ц2 [1, табл.ІІІ. 4.2], [2, табл.4] или типа РМ. По условиям
,
,
- ближайшее большее к
1 Если условие
не выполняется, принять более мощный редуктор. Здесь указать «удовлетворяет» или «не удовлетворяет».
2 Допускается
.
1 Выбрать тормоз ТКГ [1, табл. ІІІ.5.13] или ТКТ [1, табл. ІІІ.5.11]. По условию
.
1 Выбрать по условию
, диаметр
согласовать с диаметром
муфты с тормозным шкивом,
с валом редуктора.
2 Выбрать по условию
, диаметр
согласовать с диаметром вала двигателя.
1 Выбирать по условию
.
2 Значения относительной массы приведены на оси ординат (рис. П. 5).
3 На рис. 1.2 выбрать кривую, соответствующую
.
1 Рассчитать аналогично для масс
и
, ТП, ТОП, J.
2 Принимать
3 Рассчитать аналогично при
и
, tП, tОП.
1 Если
, двигатель удовлетворяет условию нагрева
2 Сравнить с рекомендуемым [1, табл.1.25]. Для магнитных кранов
. Здесь t – меньшее из времени пуска (tП).
3 Значение
и
- см. п.4.3.
1 Значение
,
см. п.2
.3 Определяется по осям крайних блоков крюковой подвески
2
3 Выбрать длину L из ряда 1200, 1300, 1420, 1800 и 2300 мм по условию LL’
1 Здесь F – см. п.2.
2 Принять большее из двух значений
3 См. рис. П.3. Выполнить в масштабе на миллиметровке.
4 Выбрать шарикоподшипник [2, табл. 9] или роликоподшипник [2, табл. 10].
1 Размеры l3, l9, b2 – см. выбор редуктора, толщина буртика a1=5…15 мм.
1 1 См. п. 2
1 Определяется по наибольшему
1 Эквивалентная и приведенная нагрузка определяются по методике п. 3.4. Здесь
,
для роликоподшипника.
2 Согласовать размерности скорости и диаметров.
3 Здесь
- см. п.2.
1 Число планок не менее двух
.
2 Принять
- см. рис. 2.5. [1]. Если
, увеличить число планок
.
1 В этом случае толщина д.б. не менее 12 мм
2 Принять большее из двух значений
3 Компоновку выполнить в масштабе. Эскиз барабана – см. рис. П.4
4 Указать тип редуктора (см. п.4.2)
5 Выбрать шарико- или роликоподшипник [2, табл. 9 или 10].
1 Размеры
и
- см. выбор редуктора, зазор
мм, С – см. [2, табл. 12].
1 Определяется по большему
.
1 Здесь М – большее значение из
и
.
1 Здесь рассматривается механизм с редуктором ВК (см. рис. П.7, а). Можно применить механизм с редуктором ВКН (навесного типа) – см. рис. П.7, б.
1 Выбрать при скорости
.
2 Указать вид подшипника.
1 Указать, с плоской или выпуклой головкой
1 Выбрать по условию
1 Выбрать в зависимости от применяемой схемы механизме редуктора ВК [ 5, прил.LXIV] или ВКН (табл.П.11 или [5, прил.LXII] по условиям
,
- ближайшее к передаточному отношению
,
диаметр выходного вала [2, табл.27 или 28], [5, прил. LXI или LXIII].
1 Выбрать по условию
, диаметры согласовать с диаметрами двигателя и редуктора [1, табл. III.5.6]. (табл. П.6, П.7).
1 Это случай крана с грузовым электромагнитном; для крана без магнита
.
2 Можно выбрать тормоз ТКТ [1, табл. ІІІ.5.11] или ТКГ [1, табл. ІІІ.5.13] по условию
.
1 Сравнить с рекомендуемым [1, табл. 1.19]. Если результат существенно отличается, принять более мощный двигатель и повторить расчет по п.4. Затем проверить пригодность ранее принятого редуктора и тормоза.
2 Сравнить с
.
3 Сравнить с ранее принятым
.
1 По методике номинального режима работы [5. с.112]. Можно выполнить по методике, рассмотренной в разделе «Механизм подъема».
1 Выбрать по [1, рис. 1.4 или 1.5].
2 Принимаем
м.
3 Сравнить
и
принятого двигателя. Если
, двигатель удовлетворяет условием нагрева.
4 По [1, рис. 1.16] указать по какой кривой определяется
.
1 См.п.2
2 Выполнить проверку аналогично п.5.1.5 «Механизм подъема»















