147247 (691814), страница 2
Текст из файла (страница 2)
Определение расчётной годовой программы цеха.
| Судно - представитель | |
| танкер | |
| ΣТi | 26845170 |
| N на 5 лет | 552704 |
| N на 1 год | 10 |
,
где
общая трудоёмкость изготовления всех судов;
трудоёмкость изготовления судна представителя.
1.3 Пересчёт трудоёмкости для изготовления узлов и секций на судно представитель
, где
трудоёмкость изготовления узлов и секций судна прототипа
(
90091 чел.-ч);
чистый вес судна прототипа
(
(т));
чистый вес судна представителя.
552704 чел.-ч.
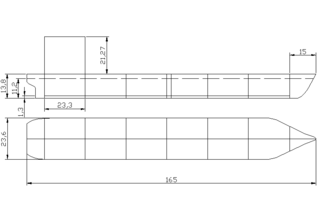
Рис.1.4. Эскиз корпуса судна.
Разбивка корпуса судна на сборочные единицы.
Высота борта судна определяется по формуле:
[9, стр.174];
13.8 м.
Таблица 1.4.
Спецификация секций
| Наименование | Размеры | Количество | Масса на все секции | Масса одной | Труд-ть на все | Труд-ть на 10 судов | Процент от общей массы и трудоёмк | ||||||
| Днищевая | 23,3*23,6*1,3 | 6 | 1727,2 | 287,9 | 18018,15 | 180181,5 | 20 | ||||||
| Бортовая |
| 23,3*9,9*0,4 | 12 | 1209,0 | 100,8 | 12612,705 | 126127,1 | 14 | |||||
| Палубная | 23,3*11,8 | 6 | 1036,3 | 172,7 | 10810,89 | 108108,9 | 12 | ||||||
| Переборки | 19,1*7 | 7 | 431,8 | 61,7 | 4504,5376 | 45045,38 | 5 | ||||||
| Носовая объемная | 15*23,6*11,2 | 4 | 1209,0 | 302,3 | 12612,705 | 126127,1 | 14 | ||||||
| Кормовая объемная | 10*23,6*11,2 | 4 | 1209,0 | 302,3 | 12612,705 | 126127,1 | 14 | ||||||
| Объемные секции рубки | 23,3*11,8*21 | 4 | 1381,8 | 345,4 | 14414,52 | 144145,2 | 16 | ||||||
| Секции надстройки | 4*16*6 | 1 | 345,4 | 345,4 | 3603,6301 | 36036,3 | 4 | ||||||
| Тавровый набор |
|
| 86,4 |
| 900,90752 | 9009,075 | 1 | ||||||
|
| ∑ |
| 44 | 8636,0 |
| 90090,752 | 900907,5 | 100 | |||||
Примечание. Разбивку секций судна по массе определяем исходя из курса проектирования судов и конструкции корпуса судна [10].
2. Основные положения по организации производства и технологии изготовления типовых узлов и секций
Технология изготовления судовых корпусных конструкций и организация производства в сборочно-сварочных цехах разрабатываются на основе анализа и обобщения опыта зарубежного и отечественного сварочного производства. Так, при постройке новых и реконструкции старых сборочно-сварочных цехов, многие зарубежные верфи осуществляют их планировку и оборудование по направлениям, способствующим последовательному расположению рабочих мест по ходу изготовления узлов, секций и блоков секций, прямоточному и непрерывному движению их от мест хранения или изготовления к местам дальнейшей обработки, сборки или монтажа, максимальной механизации производственных операций, созданию специализированных поточных линий, изготовлению деталей и сборке узлов и секций в системе жестких допусков, максимальной механизации и автоматизации внутризаводского и цехового транспорта, внедрению способов односторонней сварки и рационализации технологии сварки. При этом предусматривается возможность постройки судов из крупных секций и блоков массой от 100 до 600 т, для чего необходимо наличие на верфях кранов большой грузоподъемности.
Основные мероприятия по технологии и организации производства сварных конструкций в сборочно-сварочных цехах судостроительных заводов обусловлены следующими требованиями:
сборку и сварку узлов и секций необходимо производить на специализированных участках, механизированных линиях (в зависимости от степени механизации проектируемого цеха объем узловой сборки должен быть максимально увеличен, секции корпуса максимально укрупнены, количество операций (как производственных, так и вспомогательных) необходимо по возможности сократить, оборудование рабочих мест должно обеспечивать быструю его подготовку и настройку с учетом сборки секций всех типов судов, характерных для данного класса судостроительного предприятия, и предотвращения сварочных деформаций, технологическая документация должна быть четкой и простой, объем механизированных сварочных работ по трудоемкости предусматривается не менее 90%, на участках, механизированных линиях должны быть достигнуты постоянство номенклатуры и конструктивное сходство изделий, однородность работ и специализация рабочих бригад, а также ритмичность работы линии; сборочно-сварочные работы должны выполняться по графикам, согласованным с работой смежных участков, со стапельным графиком и графиком работы корпусообрабатывающего цеха; условия труда должны предусматривать охрану здоровья и работоспособности людей.
Основные организационные и технологические мероприятия определяют состав и специализацию участков механизированных линий сборочно-сварочного цеха.
Технологические линии организуются в соответствии с классификацией узлов и секций по технологическим группам, а также согласно данным маршрутно-технологических карт сборки и сварки узлов и секций по типовым технологическим группам.
Принципиальная схема потоков изготовления узлов и секций в сборочно-сварочном цехе верфи показана на рис. 2.1.
Технологический поток сборки и сварки секций начинается со склада корпусных деталей, в котором детали скомплектованы по узлам и секциям. Готовые комплекты деталей подают на соответствующие механизированные участки.
Сборка и сварка набора в секциях осуществляется раздельно; тавровые балки собирают и сваривают на станках типа СТС-2М; сборку и сварку секций с криволинейными обводами производят на механизированных универсальных постелях. При этом для определения высоты стоек или обводов лекал, а также для проверки размеров и формы секций используют информацию, полученную с помощью ЭВМ.
Широко применяют в сборочно-сварочных цехах механизмы и устройства, позволяющие фиксировать при сборке взаимное расположение элементов конструкций и значительно сокращающие (а иногда и исключающие) сборочные электроприхватки. При изготовлений корпусных конструкций в сборочно-сварочных цехах широко применяют автоматическую и полуавтоматическую сварку (в пределах 80:—85% от общего объема сварки по массе наплавленного металла), включая сварку в углекислом газе и одностороннюю автоматическую сварку полотнищ с двусторонним формированием шва. Крупногабаритные конструкции (например, литосварные штевни, кронштейны, литокованосварные баллеры рулей и др.) сваривают автоматами электрошлаковым способом.
Узлы и секции серийных судов изготовляют в сборочно-сварочных цехах с минимальными допусками, что позволяет значительно сократить пригоночные работы при сборке блоков и постройке судна на стапельных местах.
Контроль качества сварных изделий и швов выполняют с использованием специальной аппаратуры (ультразвуковых дефектоскопов или электронно-оптических приборов, проецирующих изображение проверяемых изделий или участков на экран телевизора).
В сборочно-сварочных цехах судостроительных предприятий, исходя из однородности работ и типов изготовляемых узлов и секций, организуют соответствующие участки, за которыми закрепляют постоянную номенклатуру работ и необходимый состав работающих; предусматривают также вспомогательные участки, включая ремонтное хозяйство и кладовые (инструментальную, материальную и электродную).
Рис.2.1. Схема технологических потоков изготовления узлов и секций в сборочно-сварочном цехе.
3.Расчет трудоемкости работ цеха, количества рабочих мест, оборудования и работающих
3.1 Режим работы цеха и фонды времени работы оборудования и рабочих
Режим работы верфи характеризуется следующими основными факторами: прерывное или непрерывное производство, число рабочих дней в неделе, продолжительность рабочей недели (в часах), число праздничных дней в году, число смен работы в сутки, продолжительность рабочей смены (в часах), принятый график работы. Судостроительные верфи относятся к прерывному производству.
Принятые фонды времени (двухсменный режим работы),[5, стр.52]:
-
Фонд времени работы одного сборочно-сварочного рабочего места (стенда):
Фр.м. =4140 ч/год;
-
Действительный годовой фонд времени оборудования:
Фоб.=3935 ч/год;
-
Действительный годовой фонд рабочего времени сварщиков:
Фсв.=1530 ч/год;
-
Действительный годовой фонд рабочего времени сборщиков корпусов металлических конструкций:
Фсб.=2070 ч/год;
Примечание. Действительный годовой фонд времени рабочих взят для Крайнего Севера и
местностей, приравненных к районам Крайнего Севера, при дополнительных отпусках 12 дней.
3.2. Расчёт и оптимизация количества рабочих мест
,
где
фонд времени одного рабочего места;
число рабочих в бригаде (одновременно выполняющих операции).
трудоёмкость на годовую программу по операциям:
,
где
- трудоёмкость изготовления I-ых секций прототипа по















