126357 (691025), страница 2
Текст из файла (страница 2)
Рис. Термопреобразователь марки ТПУ 0304.
TP Термопреобразователи универсальные ТПУ 0304 (далее – термопреобразователи) предназначены для измерения и непрерывного преобразования температуры, твердых, жидких, газообразных и сыпучих веществ в унифицированный выходной сигнал постоянного тока 4÷20 мА.
Термопреобразователи применяются в различных технологических процессах в промышленности и энергетике.
В состав термопреобразователей входят:
первичный преобразователь (термопреобразователи сопротивления (ТС) по ГОСТ 6651-94 или DIN № 43760 или преобразователи термоэлектрические (ТП) по ГОСТ Р 8.585-2001) и преобразователь измерительный типа ИП 0304.
Питание термопреобразователей ТПУ 0304 выполняется:
от источника постоянного тока напряжением 15 ÷27 В (21 ÷37 В) для ТПУ 0304/М1, 15 ÷36 В для ТПУ 0304/М2; питание взрывозащищенных ТПУ 0304Ех с маркировкой взрывозащиты ЕхiaIICT6 Х (размещение во взрывоопасной зоне) должно осуществляться от источника с выходной искробезопасной цепью уровня «ia» и электрическими параметрами, соответствующими электрооборудованию подгруппы IIC, напряжением 24 В.
по числу преобразуемых входных и выходных сигналов – одноканальными;
по зависимости выходного сигнала от входного – с линейной зависимостью;
по связи между входными и выходными цепями: ТПУ 0304/М1 – с гальванической связью, ТПУ 0304/М2 – без гальванической связи и обеспечивает гальваническую развязку электрических цепей при размещении взрывозащищенных термопреобразователей (ТПУ 0304Ех, ТПУ 0304Ехd) во взрывоопасной зоне от электрических цепей вторичного источника питания, цепей обработки, преобразования и регистрации измеряемой температуры;
термопреобразователи ТПУ 0304/М2 имеют различные варианты конструктивного исполнения: как без индикации текущих значений измеряемых величин (ТПУ 0304/М2, ТПУ 0304А/М2, ТПУ 0304Ех/М2, ТПУ 0304Ехd/М2), так и с их индикацией с добавлением в шифр заказа индексов И1 для ЖК индикации или И2 для СД индикации.
2.5 Выбор регуляторов
Регулятор давления устанавливается на входе в однокорпусный аппарат.
Регулятор давления РД-НО и РД-НЗ
Регулятор расхода и давления РР и РД прямого действия с нормально открытым (НО) или нормально закрытым (НЗ) регулирующим клапаном (в дальнейшем регуляторы) предназначены для регулирования давления, расхода (перепада давлений) пара, жидких и газообразных сред, неагрессивных к материалам деталей регулятора, из которых он изготовлен (чугун СЧ18 ГОСТ 1412).
Регуляторы с нормально открытым клапаном (НО) регулируют давление "после себя", с нормально закрытым (Н3) - "до себя".
Принцип действия основан на уравновешивании силы упругой деформации пружины настройки усилием, создаваемым регулируемой средой на мембранном узле.
Принцип действия регуляторов основан на уравновешивании силы упругой деформации пружины настройки силой, создаваемой регулируемым давлением на мембране чувствительного элемента мембранного узла. В сборке регуляторов давления с нормально открытым или нормально закрытым регулирующим клапаном импульс регулируемого давления подаётся в верхнюю полость мембранного узла. В сборке регуляторов расхода (перепада давлений) импульсы регулируемого давления, соответствующие заданному расходу, подаются в обе полости мембранного узла, при этом условие равновесия усилий на мембране обеспечивается суммой усилий, развиваемое разностью регулируемых давлении и силой упругой деформации пружины
Основные технические характеристики:
| Наименование | Значения | |||||
| Диаметр условного прохода, Ду, мм | 25 | 32 | 40 | 50 | 80 | 100 |
| Условная пропускная способность, Кv, м³/ч | 6,3 | 10 | 16 | 25 | 60 | 80 |
| Диапазоны настройки, МПа | 0,04-0,16; 0,1-0,4; 0,16-0,63 | |||||
| Зона пропорциональности в % от верхнего предела настройки, не более | 20 | |||||
| Зона нечувствительности в % от верхнего предела настройки, не более | 4 | |||||
| Относительная нерегулируемая протечка в % от Кv, не более | 0,1 | |||||
| Температура регулируемой среды, ºС | от 0 до 180 | |||||
| Температура окружающей среды, ºС | от 5 до 50 | |||||
| Условное давление, МПа (кгс/см2) | 1,6 (16) | |||||
2.6 Выбор уровнемера
УПТ-А (AM) Уровнемер поплавковый
ОБЩИЕ СВЕДЕНИЯ
Датчики уровня РУПТ-А предназначены для непрерывного преобразования уровня жидкости в стандартный токовый выходной сигнал.
Датчики уровня состоят из первичного преобразователя(ПП) и передающего преобразователя (ППР).
РУПТ-А в комплекте с ЭП-0010 имеет следующие преимущества:
-высокая точность;
-удобный монтаж на емкости;
-отсутствие пневматических линий, проложенных на открытом воздухе;
-простота настройки при первичной установке и в процессе эксплуатации;
-значительно меньшее число вероятных неисправностей;
-меньшая стоимость.
УСЛОВИЯ ЭКСПЛУАТАЦИИ
По устойчивости к климатическим воздействиям части датчика соответствуют по ГОСТ 15150 виду климатического исполнения УХЛ и категории размещения: 1.1 для ПП, но для работы при температуре окружающего воздуха от -50 до +50°С; 4.2 - ППР, но для работы при температуре окружающего воздуха от +5 до +40°С для ППР.
Степень защиты оболочки ПП и ППР IP54 по ГОСТ14254.
ПП выполнен с видом взрывозащиты "Искробезопасная электрическая цепь", имеет уровень защиты "Взрывобезопасный" и маркировку"1ExibIIBT6 в комплекте РУПТ-А" в соответствии с ГОСТ Р 51330.10. ПП может устанавливаться во взрывоопасных зонах помещений и наружных установок согласно гл. 7.3 ПУЭ, гл. 3.4 ПЭЭП,ПТБ и другим директивным документам, регламентирующим применение электрооборудования во взрывоопасных зонах.
ППР имеет маркировку"[Exib]IIB в комплекте РУПТ-А" в соответствии с ГОСТ Р 51330.10 и предназначен для установки вне взрывоопасных зон помещений и наружных установок.
ТЕХНИЧЕСКИЕ ДАННЫЕ
Метрологические характеристики:
предел допускаемой основной приведенной погрешности, в % от диапазона измерения уровня (диапазона изменения выходного сигнала), не более ±0,15; ±0,25
вариация выходного сигнала не превышает абсолютного значения предела допускаемой основной приведенной погрешности.
Верхние пределы измерения уровня (диапазоны измерений), м:
1,0; 1,6; 2,0; 2,5; 3,0;4,0; 6,0; 8,0; 10,0; 16,0
Нижний неизмеряемый уровень, мм, не более: 260
Верхний неизмеряемый уровень, мм, не более: 300
Характеристика рабочей среды:
нефть, нефтепродукты, сжиженные газы, вода и другие жидкости, не агрессивные к стали 12X18H10T ГОСТ 5632, вязкость которых не ограничивается при отсутствии застывания на них, препятствующих перемещению поплавка;
температура от минус 50 до плюс 50°С;
предельно допускаемое рабочее давление не более 1,6 МПа;
плотность от 500 до 1100 кг/м3 (от 0,5 до 1,1 г/см3).
Пределы изменения токовых выходных сигналов
(0-5) мА или (4-20) мА или (0-20) мА.
Сопротивление нагрузки (включая сопротивление линии связи), кОМ:
для датчика с выходным сигналом (0-5) мА 0,2 - 2,5
для датчика с выходным сигналом (0-20) мА или (4-20) мА 0,1 - 1,0
Параметры питания:
напряжение переменного тока, В 220 (+22; -33)
частота, Гц 50 (+1;-1) или 60 (+1;-1)
Потребляемая мощность, ВА, не более: 9
Средний срок службы, лет 12
КОНСТРУКЦИЯ И ПРИНЦИП РАБОТЫ
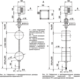
Общий вид, габаритные и присоединительные размера ПП и ППР датчика приведены на рис. 1, 2.
Рис. 1. Общий вид ПП. Рис. 2. Общий вид ППР.
ПП состоит из следующих частей:
корпус;
погружной элемент;
преобразователь электромеханический (в дальнейшем - ПЭ);
поплавок с постоянными магнитами.
Корпус имеет съемную крышку и кабельный ввод для подвода кабеля связи с ППР.
ПП состоит из корпуса, погружной трубы и поплавка с постоянными магнитами.
Погружной элемент может иметь жесткую или гибкую (свыше 4 м) конструкцию. Поплавок ПП может быть изготовлен из стали 12Х18Н10Т, титана (для сжиженных газов) или из вспененного эбонита. Минимальный диаметр поплавка составляет 48 мм.
ПП устанавливается на емкость с измеряемой средой с помощью резьбового штуцера с наружной резьбой М27х1,5
Принцип действия датчика основан на измерении времени распространения ультразвуковой волны доопорного магнита и до магнита, расположенного впоплавке с последующим преобразованием временного интервала в информационный сигнал. Информационный сигнал пропорционален измеряемому уровню среды.
3. ТЕХНИЧЕСКИЕ ХАРАКТЕРИСТИКИ КОНТРОЛЛЕРА
Промышленные контроллеры Alpha имеют 3 модификации, различающиеся числом каналов ввода/вывода. Это модификации на 6 каналов ввода и 4 вывода, 8 ввода и 6 вывода, а также 15 ввода и 9 вывода. Две последние модификации имеют слот для установки одного модуля расширения, а также разъем для подключения модема или панели оператора. В слот расширения может устанавливаться один из следующих модулей: четырехканальный модуль ввода дискретных сигналов 24 В, два канала которого могут использоваться как счетчики импульсов с максимальной частотой следования до 1 кГц; четырехканальный модуль ввода дискретных сигналов ~220 В; четырехканальный релейный модуль вывода 24 В/~220 В с нагрузочной способностью до 2 А на канал; четырехканальный транзисторный модуль вывода 5–24 В с нагрузочной способностью до 1 А на канал; двухканальный модуль аналогового вывода сигналов 0–10 В или 4–20мА.
Благодаря входным каналам с режимом ввода аналоговых сигналов и возможности установки модуля аналогового вывода, а также наличию программного блока ПИД-регулятора можно реализовать такие задачи как управление тепловым пунктом или небольшой котельной управление вентиляцией, регулирование температурного режима в теплицах, камерах хранения, нагревательных емкостях и т.п. А благодаря возможности установки модуля со счетными входами можно объединять промышленный контроллер с приборами учета. Входные каналы промышленных контроллеров с напряжением питания ~220 В имеют только режим дискретного ввода, при этом за значение логической единицы принимается сигнал выше ~100 В, что очень удобно для контроля и управления оборудованием с питанием 220 В, таким как освещение, вентиляция и т.д. Для задач удаленного управления и мониторинга объектов, предусмотрена возможность непосредственного подключения к промышленным контроллерам Alpha обычных модемов, а также радиомодемов, работающих в стандарте GSM. По получению команды, промышленный контроллер реагирует в соответствии со своей программой, например, включает или выключает выходные реле или изменяет уставки. Для подтверждения выполнения команды, а также для проверки статуса системы, может высылаться SMS сообщение. Функция автоматической посылки SMS при изменении состояния регистров промышленного контроллера, позволяет успешно использовать промышленные контроллеры Alpha для мониторинга удаленных объектов, таких как насосные станции, подвалы и чердаки многоквартирных домов с установленным в них оборудованием, и вплоть до дачных домиков, где можно реализовать удаленное управление включением/выключением отопления, освещения и т.п., а также получать данные о температуре внутри помещения или о нежелательном проникновении. Из новых функций, появившихся сравнительно недавно, стоит отметить ставшее возможным подключение графических сенсорных панелей оператора GT1020 или GT1030. Данные панели оператора с диагоналями экранов 3.7” или 4.5” обладают достаточно большим разрешением матрицы, изменяемым цветом светодиодной подсветки (зеленый-желтый-красный), а также поддержкой шрифтов True Type, в том числе и кириллических. Данные панели прекрасно расширяют функционал промышленных контроллеров Alpha в тех случаях, когда возможностей встроенного дисплея недостаточно для отображения информации. Для удобства программирования (помимо возможности программирования непосредственно с клавиш панели управления) предлагается полностью русифицированная среда разработки с простым и понятным интерфейсом, рассчитанная на пользователей, не знакомых с программированием контроллеров, но обладающих базовым уровнем.
Компания Mitsubishi Electric, одним из приоритетных направлений деятельности которой является производство продукции для промышленной автоматизации, представила свой первый компактный моноблочный промышленный контроллер в 1980 году. С тех пор номенклатура моноблочных промышленных контроллеров Mitsubishi Electric постоянно расширялась, и на сегодняшний день представлена на рынке семейством контроллеров FX, состоящем из серий FX1N, FX3U и FX3UC, а также серией недорогих микроконтроллеров Alpha, ставшей одной из наиболее популярных серий компактных промышленных контроллеров Mitsubishi Electric в России. Наряду с моноблочными промышленными контроллерами компания уже несколько десятилетий производит классические модульные промышленные контроллеры (семейство System Q), применяющихся для задач автоматизации высокой сложности. Благодаря богатым техническим возможностям и невысокой стоимости, промышленные контроллеры Alpha и младшие модификации промышленных контроллеров FX находят широкое применение в небольших задачах автоматизации, где использование комплекта из отдельных элементов релейной автоматики не отвечает современным требованиям, а применение мощных многоканальных промышленных контроллеров (ПЛК) избыточно. Создание решений на базе единого логического модуля позволяет значительно сократить затраты на создание системы управления, повысить ее гибкость, упростить монтаж и тиражирование, а также минимизировать занимаемое пространство.
Промышленные контроллеры Alpha, выпускаемые уже на протяжении 9 лет, непрерывно модернизируются, приобретая все новые и новые функции, востребованные заказчиками. Начав свое существование как промышленный контроллер, предназначенный для реализации простой дискретной логики, после модернизации 2003 года промышленный контроллер обзавелся поддержкой аналоговых каналов, поддержкой передачи данных через GSM-модем, новыми функциональными блоками среды программирования, включая ПИД-регулятор.
















