284910 (690634)
Текст из файла
Министерство образования и науки Украины
Национальный технический университет
«Харьковский политехнический институт»
Кафедра «Автомобиле- и тракторостроения»
ПОЯСНИТЕЛЬНАЯ ЗАПИСКА
к курсовому проекту
по дисциплине «Технология производства в автотракторостроении»
Выполнил студент гр. ТМ-27А Маляренко
Руководитель проекта Павлий Н.В.
Харьков 2010
Содержание
Введение 4
1. Анализ исходных данных 6
1.1 Служебное назначение детали 6
1.2 Классификация поверхностей детали по функциональному назначению 7
1.3 Анализ технологичности детали 8
1.3.1 Качественные показатели технологичности конструкции детали 8
1.3.2 Количественный анализ технологичности конструкции детали 9
2. Определение типа производства, его характеристики 12
3 Выбор и проектирование заготовки 14
3.1 Выбор вариантов исходной заготовки 14
3.2 Масса штамповки ориентировочно равна 14
3.3 Проектирование исходной заготовки 15
4. Разработка технологического маршрута и плана изготовления детали 17
4.1 Предварительная разработка технологического маршрута изготовления детали 17
4.2 Технологический маршрут изготовления детали 17
4.3 План изготовления детали 18
5. Выбор технологической оснастки 19
5.1 Выбор станочных приспособлений 19
5.2 Выбор режущих инструментов 19
5.3 Выбор контрольно-измерительных средств 19
6. Проектирование заготовки. Определение операционных размеров 22
6.1 Расчет операционных припусков и размеров расчетно-аналитическим методом 22
6.2 Расчет операционных размеров статистическим методом 25
7. Определение режимов обработки 27
7.1 Расчет режимов обработки расчетно-аналитическим методом 27
7.2 Определение режимов обработки статическим методом 29
8. Нормирование технологических операций 33
Заключение 36
Список использованных источников литературы 37
Введение
Машиностроение является важнейшей отраслью промышленности. Ее продукция – машины различного назначения поставляются всем отраслям народного хозяйства. Рост промышленности, а так же темпы перевооружения их новой технологией и техникой в значительной степени зависятот уровня развития машиностроения.
Состояние машиностроения во многом определяет развитие и других отраслей народного хозяйства. В различных областях науки и техники применяются машины и механизмы с деталями типа червяк. Данные детали, исходя из высоких требований к технико-экономическим и эксплуатационным показателям машин и механизмов, должны обладать высокой надёжностью, ремонтопригодностью, технологичностью, минимальными габаритами, удобством в эксплуатации. Во многом эти показатели обеспечиваются в процессе проектирования и изготовления валов.
Основными задачами технологии машиностроения являются проектирование всего комплекса технологических средств, обеспечивающих выпуск продукции заданного качества в заданном количестве и в установленные сроки, а так же снижение себестоимости выпускаемой продукции, повышение качества, уменьшение времени, затрачиваемого на производство изделия, повышение коэффициента использования материала, автоматизация технологических процессов.
Решением основных задач технологии машиностроения является: применение автоматических систем, систем адаптивного управления, ГПС, внедрение в производство новейшего технологического оборудования, применение ЭВМ, новейшего режущего, мерительного инструмента и оснастки.
Технологическая подготовка производства является определяющим этапом в цикле производства машин и механизмов. Один из этапов технологической подготовки производства, состоит в разработке техпроцесса изготовления деталей машин.
Курсовой проект посвящается разработке техпроцесса изготовления первичного вала раздаточной коробки автомобиля. Подобные детали изготавливаются в больших объемах.
Главные задачи, которые необходимо решить при проектировании новых технологических процессов – повышение точности и качества обработки, стабильности и долговечности деталей и максимальное снижение себестоимости обработки путем совершенствования технологических процессов. В курсовом проекте эти задачи будут решаться путем анализа проектного технологического процесса, выявления его основных недостатков и методов их решения.
Целью курсового проекта является закрепление знаний, полученных на лекциях, практических занятиях и приобрести навыки выполнения основных этапов разработки техпроцесса и самостоятельного поиска наиболее оптимальных технических решений, основанных на последних достижениях науки и техники.
1. Анализ исходных данных
1.1 Служебное назначение детали
Данная деталь называется «первичный вал раздаточной коробки» и служит для установки сопрягаемых деталей и передачи вращающего момента. Вал устанавливается в корпусе раздаточной коробки с помощью трех подшипников 65 мм, 65 мм и 60 мм. Вращение передается через шлицы.
Рис. 1.1 – 3D-модель первичного вала раздаточной коробки
Ниже приведены данные физико-механических характеристик (табл. 1.1) и химического состава материала детали (табл. 1.2) по ГОСТ 1050-88[3].
Таблица 1.1 – Механические свойства стали 40Х
| Состояние поставки, режим термообработки | Сечение, мм | σт | σв | δ5 | ψ | HB | |
| Мпа | % | ||||||
| Не менее | Не более | ||||||
| Паковка: нормализация | До 100 | 353 | 598 | 16 | 45 | 197 | |
Твердость после закалки и отпуска составит HRC 51
Таблица 1.2 – Химический состав, %
| C | Si | Mn | Ni | Cu | S | P |
| Не более | ||||||
| 0,36-0,44 | 0,17-0,37 | 0,5-0,8 | 0,30 | 0,30 | 0,035 | 0,035 |
1.2 Классификация поверхностей детали по функциональному назначению
Исполнительные поверхности – это поверхности с помощью которых деталь выполняет свое служебное назначение;
Основные конструкторские базы – это поверхности с помощью которых определяется положение детали в узле;
Вспомогательные конструкторские базы - это поверхности с помощью которых к детали присоединяются другие детали;
Свободные поверхности - это поверхности которые служат для формирования контура детали.
С целью выявления поверхностей, имеющих определяющее значение для качественного выполнения деталью своего служебного назначения, систематизируем поверхности детали (рис. 1.2, табл. 1.3).
Систематизация поверхностей детали
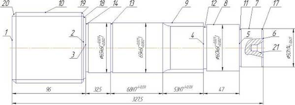
Рисунок 1.2 – Технологический эскиз детали
Таблица 1.3- Систематизация поверхностей детали
| Наименование поверхностей | Номера поверхностей |
| Исполнительные | 2, 8 |
| Основные конструкторские базы | 6, 7, 10 |
| Вспомогательные конструкторские базы | 13, 2, 8 |
| Свободные | остальные |
1.3 Анализ технологичности детали
Деталь должна изготовляться с минимальными трудовыми и материальными затратами. Эти затраты можно сократить в значительной степени правильным выбором варианта технологического процесса, его оснащения, механизации и автоматизации, применением оптимальных режимов обработки. На трудоемкость изготовления детали оказывают особое влияние ее конструкция и технические требования на изготовление.
1.3.1 Качественные показатели технологичности конструкции детали
По конструктивной форме
Большинство конструктивных элементов детали унифицировано и стандартизировано. Канавки обеспечивают благоприятные условия работы режущих инструментов. Деталь имеет достаточную жесткость для обработки на повышенных режимах.
По размерам детали
Поверхности детали имеют квалитеты, степени точности и шероховатости, соответствующие их служебному назначению.Следовательно, хотя точность и шероховатость поверхностей детали и заданы достаточно жесткими, тем не менее, позволяют обеспечить их на станках нормальной точности. Число обрабатываемых поверхностей сокращено до минимума. Размеры на чертеже учитывают особенности настройки технологического оборудования на размер т.к основная привязка размеров идет от правого торца. Учтены требования по взаимному расположению поверхностей и обеспечивают функциональное назначение детали.
По процессу изготовления деталей
Деталь имеет центровые отверстия, что обеспечивает удобство установки заготовки. Центровые отверстия позволяет обеспечить автоматизацию установки заготовки. Возможна обработка нескольких поверхностей одновременно. Обработка напроход возможна только у нескольких поверхностей. На большинстве операций возможна обработка поверхностей детали за один установ. Возможно применение стандартной и нормализованной технологической оснастки.
По материалу детали
Обрабатываемость резанием хорошая. Обеспечение требуемой шероховатости обрабатываемой поверхности достигается без особых затруднений. Материал детали прокаливается и склонен к отпускной хрупкости.
1.3.2 Количественный анализ технологичности конструкции детали
Коэффициент обрабатываемости детали резанием
,(1.1)
где
– скорость резания при стой кости инструмента Т=60мин и определенных условиях резания[3];
– от же для эталонного материала [3].
В качестве эталонного материала выбрана сталь 45 (σв=650Мпа, НВ≤179).
Коэффициент обрабатываемости детали резанием
=1,2, следовательно обрабатываемость материала хорошая, возможно получение требуемой шероховатости без особых затруднений
Коэффициент точности размеров детали
,(1.2)
где
-средний квалитет точности размеров.
, (1.3)
где
- номер квалитета;
- число размеров выполняемых по i-тому номеру квалитета.
,
.
Средняя точность поверхностей выполнена по 12 квалитету, значит, данную деталь можно изготовить на станках нормальной точности. Коэффициент точности Kт=0,92>0,8, следовательно, деталь технологична.
Коэффициент шероховатости
, (1.4)
где
- средняя величина шероховатости поверхностей детали по критерию Ra, мкм.
, (1.5)
где j – величина параметра Raв мкм;
- число поверхностей, имеющих j-тую шероховатость;
k – число всех поверхностей детали.
,
.
Средняя шероховатость поверхностей Ra=9,43мкм, значит, данную деталь можно изготовить на станках нормальной точности. Минимальная шероховатость Ra=1,25 мкм, что можно получить на шлифовальном станке нормальной точности.
Коэффициент шероховатости Kш=0,1<0,32, следовательно деталь технологична.
2. Определение типа производства, его характеристики
Тип производства зависит от массы детали и программы выпуска. Исходя из массы детали m=9,549 кг и годовой программы Nг=10000 шт. то определяем тип производства – среднесерийный.
Среднесерийное производство характеризуется ограниченной номенклатурой изделий изготавливаемых периодически повторяющимися партиями, технологический процесс изготовления деталей преимущественно дифференцирован, т.е. расчленён на отдельные самостоятельные операции, выполняемые на отдельном оборудовании.
Таблица 2.1 - Основные характеристики среднесерийного производства [1]
| Критерий выбора техпроцесса | Характеристика |
| Номенклатура изделий | Средняя |
| Объемы выпуска изделий | Средние |
| Длительность выпуска | Средняя |
| Оборудование | Универсальное и специализированное с ЧПУ |
| Оснастка | Универсальная и специализированная |
| Степень механизации и автоматизации | Средняя |
| Квалификация рабочих | Средняя |
| Форма организации техпроцесса | Переменно-поточная, групповая |
| Расстановка оборудования | По группам станков, предметно-замкнутые участки |
| Виды технологических процессов: | |
| по универсальности | типовые, групповые, единичные |
| по подробности описания | операционные |
| Коэффициент закрепления операций KЗ.О | Св. 10 до 20 |
| Методы определения операционных размеров | Расчетно-аналитический, решением операционных размерных цепей |
| Методы обеспечения точности | Настроенное по пробным деталям оборудование |
| Методы нормирования | Аналитически-расчетный |
Определяем объем рабочей партии по формуле
0>Характеристики
Тип файла документ
Документы такого типа открываются такими программами, как Microsoft Office Word на компьютерах Windows, Apple Pages на компьютерах Mac, Open Office - бесплатная альтернатива на различных платформах, в том числе Linux. Наиболее простым и современным решением будут Google документы, так как открываются онлайн без скачивания прямо в браузере на любой платформе. Существуют российские качественные аналоги, например от Яндекса.
Будьте внимательны на мобильных устройствах, так как там используются упрощённый функционал даже в официальном приложении от Microsoft, поэтому для просмотра скачивайте PDF-версию. А если нужно редактировать файл, то используйте оригинальный файл.
Файлы такого типа обычно разбиты на страницы, а текст может быть форматированным (жирный, курсив, выбор шрифта, таблицы и т.п.), а также в него можно добавлять изображения. Формат идеально подходит для рефератов, докладов и РПЗ курсовых проектов, которые необходимо распечатать. Кстати перед печатью также сохраняйте файл в PDF, так как принтер может начудить со шрифтами.















