125416 (690533), страница 2
Текст из файла (страница 2)
Разделение отсоса горячего и холодного воздуха предотвращает возможность образования конденсационных паров и завихрений, повышающих скорость воздушного потока, в результате чего возможен унос кристаллов сахара.
В целях предотвращения запыления помещения нагнетание и отсос воздуха рассчитаны таким образом, что внутри барабана поддерживается разряжение.
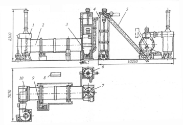
Рис. 3. Барабанная сушильно-охладительная установка СБУ-1
2. Технические описания и расчёты.
2.1. Описание принципа работы технологической схемы.
Исходный продукт – яблоки, с содержанием влаги ωн=85% и температурой θ1=17,5°С, из бункера Б1 подается в шкафную сушилку ШС. Снизу в сушильную камеру вентилятором В нагнетается воздух, нагреваемый в калориферной батарее КБ. Воздух на входе в калориферную батарею имеет температуру t0=21,6°С и относительную влажность φ0=62 %. В калориферной батарее воздух нагревается до температуры t1=130°С. Подогрев воздуха в калориферной батарее осуществляется за счёт конденсации греющего пара, имеющего температуру 160°С при давлении 0,618 МПа. Из верхней части сушильной камеры отработанный воздух с температурой t2=49°С поступает на очистку от мелких частиц в циклон СК-ЦН-34 и далее выбрасывается в атмосферу. Сухой продукт с содержанием сухих веществ 92% и имеющий температуру θ2=40°С из нижней части сушильной камеры поступает в бункер высушенного материала Б2 и далее на ленточный транспортёр, а из циклона СК-ЦН-34 – прямо на ленточный транспортёр.
2.2 Материальный расчёт установки.
Из уравнения материального баланса сушильной установки определим расход влаги W, удаляемый из высушиваемого материала:
Gк =100 кг/ч =100/3600=0,028 кг/с,
кг/с,
где Gк – производительность установки по сухому веществу, кг/с
ωн – начальная влажность продукта, %
ωк – конечная влажность продукта, %.
ωн=85%,
ωк=12%.
2.3 Тепловой расчёт установки.
Определение основных параметров влажного воздуха.
К основным параметрам влажного воздуха относятся:
-
температура t,°С
-
относительная влажность воздуха φ,%
-
удельное влагосодержание х, кг/кг
-
энтальпия I, кДж/кг
Температуру и относительную влажность воздуха на входе в калорифер определяем по климатическим таблицам, для г. Минск летние условия /10/:
-
температура t0=17,5°С,
-
относительная влажность φ0=78%.
Удельное влагосодержание воздуха рассчитаем по формуле:
,
где 0,622 – отношение мольных масс водяного пара и воздуха,
Рн – давление насыщенного водяного пара при данной температуре воздуха, Па
Рн=1999,5 Па при t0=17,5°С.
В – барометрическое давление воздуха, Па. (Для Европейской части СНГ принимается 745 мм рт. ст. = 99100 Па.)
Удельное влагосодержание воздуха на входе в калорифер:
, кг/кг
Т.к. подогрев воздуха в калорифере происходит при неизменном влагосодержании воздуха, то удельное влагосодержание воздуха на входе в калорифер тоже, что и на входе в сушилку:
, кг/кг
Энтальпия влажного воздуха представляет сумму энтальпий сухого воздуха и водяного пара, приходящегося на 1 кг сухого воздуха:
,
где Сс.в. – средняя удельная теплоёмкость сухого воздуха, (при t<200°С Сс.в.=1,004 кДж/(кг.К)),
t – температура влажного воздуха, °С,
х – удельное влагосодержание воздуха, кг/кг с.в.,
in – удельная энтальпия перегретого пара, кДж/кг,
,
где r0 – удельная теплота парообразования воды, (при 0°С r0=2500 кДж/кг),
cn – средняя удельная теплоёмкость водяного пара, cn=1,842 кДж/(кг.К).
Рисунок 4 – Процесс сушки в I–x диаграмме
Энтальпия воздуха на входе в калорифер:
, кДж/кг
Энтальпия воздуха на выходе из калорифера (на входе в сушилку):
, кДж/кг
Удельное влагосодержание воздуха на выходе из сушилки:
Энтальпия воздуха на выходе из сушилки:
, кДж/кг
Для наглядности строим процесс сушки в I-x диаграмме, которая приведена на рисунке 4. По состоянию наружного воздуха t0 и φ0 на диаграмме находим точку А, по следующим параметрам t0= 17,5С и 0= 78 %, и соответствующие ей теплосодержание I0 и влагосодержание х0. Нагревание воздуха в калорифере происходит при постоянном влагосодержании (х0=0,0099 кг/кг) до температуры t1 (точка В, со следующей температурой t1=81С и влагосодержанием 1≈0,6%, энтальпия I1=107,55 кДж/кг). По температуре воздуха на выходе из сушилки t2 находим точку С окончания теоретического сушильного процесса и значение х2=0,027 кг/кг с температурой t1=37С и влагосодержанием 2≈54% (соответственно определенные по диаграмме).
При дальнейших расчетах используем значения и параметры, найденные расчетным путем.
Тепловой расчёт сушилки.
Запишем уравнение внутреннего теплового баланса сушилки:
,
где
– разность между удельными приходом и расходом тепла непосредственно в сушильной камере, кДж/кг влаги;
– теплоемкость влаги во влажном материале при температуре θ1=17,5°С, кДж/(кг.К);
=4,19 кДж/(кг.К);
qдоп. – удельный дополнительный подвод тепла в сушилку, кДж/кг влаги; при работе сушилки по нормальному сушильному варианту qдоп.=0;
qт. – удельный расход тепла с транспортными средствами, кДж/кг влаги; в рассматриваемом случае qт.=0;
qм. – удельный расход тепла в сушилке с высушиваемым материалом:
, кДж/кг влаги
см - теплоемкость высушенного материала:
, кДж/(кг.К),
сс - теплоемкость абсолютно сухого материала, кДж/(кг.К);
сс=0,86·4,190=3,603 кДж/(кг.К);
qп. - удельные потери тепла в окружающую среду:
, кДж/кг влаги,
l – удельный расход абсолютно сухого воздуха:
, кг возд./кг влаги,
I2 – энтальпия воздуха на выходе из сушилки, кДж/кг,
х2 – удельное влагосодержание воздуха на выходе из сушилки, кг/кг с.в.. Значение х2 находим по I-х диаграмме влажного воздуха, построив теоретический процесс сушки, и по нему рассчитываем значение I2.
Теплоемкость высушенного материала:
, кДж/кг влаги
Удельный расход тепла в сушилке с высушиваемым материалом:
, кДж/кг влаги
Удельные потери тепла в окружающую среду:
, кДж/кг влаги
Разность между удельными приходом и расходом тепла непосредственно в сушильной камере:
, кДж/кг влаги
Расход воздуха на сушку:
, кг/с
Средняя температура воздуха в сушилке:
Среднее влагосодержание воздуха в сушилке:
, кг/кг
Средняя плотность воздуха:
, кг/м3
Средняя плотность водяных паров:
, кг/м3
Средняя объемная производительность по воздуху:
, м3/с
Удельный объем влажного воздуха:
, м3/кг
, м3/кг
Объемный расход влажного воздуха:
м3/с
м3/с
Расход тепла на сушку:
, кВт
2.4 Конструктивный расчёт шкафной сушилки.
Определим габаритные размеры. Загрузка на один противень
,
где l – длинна противня, принимаем l=2,05 м;
b – ширина противня, принимаем b=1,2 м;
nшт – количество штучных изделий на 1м2 поверхности противня;
gшт – масса штучного изделия, кг.
Принимаем размеры ломтиков яблок 5см×5см×1см. Следователь масса штучного изделия равна 0,025 кг. Количество ломтей яблок в вагонетке 400 шт.
Загрузка на вагонетку по влажному материалу:
, кг
Вместимость сушильной камеры:
кг
кг.
Определим количество вагонеток по влажному материалу:
Принимаем 5 вагонеток.
Ширина камеры:
,м
Длинна камеры:
, м;
Высота камеры:
2.6. Расчёт и подбор комплектующего оборудования.
2.6.1. Расчёт и подбор калориферов.
Принимаем к установке калорифер КФБО-5, для которого:
-
площадь поверхности нагрева Fк=26.88 м2 ,
-
площадь живого сечения по воздуху fк=0,182 м2.
Площадь поверхности теплопередачи:
, м2
где Q – расчётное количество теплоты, необходимое для подогрева воздуха, кВт
Q =516,03 кВт
k – коэффициент теплопередачи от греющего теплоносителя к воздуху, Вт/(м2·К)
, Вт/(м2·К)
b, n – опытные коэффициенты,
b=16.47
n=0,456
ρν – массовая скорость воздуха в живом сечении калорифера, кг/(м2·К)
ρν=10 кг/(м2·К)
, Вт/(м2·К)
Δtср. – средняя разность температур греющего теплоносителя и воздуха, °С
, °С
где Δt' – большая разность температур между температурами греющего пара и воздуха, °С
Δt'' – меньшая разность температур между температурами греющего пара и воздуха, °С
Для подогрева воздуха в калорифере используется греющий пар, имеющий при давлении 0,618 МПа. температуру 160°С.
, °С
, °С
,°С
Площадь поверхности теплопередачи:
, м2
Количество параллельно установленных калориферов:
, шт
где L – расход воздуха, кг/с
L=1,91 кг/с
, шт
Принимаем х=2
Уточняем массовую скорость воздуха в живом сечении калорифера:
, кг/(м2·К)
, Вт/(м2·К)
, м2
Количество последовательно установленных калориферов:
, шт
Принимаем y=2
Установочная площадь поверхности теплопередачи калориферной батареи:
, м2
Сопротивление калорифера:
, Па
где
e, m – опытные коэффициенты,
e=0,43
m=1,94
, Па
Сопротивление калориферной батареи:
, Па
Конструктивные размеры калорифера КФБО-5.
| Модель и номер калори-фера | Размеры, мм | Трубная резьба штуцера, дюймы | n1 | n2 | ||||||||||
| А | А1 | А2 | А3 | Б | Б1 | Б2 | Б3 | |||||||
| КФБО-5 | 710 | 750 | 770 | 930 | 625 | 640 | 662 | 520 | 2 | 5 | 5 | |||
2.6.2. Расчёт циклона СКЦН-34.
Исходные данные:
Кол-во очищаемого воздуха при рабочих условиях:
V=2,042 м3/с
Расчёт.
Оптимальная скорость газа в аппарате:
ωопт=3 м/с
Необходимая площадь сечения циклона:
, м2
Диаметр циклона:
, м
N – кол-во циклонов,
N=1
Стандартное значение D=1000 мм Действительная скорость газа в циклоне:
, м/с
Коэффициент гидравлического сопротивления циклона:
- коэффициент гидравлического сопротивления одиночного циклона,
=1150.
К1 – поправочный коэффициент на диаметр циклона, К1=1.
К2 – поправочный коэффициент на запылённость газа, К2=0.93.
К3 – коэффициент, учитывающий дополнительные потери давления, К3=0.
Потери давления в циклоне:
, Па
Соотношение размеров в долях диаметра D циклона СК-ЦН-34.
| Наименование | Размер | ||
| в долях | в мм | ||
| Внутренний диаметр цилиндрической части | D | 1000 | |
| Высота цилиндрической части | Hц | 0.4 | 400 |
| Высота конической части | Hк | 2.6 | 2600 |
| Внутренний диаметр выхлопной трубы | d | 0.22 | 220 |
| Внутренний диаметр пылевыпускного отверстия | d1 | 0.18 | 180 |
| Ширина входного патрубка | b | 0.18 | 180 |
| Высота внешней части выхлопной трубы | hв | 0.3 | 300 |
| Высота установки фланца | hфл | 0.1 | 100 |
| Высота входного патрубка | a | 0.4 | 400 |
| Длина входного патрубка | l | 0.6 | 600 |
| Высота заглубления выхлопной трубы | hт | 0.4 | 400 |
Минимальное время пребывания частиц в циклоне:
, с
L – длина пути, проходимого газовым потоком в циклоне, м.
, м
Скорость во входном патрубке:
, м/с
Принимаем νокр=29 м/с
Скорость осаждения частиц:
, м/с
dч=0.2·10-5 м
, м/с
Минимальное время пребывания частиц в циклоне:
, с
2.7. Гидравлический расчёт линии воздуха и подбор вентилятора.
Исходные данные:
L=1,91 кг/с, - массовый расход воздуха;
, м
Для трубопровода примем скорость движения воздуха =25м/с.
Диаметр трубопровода равен
Относительная влажность φ0=62%;
Рн – давление насыщенного водяного пара при данной температуре воздуха, Па Рн =2580 Па
Температура воздуха на участке 21,60С.
Выбираем стальную трубу наружным диаметром 320 мм. Внутренний диаметр трубы d=320-12∙2=296 мм.
Фактическая скорость воздуха в трубе
Определение потерь.
Потери на трение:
Примем абсолютную шероховатость труб =0,210-3 м, тогда относительная шероховатость трубы равна
Далее получим
Таким образом, в трубопроводе имеет место смешанное трение, и расчет следует проводить по формуле
Потери на преодоление местных сопротивлений:
где
коэффициенты местных сопротивлений вх. вход трубу.
Потери давления на придание скорости потоку:
Общие потери напора
Гидравлическое сопротивление всей сети:
Подбор вентилятора.
Полезная мощность вентилятора:
Вт
Мощность электродвигателя:
Вт
Выбираем к установке:
-
вентилятор: марка ЦП-40-8К с Р=5000 Па и Q=4.2 м3/с,
-
электродвигатель: марка 4А315S4 с N=60 кВт и дв=0.92.
Заключение.
Рассчитали барабанную сушилку для сушки сухарей панировочных с ωн=28%. Производительность по исходному продукту 1000 кг/ч.
В результате расчёта получили сушилку с D=1,94 м, длиной 7,76 м. Продукт из сушилки выходит с ωк=8% и температурой 400С.
Для данной установки рассчитали калориферную батарею, состоящую из четырех калориферов КФБО-5 с F=26.88 м2, f=0.182 м2.
Для сухой очистки воздуха выходящего из сушилки, рассчитали циклон СКЦН-34 (диаметр D=1000 мм).
Трубопровод для воздуха сделали круглого сечения. Для подачи воздуха, по полезной мощности, подобрали вентилятор марки марка ЦП-40-8К с Р=5000 Па и Q=4.2 м3/с и электродвигатель для вентилятора: марка 4А315S4 с N=60 кВт и дв=0.92.
Литература.
-
Гинзбург А.С. Расчёт и проектирование сушильных установок пищевой промышленности, Москва, Агропрмиздат, 1985 г.
-
Дытнерский Ю.И. Основные процессы и аппараты химической технологии. Пособие по проектированию, Москва, Химия, 1991 г.
-
Дытнерский Ю.И. Основные процессы и аппараты химической технологии. Пособие по проектированию, Москва, Химия, 1983 г. 272 с.
-
Павлов К.Ф. Романков П.Г. Носков А.А. Примеры и задачи по курсу процессов и аппаратов химической промышленности.
-
Справочник по пыле и газоулавливанию. Под. ред. Русанова А.А. М., “Энергия” 1975 г. 296 с.
-
Стахеев И.В Пособие по курсовому проектированию процессов и аппаратов пищевых производств, Минск, Вс. школа, 1975 г.
-
Стабников В.Н. Проектирование процессов и аппаратов пищевых производств, Киев, В. школа, 1982 г.
-
Сажин В.С. Основы техники сушки. - М: Химия, 1984 г.
-
Гришин М.А. Установки для сушки пищевых продуктов. Справочник: М: Пищевая промышленность, 1989 г.
10) Интернет http://www.kishinev.info/climate/
200>














