125328 (690466), страница 5
Текст из файла (страница 5)
де
стала часу широтно-імпульсного перетворювача;
стала часу якорного кола;
індуктивність трансформатора;
індуктивність згладжуючого реактора;
зведений до вала двигуна момент інерції привода.
Розв’язок системи рівнянь /69/, якою описуються перехідні процеси, матиме вигляд:
, /70/
де
;
;
;
;
;
;
;
електромеханічна стала часу.
Підставивши числові значення, отримаємо:
Будь-яка система автоматичного регулювання повинна бути стійкою. Систему, робота якої описуються диференціальним рівнянням ІІІ-го прядку, найбільш просто перевіряти на стійкість за критерієм Рауса-Гурвіца. Згідно з цим критерієм система буде стійкою, якщо коефіцієнти лівої частини рівняння /70/ будуть додатними числами і
/71/
Маємо
, отже система стійка.
Система стабілізації швидкості повинна бути не тільки стійкою, але і забезпечити бажані перехідні процеси, зокрема, перехідні процеси, викликані зміною задаючої напруги, або зміною моменту Мс, близькими до технічно-оптимальних.
На підставі діаграми Вишеградського доведено, що технічно-оптимальні перехідні процеси в статичній системі будуть тоді, коли коефіцієнти нормованого рівняння системи
/72/
будуть такими:
і
[3, с.287, табл.10.5].
Змінити величини коефіцієнтів при першій і другій похідних за швидкістю можна введенням в контур регулювання похідних за швидкістю і струмом з коефіцієнтами
і
.
При подачі на вхід сумуючого підсилювача додатково напруг зв’язків за похідними
/73/
Замінивши в системі рівняння /69/ перше рівняння рівнянням /73/, записують нову систему рівнянь, її розв’язують і отримують рівняння, яке буде аналогічним /70/, але з такими коефіцієнтами:
;
;
;
;
;
;
.
Коефіцієнтами нормованого рівняння /72/ зв’язані з даними коефіцієнтами такими залежностями:
/74/
Оскільки коефіцієнти
і
визначені з умови бажаних перехідних процесів, то розрахункові значення коефіцієнтів зв’язків за похідними
і
знаходять з рівнянь
;
/75/
,
звідки
=0.00035
,
Звідки
=-1,313∙10-6
Реалізувати зворотні зв’язки за похідними можна за допомогою реальних диференціюючих ланок.
8. Моделювання динамічних процесів
Математичне моделювання дозволяє досліджувати перехідні процеси в системі автоматизованого електропривода за допомогою комп’ютера. Метод базується на ідентичності диференціальних рівнянь, якими описується динаміка системи, і математичної моделі, яка досліджується на комп’ютері.
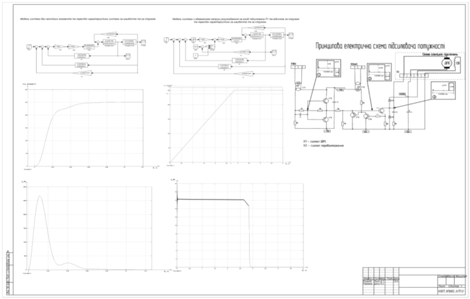
Із багатьох методик розв’язання диференціальних рівнянь за допомогою комп’ютера найменше працемістким і наочним є структурний метод, коли набір задачі на комп’ютері виконують за структурною схемою досліджуваної системи, де кожна ланка представлена своєю передавальною функцією. Зокрема, можуть бути використані спеціалізований пакет MATLAB Simulink або програма SIAM.
При моделюванні досліджуються залежності швидкості (t) і струму I (t) при стрибкоподібній зміні задаючої напруги і
=0. Потім досліджуються ці ж змінні при обмеженні струму.
Структурну схему електропривода з сумуючим підсилювачем і зворотним зв’язком за швидкістю при зміні керуючого впливу доцільно представити у вигляді, наведеному на Рис.12.
Оскільки реалізувати ідеальну диференціюючу ланку
при моделюванні неможливо, то її замінюють реальною з передавальною функцією
, де
с –
найменша стала часу в контурі регулювання.
Тоді передаточні функції коректуючи ланок запишуться
/76/
/77/
Рис.12. Структурна схема автоматизованого електропривода
При
=0 струм двигуна зв’язаний зі швидкістю рівнянням
.
На підставі результатів моделювання [графіків (t) і I (t)] отримали наступні показники якості:
перерегулювання швидкості - відсутнє (σ=0);
час регулювання швидкості tрω=2,7 с;
максимальний струм якірного кола двигуна Imax=16.32 А;
момент останнього перевищення струмом якоря номінального значення t=2.86 c.
9. Вибір системи керування і опис її роботи
Регулювання напруги на обмотках двигуна можна здійснювати імпульсним методом, коли двигун періодично підключається до джерела живлення і відмикається від нього. При цьому в той період, коли двигун підключений до джерела живлення, відбувається передача енергії від джерела до електропривода, яка в основному передається через вал двигуна приводному механізму, а частина її запасається у вигляді кінетичної і електромагнітної енергії; у період відключення електропривод продовжує працювати за рахунок накопиченої енергії.
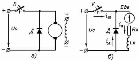
Рис.13. Принципова (а) і еквівалентна (б) схеми системи імпульсний регулятор напруги - двигун постійного струму з незалежним збудженням.
Принципова схема системи імпульсний регулятор напруги - двигун постійного струму з незалежним збудженням зображена на рис.1, а, та еквівалентна її схема на Рис.13, б. У цій системі якір двигуна за допомогою комутуючого ключа періодично підключається до джерела постійного струму, напруга якого незмінна. В період увімкненого стану ключа струм якоря iя рівний струму ім, що надходить від джерела живлення через ключ К, так як включений паралельно до якоря діод Д у цьому випадку закритий в результаті подачі на його анод від’ємної наруги джерела живлення. Після розмикання К під впливом ЕРС самоіндукції у колі якоря продовжує протікати струм через діод Д, тобто в цей період ія=іД.
На рис.2 зображені діаграми зміни напруги на клемах двигуна uдв і струмів якоря двигуна ія (t), спожитого із мережі ім (t) і через діод іД (t). Діаграми побудовані при умові, що комутація ключа відбувається миттєво, тобто кола джерела живлення і діода не містять індуктивності. При зазначеній умові для даної системи електропривода можна записати наступні рівняння:
для періоду замкнутого стану ключа К
(1а)
(2а)
(3а)
для періоду розімкненого стану ключа К
(1б)
(2б)
(3б)
де МС і J - відповідно момент статичного навантаження на валу двигуна і момент інерції електропривода.
При записі цих рівнянь прийнято, що джерело живлення володіє властивостями джерела наруги, тобто його внутрішній опір наближається до нуля, а діод Д володіє ідеальними властивостями: його опір рівний нулю у провідному напрямку і нескінченості - у зворотному.
Для аналізу усталеного режиму роботи привода необхідно проаналізувати співвідношення між середніми значеннями струму, моменту, швидкості, напруги. При цьому мається на увазі середні значення вказаних величин за період комутації К. Припускаючи, що за час Тк момент МС=const, із (3а) та (3б) можна знайти:
Для усталеного режиму повинно виконуватися рівність
, тобто миттєве значення швидкості на початку і в кінці періоду повинні бути рівні, якщо ця рівність не виконується, то має місце перехідний процес, а не усталений режим. Враховуючи також, що
, із попереднього виразу можна знайти:
Звідси у відповідності з (2а) і (2б)
(4)
З іншого боку, із (1а) і (1б)
оскільки в усталеному режимі
.
9.1 Будова та принцип роботи широтно-імпульсного перетворювача
В будові ШІМ перетворювача можна виділити дві частини: силову та блок керування.
Блок керування призначений для керування силовою частиною перетворювача. Широтно-модульований сигнал генерується аналоговим компаратором, на інвертуючий вхід якого подається опорний сигнал від генератора пилкоподібного сигналу (з періодом, рівним періоду ШІМ), а на неінвертуючий вхід - вихідний сигнал з підсилювача П2. Таким чином, коли вхідний сигнал більше опорного, на виході отримуємо високий рівень напруги, коли менше - низький. Імпульси певної частоти (f=const) і скважності через оптичну пару VT1 передаються до силової частини. При надходженні високого рівня напруги через VT5 (тобто при перевищенні струму якоря над допустимим струмом) напруга на неінвертуючому вході зменшується внаслідок
Сигнали із блоку керування до силової частини поступають через гальванічні розв’язки (оптрони VT1, VT5). Це необхідно для того, щоб у разі якихось несправностей силової частини (неспрацювання ланки захисту, пробій одного із транзисторів) вони не пошкодили блок керування.
У якості силового ключа VT7 виступає біполярний транзистор TOSHIBA 2SC5446. Для чіткого відкриття та закриття силового транзистора необхідно два потенціали - один на закриття (у нашому випадку - 6.3В), інший на відкриття (+6.3В). Саме для цих цілей служить ланка пуску.
Ланка пуску силового ключа працює наступним чином. Сигнал ШІМ поступає на вхід оптрона Х1 (in) із блока керування. В тій частині періоду, коли є імпульс опір p-n переходу VT1→0 і напруга +7В через резистор R1 поступає на базу транзистора VT2. Опір p-n переходу емітер-колектор транзистора VT2 прямує до нуля і через нього протікає струм. Таким чином на базу силового транзистора VT7 поступає додатний потенціал, який відкриває транзистор і через обмотку якоря протікає струм. У тій частини періоду, коли імпульс відсутній, транзистор VT2 закритий, а напруга - 7В через R2 і R1 поступає на базу транзистора VT3. Транзистор відкривається і дає від’ємний потенціал на базу VT7, який його закривається і тим самим розриває коло якоря.
До ланки захисту входять такі основні елементи силовий резистор R8 (потужність розсіювання 5W, опір 0.15 Ом), транзистори VT4 та VT6. Із силового резистора R8 знімається спад напруги, який пропорційний струму в якірному колі. Якщо струм в якірному колі перевищує струм уставки спрацювання захисту, то відкривається транзистор VT6 і сигнал спрацювання захисту через оптрон VT5 подається на схему керування. Далі цей сигнал поступає на вхід An7 і програма виводить на індикатор сигнал про помилку. Транзистор VT6 відкриває транзистор VT4, який повинен заблокувати сигнал схеми пуску, тобто транзистор VT4 потенціалом на емітері повинен закрити силовий ключ навіть тоді, коли відкритий транзистор VT2.
Діод VD1 призначений для підтримання струму в колі якоря у моменти часу, коли закритий транзистор VT7. Діод VD2 захищає транзистор від інверсних імпульсів.
Висновки
В результаті виконання курсової роботи отримали систему автоматичного регулювання (а саме стабілізації) швидкості електропривода містка мостового крана, яка забезпечує регулювання швидкості з діапазоном Д=55 та падінням швидкості, що не перевищує 5% від заданої швидкості. Спроектована система обмежує момент і струм двигуна, а також забезпечує постійність прискорення у перехідних процесах. Перерегулювання в спроектованій системі відсутнє. Спроектована система стійка, перехідний процес в системі є технічно оптимальним, тому даний автоматизований електропривод візка мостового крана після відповідних налагоджувальних робіт щодо встановлення коефіцієнтів передачі елементів готовий до експлуатації.
Література
-
М.Г. Чиликин, А.С. Сандлер. Общий курс электропривода. - М: Энергоиздат, 1981, - 456 с.
-
Электротехнический справочник / под редакцией В.Е. Герасимова / т.3, кн.2. - М: Атомиздат, 1988, - 658 с.
-
А.А. Красовский, П.С. Поспелов. Техническая кибернетика. - М: Энергоиздат, 1965, - 670 с.
-
Справочник по электрическим машинам / под редакцией А.П. Копылова, Клокова /. - М: Энергоиздат, 1988, - 357 с.
-
Справочник по автоматизированому электроприводу. Под ред.В.А. Елисеева и А.В. Шинянского. - М:. Энергоиздат, 1983. - 616
-
Б.О. Баховець. Методичні вказівки до виконання курсового проекту з курсу "Автоматизований електропривод". - Рівне: РДТУ, 2001, 68 с.
-
Кацман М.М. Справочник по электрическим машинам: Учеб. пособие. - М.: Издательский центр "Академия", 2005. - 480 с.















