124919 (690196)
Текст из файла
Курсовая работа по дисциплине:
Конструирование изделий из композиционных
материалов
Киль легкого самолета
Казань, 2008 г.
Содержание:
1. Назначение киля и требования к нему………………………………..………3
2. Техническое описание киля………………………………..………………….3
3. Конструктивно – силовая схема киля…………………………………….…..3
4. Нормирование нагрузок………………………………………….……………5
5. Проектировочные расчеты………………………………………………….....7
I. Построение эпюр……………………………………………………..…………7
II. Проектировочный расчет на прочность……………………………………10
Список используемой литературы……...……………………..……………….13
1. Назначение киля и требования к нему
К оперению самолета относятся горизонтальное и вертикальное оперение.
Горизонтальное оперение служит для обеспечения продольной, а вертикальное – путевой устойчивости и управляемости самолета.
К вертикальному оперению самолета предъявляются следующие основные требования:
- обеспечение путевой устойчивости и управляемости самолета на всех режимах полета, в том числе и на режимах, близких к αкр (посадка, штопор);
- наименьшее лобовое сопротивление;
- возможно меньшее затенение оперения крылом, фюзеляжем, гондолами двигателей, а также одной части оперения другой;
- исключение возможности возникновения вибраций;
- простота монтажа и демонтажа оперения на самолете.
2. Техническое описание киля
Киль летательного аппарата – часть хвостового оперения самолёта, расположенная в вертикальной (или наклонной) плоскости и предназначенная для обеспечения путевой устойчивости.
Киль представляет собой консольную балку. К задней кромке киля на шарнирах крепится руль направления полёта.
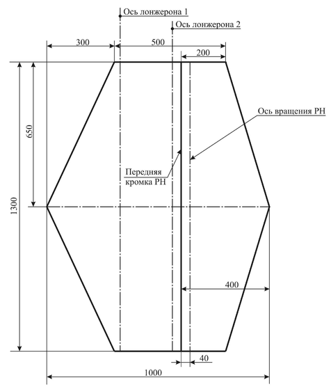
В конструкцию киля входят два лонжерона. Первый располагается позади носка киля, а второй перед передней кромкой руля направления. Первый лонжерон необходим для крепления киля к хвостовой части фюзеляжа, обычно здесь используются шарнирные узлы крепления, которые устанавливаются на поясах лонжеронов.
На заднем (втором) лонжероне расположены узлы навески руля направления.
3. Конструктивно – силовая схема киля
Конструктивно-силовая схема киля – двухлонжеронная.
Лонжероном воспринимаются изгибающий момент и перерезывающие силы. Пояса лонжерона берут осевые усилия от изгибающего момента, а стенки погонные касательные усилия от перерезывающей силы. Кроме этого в стенке лонжерона могут действовать погонные усилия от крутящего момента. Крутящий момент воспринимается только замкнутыми контурами.
Этот лонжерон целесообразно размещать в месте максимальной строительной высоты. Обычно это совпадает с местом положения оси вращения.
Лонжерон обычно представляет собой балку таврового или швеллерного типа. Стенка лонжерона изготовлена из трехслойного КМ (сотовый заполнитель). Причем несущие слои стенки выкладываются под углом ± 45˚, так как они работают на сдвиг. А пояса лонжерона выклеиваем из лент стеклоткани Т – 10, практически однонаправлены. Пояс будет работать на сжатие и не извернется, т.к. одну кромку будет держать стенка лонжерона, а другая кромка упирается в трехслойную обшивку и не выпадает оттуда. Несущие слои тоже укладываются под углом ± 45˚, это делается для того, что бы повысить жесткость агрегата (деформация в 3 раза меньше). Обшивку в носике целесообразно сделать однослойной, т.к. большая кривизна, нагрузку выдержит, а вся обшивка будет трехслойная.
Рис. 1.
4. Нормирование нагрузок
Исходные данные:
Самолет имеет двухкилевое ВО установленное симметрично относительно плоскости хорд крыла.
Рис. 2.
Общая площадь вертикального оперения:
Площадь одного вертикального оперения
.
Площадь крыла
.
Вес самолета
.
Максимально допустимая скорость полета
.
Максимально допустимый скоростной напор
.
f = 1,5; nЭmax = 4.
Во всех случаях нагружения распределение нагрузок по размаху оперения принимается пропорционально хордам, а нагрузки параллельные хордам, из-за малой величины не учитываются.
Расчетный случай: маневренная нагрузка.
Нагрузка вертикального оперения, возникающая при маневре в горизонтальной плоскости, может быть определена по формуле
где SB.0. - площадь вертикального оперения.
, Н.
В соответствии с АП23 п.23.445 «Разнесенное (двухкилевое) вертикальное оперение» 65% вычисленной нагрузки приходиться на один киль.
, Н.
Удельная нагрузка на вертикальное оперение (нагрузка на единицу площади) равна:
, Н.
В соответствии с "Нормами прочности спортивных планеров" эксплуатационная удельная нагрузка меньше 800н/м2 не берется.
Расчетная удельная нагрузка прикладывается «к части ВО, находящейся выше горизонтального, а 80% этой нагрузки - к части находящейся ниже».
Расчетная удельная нагрузка прикладывается «к части ВО, находящейся ниже горизонтального, а 80% этой нагрузки - к части находящейся выше».
Нагрузка киля рассчитывается пропорционально его площади:
, Н,
где
- площадь киля.
, Н.
Нагрузка по размаху (высоте) киля распределяется пропорционально его хорде:
, Н,
где bк – хорда киля в сечении, тогда
, Н.
Распределение нагрузки по хорде вертикального оперения в случае маневренной нагрузки и остановки двигателей производится так, как показано на рисунке:
Рис. 3.
5. Проектировочные расчеты
I. Построение эпюр
Киль представляет собой консольную балку. Расчетная схема киля – защемленная балка, нагруженная распределенной нагрузкой q и реакциями от руля Rt, приложенными в узлах его навески. За ось z принимаем ось жесткости. В проектировочном расчете делаем допущение, что перерезывающая сила воспринимается стенками лонжеронов, распределяясь между ними пропорционально квадратам их высот, а крутящий момент воспринимается замкнутым контуром, образованным обшивкой и стенкой заднего лонжерона.
Для киля центр давления
Рис. 4.
Определение изгибающих моментов и перерезывающих сил киля.
Рис. 5.
, Н/м
Расчет ведем с концов киля. Для левого участка (рис. 5.) имеем:
Для правого участка (рис. 5.) имеем:
| zр м. | 0,00 | 0,10 | 0,20 | 0,30 | 0,40 | 0,50 | 0,60 | 0,65 | 0,65 | 0,60 | 0,50 | 0,40 | 0,30 | 0,20 | 0,10 | 0,00 |
| z м. | 0,00 | 0,10 | 0,20 | 0,30 | 0,40 | 0,50 | 0,60 | 0,65 | 0,65 | 0,70 | 0,80 | 0,90 | 1,00 | 1,10 | 1,20 | 1,30 |
| Q н. | 91 | 137 | 189 | 248 | 314 | 386 | 465 | 506 | -398 | -365 | -302 | -244 | -192 | -145 | -103 | -66 |
| Mи н*м. | 0 | 11 | 28 | 49 | 77 | 112 | 155 | 179 | 139 | 120 | 87 | 59 | 37 | 21 | 8 | 0 |
Рис. 6.
Определение крутящих моментов киля.
Расчет ведем с концов киля.
Погонный крутящий момент
Для левого участка (рис. 5.):
Для правого участка (рис. 5.):
| zр м. | 0,00 | 0,10 | 0,20 | 0,30 | 0,40 | 0,50 | 0,60 | 0,65 | 0,65 | 0,60 | 0,50 | 0,40 | 0,30 | 0,20 | 0,10 | 0,00 |
| z м. | 0,00 | 0,10 | 0,20 | 0,30 | 0,40 | 0,50 | 0,60 | 0,65 | 0,65 | 0,70 | 0,80 | 0,90 | 1,00 | 1,10 | 1,20 | 1,30 |
| b м | 0,30 | 0,35 | 0,39 | 0,44 | 0,48 | 0,53 | 0,58 | 0,60 | 0,60 | 0,58 | 0,53 | 0,48 | 0,44 | 0,39 | 0,35 | 0,30 |
| q н*м. | 426 | 492 | 557 | 623 | 689 | 754 | 820 | 853 | 682 | 656 | 603 | 551 | 498 | 446 | 394 | 341 |
| хц.д. м | 0,15 | 0,17 | 0,20 | 0,22 | 0,24 | 0,27 | 0,29 | 0,30 | 0,30 | 0,29 | 0,27 | 0,24 | 0,22 | 0,20 | 0,17 | 0,15 |
| xж м | 0,17 | 0,2 | 0,2 | 0,2 | 0,3 | 0,3 | 0,3 | 0,3 | 0,33 | 0,32 | 0,29 | 0,27 | 0,24 | 0,22 | 0,19 | 0,2 |
| m н | 6,39 | 8,5 | 11 | 14 | 17 | 20 | 24 | 26 | 20,5 | 18,9 | 16 | 13,3 | 10,9 | 8,75 | 6,81 | 5,12 |
| dМкр | 0,00 | 0,7 | 0,97 | 1,23 | 1,52 | 1,84 | 2,18 | 1,23 | 0,98 | 1,75 | 1,47 | 1,21 | 0,98 | 0,78 | 0,60 | 0,00 |
| Mкр(m) | 0,00 | 0,75 | 1,72 | 2,95 | 4,46 | 6,30 | 8,48 | 9,71 | 7,77 | 6,79 | 5,04 | 3,57 | 2,36 | 1,37 | 0,60 | 0,00 |
| Mкр(P) | -16 | -18 | -20 | -22 | -23 | -25 | -27 | -28 | -20 | -20 | -18 | -17 | -16 | -14 | -13 | -12 |
| Mкр н*м | -16 | -17 | -18 | -19 | -19 | -19 | -19 | -18 | -13 | -13 | -13 | -13 | -13 | -13 | -12 | -12 |
Характеристики
Тип файла документ
Документы такого типа открываются такими программами, как Microsoft Office Word на компьютерах Windows, Apple Pages на компьютерах Mac, Open Office - бесплатная альтернатива на различных платформах, в том числе Linux. Наиболее простым и современным решением будут Google документы, так как открываются онлайн без скачивания прямо в браузере на любой платформе. Существуют российские качественные аналоги, например от Яндекса.
Будьте внимательны на мобильных устройствах, так как там используются упрощённый функционал даже в официальном приложении от Microsoft, поэтому для просмотра скачивайте PDF-версию. А если нужно редактировать файл, то используйте оригинальный файл.
Файлы такого типа обычно разбиты на страницы, а текст может быть форматированным (жирный, курсив, выбор шрифта, таблицы и т.п.), а также в него можно добавлять изображения. Формат идеально подходит для рефератов, докладов и РПЗ курсовых проектов, которые необходимо распечатать. Кстати перед печатью также сохраняйте файл в PDF, так как принтер может начудить со шрифтами.















