124194 (689904)
Текст из файла
МИНИСТЕРСТВО ОБРАЗОВАНИЯ И НАУКИ УКРАИНЫ
ДОНЕЦКИЙ НАЦИОНАЛЬНЫЙ ТЕХНИЧЕСКИЙ УНИВЕРСИТЕТ
Механический факультет
Кафедра «Металлорежущие станки и инструменты»
КУРСОВОЙ ПРОЕКТ
По дисциплине: «Металлорежущий инструмент»
На тему: «Расчет металлорежущих инструментов»
ПК 04.29.86.00.00.000
Исполнитель
Студент гр. МС 05а А.Е. Кондратенко
Консультант Ю.А. Гринев
Нормоконтролер И.В. Киселева
ДОНЕЦК 2008
ЗАДАНИЕ
Обрабатываемый материал cталь ст.5
-
Спроектировать долбяк для обработки зубчатых колес m=3.75 мм, z1=25, z2=40, Ст. 7-D.
-
Спроектировать комбинированную развертку для обработки отверстий d1=20H7 мм, d2=28H7 мм, l1=28 мм l2=35 мм, Ra=2.5 мкм.
-
Спроектировать протяжку для обработки шлицевой втулки D-2×35F7×41.6+0.2×8±0.018, L=31 мм, Rz=40
-
Разработать карту наладки для заточки долбяка по задней поверхности
РЕФЕРАТ
Объект исследования: протяжка шлицевая, развертка комбинированная, долбяк для обработки зубчатых колес,
Цель работы: спроектировать указанные инструменты и разработать карту наладки для заточки долбяка по задней поверхности.
В курсовом проекте приведены расчеты всех параметров и размеров указанных инструментов, выбраны материалы для изготовления инструмента.
Разработаны рабочие чертежи рассчитываемых инструментов.
ПРОТЯЖКА, РАЗВЕРТКА, ЗАГОТОВКА, ДОЛБЯК, ХВОСТОВИК, МОДУЛЬ, ДОПУСК, ЗУБ, ПРОФИЛЬ.
СОДЕРЖАНИЕ
ВВЕДЕНИЕ
1 РАСЧЕТ ШЛИЦЕВОЙ ПРОТЯЖКИ
1.1 Исходные данные для расчета комбинированной протяжки
1.2 Выбор конструкции и материала протяжки
1.3 Выбор типа хвостовика и его размеров
1.4 Определение профиля и геометрических пораметров зубьев протяжки
1.5 Выбор станка
1.6 Расчет шлицевой части протяжки
1.7 Определение конструктивных размеров протяжки
1.8 Расчет резьбового соединения
2 РАСЧЕТ КОМБИНИРОВАННОЙ РАЗВЕРТКИ
2.1 Исходные данные для расчета комбинированной развертки
2.2 Диаметр развертки
2.3 Геометрические параметры развертки
2.4 Распределения зубьев развертки
2.5 Глубина стружечной канавки
2.6 Хвостовик развертки
3 РАСЧЕТ ДОЛБЯКА
3.1 Исходные данные для проектирования долбяка
3.2 Определение дополнительных технологических данных, необходимых для расчета долбяка
3.3 Определение геометрических параметров долбяка
3.4 Определение размеров долбяка в исходном сечении
3.5 Определение исходных расстояний долбяка
3.6 Определение высоты долбяка
3.7 Определение размеров долбяк по передней поверхности
ЗАКЛЮЧЕНИЕ
СПИСОК ИСПОЛЬЗОВАННОЙ ЛИТЕРАТУРЫ
ВВЕДЕНИЕ
Целью данного курсового проекта является расчет и проектирование металлорежущих инструментов: протяжка шлицевая, развертка комбинированная и долбяк для обработки зубчатых колес.
Протягивание является одним из наиболее высокопроизводительных процессов обработки деталей резанием. Высокая производительность процесса протягивания объясняется тем, что одновременно находится в работе несколько зубьев инструмента с большой суммарной длиной режущих кромок. Протягивание позволяет получать поверхности высокой точности (6-го – 8-го квалитетов точности) и низкой шероховатости (Ra=0.63-0.25 мкм).
Наиболее широкое применение получили протяжки для обработки шлицевых отверстий. При центрировании шлицевой втулки на валу, по внутреннему диаметру, для обеспечения более высокой точности центрирования необходимо протягивать одной протяжкой внутренний диаметр, шлицевые канавки и фаски.
Комбинированные развертки используют при обработки ступенчатых отверстий, высокой точности, небольших и средних диаметров, в крупносерийном и массовом производстве.
Долбяки применяют для изготовления прямозубых и косозубых цилиндрических зубчатых колес внутреннего и внешнего зацепления. Зацепление долбяка с зубчатым колесом в процессе нарезания аналогично зацеплению коррегированной зубчатой передачи
1 РАСЧЕТ ШЛИЦЕВОЙ ПРОТЯЖКИ
-
1.1 Исходные для расчета комбинированной протяжки
Исходными данными для расчета комбинированной шлицевой протяжки группового резания являются:
-
материал обрабатываемой детали сталь 38ХМ;
-
внешний диаметр шлицев D=41.6+0.2 мм;
-
внутренний диаметр шлицев d=35F7 мм;
-
число шлицев n=2;
-
ширина шлицев b=8±0.018 мм;
-
способ центрирования шлицевого соединения: по D;
-
длина втулки, которая протягивается, L=31 мм;
- длина всей втулки (включая ту часть которая протягивается), Lв=61h12мм
-
шероховатость обработки Rz 40
1.2 Выбор конструкции и материала протяжки
1.2.1 Анализ и техническое обоснование принятой конструкции протяжки
Конструктивные особенности, суммарная длина и технологичность изготовления шлицевых протяжек во многом зависят от принятой последовательности срезания припуска, т.е. от комбинации зубьев, которые обрабатывают те или иные элементы шлицевой втулки.
При обработке втулки для шлицевого соединения с центрированием по внешнему диаметру (D) или боковым поверхностям шлицев (b) протяжка имеет только фасочные и шлицевые группы зубьев. При центрировании по внутреннему диаметру шлицев протяжка должна содержать дополнительно круглые зубья.
В нашем случае пртяжка является сборной и состоит из стержня и двух сменных лезвий, которые вводятся в призматические пазы стержня протяжки и закрепляются в них с помощью шайбы и 4-х штифтов.
В нашем случае фаски в основании шлицевых пазов отсутствуют, следовательно сменные лезвия будут иметь только шлицевые зубья.
Преимуществами данной конструкции протяжки по сравнению с плоской протяжкой являются:
- лучшее центрирование данной протяжки относительно обрабатываемой втулки;
- возможность замены предельно сточенных лезвий новыми;
- меньший расход быстрорежущей стали ,идущей на производство сменных лезвий.
1.2.2 Выбор материала протяжки
Материал режущей части протяжки выбирается в зависимости от обрабатываемого материала, его физико-механических свойств, типа протяжки, характера производства. В данном случае материалом режущей части протяжки является быстрорежущая сталь Р6М5, материалом стержня протяжки является сталь 40ХМ [3,стр. 7,табл. 1].
-
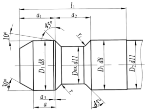
1.3 Выбор типа хвостовика и его размеров
Тип хвостовика и его размеры выбирают в зависимости от вида патрона протяжного станка, преимущество следует отдавать быстросменным патронам.
Диаметр хвостовика должен быть меньше диаметра предварительно обработанного отверстия D0 не менее, чем на 0,3 мм для свободного входа хвостовика в деталь.
Do=35F7 мм;
мм, принимаем
мм [3, стр.8, табл.2].
Таблица 1.1 – Основные размеры хвостовиков под быстросменные патроны, в мм
| D1 | D2 | a | a1 | a2 | r | r1 | a3 | Fox | l1 |
| 32 | 25 | 20 | 32 | 32 | 0.4 | 1.6 | 1.0 | 490.9 | 96 |
Рисунок 1.1 - Основные размеры хвостовика протяжки
-
1.4 Определение профиля и геометрических пораметров зубьев протяжки
1.4.1 Выбор размеров и профиля стружечных канавок
У протяжек шаг черновых и переходных зубьев на всех частях протяжки принимается одинаковым и равным
, мм
где L – длина обрабатываемой втулки;
К =1,9- для групповой схемы резания [3,стр.8].
мм.
Р
исунок 1.2 – Форма и размеры профиля зубьев протяжки
Таблица 1.2 – Размеры профилей зубьев протяжки в (мм).
| t | h | r | q | R | Fa |
| 11 | 4.5 | 2.25 | 4 | 7 | 15.9 |
Для обеспечения нормальной работы протяжки без вибраций и удовлетворительного качества обработанной поверхности должно выполняться неравенство
2 Zодн 6...7,
где
- количество одновременно работающих зубьев
Целая часть показывает минимальное количество одновременно работающих зубьев Zmin, а величина Zmax = Zmin+1 – максимальное количество одновременно работающих зубьев.
1.4.2 Выбор геометрических параметров протяжки
Величины передних углов зубьев протяжки зависят от обрабатываемого материала [3, стр.10, табл.4]. Передний угол влияет на усилие протягивания, чистоту обработанной поверхности и стойкость протяжки. Для черновых и переходных зубьев величина переднего угла выбирается в зависимости от обрабатываемого материала.
Задний угол выбирается в зависимости от точности обработки [3, стр.10, табл.4]. Задний угол служит для уменьшения трения задней поверхности зуба об обрабатываемую поверхность. С увеличением заднего угла уменьшается величина износа по задней поверхности зуба протяжки. Однако с увеличением заднего угла ослабляется режущая кромка и ухудшается отвод тепла от зуба протяжки; это ограничивает величину заднего угла. Кроме того, величина заднего угла на черновых зубьях ограничена тем, что при значительных величинах задних углов протяжка быстро теряет диаметральные размеры после перетачивания по передней поверхности.
На калибрующих зубьях, для которых важно сохранить поперечные размеры, задний угол меньше, чем в черновых. Кроме того, для сохранности размера при перетачиваниях на задних гранях калибрующих зубьев у протяжек для внутреннего протягивания шлифуют цилиндрические ленточки шириной f=0,2-0,6 мм. Калибрующие зубья протяжек для цилиндрических отверстий допускается изготовливать без ленточек.
Таблица 1.3 – Геометрические параметры протяжек группового резания
| Вид зубьев | Передние углы в зависимости от обрабатываемого материала | Задние углы в зависимости от точности обработки |
| Сталь 38ХМ | 10-й квалитет и ниже | |
| св. HB 180 | ||
| Черновые, переходные | 15 | 3 |
| Чистовые | 5 | 2 |
| Калибрующие | 5 | 2 |
1.4.3 Определение подъемов на зуб
Черновые зубья протяжки объединены в группы по два зуба в каждой. Подъем на черновую группу рассчитывается по формуле
Szч = Fакт/(LKдоп), мм/гр,
где Fакт – активная площадь стружечной канавки зубьев протяжки
Kдоп=3 – минимально допустимый коэффициент заполнения стружечной канавки [3,стр.10,табл. 5],
Kдоп приннимаем равным 3.3, так как b≥1,2 D [3,стр.10,прим. 1],
мм/гр., принимаем
На переходной части протяжки зубья также объединены в двузубые группы. Подъем на переходную группу выбирается в зависимости от найденной Szч [3,стр.11,табл.7].
Таблица 1.4 - Подъем на переходную группу зубьев протяжки
| Подъем на черновых зубmях Szч, мм | Припуск на переходные зубmz Апер, мм | Количество переходных секций | Распределение припуска по секциям, мм | ||
| 1 секция | 2 секция | 3 секция | |||
| 0,16 | 0,32 | 2 | 0.214 | 0.106 | - |
Подъем зубьев на чистовой части, число чистовых и калибрующих зубьев зависит от точности обработки, квалитета и шероховатости обработанной поверхности [3,стр.11,табл.8].
Чистовые зубья протяжки выполняют несекционированными с подъемом на каждый зуб.
Характеристики
Тип файла документ
Документы такого типа открываются такими программами, как Microsoft Office Word на компьютерах Windows, Apple Pages на компьютерах Mac, Open Office - бесплатная альтернатива на различных платформах, в том числе Linux. Наиболее простым и современным решением будут Google документы, так как открываются онлайн без скачивания прямо в браузере на любой платформе. Существуют российские качественные аналоги, например от Яндекса.
Будьте внимательны на мобильных устройствах, так как там используются упрощённый функционал даже в официальном приложении от Microsoft, поэтому для просмотра скачивайте PDF-версию. А если нужно редактировать файл, то используйте оригинальный файл.
Файлы такого типа обычно разбиты на страницы, а текст может быть форматированным (жирный, курсив, выбор шрифта, таблицы и т.п.), а также в него можно добавлять изображения. Формат идеально подходит для рефератов, докладов и РПЗ курсовых проектов, которые необходимо распечатать. Кстати перед печатью также сохраняйте файл в PDF, так как принтер может начудить со шрифтами.















