124150 (689866), страница 4
Текст из файла (страница 4)
Х = 1, У = 0.
Принимаем коэффициент динамичночти нагрузки Кб для редуктора равным 1,4, Температурный коэффициент Кт = 1 (tраб < 100°С). Тогда эквивалентная динамическая радиальная нагрузка:
Pr = (VXFr + YFa)· Кб· Кт = 1·1·12745·1,4·1 = 17 844 Н.
Расчетный скорректированный ресурс подшипника при а1 = 1( вероятность безотказной работы 90%), а23 = 0,7 (обычные условия применения), к=3 (шариковый подшипник):
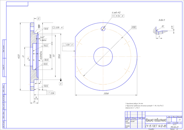
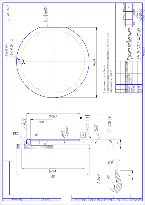
, условие не выполняется, назначем подшипник с большим диаметром №412:
Динамическая грузоподъемность С – 85,6 кН;
Статическая грузоподъемность С0 – 71,4 кН;
, за требуемое время эксплуатации подшипник придется поменять один раз.
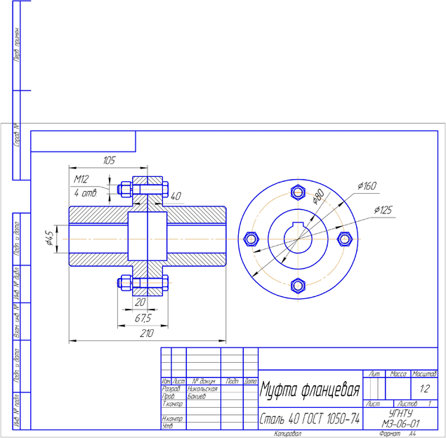
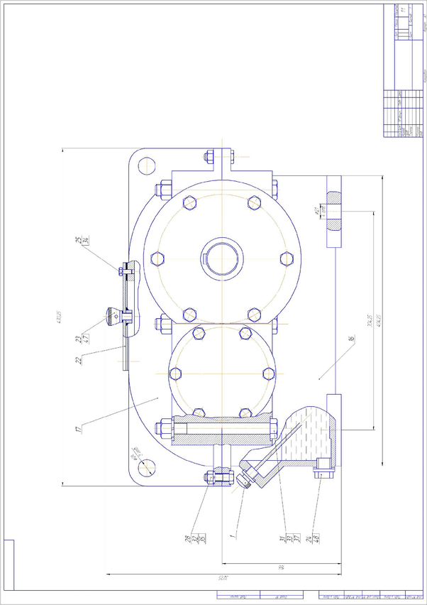
7 Расчет муфты
По диаметру выходного вала выбираем фланцевые муфты.
Таблица 7.1 – Основные параметры габаритные и присоединительные размеры:
| Полу- муфта | d, мм | MP, Нм | l, мм | L, мм | D0, мм | dСТ, мм | Болты | |
| Обозначение | Кол-во | |||||||
| I | 45 | 509,3 | 105 | 220 | 125 | 80 | M12 | 4 |
| II | 45 | 509,3 | 105 | 220 | 125 | 80 | M12 | 4 |
Расчет муфты ведут не по номинальному моменту М, а по расчетному моменту МР.
где kР - коэффициент режима работы (kР = 1,4 при спокойной работе и небольших разгоняемых при пуске массах);
М = 509,3 Н∙м,
Мр = 509,3 ∙ 1,4 = 713,02 Н∙м.
Условие прочности на срез болтов, установленных без зазора:
где: D0 – диаметр окружности, проходящей через центры болтовых отверстий;
z – число болтов;
dб – диаметр стержня болта, мм (для болтов не более М24 диаметр dб на 1 мм больше диаметра резьбы);
где τср- допускаемое напряжение на срез для болтов, МПа;
σТ - предел текучести материала болта. Для выбранной стали Ст3 σТ =220 МПа
τср = 29,1 МПа
Условие прочности выполняется.
Окончательно принимаем: муфта фланцевая 63-45-11-УЗ ГОСТ 20761-96.
Список использованной литературы:
-
Анурьев В. И Справочник конструктора-машиностроителя. В 3-х т. Т. 1. — 5-е изд., перераб. и доп. — М.: Машиностроение, 1980. — 728 с, ил
-
Анурьев В. И Справочник конструктора-машиностроителя. В 3-х т. Т. 2. — 5-е изд., перераб. и доп. — М.: Машиностроение, 1980. — 559 с, ил
-
Анурьев В. И Справочник конструктора-машиностроителя. В 3-х т. Т. 3. — 5-е изд., перераб. и доп. — М.: Машиностроение, 1980. — 557 с, ил
-
Варианты заданий для проектирования приводов в курсе «Детали машин»: Методические указания/Сост. А.С. Сулейманов, Д.Ф. Хитин. – Уфа,: Изд-во УГНТУ, 1998. -29с..
-
Дунаев П.Ф., Леликов О.П., «Детали машин» Курсовое проектирование. – М.: Высш. Школа, 2004год.
-
Дунаев П.Ф., Леликов О.П., «Конструирование узлов и деталей машин»: Учеб. пособие для студентов технических специальностей – 8-е изд., перераб.. и доп. – М.: издательский цент «Академия», 2003. – 496 с.
-
Курмаз, Л.В. Детали машин. Проектирование: Справочное учебно-методическое пособие/Л.В. Курмаз, А.Т. Скойбеда. — 2-е изд., испр.: М.: Высш. шк., 2005. — 309 с: ил.
-
Расчет зубчатых передач на прочность: Методические указания/ Сост. А.С. Сулейманов, Д.Ф. Хитин, Э.А. Щеглов. – Уфа,: Изд-во УГНТУ, 1995.-30с
-
Чернилевский Д.В. Курсовое проектирование деталей машин и механизмов: Учебное пособие. – М.: Высшая школа, 1980. – 238 с.















