123946 (689728), страница 2
Текст из файла (страница 2)
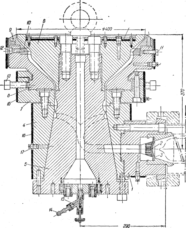
Головка, изображенная на рис. 7, присоединяется к машине с помощью перехода 1, в котором расположены решетка 2 и сетка 3 (при переработке полиэтилена устанавливают две сетки № 20 и две сетки № 50). Головка состоит из двух частей — нижнего корпуса 4 и верхнего корпуса 8. Распределение монолитного потока и придание ему формы трубы осуществляется распределителем 5. Дорн 6 вместе с кольцом 9 образует формующий зазор. С помощью болтов кольцо перемещается и деформируется, вследствие чего уменьшается разнотолщинность пленки.
Предварительная калибровка может быть произведена регулировочным кольцом 10. Внутри распределителя и дорна высверлены каналы, по которым подается воздух для пневматического растяжения. По вертикальному стволу головки расположены электронагреватели, сгруппированные в зоны. Перед пуском обогревается и дорн, также имеющий элемент электрообогрева. Контрольза режимом работы электрооборудования осуществляется посредством контрольно-измерительных приборов и сигнальных ламп.
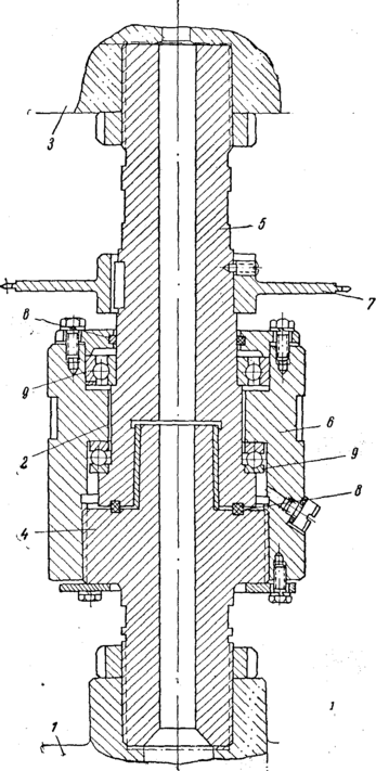
Рисунок 6 - Головка с боковым питанием:
1-дорн; 2-направляющая втулка; 3-формующее кольцо; 4-регулировочный болт; 5-штуцер для входа расплава
В современных агрегатах в переходе устанавливают манометр для измерения давления расплава, а также термопары для -измерения температуры расплава.
Устранить стыковые полосы на пленке удалось на вращающихся головках (осциллирующих).
Осциллирующая головка, изображенная на рис. 8, состоит из трех основных частей—патронного держателя 1, промежуточного соединения 2 и формующей головки 3. Расплав из машины выдавливается в патронный держатель и через канал промежуточного соединения поступает в формующую головку. В патронном держателе помещена цилиндрическая решетка, в которой крепятся фильтрующие сетки и дроссельный клапан для регулирования противодавления в конце червяка. Распределитель формующей головки имеет спиралеобразный канал. Формующая головка 3 соединена с патронным держателем 2 при помощи промежуточного устройства, вращающего головку; оно состоит из нижнего неподвижного переходника 4, соединенного с верхним вращающимся переходником 5 гайкой 6. На переходнике 5 закреплена звездочка 7, с помощью которой он соединяется с приданным головке приводом. Плоскости сопряжения переходников имеют специальные уплотнения 8. Верхний переходник вращается в шарикоподшипниках коробка с электромагнитными муфтами и концевые выключатели, с помощью 9. В систему привода входит реверсная которых изменяется направление вращения головки. Угол поворота головки может изменяться от 10 до 360°. Привод обеспечивает плавное вращение головки от 0,076 до 0,58 об/мин.
На осциллирующей головке линия стыка не фиксируется в определенном положении. На выдавливаемый из головки стык непрерывно наплывают смежные струи потока, вследствие чего в пленке исчезает стыковая полоса.
Для производства пленок разработаны также вертикальные осциллирующие машины. Подробных сведений об эксплуатации' таких машин еще нет.
Охлаждение рукава. Сразу же после выхода из головки рукав принудительно охлаждается потоком воздуха, нагнетаемым воздуходувкой через наружное кольцо. За- зоной принудительного охлаждения на пути к тянущим вытяжным валкам рукав продолжает охлаждаться естественно омывающим его воздухом.
рукав пленки. Воздуходувка имеет производительность 8 м^/мин и развивает напор 190.-220 мм. вод. ст.
Приемное устройство состоит из следующих узлов: 1) складывающих щек; 2) тянущих отжимных валков с приводом; 3) приспособления для обрезки кромок; 4) разглаживающего изогнутого «горбатого» валика и 5) намоточных приспособлений.
Основанием приемного устройства служит сварная рама, установленная на домкратах. При опускании рамы домкратами она становится на ролики и может быть отвезена от машины. В середине рамы расположены площадки с барьером для обслуживающего персонала. На пульте приемного устройства расположены амперметр двигателя тянущих отжимных валков, регулятор намоточного устройства, кнопка регулирования скорости вращения тянущих валков и пусковые кнопки двигателей тянущих и намоточных валков.Охлаждающее кольцо укрепляют над головкой. Воздухпоступает в него по 12 подводящим шлангам через воздушно-компенсационный резервуар из воздуходувки, а затем через круговую щель под углом 45° направляется на свой объем.
Рисунок 7 - Угловая кольцевая пленочная головка:
1—переход; 2— решетка; 3—фильтрующие сетки; 4—нижний корпус головки; 5—распределитель потока; 6-дорн; 7—фланец; 8— верхний корпус головки; 9—калибрующее кольцо; 10— регулировочное кольцо; 11- нажимной болт; 12— отжимной болт; 13— регулировочный болт; 14— штуцер для ввода воздуха; 15— регулятор воздуха; 16— электронагреватели; 17— термопари.
Рисунок 8 - Осциллирующая головка:
1—патронный держатель; 2—промежуточное соединение; 3—формующая головка; 4—неподвижный переходник; 5—вращающийся переходник; 6—гайка; 7—звездочка; 8—уплотнения; 9—шарико-подшипники.
Складывающие щеки представляют собой две шарнирно соединенные рамы. На внутренних сторонах рам укреплен бархат. Щеки можно устанавливать под нужным углом, что позволяет складывать рукав в двойное полотно без складок, и на минимальном расстоянии от тянущих отжимных валков. При этом расстояние между головкой и тянущими отжимными валками 1,5 м.
Тянущее отжимное приспособление состоит из двух валков:•один из них металлический, другой гуммированный. Стальной валок имеет привод с вариатором. Его окружную скорость можно менять в пределах 2—20 м/мин. Гуммированный валок расположен в подвижных подшипниках и может передвигаться. Расстояние между валками достигает 30 мм. При их сближении рукав плотно зажимается, и воздух, содержащийся в рукаве, сохраняет
Плоские ножи для обрезки кромок укреплены на специальных кронштейнах и расположены с двух сторон между двумя опорными валками. Кромки непрерывно наматываются на катушки, вращающиеся от привода тянущих валков.
Рукав после обрезки образует два плоских полотна, которые затем подают на намотку. Во избежание образования складок в рулоне полотно перед намоткой разглаживается специальным изогнутым валиком (рис. 9), представляющим собой стальную изогнутую трубу, на которой укреплены шарикоподшипники с кольцами. На этот каркас натягивается резиновая трубка. Валику может быть придан перекос в нужном направлении, вследствие чего обеспечивается распрямление пленки и правильная намотка.
Намотка пленки осуществляется за счет фрикции рулона с пленкой о намоточный валок. Намоточное устройство состоит из двух одинаковых узлов, в которые входят намоточный валок с приводом, наклонная зубчатая рейка и втулка. Вал втулки находится в зубчатом зацеплении с наклонной рейкой. При вращении намоточного валка вращается также втулка с наматываемой на нее пленкой.
Д
иаметр рулона ~ 300—400 мм. Пленка должна наматываться при температуре < 60°С. При более высоких температурах она может слипаться в рулоне.
Рисунок 9 - Изогнутый распрямляющий валик приемного устройства для пленки:
1—труба; 2, 7—кольца; 3—подшипник; 4— ступица; 5, 9— втулки; 6— прокладка; 8—гайка; 10—шаровая опора; 11—цапфа; 12, 13—стопорные винты; 14—фланец; 15— втулка; 16— штифт; 17— стальной изогнутый валик.
Управление процессом. Перед началом работы нагревают цилиндр машины и головку. По достижении заданных температур нагрев длится еще 30 мин при незагруженной машине и 2 ч, если машина была заполнена материалом. После этого включают двигатель, вращающий червяк. В момент пуска машины число оборотов червяка должно быть минимальным. Цилиндрический рукав, выдавливаемый из головки, центрируют калибрующими болтами таким образом, чтобы скорость потока расплава по всему периметру головки была примерно одинаковой и не происходил бы односторонний изгиб рукава. При достижении соосности рукава с головкой его принимают в зазор раздвинутых тянущих отжимных валков. При отсутствии на рукаве складок валки постепенно сводят. Скорость вращения тянущих отжимных валков регулируют в зависимости от толщины выпускаемой пленки. -Например, линейная скорость отвода рукава при толщине пленки 40 мк составляет 10 м/мин, а при 60 мк—5 м/мин. Соотношение между скоростью отвода рукава и скоростью его выдавливания из головки оказывает существенное влияние на физико-механические свойства пленки, так как этим соотношением определяется степень продольной вытяжки пленки и, следовательно, ее ориентация.
Скорость выдавливания для полиэтилена определяется следующим уравнением:
(1)
где Q—производительность червячного пресса, кг/ч;
0,81 г/см3—плотность расплава полиэтилена при 140° С;
—диаметр кольцевого зазора, см;
t—зазор щели в головке, см..
Физико-механические свойства пленки зависят не только от свойств исходного полимера, но и от температурного режима и степени вытяжки. При понижении температуры возрастает предел прочности при растяжении. Долевая вытяжка оказывает существенное влияние на свойства пленки. Разница в свойствах пленки в долевом и поперечном направлениях. зависит от отношения вытяжки к раздувке. Для того чтобы пленка имела одинаковые свойства в обоих направлениях, при раздувке в три раза нужно вытянуть пленку на 300%. Обычно вытяжка превышает степень раздувки. После защемления рукава в тянущих отжимных валках в него постепенно нагнетают воздух давлением ризб==100—200 мм вод. ст.Подачу воздуха регулируют таким образом, чтобы диаметр рукава в его цилиндрической части был постоянным. Существуют пневматические устройства, регулирующие давление воздуха в рукаве.
Степень раздувки
(2)
(где Др—диаметр раздутого рукава, см) оказывает значительное влияние на равномерность пленки по толщине, особенно в поперечном направлении (табл. 2). Поэтому Ер не должна превышать 250%, т. е. диаметр рукава не должен быть больше диаметра формующего зазора в 2,5 раза. Следовательно, для получения пленки шириной 1,5 м на головке диаметром 400 мм диаметр рукава должен быть равен 1000 мм.
Таблица 2
Зависимость равномерности пленки по толщине от степени раздувки
| Степень раздувки, % | Средняя толщина, мк | Отклонения по толщине, % | ||
| общие | поперек | вдоль | ||
| 150 | 57 | 12 | 10,5 | 9 |
| 250 | 43 | 16 | 16 | 10 |
| 350 | 44 | 32 | 32 | — |
С
тепень раздувки влияет и на механические свойства пленки: с ее увеличением повышается прочность на разрыв в поперечном направлении и несколько уменьшается относительное удлинение. Одновременно с началом раздувки рукава подают воздух в охлаждающее кольцо, установленное над головкой. Увеличение диаметра цилиндрического рукава при растяжении должно начинаться сразу после выхода из головки; нельзя допускать, чтобы растяжение начиналось близко или на значительном расстоянии от головки. .
Рисунок 10 - Конфигурация рукава в зоне раздувания:
а—вытянутая; б—нормальная; в—сильно раздутая.
Конфигурация рукава в зоне раздувания приведена на рис. 10.
На некотором расстоянии от головки пленка мутнеет. Это свидетельствует о том, что на данном участке начинается кристаллизация.
Линия кристаллизации является границей, отделяющей аморфный полимер от полимера, в котором начались процессы кристаллизации. За пределами линии кристаллизации раздувания больше не происходит. Расстояние от головки до линии кристаллизации зависит от температуры расплава, толщины пленки, скорости приемки и температуры окружающего воздуха Волнистый характер линии кристаллизации указывает на неравномерную температуру расплава по периметру рукава.
От сложенного рукава отрезают перед намоточным устройством образец и замеряют его толщину. Если средняя толщина пленки отличается от заданной в сторону уменьшения, повышают число оборотов червяка или уменьшают скорость оттяжки; если она Больше заданной толщины, то повышают число оборотов тянущих отжимных валков, а в случае необходимости снижают число оборотов червяка.















