123421 (689469)
Текст из файла
Курсовая работа по дисциплине:
Нормирование точности
Тема Курсового проекта
Нормирование основных деталей и узлов
Задание№1
1.Посадка с зазором:
Графическое изображение посадки с зазором рис.1
2.Переходная посадка
Графическое изображение переходной посадки рис.2.
Графическое изображение вероятности натяга рис.3.
2.1 Расчитываем усилие запрессовки Fз и разность температур Δt втулки, и вала для переходной посадки
2.2 Расчитываем усилие запрессовки Fз и разность температур Δt втулки, и вала для переходной посадки.
3.Посадка с натягом
Графическое изображение посадки с натягом рис.3.
3.1 Расчитываем усилие запрессовки Fз и разность температур Δt втулки, и вала для посадки c натягом
Задание №2
1. Выбор посадки с зазором. Номинальный размер Ø120 мм. Требуется выбрать посадку, в которой обеспечивается наибольший зазор – 0,180мм, и наименьший зазор – 0,005мм:
1.1 По табл.7 ГОСТ 25347- 82 определяем поле допуска вала. Оно соответствует значению h8, у которого es = 0, ei =-0,054мм.
1.2 По табл.8 ГОСТ 25347- 82 определяем поле допуска отверстия. Оно соответствует значению Н8, у которого ES = 0,054мм, EI =0.
1.3 В результате определения полей допусков вала и отверстия получаем
Dmax =Ø 120,054мм; Dmin =Ø 120мм
dmax =Ø120; dmin =Ø 119,946мм
TD=Td=0,054мм
Возможный Smax=0,108мм (заданный 0,180мм);
Возможный Smin=0 (заданный 0,005мм).
1.4 Выбирается посадка, соответствующая заданному условию:
Ø120H8/h8
1.5 Графическое изображение подобранной посадки
2. Выбор переходной посадки. Номинальный размер Ø100 мм. Требуется выбрать посадку, в которой обеспечивается наибольший зазор – 0,012мм, и наибольший натяг – 0,045мм:
2.1 По табл.7 ГОСТ 25347- 82 определяем поле допуска вала. Оно соответствует значению n6,, у которого es = 0,045мм, ei =0,023мм.
2.2 По табл.8 ГОСТ 25347- 82 определяем поле допуска отверстия. Оно соответствует значению Н5, у которого ES = 0,015мм, EI =0.
2.3 В результате определения полей допусков вала и отверстия получаем
Dmax =Ø 100.015мм; Dmin =Ø 100мм
dmax =Ø100.045мм ; dmin =Ø 100.023мм
TD=0,015мм; Td=0,022мм
Возможный Nmax=0,045мм (заданный 0,045мм);
Возможный Smax=0,008мм (заданный 0,012мм).
2.4 Выбирается посадка, соответствующая заданному условию:
Ø100H5/n6
2.5 Графическое изображение заданной и подобранной посадки рис.6.
3. Выбор посадки с натягом. Номинальный размер Ø200мм. Требуется выбрать посадку, в которой обеспечивается наибольший натяг – 0,160мм, и наименьший натяг – 0,050мм:
3.1 По табл.7 ГОСТ 25347- 82 определяем поле допуска вала. Оно соответствует значению s7, у которого es = 0,168мм, ei =0,122мм.
3.2 По табл.8 ГОСТ 25347- 82 определяем поле допуска отверстия. Оно соответствует значению Н7, у которого ES = 0,046мм, EI =0.
3.3 В результате определения полей допусков вала и отверстия получаем
Dmax =Ø 200.046мм; Dmin =Ø 200мм
dmax =Ø 200.168мм; dmin =Ø 200.122мм
TD=0,046мм; Td=0,046мм
Возможный Nmax=0,168мм (заданный 0,160мм);
Возможный Nmin=0,076мм (заданный 0,050мм).
3.4 Выбирается посадка, соответствующая заданному условию:
Ø200H7/s7
3.5 Графическое изображение заданной и подобранной посадки рис.7.
Задание №3
Пронормировать по точности отверстия под болтовое и шпилечное соединение для следующих данных L1=100мм, L2=100мм, d=5мм, D=100 мм, α1=90°, α2 =70°, α3=100°. Смоделировать соединения. Произвести анализ собираемости. Оформить эскизы на детали в двух вариантах: используя позиционные допуски и допуски на позиционные размеры.
-
Моделируем соединение двух плит по заданным параметрам.
Выбираем диаметры сквозных отверстий под крепёжные детали и соответствующие им наименьшие (гарантированные) зазоры по ГОСТ 11284-75. Выбираем 1-й ряд D=5,3 мм.
Выбираем предельные отклонения размеров координирующих оси отверстия. Система прямоугольных координат. Соединение типа А(болтовое). ГОСТ 14140-81, таблица №3. Коэффициент используемого зазора К=1.Предельные отклонения ±δL=0,22.
Выполняем сборку соединения.
Выполняем анализ зазоров в сборке и составляем отчет №1.
Отчет №1
Выполняется анализ зазоров -
Дата и время: 27-Nov-2006 21:37:45
Часть: D:\styd\31302\Itkinin\lab 3\coedinenie A.prt
Имя анализа зазора: SET1
Версия: 1
Режим: По твердому телу
Файл сообщения
Резюме --
Всего объектов: 6
Всего пар: 15
Проверенные пары: 15
Исключенные пары: 0
Объекты изменились после последнего 6
Пары изменились после последнего зап15
Всего пересечений: ****** 9 ******
Общее число истинных пересечений 0
Всего условных пересечений: 0
Всего пересечений касания: 9
Общее число пересечений вложенности 0
Всего новых пересечений: 9
Новые настоящие пересечения 0
Новые условные пересечения 0
Новые касания 9
Новые пересечения вложенности: 0
Полное время анализа: 0:00:00
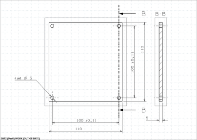
Эскиз детали плита с использованием позиционного допуска.
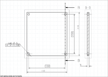
Эскиз детали плита с использованием допусков на позиционные размеры.
-
Моделируем соединение двух плит по заданным параметрам.
Выбираем диаметры сквозных отверстий под крепёжные детали и соответствующие им наименьшие (гарантированные) зазоры по ГОСТ 11284-75. Выбираем 1-й ряд D=5,3 мм.
Выбираем предельные отклонения размеров координирующих оси отверстия. Система прямоугольных координат. Соединение типа В(шпилечное). ГОСТ 14140-81, таблица №4. Коэффициент используемого зазора К=1.Предельные отклонения ±δL=0,11.
Выполняем сборку соединения.
Выполняем анализ зазоров в сборке и составляем отчет №2.
Отчет №2
Выполняется анализ зазоров --
Дата и время: 7-Dec-2006 19:50:27
Часть: D:\styd\31302\Itkinin\lab 3\coedinenie B(plita).prt
Имя анализа зазора: SET3
Версия: 1
Режим: По твердому телу
Файл сообщения:
Резюме --
Всего объектов: 6
Всего пар: 15
Проверенные пары: 15
Исключенные пары: 0
Объекты изменились после последнего 6
Пары изменились после последнего зап15
Всего пересечений: ****** 5 ******
Общее число истинных пересечений 0
Всего условных пересечений: 0
Всего пересечений касания: 5
Общее число пересечений вложенности 0
Всего новых пересечений: 5
Новые настоящие пересечения 0
Новые условные пересечения 0
Новые касания 5
Новые пересечения вложенности: 0
Полное время анализа: 0:00:00
Эскиз детали диск с использованием допусков на позиционные размеры.
-
Моделируем соединение дисков по заданным параметрам.
Выбираем диаметры сквозных отверстий под крепёжные детали и соответствующие им наименьшие (гарантированные) зазоры по ГОСТ 11284-75. Выбираем 1-й ряд D=5,3 мм. Выбираем предельные отклонения размеров координирующих оси отверстия. Система полярных координат. Соединение типа А(болтовое). ГОСТ 14140-81, таблица №5. Коэффициент используемого зазора К=0,8.Предельные отклонения ±δR=0,16. Выбираем предельные отклонения центрального угла между осями двух любых отверстий ±δα∑(ГОСТ 14140-81,таблица №7). Выполняем сборку соединения.
Выполняем анализ зазоров в сборке и составляем отчет №3.
Отчет №3
Выполняется анализ зазоров --
Дата и время: 16-Dec-2006 16:56:37
Часть: D:\styd\31302\Itkinin\lab 3\coedinenie A(disk)\cborka .prt
Имя анализа зазора: SET7
Версия: 1
Режим: По твердому телу
Файл сообщения:
Резюме --
Всего объектов: 6
Всего пар: 15
Проверенные пары: 15
Исключенные пары: 0
Объекты изменились после последнего 6
Пары изменились после последнего зап15
Всего пересечений: ****** 8 ******
Общее число истинных пересечений 0
Всего условных пересечений: 0
Всего пересечений касания: 8
Общее число пересечений вложенности 0
Всего новых пересечений: 8
Новые настоящие пересечения 0
Новые условные пересечения 0
Новые касания 8
Новые пересечения вложенности: 0
Полное время анализа: 0:00:00
Эскиз детали диск с использованием позиционного допуска.
Эскиз детали диск с использованием допусков на позиционные размеры.
-
Моделируем соединение дисков по заданным параметрам
Соответствующие им наименьшие (гарантированные) зазоры по ГОСТ 11284-75. Выбираем 1-й ряд D=5,3 мм. Выбираем предельные отклонения размеров координирующих оси отверстия. Система полярных координат. Соединение типа В (шпилечное). ГОСТ 14140-81, таблица №9. Коэффициент используемого зазора К=1.Предельные отклонения ±δR=0,11. Выбираем предельные отклонения центрального угла между осями двух любых отверстий ±δα∑(ГОСТ 14140-81,таблица №10). Выполняем сборку соединения. Выполняем анализ зазоров в сборке и составляем отчет №4.
Отчет №4
Выполняется анализ зазоров --
Дата и время: 16-Dec-2006 11:54:40
Часть D:\styd\31302\Itkinin\lab 3\coedinenie B(disk)\cborka.prt
Имя анализа зазора: SET4
Версия: 1
Режим: По твердому телу
Файл сообщения:
Резюме --
Всего объектов: 6
Всего пар: 15
Характеристики
Тип файла документ
Документы такого типа открываются такими программами, как Microsoft Office Word на компьютерах Windows, Apple Pages на компьютерах Mac, Open Office - бесплатная альтернатива на различных платформах, в том числе Linux. Наиболее простым и современным решением будут Google документы, так как открываются онлайн без скачивания прямо в браузере на любой платформе. Существуют российские качественные аналоги, например от Яндекса.
Будьте внимательны на мобильных устройствах, так как там используются упрощённый функционал даже в официальном приложении от Microsoft, поэтому для просмотра скачивайте PDF-версию. А если нужно редактировать файл, то используйте оригинальный файл.
Файлы такого типа обычно разбиты на страницы, а текст может быть форматированным (жирный, курсив, выбор шрифта, таблицы и т.п.), а также в него можно добавлять изображения. Формат идеально подходит для рефератов, докладов и РПЗ курсовых проектов, которые необходимо распечатать. Кстати перед печатью также сохраняйте файл в PDF, так как принтер может начудить со шрифтами.















