123361 (689447), страница 4
Текст из файла (страница 4)
Принимается промежуточное значение аw = мм
Определяю расчётную длину ремней
, (3.35)
Принимаю L мм из стандартного ряда длин.
Уточняем межосевое расстояние
, (3.36)
w=0.5 (d1+d2), (3.37)
, (3.38)
Для установки и замены ремней предусматриваю возможность уменьшения а на 2%, т.е. на 9 мм, а для компенсации удлинения во время эксплуатации предусматриваю возможность увеличения а на 5,5% , т.е. на 25 мм. Определяю угол обхвата ремнями ведущего шкива,
1=180-57((d2-d1)/aw , (3.39)
Определяем коэффициенты:
угла обхвата С0 =0,92 [1,267];
режима работы Ср =1,1 [1,табл 9.7];
длины ремня СL =0,88 [1,табл9.6]
Предварительно принимается Z по данным [1, 267] СZ =0,9.
По [1, табл 9,5] нахожу номинальную мощность Р для ремня сечением:
L , d , i, n , Р .
Определяем расчётную мощность,
Рр =Р0*(Сv*Cl)/Cp , кВт (340)
определяем число ремней
Z =Pдв/РрСz; (3.41)
Окончательно принимаем Z
Определяю натяжение каждой ветви одного ремня S ,Н.
Предварительно определяю окружную скорость ремней V
, м/с (3.42)
По данным на [1, 267]: =0,3
, Н (3.43)
Определяю силу ,действующую на вал
F =2S0 Zsin(/2) , Н (3.44)
3.5 Расчёт шпонок приводного вала.
Расчёт шпонок приводного вала произведён по методике, изложенной ниже [24] .
Выбранную по диаметру вала шпонку проверяют на смятие:
, (3.45)
где Т - передаваемый крутящий момент, Н*мм;
d - диаметр вала, мм;
lp - рабочая длина шпонки, мм;
при скруглённых концах lp=l-b
b - ширина шпонки, мм;
[]СМ - допускаемое напряжение смятия: при стальной ступице и спокойной нагрузке []СМ=80÷220 МПа; при чугунной - вдвое меньше. В случае неравномерной или ударной нагрузки []СМ - на 25÷40% ниже.
3.6 Расчёт подшипников натяжной станции.
3.6.1 Расчёт реакций опор натяжного вала .
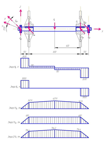
Расчётная схема вала
рис.3.3
Расчёт реакций опор по оси Х, т.к. по оси Х сил нет, то расчёт не производим.(рис.3.3)
Расчёт реакций опор по оси У, смещённой относительно оси У на 5,5 вверх :у=0
-RAY+Рнат+Рнат-RBY=0, (3.46)
Т.к. силы расположены симметрично, то реакции опор в точках А и В будут равны.
,Н (3.47)
, Н
Расчёт реакций опор по оси Z :z=0
RAZ-РЦ-Рв-РЦ+RBZ=0, (3.48)
Т.к. силы расположены симметрично, то реакции опор в точках А и В будут равны.
,Н (3.49)
,Н.
По полученным значениям построим эпюры нагружений и изгибающих моментов, рис 1.
По результатам расчётов реакций опор выполняем выбор подшипников.
3.6.2 Выбор подшипников.
Расчёт подшипников натяжной станции произведён по методике, изложенной ниже [24]. Номинальная долговечность подшипников:
, ч. (3.50)
где С - динамическая грузоподъёмность по каталогу;
Р - эквивалентная нагрузка;
Р - показатель степени, для шарикоподшипников р =3, для роликоподшипников р=10/3.
Для однорядных радиальных шарикоподшипников и однорядных радиально-упорных шарико- и роликоподшипников эквивалентная нагрузка
Р=(ХVFr+YFa)KKT; при
; (3.51)
Р=VFr KKT ; при
, (3.52)
Эквивалентная нагрузка для однорядных и двухрядных подшипников с короткими цилиндрическими роликами ( без бортов на наружном или внутреннем кольце)
Р=VFr KKT ,
где V - коэффициент вращения; при вращении внутреннего кольца V=1; при вращении наружного кольца V=1.2;
X - коэффициент радиальной нагрузки;
Y - коэффициент осевой нагрузки;
KT - температурный коэффициент;
K - коэффициент перегрузки;
Fr - радиальная нагрузка на подшипник.
БИБЛИОГРАФИЧЕСКИЙ СПИСОК
-
Кохан Л.С., и др. Механическое оборудование заводов цветной металлургии: Ч.2 Механическое оборудование цехов для производства цветных металлов. - М.: Металлургия, 1988.328с.
-
Кравчик А.Э., Шлаф М.М. и др., Асинхронные двигатели серии 4А: Справочник - М.: Энергоиздат, 1982. 504 с.
-
Басов А.И., Ельцов Ф.П. Справочник механика заводов цветной
металлургии. - М.: Металлургия, 1981.525 с.
-
Лихачев В.Л. Электродвигатели асинхронные. - М.: СОЛОН-Р, 2002.304 с.
-
Ножненко А.В., Данилов Л.И. и др. Выбор и эксплуатация редукторов на металлургических предприятиях: Справочное издание.- М.: Металлургия, 1983.126 с.
-
Поляков В.С., Барбаш И.Д., и др.. Справочник по муфтам 2-е изд., перераб. и доп. - Л.: Машиностроение, 1979. 224 с.
-
Чернавский С.А. и др. Проектирование механических передач: Учебно-справочное пособие по курсовому проектированию механических передач.-М.: Машиностроение, 1984.562 с.
Гроссман Л.П. Технико-экономическое обоснование проектных решений: Методические указания по дипломному проектированию . - Екатеринбург: ГОУ УГТУ-УПИ, 2002. 21 с.















