15003 (686385)
Текст из файла
Введение
Моя ферма по содержанию молочного стада коров располагается в Московской области, Солнечногорского района. Она рассчитана на поголовье в 150 коров и небольшого ремонтного поголовья телочек (28 голов). Цель хозяйства – получение молока высокого качества в большом количетсве.
Молокопродуктивность, как известно, зависит от массы факторов. Поэтому необходимо обеспечивать благополучие животных.
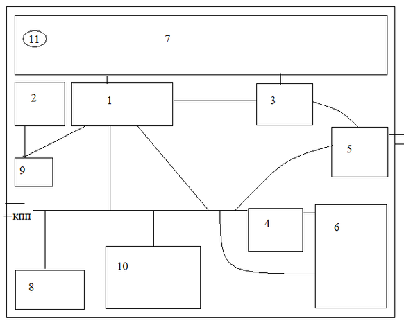
План фермы
1-коровник, 2-телятник, 3-доильный зал, 4,6-кормохранилища, 5-отсек хранения молока, 7-луг, 8-навозохранилище, 9-ветпункт, 10-хозяйственная постройка, 11-водонапорная башня.
КПП должно быть оборудовано в соответствии с санитарно-зоогигиеническими требованиями. Возможно оборудование второго КПП сзади отсека хранения молока для более удобного вывоза его с фермы.
Луг предназначен для моциона животных, а не для выпаса, так как содержание коров будет стойловым привязным, а для процесса молокообразования необходимо движение, обеспечивающее более интенсивный ток крови через вымя.
Хозяйственная постройка предназначена для внутрифермового транспорта. Так же там могут располагаться административные помещения.
Ветпункт должен соответствовать требованиям санитарно-гигиенических правил. Необходимо своевременно заботиться о плановой вакцинации животных (покупка вакцин и т.д.).
Остальные компоненты фермы будут рассмотрены в проекте отдельно.
Коровник для содержания дойного стада
Молочное стадо коров в размере 150 голов содержится привязно. Каждый бокс оборудован привязью, поилкой и местом под кормление.
Оборудование стойловое для коров ОСК-Ф-27
| № п/п | Параметр | Ед. изм. | ОСК-Ф-27 |
| 1 | Количество коров, подлежащих одновременной отвязке | голов | 27 |
| 2 | Количество поилок | шт. | 14 |
| 3 | Ширина станка | мм | 1100 |
| 4 | Масса | кг | 690 |
1 – стойка ОСМ.27.100
2 – стойка ОСМ.00.530
3 – трубка Ц-Р40х3,0х6100
4 – ограждение ОСМ.27.801
5 – кронштейн ОСМ.27.020
6 – кронштейн ОСМ.00.819
7 – привязь ОСМ.27.010
8 – ошейник ОСМ.27.040
9 – петля ОСМ.27.080
10 – труба ОСМ.27.802
11 – рукоятка ОСМ.27.030
12 – фиксатор ОСМ.27.050
13 – скоба ОСМ.27.601
14 – зажим ОСМ.27.401
15 – муфта Ц 40 ГОСТ 8954-75
16 – колпак Ц 40 ГОСТ 8962-75
17 – угольник 900-1-Ц40
18 – труба ОСМ.00.815
19 – зажим III- 48х48 Ц 15 хр
20 – скоба ОСМ.27.402
21 – поилка индивидуальная ПА.3.010
22 – стойка ОСМ.00.803
23 – скоба ОСМ.00.638
Поилка с подводом воды
1 – стойка ОСМ.00.530
2 – кронштейн ОСМ.00.474
3 – скоба ОСМ.00.638
4 – гайка М10-6Н ГОСТ5915-70
5 – труба ОСМ.00.816
6 – угольник 900-1-Ц20
7 – поилка ПА.3.010
8 – прокладка ОСМ.27.004
9 – скоба ОСМ.00.462
10 – основание ОСМ.00.402
11 – скоба ОСМ.00.632
12 – болт М10 – 6g х 25 ГОСТ 7798-70
13 – шайба 1065Г ГОСТ 6402-70
Чаша поилки ПА.3.010
1 – угольник ПА.155
2 – прокладка ПА.007
3 – клапанный механизм ПА.020
4 – ось ПА.623
5 – рычаг ПА.3.457
6 – чаша ПА.3.101
7 – кронштейн ПА.3.456
8 – кронштейн ПА.3.456-01
Привязь
1 – привязь ОСМ.27.010
2 – ошейник ОСМ.27.040
3 – петля ОСМ.27.080
4 – цепь ОСМ.27.070
5 – скоба ОСМ.27.090
6 – гайка М10-6Н ГОСТ 5915-70
7 – шайба 1065Г ГОСТ6402-70
С учётом поголовья, общая протяженность боксов будет следующей:
1) коровы стоят по обе стороны коровника, то есть с одной стороны стоит 150/2=75 гол.
2) общая ширина боксов с одной стороны будет составят 1100*75=82,5 м
Общий вид коровника будет следующим:
Коровник для коров привязного содержания: 1 - стойловое помещение: 2 - помещение для подстилки; 3 - фуражная; 4 - инвентарная; 5 - тамбур; 6 - помещение навозоудалекия; 7,8 - венткамеры.
Телятник
Поскольку ферма является товарной, ее главная задача – получение молока. Ремонт стада осуществляется как за счет телят, полученных от коров на ферме, так и благодаря покупке животных у других фермеров и в племенных хозяйствах. Поэтому телятник, находящийся на террирории хозяйства рассчитан на небольшое число животных (28 голов). Телочки, не отобранные для ремонта стада, а так же бычки сдаются в районный мясокомбинат.
Так как телят на ферме небольшое количество, то можно укомплектовать помещение более качественным и, следовательно, дорогим оборудованием.
Для этой цели я выбрала люксы для телят фирмы Terborg Agro.
Преимущества люксов:
Альтернатива холодному содержанию телят
Быстрый монтаж и уборка
Повышенная надежность конструкции
Оптимальная вентиляция
Легкий доступ к телятам для кормления и лечения
Полная изоляция телят друг от друга
Быстрый переход к групповому содержанию
Стандартные размеры:
Ширина стойла по центральной оси: 91,4см, 106,7 см, 121,9 см
Длина боксов: 182,9 см, 243,8 см
Высота панелей: 104,1 см, 129,5 см
Таким образом общая длина телятника получается: 28/2*121,9=17 м
Для лучшего психологического состояния животных, а так же для индивидуального наблюдения за маленькими телочками, кормление, поение и уборка в телятнике осуществляется вручную персоналом.
Доильный зал
Для своей фермы я выбрала доильный зал типа «Тандем» (система доильного зала AutoTandem - Westfalia). В этом зале присутствуют следующие отличительные достоинства:
Оптимальный обзор животного
Каждому животному – максимум внимания
Спокойные животные
Оптимальная позиция животного по отношению к доярке
Равномерная нагрузка на доярку
Высокая степень загрузки аппаратов
Меньшие потери времени на каждое доильное место благодаря отдельной смене животных
Возможность разного расположения отдельных боксов
В любое время может быть расширен
Прочная конструкция
Функционирование
После того, как корова была зарегистрирована световым элементом, автоматически закрываются центральные входные ворота в доильный зал, и корова проходит к свободному доильному боксу. Как только корова встает вдоль доильной ямы, можно надевать доильный аппарат. После окончания доения автоматика снятия мягко стягивает доильный аппарат с вымени. Выходная калитка доильного бокса, управляемая системой, открывается, чтобы животное могло покинуть бокс. Выходная калитка автоматически закрывается. Когда наступает время для подхода следующей коровы - процесс повторяется сначала.
Опции
Отдельные боксы могут монтироваться не только по обе стороны доильной ямы, но и, например, в виде буквы L или U или вообще только как односторонние доильные залы. При этом сохраняются все преимуществ доильной техники. Компактная доильная единица MultiBoard: надежное расположение всей электроники, трубопроводов снабжения и элементов управления в чистоте и безопасности.
Для выбора охладительной установки, нам необходимо рассчитать общие надои молока.
1) средняя продуктивность коров 6000 л молока за лактацию; лактация длится 10 месяцев (10 мес*30 дн=300 дн). То есть среднесуточный удой составляет 6000/300=20 л/дн
2) стадо дойных коров имеет численность 150 голов. Значит, среднесуточный удой от всего стада составляет 20*150=3000 л
Одновременно лактировать все 150 коров не будут. Часть из них всегда будет находиться в сухостойном периоде. Однако прогноз молочной продуктивности зависит не только от поголовья, но и удоев (возможно появление коров-рекордисток) и от продолжительности лактации, которая может затянуться по ряду причин. Из-за того, что прогноз довольно условных, лучше применять охладитель молока для большего его объема, чем было рассчитано.
Для своей фермы я выбираю охладитель FIRST.SC (Groupe Serap). Его объем может составлять от 2060 до 8000 л молока.
Цистерна
Самоподдерживающаяся закрытая емкость цилиндрической формы с двойной рубашкой. Конструкция типа «Сандвич» с высокоплотной изоляцией без CFC и стенками из аустенитной нержавеющей CTannAIS! 304. Испаритель полного потока.
Регулируемые опоры из нержавеющей стали, смонтированные без термического моста.
Оснащение
Люкдиам. 450 мм, два отверстия для наполнения и вентиляции диам. 76 мм (возможность менять местами отверстие для наполнения и вытяжную трубу). Измеритель температуры расположенный на передней панели.
Сливной патрубок диам. 51 мм с резьбой DIN (другие варианты по заказу) с краном.
Перемешивание и гомогенизация
Электродвигатель с понижающим редуктором (25 об/мин). Программируемый цикл автоматического перемешивания. Равномерное распределение жира в молоке в течении 2 минут в соответствии с нормой ISO 5708.
Холодильное оборудование
Холодильный агрегат (агрегаты) с компрессором (компрессорами) герметичного типа, мощность которого подбирается в соответствии с требуемыми эксплуатационными качествами (норма ISO 5708). Регулировка охлаждения производится с помощью термостатических регулирующих вентилей (ТРВ), Каждая модель может быть установлена (обращайтесь к нам за информацией по доставке):
компактная версия (до 2x6,5 л,с.)
с выносным конденсатором и компрессором на цистерне (отЗ л.сдо2х12 л.с.)
с выносным холодильным агрегатом (полный комплект)
без холодильного агрегата. Хладагент R 22 или R 404A.
Дополнительное оборудование
Встроенная автоматическая система промывки WASH 1010 (см. техническое описание WP-1K-R15)
Лестница доступа к люку
Тарирование емкости
Система защиты компрессора и контроля за переохлаждением молока.
Дополнительное устройство для последующей установки рекуператора тепловой энергии.
Рекуператор тепла SERATEMP
Тепловое реле для защиты компрессора
Возможность принудительного включения холодильного агрегата
Кабель электропитания 5 метров
Плиты увеличения опорной поверхности
Скорость перемешивания до 21 об/мин
Резьба сливного патрубка по заказу
Нормы
Соответствует международной норме ISO 5708 и европейской норме EN 13732, соответствует европейским директивам ЕС. Система измерения одобрена Службой Метрологии Франции.
Обеспечение кормления
Кормление играет, пожалуй, наиважнейшую роль в жизнедеятельности организма. Это означает, что на здоровье и продуктивности (количестве и качестве молока) сказывается в первую очередь именно кормление. По данным российских исследований это влияние составляет 60-70% от общего влияния всех паратипических условий.
Именно поэтому при обустройстве кормохранилищ и кормоцехов на молочной ферме, большое значение следует придать нормам проектирования и качеству механизации.
1) Ежедневное потребление корма молочными коровами составляет 50 кг, значит, поголовье в 150 коров за сутки съест 50*150=7500 кг
2) запас кормов на зиму должен составлять 7500*365=2737,5 т
Примерный рацион молочной коровы
| Корм | Потрбеление (гол/сут) | Потребление всем стадом | Потребление стадом за 6 мес(180 дн), т |
| сено | 5 | 750 | 135 |
| солома | 2 | 300 | 54 |
| сенаж | 4 | 600 | 108 |
| силос | 16 | 2400 | 432 |
| концентраты | 3 | 450 | 81 |
| корнеклубнеплоды | 20 | 3000 | 540 |
| итого | 50 | 7500 | 1350 |
Кормохранилища рассчитываются из условия хранения полугодового запаса кормов. Оборудуются соответственно с правилами и условиями хранения того или иного корма.
Для раздачи кормов выбирается кормораздатчик.
Кормораздатчик-смеситель Keenan Klassik, позволяет получать высококачественные полнорационные кормосмеси. Однородные, хорошо перемешанные смеси с большим содержанием эффективных волокон и клетчатки и высоким параметром пережевываемости способствуют улучшению здоровья коров и повышению их продуктивности.
Характеристики
Тип файла документ
Документы такого типа открываются такими программами, как Microsoft Office Word на компьютерах Windows, Apple Pages на компьютерах Mac, Open Office - бесплатная альтернатива на различных платформах, в том числе Linux. Наиболее простым и современным решением будут Google документы, так как открываются онлайн без скачивания прямо в браузере на любой платформе. Существуют российские качественные аналоги, например от Яндекса.
Будьте внимательны на мобильных устройствах, так как там используются упрощённый функционал даже в официальном приложении от Microsoft, поэтому для просмотра скачивайте PDF-версию. А если нужно редактировать файл, то используйте оригинальный файл.
Файлы такого типа обычно разбиты на страницы, а текст может быть форматированным (жирный, курсив, выбор шрифта, таблицы и т.п.), а также в него можно добавлять изображения. Формат идеально подходит для рефератов, докладов и РПЗ курсовых проектов, которые необходимо распечатать. Кстати перед печатью также сохраняйте файл в PDF, так как принтер может начудить со шрифтами.
















