15003 (686385), страница 2
Текст из файла (страница 2)
| Обозначение | Размер | Модель | |||||
| 80 | 100 | 11.5 | 140 | 170S | 200 | ||
| А | Общая длина | 506 мм | 506 мм | 606 мм | 606 мм | 606 мм | 706 мм |
| В | Длина бункера | 300 мм | 300 мм | 400 мм | 400 мм | 400 мм | 500 мм |
| С | Общая ширина | 260 мм | 275 мм | 260 мм | 275 мм | 310 мм | 310мм |
| D | Ширина бункера | 230 мм | 254 мм | 230 мм | 254 мм | 285 мм | 285 мм |
| E | Общая высота | 240-280 мм | 250-300 мм | 250-290 мм | 260-300 мм | 300-330 мм | 310-330 мм |
| F | Высота погрузки | 210-250 мм | 220-260 мм | 230-270 мм | 230-280 мм | 260-300 мм | 280-300 мм |
| G | Ширина колеи | 200-230 мм | 210-230 мм | 200-2300 мм | 210-230 мм | 240-270 мм | 240-275 мм |
| Тип раздачи | Стандартный лоток | Стандартный лоток | Стандартный лоток | Стандартный лоток | Стандартный лоток | Стандартный лоток | |
| Вес (без загрузки) | 4100 кг | 4300 кг | 4250 кг | 5600 кг | 7500 кг | 8200 кг | |
| Регулирование подачи корма | + | + | + | + | + | + | |
| Количество датчиков нагрузки | 4 | 4 | 4 | 4 | 4 | 4 | |
| Электронное взвешивание | В стандартном исполнении дискретность 5 кг | В стандартном исполнении дискретность 5 кг | В стандартном исполнении дискретность 5 кг | В стандартном исполнении дискретность 5 кг | В стандартном исполнении дискретность 5 кг | В стандартном исполнении дискретность 5 кг | |
Навоз и его удаление
Навозоудаление и переработка навоза является одной из сложнейших задач при проектировании фермы. Важность этого процесса заключается в обеспечении как санитарного благополучия самого хозяйства, так и экологической обстановки в районе. Именно поэтому важно правильно подобрать навозоудалительную систему и выбрать оптимальный способ утилизации и переработки навоза.
Для уборки навоза из своей фермы я выбрала скреперную систему.
Преимущества комби-скрепера:
тщательная очистка способствует улучшению качества молока;
достигается экономия на строительных расходах благодаря простой установке;
комбискрепер изготовлен из прочных материалов, что обеспечивает надежность и долгий срок службы
Комбискрепер "JOZ" предназначен для уборки помещений с бетонными полами; это могут быть:
ровные бетонные полы,
наклонные бетонные полы,
бетонные полы с маленькими каналами для отвода жидкости.
На неровных бетонных полах (с плоскими уступами небольшой высоты) комби-скрепер может успешно работать после проведения несложной настройки. При использовании сменных накладок из синтетической резины комбискрепер очищает пол еще лучше.
"Green Label"
Для соблюдения требований нормативов охраны окружающей среды, возникает необходимость в использовании оборудования, в которых жидкая и твердая фракции навоза удаляются отдельно. В результате этого, выделение аммиака снижается до минимума. "JOZ" получило одобрение "Green Label", так как система комби-скрепера, пригодная для работы с наклонными полами, полами с покрытием и полами с каналами для отвода жидкости.
Технические характеристики:
комби-скрепер: материал - сталь; высота 210 мм;
электродвигатель: 0,55/0,75 кВт; однофазный или трехфазный;
устройство привода: мотор-редуктор, обороты выходного вала 5.4 об/мин.
скорость перемещения скрепера: 4 м/мин;
натяжной ролик: диаметр 290 мм, износостойкий сплав чугуна с валом из закаленной стали;
панель управления: стандарт безопасности E.C., с настраиваемым таймером, ручным отключением;
приводной элемент 1: цепь 13 мм стандартной конструкции, прочность на разрыв 7000 кг;
приводной элемент 2: трос Ø6 или Ø8 мм с пластиковым покрытием толщиной 1мм
Сброс на решетку.
При работе на бетонном полу навоз необходимо переместить в конец коровника, где он попадает в канал. Если двор слишком длинный, канал может находиться в середине коровника. В большинстве таких случаев комби-скрепер продвигает навоз через решетку над каналом. Не весь навоз пройдет в канал через решетку; длинная солома и силос не пройдут и останутся на решетке.
Принципиальная схема скреперного навозоудалителя выглядит следующим образом:
привод,
устройство поворотное,
ползун,
скребок левый,
скребок правый,
цепь,
щит управления,
кнопка "Аварийный стоп".
После удаления навоза из коровника, его следует траспортировать в навозохранилище.
При механизированной системе удаления навоза последний на ленточном транспортере доставляется непосредственно из хлева на площадку. Зоны хранения навоза в хлеву и на площадке следует располагать на одной оси. С целью совершенствования производственного процесса в настоящее время все чаще используют хлева без применения соломенной подстилки, что позволяет внедрять способ удаления навоза в виде навозной жижи. Для этого навоз собирают в помещениях хлева под полом или же в жижесборниках, располагаемых вне хлева (рис. 6).
Жижесборник устраивается из бетона или фасонных камней. Наиболее экономичны при строительстве напорные жижесборники круглой или квадратной в плане формы. Перед жижесборником в систему удаления навоза подключается отстойник. Размеры жижесборников устанавливаются, исходя из поголовья скота и продолжительности хранения навоза.
1. Открытые лотки с уклоном, устраиваемым в коровниках; длина до 10 м. 2. Навозная площадка со стоком для навозной жижи. 3. Ввод открытого лотка в отстойник, предназначенный для осаждения дурно пахнущих веществ. 4. Кирпичный или бетонный жижесборник с отдельными отсеками и отверстиями для откачки жижи в железобетонной крышке. 5. Жижесборник в виде группы секций, выложенных из фасонных камней и размещенных в общей железобетонной обойме, с переливами из секции в секцию. 6. Напорный жижесборник системы Бауэра. Преимущества: простота установки на скальных грунтах и при высоком уровне грунтовых вод. Возможность отказа от крышки, рассчитываемой на проезд по ней средств транспорта, снижает стоимость сооружения. 7. Вспомогательные операции для приготовления навоза по способу Кранца. Навоз наслаивается отдельными кучками. Благодаря возведению отсеков высотой до 3 м создается экономичное навозохранилище. 8. Навозная яма для создания запаса удобрений. Каждый месяц навоз складируется на отдельных участках и вывозится только после созревания. 9. Крытое навозохранилище с подачей навоза из хлева по подвесной дороге. 10. Основные формы навозохранилищ с обслуживанием наземными транспортными средствами, по Кордсу. М 1: 800. а— вывоз с одной продольной стороны, ширина навозохранилища 2,5 м (максимально допустимая при погрузке с одной стороны); б— вывоз с обеих продольных сторон, ширина навозохранилища удвоенная (2,5 х 2); e— вывоз по средним проездам, ширина навозохранилища— учетверенная (2,5 х 4); г — навозохранилище с угловыми проездами. 11. Обслуживание навозохранилищ подвесной дорогой с поворотными кругами или переводными стрелками.
Потребная ёмкость навозохранилищ (данные из справочника Попечительского совета сельскохозяйственной техники)
| Вид жижесборников и навозохранилищ | Потребность в м3 на хранение навоза в течение двух месяцев в расчете на 1 гол. | Потребность в м3 на хранение навоза в течение двух месяцев в расчете на все стадо. |
| жижеприемник | 1 | 150 |
| Резервуары для смывания навоза | 4 | 600 |
| Резервуар для сухого навоза | 3 | 450 |
| Навозные площадки | 1 | 150 |
Водоснабжение
Для обеспечения молочной фермы водой для различных целей, необходимо иметь свою систему водоснабжения.
Суточная норма потребления воды
| Животные | На одну голову (л/сут) | На все стадо (л/сут) |
| коровы | 100 | 15000 |
| телята | 30 | 840 |
| Итого: | 15840 (16 тыс л/сут) | |
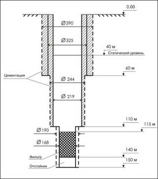
Получение воды будет вестись из артезианской скважины. Таким образом можно добиться более чистой воды, в отличие от воды из естественных водоисточников (озер, рек и т.д.)
Далее вода по системе труб будет поступать в водонапорную башню. Так она будет находится до востребования и, к тому же, нагреваться. Бак башни должен соответствовать суточному потреблению воды на ферме, то есть 16 тыс литрам.
Схема водонапорной башни: 1 - водопроводная сеть; 2, 5 - электрическая задвижка; 3 - обратный клапан; 4 - подающе - отводящий трубопровод; 6 - трубопровод забора неприкосновенного запаса воды; 7 - трубопровод забора регулирующего запаса воды; 8 - шатер; 9 - переливная труба; 10 - грязевая труба; 11 - задвижка; 12 - руль управления задвижкой; 13 - ствол башни; 14 - патрубки для присоединения пожарной техники; 15 - канализационная сеть.
Затем из водонапорной башни вода по трубопроводу будет распределяться по ферме в необходимые места, включая автопоилки животных, рассмотренные в пункте первом.
Заключение
Механизация и автоматизация производства является важной стороной развития хозяйства, в том числе и сельского. Благодаря этим процессам уменьшаются как затраты ручного труда каждого отдельного работника, так и потребность в рабочих кадрах в целом (при высокой степени механизации и автоматизации необходимость в рабочих руках сводится к минимуму). В то же время возрастают требования к квалификации работников.
При правильном подборе механизмов и автоматов производства, возможно добиваться уменьшения экономических затрат, в том числе денежных средств на единицу продукции.
К тому же механизированный подход позволяет обеспечивать благополучие каждого животного на ферме, что очень важно как с производственной точки зрения, так и с моральной.
17
















