105270 (682988)
Текст из файла
Зміст
1 Загальна частина
2 Розрахункова частина
2.1 Вибір електродвигуна, кінематичний і
силовий розрахунок привода
2.2 Вибір матеріалів зубчастих колес
2.3 Розрахунок зубчастих передач
2.4 Проектний розрахунок валів
2.5 Конструювання зубчастих колес
2.6 Конструктивні розміри корпусу редуктора
2.7 Ескізне компонування
2.8 Підбір підшипників і перевірка Їх за
динамічною вантажопідйомністю
2.9 Перевірка міцності шпоночних з’єднань
2.10 Уточнений розрахунок валів
2.11 Вибір посадок основних з’єднань
2.12 Вибір і розрахунок муфт
2.13 Вибір змазки
2.14 Збірка редуктора
3 Техніка безпеки та охорона навколишнього
середовища
Список використаних джерел
Додаток А. Завдання на курсовий проект
Додаток Б. Ескізне компонування
Додаток В. Ескіз вала
Додаток Г. Ескіз колеса
1 Загальна частина
Опис редуктора
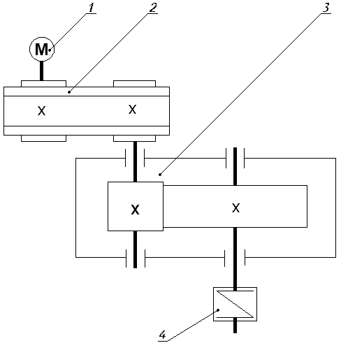
Привод складається з електродвигуна, муфти, відкритої ремінної передачі, одноступінчатого горизонтального циліндричного косозубого редуктора.
Редуктор – це механізм, який служить для зниження кутових швидкостей і збільшення передавань обертових моментів.
Переваги косозубого редуктора:
-
висока міцність зубців;
-
плавність ходу;
-
безшумність роботи.
Недоліки:
- наявність осьової сили Fа, що намагається зрушити колесо вздовж осі вала;
- складність і дорожнеча виготовлення.
1 – електродвигун;
2 – ремінна передача;
3 – редуктор;
4 – муфта.
Рисунок 1 – Кінематична схема привода
2 Розрахункова частина
2.1 Вибір електродвигуна, кінематичний і силовий розрахунок привода
Визначаємо загальний коефіцієнт корисної дії привода за формулою:
, (1)
де
- ккд ремінної передачі,
, [ 1 ], с. 5;
- ккд редуктора,
, [ 1 ], с. 5;
- ккд підшипникових вузлів,
, [ 1 ], с. 5.
Визначаємо загальне передаточне число привода:
(2)
де
- частота обертів вихідного вала;
- частота обертів вхідного вала.
Визначаємо частоту обертів вхідного вала:
, (3)
Вибираємо електродвигун з
, тоді загальне передаточне число привода дорівнює:
.
Загальне передаточне число привода розподіляємо по елементах привода:
(4)
де
- передаточне число ремінної передачі,
, [1], с.36;
- передаточне число циліндричного косозубого редуктора,
, [1], с.36.
Визначаємо відхилення розрахункового передаточного числа від фактичного:
, (5)
.
Підбираємо електродвигун попередньо визначаємо потужність на вході вала:
, (6)
де
- кутова швидкість
, (7)
;
.
Підбираємо електродвигун 4А132М6 з потужністю 7,5 кВт, частотою обертів вала двигуна
, і діаметром вихідного кінця d = 31 мм.
Визначаємо кутову швидкість на кожному валу привода:
, (8)
, (9)
,
, (10)
.
Визначаємо частоту обертів кожного вала привода:
, (11)
, (12)
,
, (13)
.
Визначаємо обертаючі моменти на кожному валу привода:
, (14)
, (15)
,
, (16)
2.2 Вибір матеріалів зубчастих колес
Так як в завданні немає особливих вимог стосовно габаритів передачі, вибираємо матеріали з середніми механічними характеристиками:
- для шестірні Сталь 45, термічна обробка – покращання, твердість HВ 230 ;
- для колеса, Сталь 45, термічна обробка – покращання, але твердість на 30 одиниць нижче HВ 200.
Визначаємо допустиму контактну напругу:
, (17)
де
- межа контактної витривалості при базовому
числі циклів;
– коефіцієнт довговічності при числі циклів напруги
більше базового, що має міцне при довготривалій
експлуатації редуктора, приймають,
;
- коефіцієнт безпеки, [Sн] = 1,10.
Для вуглецевих сталей з твердістю поверхонь зубців менше НВ 350 і термічною обробкою покращанням:
(18)
Для косозубих колес розрахункова допустима контактна напруга:
; (19)
для шестірні:
, (20)
;
для колеса:
, (21)
.
Тоді розрахункова допустима контактна напруга:
Так як
потрібну умову виконано.
2.3 Розрахунок зубчатої передачі
Визначаємо міжосьову відстань з умови контактної витривалості активних поверхонь зубців:
, (22)
де
- коефіцієнт, враховуючий нерівномірність розподі-
лення навантаження по ширині вінця,
, [1], с. 32;
- коефіцієнт ширини вінця по міжосьовій відста-
ні,
Вибираємо найближче значення міжосьової відстані зі стандартного ряду
, [1], с. 36.
Визначаємо нормальний модуль зачеплення:
, (23)
.
Приймаємо стандартне значення модуля
, [1], с. 36.
Попередньо приймаємо кут нахилу зубців
Визначаємо число зубців шестірні і колеса:
, (24)
.
Приймаємо
, тоді:
, (25)
.
Приймаємо
.
Уточняємо значення кута нахилу зубців:
, (26)
.
Кут нахилу зубців
.
Основні розміри шестерні і колеса
діаметри поділювані:
, (27)
,
, (28)
,
перевірка:
, (29)
,
діаметри вершин зубців:
, (30)
,
, (31)
,
ширина колеса:
, (32)
,
ширина шестерні:
, (33)
.
Визначаємо коефіцієнт ширини шестірні по діаметру:
, (34)
.
Окружна швидкість колес:
, (35)
.
При такій швидкості для косозубих коліс треба прийняти 8 ступінь точності, [1], c.32.
Розраховуємо коефіцієнт навантаження:
, (36)
Приймаємо коефіцієнти
,
[1], c.39,
, [1], c.40.
.
Перевіряємо контактну напругу за формулою:
, (37)
.
Так як
, умови міцності виконано.
Сили, які діють в зачепленні:
окружна:
, (38)
,
радіальна:
, (39)
,
осьова:
, (40)
.
Перевіряємо зубці на витривалість за напругою:
, [1], c. 44 (41)
де
- коефіцієнт нагрузки;
- коефіцієнт, що враховує форми зубців і залежить
від еквівалентного числа зубців.
Визначаємо коефіцієнт навантаження:
, (42)
Приймаємо
, [1], c. 43;
, [1], c. 43.
.
Визначаємо еквівалентне число зубців:
у шестерні:
, (43)
,
у колеса:
, (44)
.
Вираховуємо допустиму напругу при розрахунку на витривалість шестірні й колеса:
. (45)
Для сталі 45 покращенної до
:
, [1], с. 44. (46)
для шестірні:
,
для колеса:
.
Визначаємо коефіцієнт безпеки:
(47)
Приймаємо
,
[1], с. 48
.
Допустима напруга при розрахунку на витривалість шестірні й колеса:
,
.
Знаходимо відношення
. (48)
Приймаємо
,
, [1], с.42
,
.
Подальший розрахунок ведемо для зубців шестірні, так як для неї знайдено менше значення.
Визначаємо коефіцієнт
, який враховує розподіл навантаження між зубцями:
, (49)
.
Розраховуємо коефіцієнт
для 8 ступені точності, який враховує розподіл навантаження між зубцями:
, (50)
де
- коефіцієнт торцевого перекриття,
, [1], c.47;
п – ступінь точності коліс, п = 8.
.
Перевіряємо міцність зубців шестірні за формулою:
.
Так як
, умови міцності виконано.
2. 4 Проектний розрахунок валів редуктора
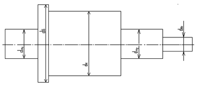
Рисунок 2 - Ведучий вал
Визначаємо діаметр вихідного кінця вала:
, (51)
.
Приймаємо стандартне значення діаметра вихідного кінця із ряда:
.
Визначаємо діаметр ступеня вала під підшипник:
, (52)
.
Рисунок 3 - Ведений вал
Визначаємо діаметр вихідного кінця вала:
, [1], c. 62 (53)
.
Приймаємо стандартне значення із ряду:
Визначаємо діаметр ступеня під підшипник:
, (54)
.
Визначаємо діаметр вала під колесо:
, (55)
.
Визначаємо діаметр буртика для упора колеса:
, (56)
.
Шестірню виконуємо за одне ціле з валом, її розміри визначенні вище.
2.5 Конструювання зубчатих колес
Колесо коване
;
;
.
Діаметр маточини:
, (57)
.
Довжина маточини:
, (58)
.
Приймаємо довжину маточини, що дорівнює
Товщина обода:
, (59)
.
Приймаємо
.
Товщина диска:
, (60)
.
Визначаємо діаметр знаходження центрів отворів:
, (61)
.
Визначаємо діаметр отворів:
, (62)
.
Визначаємо відстань від торців підшипників до точки прикладання опорних реакцій:
, (63)
,
.
2.6 Конструктивні розміри корпусу редуктора
Товщина стінок корпуса й кришки:
, (64)
.
Приймаємо
.
Товщина фланців поясів корпуса й кришки:
верхнього пояса корпуса і пояса кришки:
, (65)
,
, (66)
,
нижнього пояса корпуса:
, (67)
.
Приймаємо
.
Діаметр болтів:
Фундаментних:
, (68)
.
Приймаємо болти з різьбою М20;
ті, що кріплять кришку до корпуса у підшипників:
, (69)
.
Приймаємо болти з різьбою М16;
ті, що з’єднують кришку з корпусом:
, (70)
.
Приймаємо болти з різьбою М12.
2.7 Ескізне компонування
Спочатку вибираємо підшипники для ведучого й відомого вала.
Для ведучого вала вибираємо шарикопідшипники радіально упорні – тип 36202,
;
;
;
;
;
;
;
- легка вузька серія
.
Для веденого вала вибираємо шарикопідшипники радіально упорні – тип 36212,
;
;
;
;
;
;
;
- легка вузька серія
.
При окружній швидкості змазування може здійснюватися масляним туманом. В цьому випадку відступивши від лінії внутрішньої стінки корпуса зображуємо внутрішній діаметр підшипника.
У випадку установки мазеутримуючих кілець вибираємо розмір, що дорівнює 8 мм.
Послідовно виконуємо ескізне компонування:
- спрощено викреслюємо вали редуктора;
- спрощено викреслюємо зубчасте зачеплення;
- відкреслюємо внутрішній корпус, відстань між буртиком і корпусом, колесами і внутрішніми поверхнями корпуса приймаємо 10-15 мм;
- визначаємо відстань а від торців підшипників до точок опорних реакцій;
- вимірюванням знаходимо відстань
від точок прикладення опорних реакцій підшипників;
- визначаємо відстань від точок прикладення консольних навантажень до найближчих опор:
, (71)
, приймаємо
,
Характеристики
Тип файла документ
Документы такого типа открываются такими программами, как Microsoft Office Word на компьютерах Windows, Apple Pages на компьютерах Mac, Open Office - бесплатная альтернатива на различных платформах, в том числе Linux. Наиболее простым и современным решением будут Google документы, так как открываются онлайн без скачивания прямо в браузере на любой платформе. Существуют российские качественные аналоги, например от Яндекса.
Будьте внимательны на мобильных устройствах, так как там используются упрощённый функционал даже в официальном приложении от Microsoft, поэтому для просмотра скачивайте PDF-версию. А если нужно редактировать файл, то используйте оригинальный файл.
Файлы такого типа обычно разбиты на страницы, а текст может быть форматированным (жирный, курсив, выбор шрифта, таблицы и т.п.), а также в него можно добавлять изображения. Формат идеально подходит для рефератов, докладов и РПЗ курсовых проектов, которые необходимо распечатать. Кстати перед печатью также сохраняйте файл в PDF, так как принтер может начудить со шрифтами.
















