124461 (631327), страница 3
Текст из файла (страница 3)
Промышленностью выпускаются индуктивные уровни с ценой деления 2 – 20", гидростатические уровни. Для измерения углов можноиспользовать круговые измерительные преобразователи типа "Индуктосин", "Оптосин" (круговые перемещения преобразуются в электрический сигнал), а также кольцевые оптические квантовые генераторы.
Средства измерений, основанные на тригонометрическом методе. Типичными примерами реализации тригонометрических методов измерений углов являются измерения с помощью так называемых синусных линеек и координатные методы.
Синусная линейка (рис. 4.28) представляет собой простую схему: два круглых цилиндрических ролика одинакового диаметра укреплены на концах столика так, чтобы их оси были параллельными. Расстояние L между осями роликов имеет жесткий допуск и точно аттестовано. Это расстояние при установке синусной линейки на требуемый угол имитирует гипотенузу прямоугольного треугольника. Катет этого треугольника h воспроизводится блоком плоскопараллельных концевых мер, подкладываемым под один из роликов (см. рис. 4.28). Рабочим углом установленной синусной линейки является угол 1, отличающийся от расчетного на погрешность установки.
При измерении на синусной линейке (рис. 4.29) размер h блока мер, который надо подставить под ролик, чтобы наклонить столик на такой же угол , какой должно иметь измеряемое изделие, определяют из уравнения
h = Lsin. Затем блок подставляют под ролик, к которому направлена вершина измеряемого угла.
Измерение угла заключается в определении отклонения в положениях I и II от указанной параллельности, что делают чаще всего с помощью контактной измерительной головки (оптиметра, пружинной головки и т. д.), укрепленной на универсальной стойке.
Стандартные синусные линейки изготовляют трех типов: без опорной плиты (тип I); с опорной плитой (тип II) и двухнаклонные во взаимно перпендикулярных направлениях (тип III). Линейки каждого типа имеют два класса точности: 1 и 2.
Синусную линейку можно применять и для измерения внутренних углов, например, конусных отверстий. Для этого необходимо иметь рычаг, вводимый в измеряемое отверстие.
Использование роликов и шариков для измерения наружных и внутренних конусов. При известных диаметрах шариков и роликов, а также высоте h блока плоскопараллельных концевых мер измеряют размеры l1 и l2 (рис. 4.30) и рассчитывают искомый угол конуса.
По схеме, приведенной на рис 4.30, а, угол определяется по формуле
, а по схеме, приведенной на рис 4.30, б, – по формуле
.
По такому же принципу измеряют конусность с помощью двух калиброванных колец с заранее известными диаметрами D, d и толщиной h (рис. 4.30, в). Расстояние Н измеряют после надевания колец на конус.
Угол рассчитывают по формуле
.
4.3. Альтернативный метод контроля изделий
Альтернатива (от лат. alter - один из двух) означает "каждая из исключающих друг друга возможностей".
Контроль по альтернативному признаку - это контроль по качественному признаку, в ходе которого каждую проверенную единицу продукции относят к категории годных или дефектных. При этом методе устанавливается факт соответствия контролируемого параметра контрольному нормативу.
Альтернативный контроль может быть: элементным или комплексным; одно- и многомерным; неавтоматическим, механизированным, полуавтоматическим, автоматическим; пассивным или активным.
Альтернативный контроль осуществляется измерительными средствами, специально предназначенными для этой цели.
На схеме (рис. 4.31) приведена классификация средств и методов альтернативной проверки годности параметров изделий. При альтернативной проверке наиболее широко используются калибры. Большинство видов и конструкций калибров стандартизовано.
4.3.1. Калибры для гладких цилиндрических деталей
Для контроля гладких цилиндрических изделий типа валов и втулок, особенно в крупносерийном и массовом производстве, широко применяют предельные гладкие калибры (ГОСТ 2216 - 84). Калибры для валов называются скобами, а для отверстий - пробками. Комплект калибров состоит из проходного и непроходного (рис. 4.32, а).
Годность деталей с допуском от IТ6 до IТ17, особенно при массовом и крупносерийном производствах, наиболее часто проверяют предельными калибрами. Комплект рабочих предельных калибров для контроля размеров гладких цилиндрических деталей состоит из проходного калибра ПР (им контролируют предельный размер, соответствующий максимуму материала проверяемого объекта) и непроходного калибра НЕ (им контролируют предельный размер, соответствующий минимуму материала проверяемого объекта).
Альтернативная проверка годности геометрических параметров изделий
Меры
Измерительные устройства
С постоянным зна-
чением: плоскопа-
раллельные концевые меры, угловые меры, набор принадлеж-
ностей
Калибры
С переменным значением: штри-
ховой метр, рулетка, масштабная ли-
нейка, лимб
Простей-шие
Уни-версаль-ные
Спе-циальные
Виды проверки: Однопредельная, двухпредельная, элементная, ком-
плексная
Типы калибров: нормальные, пре-
дельные, конт-рольные, устано-
вочные, специальные
Щупы
Линейки лекальные
Угольники лекальные
Штангенин-
струменты
Измерительные приборы шкальные с указателями пределов сортировки или годности
Приборы активного контроля
Преобразователи и датчики
Измерительные приборы
Измерительные приспособления
Измерительные установки и системы
Полуавтоматы и автоматы
Рис. 4.31. Классификация средств и методов альтернативной проверки годности параметров изделий
Деталь считают годной, если проходной калибр (проходная сторона калибра) под действием собственного веса или усилия, примерно равного ему, проходит, а непроходной калибр (непроходная сторона) не проходит по контролируемой поверхности детали. В этом случае действительный размер детали находится между заданными предельными размерами.
Рабочие калибры ПР и НЕ предназначены для контроля изделий в процессе их изготовления. Этими калибрами пользуются рабочие и контролеры ОТК завода-изготовителя, причем в последнем случае применяют частично изношенные калибры ПР и новые калибры НЕ.
Для установки регулируемых калибров-скоб и контроля нерегулируемых калибров-скоб применяют контрольные калибры К—И, которые являются непроходными и служат для изъятия из эксплуатации вследствие износа проходных рабочих скоб. Несмотря на малый допуск контрольных калибров, они все же искажают установленные поля допусков на изготовление и износ рабочих калибров, поэтому контрольные калибры по возможности не следует применять. Целесообразно, особенно в мелкосерийном производстве, контрольные калибры заменять концевыми мерами или использовать универсальные измерительные приборы.
Валы и отверстия с допуском IТ5 и точнее не рекомендуется проверять калибрами, так как они вносят большую погрешность измерения. Такие детали проверяют универсальными измерительными средствами.
Для снижения затрат на калибры стремятся увеличить их износостойкость. Так, износостойкость калибров, оснащенных твердым сплавом, в 50—150 раз выше по сравнению с износостойкостью стальных калибров и в 25—40 раз выше по сравнению с износостойкостью хромированных калибров при повышении стоимости калибров только в 3—5 раз.
Для контроля валов используют главным образом скобы. Наиболее распространены односторонние двухпредельные скобы. Применяют также регулируемые скобы, которые можно настраивать на разные размеры, что позволяет компенсировать износ и использовать одну скобу для измерения размеров, лежащих в определенном интервале. Регулируемые скобы по сравнению с жесткими имеют меньшую точность и надежность, поэтому их чаще применяют для контроля изделий квалитета 8 и грубее.
При конструировании предельных калибров для гладких, резьбовых и других деталей следует соблюдать принцип подобия Тейлора, согласно которому проходные калибры по форме должны являться прототипом сопрягаемой детали с длиной, равной длине соединения (т. е. калибры для валов должны иметь форму колец), и контролировать размеры во всей длине соединения с учетом погрешностей формы деталей. Непроходные калибры должны иметь малую измерительную длину и контакт, приближающийся к точечному, чтобы проверять только собственно размер детали. Таким образом, изделие считают годным, когда погрешности размера, формы и расположения поверхностей находятся в поле допуска.
На практике приходится отступать от принципа Тейлора вследствие неудобств контроля, например, проходным кольцом, так как это требует многократного снятия детали, закрепленной в центрах станка. Вместо контроля проходными кольцами применяют многократный контроль проходными скобами с широкими измерительными поверхностями, а вместо штихмасов — непроходные калибры-пробки с малой (значительно меньше, чем у проходной пробки) шириной измерительных поверхностей.
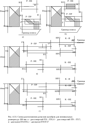
Допуски калибров. Схемы расположения полей допусков калибров приведены на рис. 4.33 и 4.34 со следующими обозначениями: d (D) – номинальный размер изделия; dmin (Dmin) – наименьший предельный размер изделия; dmax (Dmax) – наибольший предельный размер изделия; Т – допуск изделия.
По ГОСТу 24853 - 81 на гладкие калибры устанавлены следующие допуски на изготовление: Н – допуск на изготовление калибров для отверстия (за исключением калибров со сферическими измерительными поверхностями); НS – допуск на изготовление калибров со сферическими измерительными поверхностями для отверстия; Н1 – допуск на изготовление калибров для вала; НР – допуск на изготовление контрольного калибра для скобы; Z – отклонение середины поля допуска на изготовление проходного калибра для отверстия относительно наименьшего предельного размера изделия; Z1 – отклонение середины поля допуска на изготовление проходного калибра для вала относительно наибольшего предельного размера изделия; у – допустимый выход размера изношенного проходного калибра для отверстия за границу поля допуска изделия; у1 – допустимый выход размера изношенного проходного калибра для вала за границу поля допуска изделия; - величина для компенсации погрешности контроля калибрами отверстий с размерами свыше 180 мм; 1 – величина для компенсации погрешности контроля калибрами валов с размерами свыше 180 мм.
Для проходных калибров, которые в процессе контроля изнашиваются, кроме допуска на изготовление, предусматривается допуск на износ.
Для размеров до 500 мм износ калибров ПР с допуском до IТ8 включительно может выходить за границу поля допуска детали на величину y для пробок и y1 - для скоб; для калибров ПР с допусками от IТ9 до IТ17 износ ограничивается проходным пределом, т. е. y = 0 и y1 = 0.
















