168667 (625167), страница 4
Текст из файла (страница 4)
Рисунок 1.2 — Силос хранения минерального порошка
1 — бункер силоса; 2 — аэрирующее устройство; 3 — дозировочный блок; 4— разгрузочный лоток; 5 — рукав.
Конструкция рукавного фильтра приведена на рисунке 3. Воздушный фильтр силоса состоит из рукавов 6, закрытых в верхней части заглушками и закрепленных на общей траверсе 4, с помощью которой под действием пружины 5 рукава удерживаются в натянутом положении. В нижней части рукава открыты и сообщаются с полостью силоса. Очистка рукавов производится путем встряхивания с помощью рукоятки 9, соединенной тросом 7 с траверсой 4 через рычаг 2 и толкатель 1.
Рисунок 1.3 — Воздушный рукавный фильтр силоса порошка
1 — толкатель; 2 — рычаг; 3 — крышка; 4 — траверса; 5 — пружина;
6 — тканевый рукав; 7 — трос; 8 — корпус; 5 — рукоятка.
Рисунок 1.4 — Битумохранилище с нагревательно–перекачивающим агрегатом
1 — самоходная рама-тележка; 2 — пульт управления; 3 — гидропривод механизма подъема; 4 — лебедка для подъема и опускания нагревательного узла; 5, 6 — обогреваемые битумопроводы; 7 — магистральный битумопровод; 8 — гибкий металлорукав; 9 — отвод конденсата; 10 — электродвигатель привода рамы-тележки; 11 — подводящий паропровод; 12 - пакет трубчатых регистров
Схема битумохранилища с нагревательно-перекачивающим агрегатом на самоходной тележке приведена на рисунке 1.4. Работа устройства особых пояснений не требует.
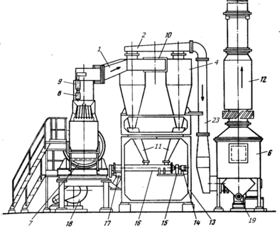
Общая компоновка оборудования системы пылеочистки от сушильного барабана приведена на рисунках 1.5 и 1.6.
Рисунок 1.5 — Компоновка оборудования системы пылеочистки газов от сушильного барабана
1 — газоход от сушильного барабана к циклонам; 2 — газоходы от циклонов; 3 — газоход к дымососу; 4 — сухой пылеуловитель (циклон); 5 — дымосос; 6 — мокрый щелевой пылеуловитель; 7 — сушильный барабан; 8 — затвор "Мигалка"; 9 — прямоточный циклон; 10 — коллектор; 11 — бункер циклонов; 12 — дымовая труба; 13 — каркас блока циклонов; 14 — мотор-редуктор; 15 — цепная муфта; 16 — шнек; 17 — шиберный затвор; 18 – дутьевой вентилятор; 19 – патрубок слива шлама от мокрого пылеуловителя; 20 трубопровод подачи воды в пылеуловитель; 21 – зубчатое кольцо привода вращения сушильного барабана; 22 — газоход к мокрому пылеуловителю; 23 — газоход от сухих циклонов к дымососу.
Рисунок 1.6 — Компоновка оборудования системы пылеочистки газов от сушильного барабана (вид А)
Примечание: Обозначения те же, что и на рисунке 1.5
3.2 Выбросы вредных веществ
При работе АБЗ образуется большое количество вредных веществ, в первую очередь пыль. Основными зонами наиболее интенсивного выделения пыли являются дымовая труба, разгрузочная и загрузочная коробки сушильного барабана. Пыль образуется также при работе «горячего» элеватора, грохочения сухого песка и щебня, при подаче и дозировании минерального порошка и сухих горячих каменных материалов, перемещения материалов транспортерами и в процессе дробления. С целью максимально возможного сокращения выбросов пыли все уплотнения, предусмотренные конструкцией оборудования, необходимо периодически проверять и восстанавливать.
Значительное выделение пыли происходит в процессе ее сдувания с поверхности открытых складов хранения, особенно склада песка, а также в процессе пересыпки материалов. Для уменьшения выбросов пыли от складов хранения рекомендуется устраивать ограждающие стенки, что существенно снижает площадь открытой поверхности. Снижению выбросов пыли также способствует правильная технология перемещения материалов, при которой высота пересыпки материалов минимальна.
Кроме пыли, из дымовой трубы, отводящей газы от сушильного барабана, в атмосферу поступают продукты сгорания топлива, в том числе продукты его недожога
От установок приема, хранения разогрева мазута и битума в атмосферу поступают углеводороды, состав которых весьма широк.
4 Оценка воздействия опасных и вредных факторов на организм человека
4.1 Основные опасные и вредные факторы
Опасный производственный фактор - производственный фактор, воздействие которого на работника может привести к его травме.
Вредный производственный фактор - фактор, воздействие которого на работника может привести к его заболеванию.
При выполнении работ нулевого цикла в работе водителей, находящихся в кабинах различных строительных машин, основным неблагоприятными факторами являются вибрация и шум, запыленность и загазованность воздуха, неблагоприятные метеорологические условия. При управлении экскаваторами амплитуда общей вибрации достигает от 0,008 до 1,4 мм. В кабинах: экскаваторов наблюдается шум (от 58 до 105 дБ), параметры которого часто выше нормативных пределов.
Концентрации пыли в воздухе кабин иногда достигают 53 мг/м3, а содержание в нем окиси углерода - от 7 до 35 мг/м3. Отмечается высокая температура воздуха в летний сезон года (до 42°С) и низкая температура - в зимний (до 4°С). Подобная картина отмечается в условиях труда водителей тракторов, автосамосвалов, бульдозеров. Перегревание воздуха кабины летом и переохлаждение зимой характерны для кабин башенных кранов. При работе земснарядов имеет место общая вибрация.
В связи со сложностью деятельности за пультом управления указанных машин работа водителей сопровождается нервно-эмоциональным напряжением.
У отдельных рабочих, обслуживающих строительную технику, могут иметь место профессиональные заболевания - вибрационная болезнь, пневмокониозы, болезни опорно-двигательного аппарата, поражение органа слуха.
В труде каменщика при возведении зданий и сооружений основными неблагоприятными моментами следует считать интенсивный физический труд (перекладка вручную за смену до 6 т груза), который протекает под открытым небом и зачастую на высоте. При работе монтажника-высотника, кроме фактора высоты, приобретает особое значение неудобная поза, сочетающаяся иногда с напряжённым физическим трудом.
Проведение сварки при монтажных работах характеризуется загрязнением воздуха сварочным аэрозолем, и газами (приложение А). Вредные и опасные факторы, присущие сварочным работам при контактной сварке установлены по ГОСТ 12.3.003-86 «Работы электросварочные», ССБТ Работы электросварочные. Требования безопасности с изменением от 1.07.1989 г. приведены в таблице 1.
Таблица 1 − Вредные и опасные факторы, присущие сварочным работам
| Опасные и вредные производственные факторы в зоне пребывания сварщика | Шовная сварка | Стыковая сварка |
| Физические факторы
| + + + | + + + |
| Опасные и вредные производственные факторы в зоне пребывания сварщика | Шовная сварка | Стыковая сварка |
Повышенная температура воздуха рабочей зоны | + + + - - - - | + + + + + - - |
| Химические факторы Сварочные аэрозоли | + | + |
| Психофизиологические факторы Физические перегрузки | + | + |
Примечание: + наличие фактора;
- отсутствие фактора.
Известно, что к вредным производственным факторам сварочного производства относятся: повышенная запыленность и загазованность воздуха рабочей зоны;
ультрафиолетовое, видимое и инфракрасное излучения сварочной дуги, а также инфракрасное излучение сварочной ванны и свариваемых изделий; электромагнитные поля; ионизирующие излучения; шум и ультразвук; статическая нагрузка на руку сварщика и др.
На участках сварки и резки металлов состав и масса выделяющихся вредных веществ (пыли, окислов металлов и токсичных газов) зависят от вида и режима технологического процесса, свойств, применяемых сварочных и свариваемых материалов. Наибольшие выделения вредных веществ характерны для процесса ручной дуговой сварки покрытыми электродами. При расходе 1 кг электродов в процессе сварки образуется до 40 г пыли, 2 г фтороводорода, 1,5 г оксидов углерода и азота. При сварке чугунов - до 45 г пыли и 1,9 г фтороводорода. При механизированной и автоматической сварке в защитных газах общая масса выделяемых вредных веществ меньше в 2 раза, а при сварке под флюсом - в 6 раз.
Сварочная пыль на 99 % состоит из частиц размером от 10 до 1 мкм, почти на 1 % - от 1 до 5 мкм, частицы размером более 5 мкм составляют всего десятые доли процента. Химический состав выделяющихся при сварке загрязнений зависит в основном от состава сварочных материалов (проволоки, покрытий, флюсов) и в меньшей степени от состава свариваемых материалов.
При сварке в зону дыхания сварщика поступают сварочные аэрозоли, содержащие окислы различных металлов (марганца, хрома, никеля и др.), а также токсичные газы (окись углерода, озон, окислы азота и др.). Эти аэрозоли представляют главную профессиональную опасность труда сварщика, а также способствуют развитию электросварочного пневмокониоза при длительном выполнении работ, который вызывает такие симптомы как отдышку и сухой кашель. Количество и состав сварочных аэрозолей зависят от вида сварки, химического состава сварочных материалов и свариваемых металлов, защитных покрытий, режимов сварки, состава защитных газов и газовых смесей. Твердая составляющая сварочных аэрозолей состоит из мельчайших частиц перенасыщенных паров металла и других веществ, входящих в состав сварочных и присадочных материалов, основного металла и защитных покрытий, которые конденсируются за пределами зоны высокотемпературного нагрева. Газовая составляющая сварочных аэрозолей представляет собой смесь газов, образующуюся при термической диссоциации газо-шлакообразующих компонентов этих материалов (оксид и диоксид углерода - СО, СО 2 фтористый водород - НF и др.) или же за счет фотохимического действия ультрафиолетового излучения дугового разряда на молекулы газов воздуха (оксиды азота - N0, N0 2; озон - О 3).
Воздействие аэрозолей на организм может явиться причиной острых отравлений и профессиональных хронических заболеваний (пневмокониоз, хронический бронхит, интоксикация металлами и сварочными газами и др.). В последние годы количество регистрируемых профессиональных заболеваний, вызванных воздействием на организм сварочных аэрозолей, резко увеличилось. Следует отметить пониженное содержание кислорода (в замкнутых объемах снижение до 16 % при допустимом содержании 19 %).
















