151892 (622012), страница 2
Текст из файла (страница 2)
.
Расчет параметров других нагрузок ТП-1производится аналогично. Результаты расчетов приведены в таблице 2.
Расчет параметров освещения.
Принимаем периметр одного хоздвора равным П= 100м. Тогда, учитывая, что количество хоздворов равно n= 3, имеем:
кВт.
Освещение помещений:
кВт.
Суммируем нагрузки ТП-1 учитывая при этом правила (2.5) и (2.6) и определяем коэффициенты мощности:
кВт;
кВт;
квар;
квар;
кВА;
кВА;
;
Таблица 2 Определение электрических нагрузок ТП-1
| Потребители | Кол-во | Ко | Активная нагрузка, кВт | Реактивная нагрузка,квар | |||||||
| на вводе | расчетная | на вводе | расчетная | ||||||||
| Рдi | Рвi | Рд | Рв | Qдi | Qвi | Qд | Qв | ||||
| 1. Мельница вальцовая | 1 | 1 | 16 | 2 | 16 | 2 | 18 | - | 18 | - | |
| 2.Материальный склад | 1 | 1 | 5 | 2 | 5 | 2 | 3 | - | 3 | - | |
| 3.Мастерские | 1 | 1 | 23 | 2 | 23 | 2 | 27 | - | 27 | 4 | |
| Наружное освещение помещений | 3 | 1 | - | 0,25 | - | 0,75 | - | - | - | - | |
| Наружное освещение хоздворов периметром по 100 м | 3 | 1 | - | 0,3 | - | 0,9 | - | - | - | - | |
| Нагрузка ТП1 | - | - | - | - | 35,8 | 7,65 | - | - | 40 | 4 | |
Результаты расчета нагрузок сводятся в таблицу 3. Токи ТП1 и ТП5 не рассчитываются, так как расчетные мощности этих ТП будут определены только после компенсации реактивной мощности.
Таблица 3. Сводные данные расчета нагрузок
| Элементы сети | Мощность | Ток, А | Коэффициент мощности | ||||||||||||
| Активная, кВт | Реактивная, квар | Полная, кВт | |||||||||||||
| Рд | Рв | Qд | Qв | Sд | Sв | Iд | Iв | Cosд | Cosв | ||||||
| 1 | 2 | 3 | 4 | 5 | 6 | 7 | 8 | 9 | 10 | 11 | |||||
| ТП-1 | 35,8 | 7,7 | 40 | - | 53,7 | 7,7 | 81,3 | 11,6 | 0,67 | 1 | |||||
| ТП-2 | 110 | 55 | 84 | 40 | 138,4 | 68 | 209,7 | 103,1 | 0,79 | 0,81 | |||||
ТП-3 | 60 | 82 | 40 | 51 | 72,1 | 96,6 | 109,3 | 146,3 | 0,83 | 0,85 | |||||
ТП-4 | - | 129 | - | 19 | - | 130,4 | - | 197,6 | - | 0,99 | |||||
| ТП-5 | 60,2 | 43,2 | 52,5 | 32 | 79,9 | 53,8 | 121 | 81,5 | 0,75 | 0,8 | |||||
ТП-6 | 66 | 139 | 44 | 22 | 79,3 | 140,7 | 120,2 | 213,2 | 0,83 | 0,99 | |||||
После компенсации реактивной мощности | |||||||||||||||
| ТП-1 | 35,8 | 7,7 | 10 | - | 37,2 | 10 | 56,4 | 15,2 | 0,96 | 1 | |||||
| ТП-2 | 110 | 55 | 9 | 10 | 110,4 | 55,9 | 167,3 | 84,7 | 0,99 | 0,98 | |||||
| ТП-3 | 60 | 82 | 10 | 1 | 60,8 | 82 | 92,1 | 124,2 | 0,99 | 1 | |||||
| ТП-4 | - | 129 | - | 19 | - | 130,4 | - | 197,6 | - | 0,99 | |||||
| ТП- 5 | 60,2 | 43,2 | 2,5 | 2 | 60,3 | 43,3 | 91,4 | 138,5 | 0,99 | 0,99 | |||||
| ТП-6 | 66 | 139 | 4 | 22 | 66,1 | 140,7 | 100,2 | 213,2 | 0,99 | 0,99 | |||||
3. Компенсация реактивной мощности
При естественном коэффициенте мощности линии или ТП меньше 0,95 рекомендуется компенсация реактивной мощности /2/.
Необходимо выбрать конденсаторные батареи БК для ТП5 и ТП1 и установить их на шинах 0,4 кВ этих ТП.
По естественному коэффициенту мощности (таблица 3 определяют, где и когда необходима компенсация.
Для ТП-1 согласно данным таблицы:
Рд= 35,8 кВт; Qд = 40 квар; Cosд = 0,67;
Рв = 7,7 квар; Qв = 0 квар; Cosв = 1;
Для ТП-2:
Рд= 110 кВт; Qд = 84 квар; Cosд = 0,79;
Рв =55 квар; Qв = 40 квар; Cosв = 0,81;
Для ТП-3:
Рд= 60 кВт; Qд = 40 квар; Cosд = 0,83;
Рв = 82 квар; Qв = 51 квар; Cosв = 0,85;
Для ТП-4:
Рв = 129 квар; Qв = 19 квар; Cosв = 0,99;
Для ТП-5:
Рд= 60,2 кВт; Qд = 52,5 квар; Cosд = 0,75;
Рв = 43,2 квар; Qв = 32 квар; Cosв = 0,8;
Для ТП-6:
Рд= 66 кВт; Qд = 44 квар; Cosд = 0,83;
Рв = 139 квар; Qв = 22 квар; Cosв = 0,99;
Определяем реактивную мощность Qк, которую необходимо компенсировать до cosц = 0,95
Qк = Qест - 0,33 P (3.1)
где Qест — естественная (до компенсации) реактивная мощность.
Для ТП-2 согласно данным таблицы 3:
Qкд= 84 - 0,33·110 = 47,7 кВАр;
Qкв= 40 - 0,33·55 = 21,85 кВАр.
Для других ТП расчет производиться аналогично.
Выбираем мощность конденсаторных батарей Qбк, при этом перекомпенсация не рекомендуется:
Qк< Qбк ест . (3.2)
Номинальные мощности конденсаторных батарей на напряжение 0,38 кВ, кВАр следующие: 20, 25, 30, 40, 50, 75, 100, 125, 150 и т. д.
Например, для ТП-2:
QбкД = 75 кВАр;
QбкВ = 30 кВАр;
Батарею конденсаторов лучше выбирать одной и той же для дневного и вечернего максимумов. Если это сделать не удается, то выбираем две батареи (иногда больше), причем в один максимум они включены обе, в другой — только одна.
Например, для ТП-5: QбкД = 50 кВАр;
QбкВ = 30 кВАр,
причем в дневной максимум нагрузки включаем обе конденсаторные батареи QбкД = 125 кВАр, а в вечерний максимум нагрузки включается только одна батарея QбкВ = 30 кВАр.
Для других ТП мощности конденсаторных батарей выбираются аналогично. Результаты расчетов и выбора представлены в таблице 4.
Определяют некомпенсированную реактивную мощность
Q= Qест - Qбк (3.3)
Для ТП-2:
Qд = Qест д - Qбк = 84 – 75 = 9 кВАр;
Qв = Qест в - Qбк = 40 – 30 = 10 кВАр.
Для других ТП некомпенсированная реактивная мощность рассчитывается аналогично. Результаты расчетов представлены в таблице 4.
Рассчитывают полную нагрузку трансформаторных подстанций с учетом компенсации
S=
. (3.4)
Для ТП-1: Sд =
кВА;
Sв =
кВА.
Для других ТП полная нагрузка трансформаторных подстанций с учетом компенсации рассчитывается аналогично.
Определяем коэффициенты мощности после компенсации по формулам (2.7)…(2.11).
Для ТП-1: соsд =
;
cosв =
.
Данные по компенсации реактивной мощности сводятся в таблицу 4.
Сводные данные после компенсации, занесены в таблицу 3.
Таблица 4 Сводные данные по компенсации реактивной мощности
| ТП | Расчетная мощность, квар | ||||||||||
| естественная | для компенсации | БК | расчетная | ||||||||
| Qест д | Qест в | Qк д | Qк в | Qбк д | Qбк в | Qд | Qв | ||||
| ТП-1 | 40 | - | 28.2 | - | 30 | - | 10 | - | |||
| ТП-2 | 84 | 40 | 47,7 | 21,9 | 75 | 30 | 9 | 10 | |||
| ТП-3 | 40 | 51 | 20,2 | 23,9 | 30 | 50 | 10 | 1 | |||
| ТП-4 | - | - | - | - | - | - | - | - | |||
| ТП-5 | 52,5 | 32 | 32,6 | 17,7 | 50 | 30 | 2,5 | 2 | |||
| ТП-6 | 44 | - | 22,2 | - | 40 | - | 4 | - | |||
4 Выбор потребительских трансформаторов
Номинальную мощность трансформаторов 6/0,4; 10/0,4; 20/0,4 и 35/0,4 кВ выбираем по экономическим интервалам нагрузок в зависимости от расчетной полной мощности, среднесуточной температуры охлаждающего воздуха и вида нагрузки.
Для рассматриваемого примера на ТП1 и ТП5 необходимо установить трансформаторы мощностью 40 кВА и 100 кВА.
Для всех ТП выбираем трансформаторы и записывают их основные технические данные (таблица 5).
Таблица 5 Основные технические данные трансформаторов 10 / 0,4 кВ
| № ТП | Sрасч, кВа | Тип | Sт ном, кВа | Uвн ном, кВ | Uнн ном , кВ | Рхх, кВт | Рк, кВт | Uк% | ПБВ % | W, кВт/ ч год |
| 1 | 37,2 | ТМ | 63 | 10 | 0,4 | 0,265 | 1,28 | 4,5 | 2 2,5 | 2767,2 |
| 2 | 110,4 | ТМ | 160 | 10 | 0,4 | 0,565 | 2,65 | 4,5 | 2 2,5 | 6715,7 |
| 3 | 82 | ТМ | 100 | 10 | 0,4 | 0,365 | 1,97 | 4,5 | 2 2,5 | 4919,4 |
| 4 | 130,4 | ТМ | 160 | 10 | 0,4 | 0,565 | 2,65 | 4,5 | 2 2,5 | 7413,7 |
| 5 | 60,3 | ТМ | 63 | 10 | 0,4 | 0,265 | 1,28 | 4,5 | 2 2,5 | 3845,8 |
| 6 | 140,7 | ТМ | 160 | 10 | 0,4 | 0,565 | 2,65 | 4,5 | 2 2,5 | 7818,3 |
| Итого | 706 | 30480,1 |
Потери энергии в трансформаторах определяют по формуле
(4.1)
где Рх и Рк — потери мощности холостого хода и короткого замыкания в трансформаторе;
— время максимальных потерь, определяют по зависимости =f (Tmax), где время использования максимальной мощности Tmax выбирают в зависимости от характера нагрузки по таблице 6
Таблица 6 Зависимость Тmax и от расчетной нагрузки
| Ррасч, кВт | Характер нагрузки | ||||||||||||
| Коммунально-бытовая | производственная | смешанная | |||||||||||
| Время,ч | |||||||||||||
| Tmax | Tmax | Tmax | |||||||||||
| 0...10 | 900 | 300 | 1100 | 400 | 1200 | 500 | |||||||
| 1200 | 500 | 1500 | 500 | 1700 | 600 | ||||||||
| 20...50 | 1600 | 600 | 2000 | 1000 | 2200 | 1100 | |||||||
| 50...100 | 2000 | 1000 | 2500 | 1300 | 2800 | 1500 | |||||||
| 100...250 | 2350 | 1200 | 2700 | 1400 | 3200 | 2000 | |||||||
| 250...300 | 2600 | 1400 | 2800 | 1500 | 3400 | 2100 | |||||||
| 300…400 | 2700 | 1450 | 2900 | 1530 | 3450 | 2120 | |||||||
| 400…600 | 2800 | 1500 | 2950 | 1600 | 3500 | 2150 | |||||||
| 600...1000 | 2900 | 1600 | 3000 | 1630 | 3600 | 2200 | |||||||
Так например, для ТП-1 принимаем в соответствии с таблицей 6 для производственного характера нагрузки для Ррасч= 30,38 кВт
= 1000 часов, тогда потери на ТП-1 определятся как:
кВт/ч год.
Для других ТП потери энергии рассчитывается аналогично. Результаты расчета нагрузок сводятся в таблицу 5.
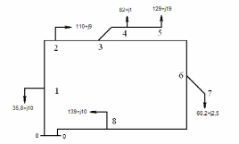
5. Электрический расчет линии напряжением 10 кВ
Электрический расчет воздушных линий (BЛ) производится с целью выбора марки и сечения проводов и определения потерь напряжения и энергии (таблица 5.1). Приведем пример расчета линии по схеме (рисунок 5.1.)
Определим нагрузку в точке 3
S3 = S4 + S5 = 92 + j16 + 145 + j16 = 237 + j32 кВА.
Раскольцуем сеть и получим расчётную схему (рисунок 5.2).
Рисунок 5.1 Расчётная схема ВЛ 10 кВ
Рисунок 5.2 Раскольцованная сеть
Определим потоки мощности на головных участках цепи:
S
=
, (5.1)
кВА;
кВА.
Определим потоки мощности на остальных участках сети по первому закону Кирхгофа:
S1-2 = S0/-1 – S1 = 207,2 + j24 – (35,8 + j10) = 171,4+ j14 кВА;
S2-3 = S1-2 – S2 = 171,4 + j14 – (110 + j9) = 61,4 + j5 кВа;
S8-6 = S0//-8 – S8 = 348,8 + j 39,5 – (139 + j22) = 209,8 + j17,5 кВа;
S6-3 = S8-6 – S6 = 209,8+ j17,5 – (60,2 + j2,5) = 149,6 + j15 кВа.
Нанесем полученные потоки мощности на схему 5.3 и определим точку потокараздела для активной и реактивной мощности, в данном случае имеется одна точка потокараздела как для активной, так и для реактивной мощности.
Рисунок 5.3 Определение точки потокораздела:
-
– точка потокораздела; - направление потока мощности.
Таблица 7 Электрический расчет ВЛ 10 кВ
| Параметры | 0’ - 1 | 1 - 2 | 2 - 3 | 0’’ - 8 | 8 - 6 | 6 – 3 |
| L, км | 3,3 | 3,7 | 1,7 | 1,2 | 2,5 | 3,2 |
| Pmax, кВт | 207,2 | 171,4 | 61,4 | 348,8 | 209,8 | 149,6 |
| Qmax, квар | 24 | 14 | 5 | 39,5 | 17,5 | 15 |
| Smax, кВА | 208,6 | 171,97 | 61,6 | 351,03 | 210,5 | 150,4 |
| Imax, А | 13 | 10 | 4 | 21 | 13 | 9 |
| Марка провода | АС35 | АС25 | АС25 | АС35 | АС35 | АС25 |
| Uуч.max, % | 0,81 | 0,5 | 0,08 | 0,5 | 0,62 | 0,39 |
| UГПП уч.max, % | 0,81 | 1,31 | 1,39 | 1,89 | 2,51 | 2,9 |
| WL, кВТч/год | 2684,63 | 1201,2 | 81,9 | 2783,7 | 2033,6 | 841,5 |
По экономическим интервалам нагрузок выбираем провода (таблица 9).
Таблица 9 Экономические интервалы нагрузок
| I р max, А | 0…12 | 12…22 | 22…31 | 31…47 | 47…70 | 70 |
| Провод | АС25 | АС35 | АС50 | АС70 | А95 | А120 |
Принимаем провод АС 35 на участках: 0-1, 8-6, 0-8.
Принимаем провод АС 25 на участках: 1-2,2-3, 6-3.
Выбранное сечение проверяется по допустимому нагреву /5/ (таблица 10)
I доп > I max, (5.3)
Таблица 10 Допустимый ток провода по нагреву
| Провод | А16 | А25 | А35 | А50 | А70 | А95 | А120 | АС11 | АС12 | АС25 | АС25 | АС50 | АС70 |
| I доп, А | 105 | 135 | 170 | 215 | 265 | 320 | 375 | 80 | 105 | 130 | 130 | 210 | 265 |
Для провода АС 35 Iдоп=170 А - условие выполняется.
Для провода АС 25 Iдоп=130 А - условие выполняется.
Для провода АС 50 Iдоп=210А – условие выполняется.
Для выбранных проводов выписываем сопротивления 1 км: активное ro и индуктивное хо. Для определения хо принимаем среднее геометрическое расстояние между проводами (для ВЛ 10 кВ принимаем Дсp 1500 мм). Данные по проводам сводят в таблицу 11.
Таблица 11 Данные по проводам
| Провод | Д ср, мм | Ro Ом/км | Хо, Ом/мм | I max, А | I доп, А |
| АС 25 | 1500 | 1,146 | 0,391 | 8,1 | 130 |
| АС 35 | 1500 | 0,773 | 0,402 | 17 | 170 |
Рассчитываем потери напряжения на участках в процентах по формуле:
, (5.4)
Например, для участка 1-2:
















