151856 (621996)
Текст из файла
Введение
Для передачи вращающего момента, от вала двигателя к валу рабочей машины, в приводах различных машин и механизмов применяются редукторы.
Редуктором называют механизм состоящий из зубчатых или червячных передач выполненный в виде отдельного агрегата и служащий для передачи вращающего момента от вала двигателя к валу рабочей машины поэтому редукторы широко применяются в приводах различных машин и механизмов. Редуктор состоит из корпуса (ленточного чугунного или сварного стального) в котором помещают элементы передачи – зубчатые колеса валы подшипники и т.д.
Редуктор предназначен для понижения угловой скорости и соответственно повышения вращающего момента ведомого вала по сравнению с ведущим.
Редуктор проектируют либо для привода определённой машины, либо по заданной нагрузке и передаточному числу без указания конкретного назначения.
Передаточное отношение одноступенчатых цилиндрических редукторов ограничено Umax ≤ 6,3, поэтому для реализации больших передаточных отношений в схему привода дополнительно включают цепные или ременные передачи.
Для привода ленточного конвейера спроектировать одноступенчатый цилиндрический редуктор общего назначения с прямозубыми колесами предназначенный для длительной эксплуатации. Передача нереверсивная нагрузка близкая к постоянной. Работа двухсменная.
Исходные данные:
Тяговое усилие ленты Fл = 2,07 кН
Скорость ленты Vл = 1,33 м/с
Диаметр приводного барабана Дб = 380 мм
Схема привода
конвейер
С nб
Х
Х
Х
Х
A n1
М
В n2
1. Выбор электродвигателя и кинематический расчет
По таблице 1.1 [1] принимаем:
К.п.д. пары цилиндрических зубчатых колес 1 = 098;
К.п.д. пары подшипников качения 3 = 099;
К.п.д. открытой цепной передачи 2 = 092;
К.п.д. потерь в опорах приводного барабана 4 = 099
Общий К.п.д. привода
= 1 22 3 4 = 098 0992 092 099 = 087
Мощность на валу барабана
Рб = Vл Fл = 1.33 2.07 = 2.75кВт
Требуемая мощность электродвигателя
кВт
Угловая скорость барабана
рад/с
Частота вращения барабана
об/мин.
По ГОСТ 19523- 81 (таблица п.1) по требуемой мощности Ртр = 3,15 кВт выбираем асинхронный трехфазный короткозамкнутый электродвигатель серии 4А с синхронной частотой частотой вращения nc = 1000 об/мин. Типа 112 МВ6 с параметрами Рдв = 4 кВт и скольжением S = 5,1%.
Номинальная частота вращения двигателя
nдв = 1000 (1-S) = 1000(1-0.051)=949 об/мин
Угловая скорость электродвигателя
рад/с
Передаточное отношение привода
Принимаем по ГОСТ 2185-66передаточное отношение редуктора Up = 4, тогда передаточное отношение цепной передачи
Вращающие моменты на валах:
На валу шестерни
Нм
Навалу колеса Т2 = T1 Up = 31,7 4 = 126,8 Нм
Частоты вращения и угловые скорости валов
| Вал В | n1 = nдв= 949об/мин | 1 = дв = 99,3 рад/с |
| Вал С | | |
| Вал А | n3 = nб = 67 об/мин | n3 = nб = 67 об/мин |
2.Расчет зубчатых колес редуктора
По таблице 3.3 [1] выбираем материал зубчатых колес:
для шестерни сталь 45 – термообработка улучшение твердость НВ 230;
для колеса – сталь 45 – термообработка улучшение твердость НВ 200.
Допускаемые контактные напряжения (формула 3.9 [1])
,
где GНlimb – предел контактной выносливости при базовом числе циклов нагружения.
По таблице 3.2 [1] для материала колёс:
Нlimb = 2НВ + 70.
КHL – коэффициент долговечности при длительной эксплуатации КHL = 10 (стр.33 [1]);
[Sн]- коэффициент безопасности. Для улучшеной стали [Sн] = 115 (cтр. 33 [1]).
Допускаемые контактные напряжения
для шестерни
Мпа;
для колеса
Мпа.
Коэффициент нагрузки, с учётом влияния изгиба от натяжения цепи, принимаем как для несимметрично расположенных колёс. По таблице 3.1[1] Кнл=1.25
Коэффициент ширины вунца по межосевому расстоянию Ψва= в/aw
Для прямозубых колёс Ψва= 0,16 (стр.36)
Межосевое расстояние из условия контактной выносливости активных поверхностей зубьев определяем по формуле 3.7 [1]
мм,
Принимаем по ГОСТ 2185–66 аw = 180 мм
где Ка = 49,5 – коэффициент для прямозубых колес (страница 32 [1]).
Нормальный модуль зацепления
m = (001 002) аw = (001 002) 180 = (1,8 3,5) мм.
Принимаем по ГОСТ 9563-60 m = 3 мм
Определяем суммарное число зубьев колес
Число зубьев шестерни
Число зубьев колеса
Z2 = ZE –Z1= 120-24 = 96
Уточняем передаточное отношение
Уточняем межосевое расстояние
аw =0,5(Z1 – Z2)m = 0.5 (24+96) ·3 =180 мм
Основные размеры шестерни и колеса:
делительные диаметры:
d1=m·z1= 3·24 = 72мм;
d2=z2·m = 96·3 = 288мм.
Проверка:
мм.
диаметры вершин зубьев
da1 = d1 + 2m = 72 + 2 3 = 78 мм;
da2 = d2 + 2m = 288 + 2 3 = 294 мм.
диаметры впадин зубьев
df1 = d1- 2.5 m = 72-2.5·3 = 64.5 мм
Ширина колеса
мм.
Ширина шестерни b1 = b2 + (2÷5) = 30 + 4= 34 мм.
Коэффициент ширины шестерни по диаметру
.
Окружная скорость колеса и степень точности передачи:
м/с.
При такой скорости колёс следует принять 8-ую степень точности передачи.
По таблице 3.5 [1] при
bd = 0.47 и твердости НВ< 350, принимаем КН = 1.05.
По таблице 3.4 [1] при V = 3.6 м/с и 8-й степени точности, коэффициент КН =109.
По таблице 3.6 [1] для шевронных колес коэффициент КHv = 105.
Тогда коэффициент нагрузки КН = КН КН КНv = 1.05 109 105 = 1.20
Проверяем контактные напряжения по формуле 3.6 [1]
Мпа < [
Н].
Силы действующие в зацеплении:
окружная сила
Н
радиальная сила
Н,
Проверяем зубья на выносливость по напряжениям изгиба по формуле 3.25 [1]
[
F].
где коэффициент нагрузки КF = KF KFv
По таблице 3.7 [1] при
bd = 0.47,твёрдости НВ<350. Коэффициент КF = 108
По таблице 3.8 [1] при V=3.6и 8-ой степени точности коэффициент КFv = 1.45
Тогда КF = 108· 145 =1,57
YF – коэффициент прчности зуба по местным напряжениям зависящий от эквивалентного числа зубьев zv:
тогда YF1 = 4.09 YF2= 3.61 (страница 42 [1]).
Допускаемые напряжения при изгибе
По таблице 3.9 [1] для стали 45 улучшенной при твердости НВ< 350 принимаем
НВ.
для шестерни
0Flimb1 = 18 НВ1 = 18 230 = 414Мпа;
для колеса
0Flimb2 = 181 НВ2 = 18 200 = 360 Мпа.
Коэффициент безопасности [SF] = [SF] [SF]''.
По таблице 3.9 [1]: [SF] = 175 и [SF]'' = 10.
Тогда [SF] = 175 10 = 175.
Допускаемые напряжения:
для шестерни
Мпа;
для колеса
Мпа.
Производим сравнительную оценку прочности зубьев для чего находим отношение
:
д
ля шестерни
Мпа;
для колеса
Мпа.
Дальнейший расчет ведем для зубьев колеса для которых это отношение меньше.
Мпа < [
F2] = 206Мпа.
Вывод: условие прочности выполнено.
3. Предварительный расчет валов редуктора
Предварительный расчет валов проведем на кручение. Крутящие моменты в сучениях вылов: ведущего-T1 = 31,7 H·м; ведомого –Т2 = 126.8 Н·м
3.1 Ведущий вал
Крутящий момент на валу Т1 = 12.5.
Допускаемые напряжения на кручение [к] = 25 Мпа.
Диаметр выходного конца вала
м
м.
Так как ведущий вал редуктора соединяется муфтой МУВП с валом электродвигателя, то необходимо согласовать диаметры выходных концов валов.
По таблице 2[1] для электродвигателя 4A112М dдв = 32мм.
Тогда dв1 = 0,75 dдв = 0,75 32 =24м (страница 296 [1]);
диаметр вала под подшипниками принимаем dп1 = 20мм.
Конструкция ведущего вала
3.2 Ведомый вал:
Крутящий момент на валу Т2 = 50м. Диаметр выходного конца вала под ведущую звездочку цепной передачи определяем по пониженным напряжениям [к] = 20 МПа чем учитывается влияние изгиба вала от натяжения цепи:
мм
Принимаем dв2 = 32, диаметр вала под подшипники dп2 = 35м под зубчатым колесом dк2 = 40.
Диаметр остальных участков валов назначаем исходя из конструктивных соображений при компоновке редуктора.
Конструкция ведомого вала
35
32
35
40
4. Конструктивные размеры шестерни и колеса
Шестерню выполняем за одно целое с валом ее размеры определены выше:
Z1 = 24; m = 3мм; dа1 = 78; df1 = 64.5м; b1 = 34.
Колесо кованое, его размеры
d2 = 288; da2 = 294; b2 = 30мм; m = 3мм; Z2 = 96 мм; df2 = 280.5мм,
диаметр ступицы колеса dст2 = 16 dк2 = 64мм
длина ступицы колеса lст2 = (1215) dк2 = (1215) 40 = (48-60)мм
принимаем lст2 = b2 = 50
Толщина обода 0 = (24) m = (24) 3= (612)мм
принимаем 0 = 10мм.
Толщина диска С = 03 b2 = 03 30=9мм, принимаем с = 10мм
Диаметр окружности центров в диске
Дотв =0,5 (До + dст2) = 0.5(269+64) = 162мм
Где До = df2 – (2do + 5m) = 294-(2·10+3·5) = 259мм
Диаметр отверстий в диске колеса
5.Конструктивные размеры корпуса редуктора
Толщина стенок корпуса и крышки
= 0025aw + 1мм = 0025 180 + 1 = 5,5 мм;
1 = 002aw +1мм = 002 180 + 1 = 4,6 мм
принимаем = 1 = 8мм.
Толщина фланцев поясов корпуса и крышки
b = b1 = 15 = 15 8 = 12 мм.
Толщина нижнего пояса корпуса
р = 235 = 235 8 = 18,8 мм принимаем p = 20 мм.
Диаметры болтов:
Фундаментных: d1 = (0030036)аw + 12 = (0030036)180 + 12 = (17,418,5) мм; принимаем болты с резьбой М18;
крепящих крышку к корпусу у подшипников:
d2 = (07075)d1 = (07075)18 = (12,613,5) мм принимаем болты с резьбой М12.
соединяющих крышку с корпусом: d3 = (0506)d1 = (0506)18 = (910,8) мм; принимаем болты с резьбой М10.
6. Расчет цепной передачи
Выбираем приводную роликовую однорядную цепь. Крутящий момент на валу
Т2 = 126,8Н·м
Передаточное отношение определено выше Uц = 3,55.
Число зубьев ведущей звездочки
z3 = 31 – 2Uц = 31 – 2 355 = 23,9; принимаем z3 = 24.
Число зубьев ведомой звездочки
z4 = z3Uц = 24 3,55 = 85,2. Принимаем z4 = 85
Фактическое передаточное отношение
что соответствует принятому.
Оклонение Δ =
Допускается ± 3%
Определяем расчетный коэффициент нагрузки (формула 7.38[1]);
Кэ = КдКаКнКрКсмКп = 1111251125 = 156;
где Кд = 1 – динамический коэффициент при спокойной нагрузке;
Ка = 1 – коэффициент, учитывает влияние межосевого расстояния при ац (30÷60)t;
Кн = 1 – коэффициент влияние угла наклона линии центров при
= 45; Кн =1,0
Кр – коэффициент, учитывает способ регулирования натяжения цепи Кр = 125 при периодическом регулировании натяжения цепи;
Ксм – коэффициент учитывает способ смазки; при непрерывной смазке Ксм = 10;
Кп – учитывает продолжительность работы передачи в сутки при двухсменной работе Кп = 125.
Для определения шага цепи надо знать допускаемое давление [p] в шарнирах цепи. По таблице 7.18 [1] при n2 = 238 об/мин, ориентируясь на шаг цепи t = 19,05 принимаем [p] = 24 МПа.
Шаг однорядной цепи
мм.
Подбираем по таблице 7.15 [1] цепь ПР–25,4–60 по ГОСТ 13568-75, имеющую: шаг t = 25,4 мм; разрушающую нагрузку Q = 60кН; массу q = 2,6 кг/м;
Аоп = 179,7мм2.
Скорость цепи
м/с.
Окружная сила
H.
Давление в шарнирах проверяем по формуле 7.39 [1]:
МПа.
Уточняем по таблице 7.18 [1] допускаемое давление.
р = 23 [ 1 + 001 (z3 – 17)] = 21 [1 + 001 (24 – 17)] = 22,5 МПа.
Условие р [p] выполнено.
Определяем число звеньев цепи (формула 7.36 [1])
где
(стрaница 148 [1]); z = z3 + z4 = 24 + 85 = 109.
тогда Lt = 2 · 50 + 05 · 109 +
= 156,4. Округляем до четного числа Lt = 156.
Уточняем межосевое расстояние цепной передачи по формуле 7.37 [1]
Для свободного провисания цепи предусматриваем возможность уменьшения межосевого расстояния на 04% т.е. на 1265 · 0004 5 мм.
Определяем диаметры делительных окружностей звездочек по формуле 7.34 [1]
мм;
мм.
Определяем диаметры наружных окружностей звездочек.
мм
мм,
где d1 = 15,88 мм – диаметр ролика цепи (таблица 7.15 [1]).
Силы, действующие на цепь:
Окружная Ftц = 1300Н (определены выше).
От центробежных сил Fv = q · 2 = 2,6 · 2,422 = 16 H.
От провисания цепи Ff = 981 · Kf · q · ац = 981 · 15 · 2,6 · 1,27= 49 Н,
Расчетная нагрузка на вал Fв = Ftц + 2Fγ = 1300+ 2 · 49 = 1398H.
Проверяем коэффициент запаса прочности цепи (формула 7.40 [1])
> [S] = 8,4
где [S] = 8,4– нормативный коэффициент запаса прочности цепи (таблица 7.19 [1]).
Условие S > [S] выполнено
Размеры ведущей звездочки:
dd3 =194.6мм; Дез = 206мм
диаметр ступицы звездочки
Дст3= 16 dв2 = 16 · 32 = 52мм;
длина ступицы lст3 = (1216) · dв2 = (1216) · 32 = (38,4÷51,2) мм;
принимаем lст3 = 50 мм.
Толщина диска звездочки
С = 093 Вн = 093 · 15,88 =14,8 мм
где Вн = 15,88 мм – расстояние между пластинами внутреннего звена цепи (табл. 7.15 [1])
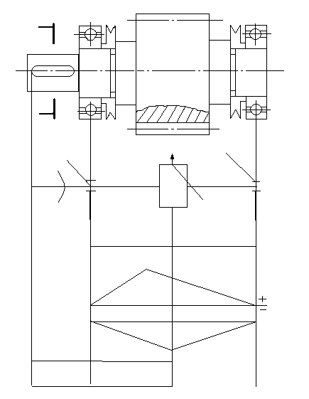
7. Первый этап компоновки редуктора
Компоновку выполняется в два этапа. Превый этап позволяет приближенно определить положение зубчатых колес и ведущей звездочки цепной передачи относительно опор для последующего определения опорных реакций и набора подшипников.
Компоновочный чертеж выполняем в одной проекции – разрез по осям валов при снятой крышке корпуса в масштабе М 1:1.
Примерно по середине листа проводим горизонтальную осевую линию затем две вертикальные оси валов на расстоянии аw = 180 мм.
Вычерчиваем упрощенно шестерню и колесо: шестерня выполнена за одно целое с валом: длина ступицы колеса равна ширине венца колеса.
Очерчиваем внутреннюю стенку корпуса:
а) принимаем зазор от окружности вершин зубьев колеса до внутренней стенки корпуса А = δ =10 мм;
б) принимаем зазор между торцом ступицы шестерни и внутренней стенкой корпуса А1 = 10 мм;
в) принимаем зазор между наружным кольцом подшипника ведущего вала и внутренней стенкой корпуса А2 = 10 мм.
Предварительно намечаем радиальные шарикоподшипники легкой серии по ГОСТ 8338-75. Габариты подшипников выбираем из таблицы П3. [1] по диаметру вала в месте посадки подшипника: dп1 = 30 мм; dп2 = 35 мм.
| Условное обозначение подшибника | d | D | B | Грузоподъёмность, кН | ||
| Размеры, мм | ||||||
| 206 | 30 | 62 | 16 | 19,5 | 10 | |
| 207 | 35 | 72 | 17 | 25,5 | 13,7 | |
Решаем вопрос смазки подшипников. Принимаем для подшипников пластичную смазку. Для предотвращения вытекания смазки внутрь и вымывания пластичной смазки жидким маслом из зоны зацепления устанавливаем мазеудерживающие кольца. Их ширина определяет размер У=10 мм; принимаем У = 10 мм.
Находим расстояние от середины шестерни до точек приложения реакции подшипников к валам:
на ведущем валу
мм;
на ведомом валу
мм;
тоесть l1 = l2 = 54 мм.
Из расчета цепной передачи определяем расстояние от точки приложения натяжения цепи к валу, до точки приложения реакции ближайшего из подшипника ведомого вала.
Длина гнезда подшибника
мм,
S = 10 мм – толщина врезной крышки;
Определяем расстояние от точки приложения натяжения цепи к валу до реакции ближайшего подшибника ведомого вала
мм
8. Проверка долговечности подшипников
8.1 Ведущий вал
Силы, действующие в зацеплении:
Ft = 500 H; Fr = 182 H, из первого этапа компоновки l1 = 46 мм.
Расчетная схема вала
Определяем реакции опор:
а) в горизонтальной плоскости
H;
б) в вертикальной плоскости
Н.
Характеристики
Тип файла документ
Документы такого типа открываются такими программами, как Microsoft Office Word на компьютерах Windows, Apple Pages на компьютерах Mac, Open Office - бесплатная альтернатива на различных платформах, в том числе Linux. Наиболее простым и современным решением будут Google документы, так как открываются онлайн без скачивания прямо в браузере на любой платформе. Существуют российские качественные аналоги, например от Яндекса.
Будьте внимательны на мобильных устройствах, так как там используются упрощённый функционал даже в официальном приложении от Microsoft, поэтому для просмотра скачивайте PDF-версию. А если нужно редактировать файл, то используйте оригинальный файл.
Файлы такого типа обычно разбиты на страницы, а текст может быть форматированным (жирный, курсив, выбор шрифта, таблицы и т.п.), а также в него можно добавлять изображения. Формат идеально подходит для рефератов, докладов и РПЗ курсовых проектов, которые необходимо распечатать. Кстати перед печатью также сохраняйте файл в PDF, так как принтер может начудить со шрифтами.
















