293427 (621907)
Текст из файла
Чувашский Государственный Университет
имени И.Н.Ульянова
Энергетический институт
Электротехнический факультет
Кафедра АЭТУС
КУРСОВОЙ ПРОЕКТ
ПО ДИСЦИПЛИНЕ:
ЭЛЕКТРОСНАБЖЕНИЕ ЭТУ
НА ТЕМУ:
ПРОЕКТИРОВАНИЕ ЭЛЕКТРОСНАБЖЕНИЯ УЧАСТКА
Выполнил: студент
группы ЭТ-51-02
Константинов Д.В.
Проверил: преподаватель
Лавин И.А.
Чебоксары - 2006 г.
РЕФЕРАТ
Пояснительная записка состоит из 35 страниц, включает в себя 11 иллюстраций, использовано 6 источников.
ПЕЧЬ, КРИСТАЛЛИЗАТОР, ШИНА, ПОДДОН, ОТЛИВКА.
В данном курсовом проекте мною было спроектировано электроснабжение участка цеха включающего в себя 2 печи электрошлакового переплава, для получения слитка весом 0,25т, флюсоплавильную печь У-560. Был составлен индивидуальный и групповой график нагрузки участка. Разработана схема электроснабжения участка, выбрано силовое оборудование ЭТУ. Рассчитаны токи короткого замыкания на шинах печной подстанции. Разработана схема управления, защиты и сигнализации. Подобраны контрольно-измерительные приборы.
СОДЕРЖАНИЕ
РЕФЕРАТ
СОДЕРЖАНИЕ
ВВЕДЕНИЕ
1.ТЕХНИЧЕСКАЯ ХАРАКТЕРИСТИКА
2.ПЛАН УЧАСТКА ЦЕХА
3.ИСХОДНЫЕ ДАННЫЕ
4.ОПИСАНИЕ ТЕХНОЛОГИЧЕСКОГО ПРОЦЕССА
5.ЭЛЕКТРОШЛАКОВЫЕ КАК ПОТРЕБИТЕЛИ ЭЛЕКТРОЭНЕРГИИ.
6.РАСЧЁТ ГРУППОВОГО ГРАФИКА СИЛОВОЙ НАГРУЗКИ УЧАСТКА
7.РАСЧЁТ ТОКОВ КОРТКОГО ЗАМЫКАНИЯ НА КОМПЛЕКТНОЙ ТРАНСФОРМАТОРНОЙ ПОДСТАНЦИИ
8.ВЫБОР КОМПЛЕКТНОЙ ТРРАНСФОРМАТОРНОЙ ПОДСТАНЦИИ
9.РАСЧЁТ ТОКОВ КОРОТКОГО ЗАМЫКАНИЯ НА ШИНАХ ПЕЧНОЙ ПОДСТАНЦИИ
10.КОМПЛЕКТНАЯ ТРАНСФОРМАТОРНАЯ ПОДСТАНЦИЯ
11.ВЫБОР ОБОРУДОВАНИЯ
12.РАСЧЁТ ПАРАМЕТРОВ СРАБАТЫВАНИЯ РЕЛЕЙНОЙ ЗАЩИТЫ
ЗАКЛЮЧЕНИЕ
СПИСОК ИСПОЛЬЗУЕМОЙ ЛИТЕРАТУРЫ
ВВЕДЕНИЕ
В настоящее время большое внимание уделяется разработке тех видов техники и технологии, которые обеспечивают значительную экономию сырьевых энергетических и трудовых ресурсов. В связи с этим большое значение приобретает развитие электротермических технологий и установок ЭТУ.
В ряде случаев ЭТУ являются специфическими приёмниками электроэнергии. Зачастую они предъявляют повышенные требования к надёжности и стабильности электроснабжения. Поэтому их проектировка и эксплуатация требует особого подхода. Многие ЭТУ характеризуются высоким уровнем генерируемых гармоник, резко колебательным режимом, повышенным уровнем потребления реактивной мощности. Это заставляет принимать специальные меры по предотвращению их влияния на качество электроэнергии в системах электроснабжения промышленных предприятий.
Требования научно-технического прогресса диктуют необходимость совершенствования промышленной электроэнергетики: создание экономичных, надёжных систем электроснабжения промышленных предприятий, развития электрических сетей и электрооборудования, автоматизированных электроприводов и систем управления.
1.ТЕХНИЧЕСКАЯ ХАРАКТЕРИСТИКА
| Средняя мощность, кВА | 145 |
| Среднеквадратичная мощность, кВА | 193,6 |
| Заявленная мощность, кВА | 396 |
| Мощность Печи ЭШП-0,25, кВА | 630 |
| Мощность ФПП У-560, кВА | 750 |
| Количество печей ЭШП-0,25 | 2 |
| Количество ФПП | 1 |
| Комплектная двухтрансформаторная подстанция КТП-1000 | 1 |
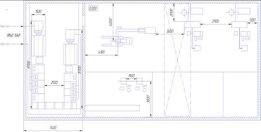
2.ПЛАН УЧАСТКА ЦЕХА
Рисунок.1.- План участка цеха
3.ИСХОДНЫЕ ДАННЫЕ:
ГЭС:
Генератор: СВ395/250-12, U=10,5кВ.
Трансформатор: ТДН-80000/110, 115/10,5.
ТЭЦ:
Генератор: Т-12-2УЗ,10,5кВ.
Трансформатор: ТД-16000/35, 38,5/10,5.
Реактор: РБ10-1600-0,25УЗ.
ГПП:
Трансформатор (Т-3): ТДТН-25000/110, 115/38,5/11.
Линии:
ВЛ-1;ВЛ-2 – 20км.
ВЛ-3;ВЛ-4 – 10км.
К-1,К-2 - 3км.
Напряжение на понизительной подстанции: 11кВ.
Рисунок.2.- Схема питания участка
4.ОПИСАНИЕ ТЕХНОЛОГИЧЕСКОГО ПРОЦЕССА
Схему электрошлакового процесса можно представить следующим образом. В водоохлаждаемой трубе (кристаллизатор), закрытой снизу водоохлаждаемым поддоном, находится ванна жидкого шлака, в которую опускаются расходуемые заготовки – электроды. Электроды и поддон подключается к источнику питания.
Ванна жидкого металла является проводником с определенной проводимостью и при протекании через неё тока играет роль нагревателя – преобразователя электрической энергии в тепловую. Выделяемое тепло поддерживает высокую температуру шлака и оплавляет расходуемые заготовки (электроды). Расплавленный электрод каплями стекает вниз, образуя в кристаллизаторе ванну жидкого металла, которая постепенно затвердевая формирует слиток. Для компенсации сплавления электродов, последние непрерывно подаются вниз. Электрошлаковые печи обычно питаются от источников переменного синусоидального тока промышленной частоты.
При контакте стенки кристаллизатора с расплавленным шлаком на ней образуется тонкая корочка застывшего шлака – шлаковый гарнисаж, который при наплавлении слитка препятствует прямому контакту жидкого и твёрдого металла с поверхностью кристаллизатора. Наличие шлакового гарнисажа оказывает глубокое влияние на распределение тепла в печи и металлургические процессы.
Характер застывания слитка при ЭШП коренным образом отличается от такового в обычной изложнице, так как металл поступает в кристаллизатор непрерывно с небольшими массовыми скоростями одновременно с его застыванием.
Поэтому в кристаллизаторе ванна жидкого металла ограниченного объёма. Причём за счёт изменения режима ЭШП можно обеспечить изменение скоростей наплавления и кристаллизации металла. Это позволяет получать неизменную во времени плавки конфигурацию жидкой металлической ванны, что создаёт условия для получения равномерной структуры слитка по её высоте.
Электрошлаковый переплав по своему принципу бездуговой процесс. Это связано с тем, что при горении в шлаке дуги происходит ухудшение качества металла за счёт его насыщения газами – продуктами разложения составляющих шлака. В связи с этим дуговой режим при ЭШП считается аварийным. Время плавки на ЭШП разделяются на основной и вспомогательный периоды. Основной период плавки, в процессе которого происходит наплавление слитка, включает в себя переплав металла и вывод усадочной. Последний служит для улучшения качества металла в верхней части слитка, что позволяет снизить его обрезь и повысить выход годного металла. Для осуществления вывода раковины вводимая в ванну мощность в конце плавки постепенно снижается. Длительность периода переплава металла зависит от химсостава переплавляемого металла, развеса слитка и химсостава шлака.
Во вспомогательный период осуществляется подготовка печи к плавке и наведения в кристаллизаторе ванны жидкого шлака. В этот период производятся следующие подготовительные операции:
1. Остывание слитка в кристаллизаторе после предыдущей плавки;
-
Выгрузка слитка и застывшего шлака из кристаллизатора и удаление их с печи;
-
Снятие с печи огарков электродов и установка новых электродов в электродержатель;
-
Чистка кристаллизатора и поддона;
-
Окончательная сборка печи (установка кристаллизатора, шайбы-затравки, центровка электродов и т.д.)
Длительность подготовительных операций на печах малой и средней ёмкости колеблется в пределах 1,2-4,5ч. После их окончания приступают к периоду наведения шлаковой ванны в кристаллизаторе. На печах ЭШП применяются твёрдый и жидкий старты. При твёрдом старте шлак расплавляется непосредственно в кристаллизаторе печи расходуемым электродом. При жидком старте шлак предварительно расплавляют во флюсоплавильной печи, затем заливают в кристаллизатор либо сверху, либо сифонным способом.
Шлаки для ЭШП должны соответствовать определённым требованиям. Они должны обладать:
-
Высокой рафинирующей способностью, позволяющей добиваться максимального очищения металла от примесей;
-
Способностью формировать гладкую поверхность слитка, не требующей дополнительной механической обработки;
-
Достаточно высоким удельным сопротивлением, что обеспечивает эффективность выполнения шлаковой ванны роли приёмника и преобразователя электроэнергии.
Применение того или иного шлака определяется конкретными технологическими условиями переплава металла заданного химсостава. Так при ЭШП сталей и сплавов, содержащих легкоокисляющиеся элементы, обычно применяется безкислородный шлак АНФ-1П; при необходимости максимального очищения металла от серы используется шлак АНФ-6 и т.д. При переплаве в глухие кристаллизаторы наиболее распространённым является шлак АНФ-6; При переплаве с вытяжкой слитка или перемещением кристаллизатора обычно используется шлак типа АНФ-28 или АНФ-29.
В процессе ЭШП происходит значительное улучшение качества металла вследствие:
1. Исключения взаимодействия жидкого металла с атмосферой и футеровкой при его выплавке и формирование слитка;
-
Обработки жидкого металла высокоактивным расплавленным шлаком;
-
Замедленной и направленной кристаллизацией металла в водо-охлаждаемом кристаллизаторе.
5.ЭЛЕКТРОШЛАКОВЫЕ КАК ПОТРЕБИТЕЛИ ЭЛЕКТРОЭНЕРГИИ
Электрошлаковые печи являются одними из основных агрегатов специальной электрометаллургии, позволяющими получать слитки и отливки высокого качества. Они широко применяются на металлургических и машиностроительных заводах. Масса выплавляемых слитков и отливок лежит в пределах от нескольких десятков килограммов до сотен тонн. Для электрошлаковых процессов существует широкая номенклатура печей различных конструкций с установленной мощностью от 630 до 15000 кВ·А. Электрошлаковые печи разделяются на металлургические печи электрошлакового переплава (ЭШП), в которых получают гладкие слитки различных фор сечения, и на печи электрошлакового литья (ЭШЛ), предназначенные для получения отливок сложной формы.
Основным элементом электрошлаковой печи является ванна расплавленного шлака, который является электролитом и имеет достаточно высокую ионную проводимость. Электрошлаковый процесс в принципе бездуговой, что обеспечивается подбором питающего ванну напряжения (35-55)В, положением электрода в шлаке и уровнем вводимой мощности. Поэтому электрошлаковая печь как приёмник электроэнергии представляет собой печь сопротивления косвенного действия с жидким нагревателем.
Обычно электрошлаковые печи питаются переменным током промышленной частоты. Это связано с тем, что на переменном токе интенсивно развито рафинирование металла шлаком.
Для улучшения электрических характеристик крупных печей, а в последнее время и печей средней ёмкости иногда используется переменный ток пониженной частоты (2-10) Гц. Обычно питание таких установок производится реверсивным постоянным током с помощью двух преобразователей типа ТВ-9. Вообще возможно питание не только симметричным, но и несимметричным током, в результате чего возникает управляемая постоянная составляющая тока, которая может быть использована для электрохимической оптимизации металлургических процессов.
Однако применение многоамперных тиристорных преобразователей усложняет и удорожает установку, снижает надёжность её работы. Поэтому пока наиболее распространённым родом тока является переменный ток промышленной частоты. Питание электрошлаковых печей производятся в зависимости от мощности либо от цеховой сети напряжением 0,4 кВ, либо от высоковольтных печных подстанций напряжением 6-10 кВ через специальные понизительные трансформаторы.
Одной из основных схем питания является схема электрод-поддон. Из-за низких вторичных напряжений в печах протекают значительные вторичные токи, что вызывает необходимость иметь сложные токоподводы со сравнительно низкими электротехническими характеристиками. Особенностью токоподводов печей ЭШП по сравнению с ДСП является большая роль активных и реактивных сопротивлений электрода в общем сопротивлении токоподвода. Значительная реактивность токоподвода определяет низкие значения коэффициента мощности, который уменьшается с увеличением развеса слитка. В результате этого выплавка слитков массой более 30-40 т. по схеме электрод-поддон на переменном токе промышленной частоты применяется редко.
Для снижения реактивности многоэлектродных печей ЭШП широко используются m/2 бифилярные схемы питания. Электрошлаковые печи с числом электродов, кратным двум, могут питаться по двух фазной схеме, кратным шести, по шестифазной. Во всех этих схемах осуществляется попарное бифилирование электродов и ветвей короткой сети, что позволяет значительно снизить реактивное сопротивление токоподводов.
Для компенсации реактивной мощности и повышения cosφ до требуемой системой значения на питающих шинах распредустройств устанавливаются батареи статических конденсаторов.
Электрошлаковые печи как электротехнологические агрегаты имеют циклический характер работы. Цикл плавки разбивается на «горячее» время, в течение которого происходит переплав электрода, и «холодное», которое затрачивается на остывание слитка, наведение шлаковой ванны и подготовительные операции. Коэффициент включения зависит от развеса слитка и технологических особенностей плавки.
Печи малой и средней ёмкости обычно устанавливаются группами по 5-10 и более печей. За счёт сдвига циклов их работы коэффициент включения электрошлаковой нагрузки цеха приближается к единице.
Характеристики
Тип файла документ
Документы такого типа открываются такими программами, как Microsoft Office Word на компьютерах Windows, Apple Pages на компьютерах Mac, Open Office - бесплатная альтернатива на различных платформах, в том числе Linux. Наиболее простым и современным решением будут Google документы, так как открываются онлайн без скачивания прямо в браузере на любой платформе. Существуют российские качественные аналоги, например от Яндекса.
Будьте внимательны на мобильных устройствах, так как там используются упрощённый функционал даже в официальном приложении от Microsoft, поэтому для просмотра скачивайте PDF-версию. А если нужно редактировать файл, то используйте оригинальный файл.
Файлы такого типа обычно разбиты на страницы, а текст может быть форматированным (жирный, курсив, выбор шрифта, таблицы и т.п.), а также в него можно добавлять изображения. Формат идеально подходит для рефератов, докладов и РПЗ курсовых проектов, которые необходимо распечатать. Кстати перед печатью также сохраняйте файл в PDF, так как принтер может начудить со шрифтами.















