144976 (620844), страница 3
Текст из файла (страница 3)
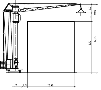
Вертикальная привязка крана КБ-100АС
Высота крана:
Hкр=Hзд+Hзап+Нзл+Нстр=8,55+1+0,22+3=196+2.3+
=17.51
Технические характеристики:
Грузоподъемность - 5 тон.
Вылет стрелы – 20 м.
Высота подъёма – 33 м.
Скорость – 10-2 м/с
Подъём груза – 0,5
Посадка груза - 0,1
Скорость перемещения – 1,8
Установленная мощность электродвигателя 38,2 кВт
Подъёмник ТП-2 (С-447)
Подъёмник предназначен для подъема строительных материалов при строительстве зданий до 6 и 9 этажей. Подъёмник стационарный, при работе мачта подъёмника крепится к стене специальными креплениями.
Модель ТП-2 (С-447)
Грузоподъемность – 0,5т
Высота подъёма до 17м
Скорость подъёма груза 0,38 м/с
Мощность электродвигателя 3 кВт
Габарит груза платформы:
Длина – 1,5м
Ширина – 1м
Масса – 1400кг
4. Разработка технологической карты
4.1 Область применения карты
Технологическая карта разработана на устройство стропильной крыши трёх этажного дома с размерами в осях 14,4м и 48,9м. Площадью скатов 692,3м²
4.2 Технико-экономические показатели
Трудоемкость на весь объём работ:
Нормативная: 361,5чел-час.
Принятая: 320чел-час.
Выработка на одного рабочего в смену:
Нормативная: 19,56м²
Принятая: 17,31м²
Продолжительность выполнения работ.
Объём работ 692,3м²
4.3 Технология выполнения строительного процесса
До начала монтажа стропильной системы должны быть выполнены все работы по монтажу чердачного перекрытия. Работу по установке стропил начинают с укладки по внутренним стенам лежней, а по наружным мауэрлатов. Мауэрлаты предварительно антисептируют путём глубокой пропиткой или обмазки пастойантисептированные мауэрлаты укладывают с прокладкой по ним двух слоёв толя со стороны стены.
На лежни устраивают стойки через 6 м, временно раскрепляют схватками, ставят подкосы и укладывают прогон. Затем на прогоне и мауэрлатах производят разбивку положения стропильных ног. Врубка стропильных ног в мауэрлат производится врубкой в зуб. У конька стропильные ноги попарно соединяют в пол дерева. Для придания пространственной жёсткости стропильных ног к ним крепят на гвоздях ригели, скрепляя каждую пару стропильных ног с обеих сторон. Далее после установки стропильных ног по ним устраивают обрешётку. Обрешётка выполняется из бруска сечением 50мм × 50 мм. Бруски обрешётки укладываются вдоль конька через 510мм.
На карнизных свесах выполняется сплошная дощатая обрешётка. Устройство обрешётки начинают сразу же вслед за установкой первых четырех – пяти стропильных ног.
3.4 Подсчёт объёмов работ
Sкр=2Sтр+2Sтрап
Sтр=14×7=49 м²
2Sтр=Sтр+Sтр=49+49=98 м²
Sтрап= H(a+b)/2=7(48,9×36)/2=297,15 м²
2Sтрап=297,15*2=594,3 м²
Sкр=2Sтр+2Sтрап=98+594,3=692,3 м²
4.5 Калькуляция трудовых и денежных затрат
| Обоснование | Состав работ | Ед. изм. | Объём | Норма времени | Расценка на ед. изм. | Затраты труда | Стоимость затрат труда на весь объём работ. |
| § 6-1-8 | Укладка на место | 100м² | 6,923 | 1,5 | 0-78,1 | 10,4 | 5,4 |
| § Е 6-1-8 | Установка на место стропил | 100м² | 6,923 | 35 | 18-23 | 242,3 | 126,2 |
| § Е 6-1-8 | Укладка выверка и правка обрешетки | 100м² | 6,923 | 14,5 | 7-55,0 | 99,5 | 52,3 |
| § Е 6-1-9 | Сборка всего каркаса слуховых окон | 100м² | 6,923 | 1,35 | 0-70,3 | 9,3 | 4,9 |
| Итого | 361,5 | 188,7 | |||||
4.6 Материально-технические ресурсы
| Наименование | Ед. изм. | Кол-во |
| Материалы, полуфабрикаты, изделия.
| м³ м³ кг м³ кг м² кг | 0,7 6 13 21 30 9 20 |
| Оборудование инструменты и приспособления.
| шт шт шт шт шт шт шт шт шт шт шт шт | 2 2 1 2 3 3 2 1 1 7,5 1 1 |
4.8 Организация труда рабочих
Состав рабочих по профессии и квалификации (5 человек) звено состоит из плотников:
1разр (подсобный рабочий) – 1 чел.
2разр – 2 чел.
3разр – 1 чел.
4разр – 1 чел.
Распределение работы между исполнителями:
Сначала два плотника (4разр-1 и 2разр-1) производят заготовку и укладку мауэрлатов. В это время оставшиеся рабочие (1разр-1, 2разр-1 и 3разр-1) начинают выполнять работы по установке стропил, закончив укладку мауэрлатов, рабочие (4разр-1 и 2разр-1) присоединяются к рабочим (1разр-1, 2разр-1 и 3разр-1), делают врубку стропильных ног, установку стоек, укладку прогонов они заканчивают вместе. Затем всё звено плотников приступает к укладке брусков обрешётки, уложив некоторые количество брусков обрешётки, уложив некоторые количество трое рабочих (4разр-1, 2разр-1 и 1разр-1) начинают выполнять работы по устройству слуховых окон, а в это время рабочие (3разр-1 и 2 разр-1) делают работы по устройству обрешётки.
4.9 Контроль качества
Организация и схема операционного контроля качества работ.
| Наименование операции | Контроль качества работ. | ||||||||
| Производителем работ | Мастером | Состав | Способ | Время | |||||
| 1 | 2 | 3 | 4 | 5 | |||||
| Подготовительные работы | − | Должны быть выполнены работы по монтажу чердачного перекрытия, устройства карниза, возведению и монтажу дощатых труб и вентиляционных стояков сверх чердачного перекрытия и крыши. Все элементы стропил (мауэрлаты, подкосы, стропильные ноги) заранее заготовляются по шаблонам и подают на чердачное перекрытие. | Визуально | До начала монтажа | |||||
| Укладка мауэрлатов | − | Мауэрлаты антисептируют путём пропитки и обмазки устройство гидроизоляции со стороны стены (2 слоя толя) | Визуально | Инструментально | |||||
| По внутренней стены укладывают лежни по наружным мауэрлатах | До укладки мауэрлатов | ||||||||
| Устройство стоек | - | На лежень устанавливают стойки, временно закрепив их схватками, устраивают подкосы. Прогоны, подкосы и стойки скрепляют стальными скобами. | Визуально | ||||||
| Устройство стропил | - | Производят разработку на прогоне и мауэрлатах проектного положения стропильных ног, выбирают гнёзда и укладывают в них стропильные ноги. Скрепление стропильной системы производится скобами и болтами. | Инструментально | ||||||
| Проверка правильности проектного положения всех установленных элементов | Инструментально | ||||||||
| 1 | 2 | 3 | 4 | 5 | |||||
| Устройство слуховых окон | - | После прибивки брусков делают в обрешётке вырезы для слуховых окон и монтируют их. | |||||||
| Устройство обрешётки | - | Устройство обрешётки начинают после установки четырёх стропильных ног. Бруски прибивают от карниза к коньку | |||||||
Отклонение в размерах несущих конструкций.
| Отклонения | Величина, допускаемая отклонением мм. |
| По длине конструкции По высоте конструкций и опор В расстояниях между осями конструкции Конструкций по вертикали Отдельных сжатых элементов конструкций от проектного положения | ± 20 ± 10 ± 10 ± 0,2 % 1/300 длины элемента. |
| Смещение центра опорных узлов от центра опорных площадок | ± 10 |
| В глубине врубок В размерах поперечных сечений | ± 2,5 ± 2 |
| В расстояниях между центрами рабочих болтов и нагелей в соединениях: Для входных отверстий Для входных отверстий поперёк волокон | ± 2 2% толщины патока, но не более 5 мм |
| В расстояниях между центрами гвоздей со стороны забивки в гвоздевых соединениях | ± 2 |
4.10 Охрана труда и техника безопасности при выполнении строительного процесса
При монтаже деревянных элементов и конструкций соблюдаются основные меры техники безопасности. Перед началом работ следует проверить исправность и прочность насадки деревянных рукояток инструментов. Для прохода рабочих по перекрытиям без пола надо укладывать по балкам временные настил шириной не менее 70 см.
















