144785 (620735)
Текст из файла
1. Исходные данные
1.1 Оценка инженерно-геологических условий площадки строительства
Таблица 1. Сводная ведомость физико-механических свойств грунтов
| Физико - механические характеристики | Формула расчета | Слои грунта | ||||
| №1 | №2 | №3 | ||||
| 1 | 2 | 3 | 4 | 5 | ||
| Мощность слоя h, м | 4.7 | 3.6 | - | |||
| Удельный вес грунта γ при естественной влажности, кН/м3 | γ =ρg | 20 | 19.9 | 20.6 | ||
| Удельный вес твердых частиц γs, кН/м3 | γs =ρsg | 26.8 | 26.4 | 27.4 | ||
| Естественная влажность ω, дол.ед. | 0.28 | 0.21 | 0.19 | |||
| Удельный вес сухого грунта γd, кН/м3 | γd = γ/(1+ ω) | 15.63 | 16.45 | 17.3 | ||
| Коэффициент пористости е, д.е. | е= γs/ γd -1 | 0.75 | 0.69 | 0.58 | ||
| Удельный вес грунта с учетом взвешивающего действия воды γsв, кН/м3 | γsв =( γs – γω)/ (1+е) | 9.6 | 10.25 | 11.01 | ||
| Степень влажности грунта Sr, д.е. | Sr =( γs* ω)/ (е* γω) | 1.00 | 0.92 | 0.89 | ||
| Влажность на границе текучести ωL, д.е. | 0.29 | - | 0.36 | |||
| Влажность на границе пластичности ω р, д.е. | 0.13 | - | 0.17 | |||
| Число пластичности грунта I р, д.е. | Ip=ωL-ωp | 0.16 | - | 0.19 | ||
| Показатель текучести I L, д.е. | I L=( ω-ωp)/I р | 0.94 | - | 0.1 | ||
| Коэффициент сжимаемости грунтов mo, Мпа1 | - | - | - | |||
| Коэффициент относительной сжимаемости грунта mv, МПа1 | mv=m0/(1+e) | - | - | - | ||
| Коэффициент бокового расширения μ | - | - | - | |||
| Удельное сцепление с, кПа | 5 | - | 80 | |||
| Угол внутреннего трения φ, град. | 19° | 39° | 20° | |||
| Модуль деформации грунта Е, МПа | E=β/mv, β=(1-2μ²)/(1-µ) | 10 | 42 | 28 | ||
| Условное расчетное сопротивление Ro, кПа | - | 343 | 318 | |||
Примечание - Удельный вес воды - γω =10 кН/м3; ускорение свободного падения g=10 м/с2.
1.2 Заключение по данным геологического разреза площадки строительства и выбор возможных вариантов фундаментов
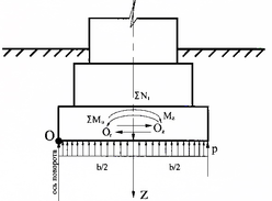
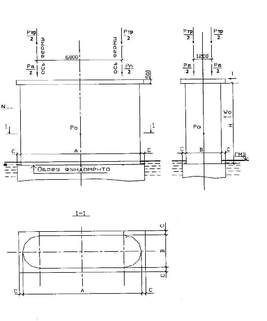
I слой: суглинок – толщина слоя 4.7м; по степени влажности суглинок относится к насыщенные водой (0.5 II слой: песок средней крупности – толщина слоя 3.6м; по степени влажности относится к насыщенной водой; по коэффициенту пористости относится к средней плотности; E=42 МПа; условное расчетное сопротивление R0=343 кПа. III слой :глина - по числу пластичности Ip=0.19 – глина; по показателю текучести находится в полутвердом состоянии (0 Заключение по данным геологического разреза: природный рельеф площадки спокойный с горизонтальным залеганием пластов грунта. II и III слои грунтов могут служить основанием для фундамента. Выбор возможных вариантов фундаментов: в качестве возможных вариантов фундамента принимаем: - фундамент мелкого заложения; - свайный фундамент на забивных призматических сваях. 1.3 Сбор нагрузок, действующих на фундамент В соответствии с [2, п. 2.1*] установлено 18 видов постоянных и временных нагрузок, которые могут действовать на конструкции мостов и, следовательно, передаваться на опору. На рисунке 1. показаны следующие основные нагрузки: вертикальные нагрузки - масса пролетных строений Рп, являющаяся суммарной равнодействующей сил Рп/2, соответствующих давлению от примыкающих к данной опоре двух пролетных строений; сила воздействия на опору Ртр от временной подвижной вертикальной нагрузки, являющаяся равнодействующей сил Ртр/2, полученных от загрузки примыкающих к опоре пролетов; масса опоры Ро - собственная масса надфундаментной части опоры. горизонтальная нагрузка - горизонтальная составляющая Т силы воздействия на опору Ртр от временной подвижной вертикальной нагрузки. Рисунок 1. – Опора моста с действующими нагрузками Таблица 2. Нагрузки, действующие на фундамент Наименование нагрузки Условное обозначение Ед. изм. Выражение для определения Кол-во Масса пролетных строений Рп кН 1350 Сила воздействия от временной вертикальной подвижной нагрузки Ртр кН 6075 Горизонтальная сила Т кН 750 Вес опоры моста Ро кН 373.5 2. Проектирование фундамента мелкого заложения на естественном основании 2.1 Определение глубины заложения подошвы фундамента. выбор отметки обреза фундамента 2.1.1 Определение глубины заложения подошвы фундамента Нормативная глубина сезонного промерзания определяется по формуле: dfn=do√Mt, где М, — коэффициент, численно равный сумме абсолютных значений среднемесячных отрицательных температур за зиму в данном климатическом районе; do - глубина промерзания (см), зависящая от вида грунта, принимается равной: песков средней крупности-23см. dfn=do√Mt=23*√42=149.06см=1.5м Расчетная глубина сезонного промерзания грунта определяется по формуле: df=khdfn , где kh, - коэффициент, учитывающий влияние теплового режима сооружения и принимаемый для отапливаемых зданий в зависимости от конструкций полов и температуры внутри помещений, а для наружных и внутренних фундаментов, неотапливаемых зданий ,kh = 1.1. df=khdfn=1.1*149.06=164.56см=1.6м 2.1.2 Выбор отметки обреза фундамента Обрез фундамента принимаем на 0.5м ниже горизонта самых низких вод 2.2 Определение площади подошвы фундамента и расчетного сопротивления основания Размеры обреза фундамента в плане принимаю больше размеров надфундаментной части опоры на величину с=0.2м в каждую сторону для компенсации возможных отклонений положения и размеров фундамента при разбивке и производстве работ (рис.1). Минимальная площадь подошвы фундамента рассчитывается по формуле Amin=(A + 2c)-(B + 2c), где А и В - ширина и длина надфундаментной части опоры в плоскости обреза фундамента, принимается по заданию. Amin=(10.4 + 2∙0.15)(1.5 + 2∙0.15) = 19.26м² Далее по формуле (1) приложения 24 [2] определяется расчётное сопротивление грунта основания (МПа) при ширине подошвы фундамента b= (В+2с) R = 1.7{R0[1 + k1(b-2)] + k2γ(d -3)}, где R0 = 343 кПа— условное сопротивление грунта, МПа; b = 2м — ширина подошвы фундамента, м; d = 5.7м — глубина заложения фундамента, принимается от поверхности грунта до подошвы фундамента; γ - осредненное по слоям расчётное значение удельного веса грунта, расположенного выше подошвы фундамента, вычисленное без учёта взвешивающего действия воды, МН/м³, по формуле: γ = ∑ γi hi / ∑hi , где γi - удельный вес отдельных слоев грунта, лежащих выше подошвы фундамента, кН/м3; hi — толщина отдельных слоев грунта выше подошвы фундамента, м; k1 и k2 -коэффициенты, принимаемые по таблице 4, прил. 24 [2]. k1= 0.1 мֿ¹ k2 = 3 R = 1.7{343[1 + 0.1(2-2)] + 3∙19.9(5.7 -3)}=274.02 кПа 2.3 Проверка принятых размеров фундамента Расчёт преследует цель определить средние, максимальные и минимальные давления под подошвой фундамента и сравнить их с расчётным сопротивлением грунта: p=N1/A ≤ γcR/γn , pmax=N1/A + M1 /W ≤ γcR/γn , pmin=N1/A - M1 /W ≥0 , где p, pmax и pmin — соответственно среднее, максимальное и минимальное давления подошвы фундамента на основание, кПа; N1 - расчётная вертикальная нагрузка на основание с учётом гидростатического давления воды, если оно имеет место, кН; М1 - расчётный момент относительно оси, проходящей через центр тяжести подошвы фундамента, кН∙м; A — площадь подошвы, м2; W- момент сопротивления по подошве фундамента, м3; W= bl²/6 где l- длина подошвы фундамента, м; b - ширина подошвы фундамента, м; R -расчётное сопротивление грунта под подошвой фундамента, кПа; γс=1,2 - коэффициент надёжности по назначению сооружения; γп=1,4 - коэффициент условий работы. Определяем нормальную N1 и моментную нагрузки М1 , действующие на основание N1 = 1,2(Р0+Рп+Рф+ Рг) + 1,13∙Ртр, М1 = 1,2Т(Н+hФ), где Рф и Рг — соответственно нагрузки от веса фундамента и грунта на его уступах (с учётом взвешивающего действия воды, при УПВ выше подошвы фундамента), кН; Н — высота опоры моста, м; hф — высота конструкции фундамента, м. Расчётные величины Ро, Рп, Ртр, Т даны в таблице 2. Путем последовательных подборов размеров фундамента и глубины заложения подошвы, принимаем: d = 5.7 м – глубина заложения фундамента hф =6.2 м – высота фундамента a=11 м – длина подошвы фундамента b= 2 м – ширина фундамента A = a∙b = 11∙2= 22 м² - площадь подошвы фундамента Рф+ Рг +Рв=5.7·20·22+1.1·10·22 = 2750 кН N1 = 1.2(373.5кН + 1350кН + 2750кН) + 1.13 ∙ 6075кН = 12232.95 кН М1 = 1.2 ∙ 750кН(10.5м + 6.8м) =15570 кН∙м W = 4 ∙ 13²/6 = 112.6 м³ Определяем давления под подошвой фундамента: p=12232.95кН /22м² = 556.04 кПа≤ γcR/γn=1.2∙274.02/1.4 =234.9 кПа pmax=12232.95кН/22м² + 15570кН∙м/20.5м³= 1315.5кПа≤ γcR/γn=234.9 кПа Выбранные глубина заложения подошвы и размеры фундамента не удовлетворяют условию по первой группе предельных состояний. Увеличиваем размеры подошвы фундамента: d = 5.7 м – глубина заложения фундамента hф =6.2 м – высота фундамента a=13 м – длина подошвы фундамента b= 4 м – ширина фундамента A = a∙b = 13∙4= 52 м² - площадь подошвы фундамента R = 1.7{343[1 + 0.1(4-2)] + 3∙19.9(5.7 -3)}=973.74 кПа Рф+ Рг +Рв=5.7·20·52+1.1·10·52 = 6500 кН N1 = 1.2(373.5кН + 6500кН + 2750кН) + 1.13 ∙ 6075кН = 16732.95 кН М1 = 1.2 ∙ 750кН(10.5м + 6.8м) =15570 кН∙м W = 4 ∙ 13²/6 = 112.6 м³ Определяем давления под подошвой фундамента: p=16732.95кН /52м² = 321.8 кПа≤ γcR/γn=1.2∙973.74/1.4 =834.6 кПа pmax=16732.95кН/52м² + 15570кН∙м/112.7м³= 1315.5кПа≤ γcR/γn=834.6 кПа Слишком большой запас прочности уменьшим размеры подошвы фундамента принимаем: d = 5.7 м – глубина заложения фундамента hф =6.2 м – высота фундамента a=12.7 м – длина подошвы фундамента b= 3.7 м – ширина фундамента A = a∙b = 12∙3.7= 44.4 м² - площадь подошвы фундамента Рф+ Рг +Рв=5.7·20·44.4+1.1·10·44.4 = 5550 кН N1 = 1.2(373.5кН + 1350кН + 5550кН) + 1.13 ∙ 6075кН =15592.95 кН М1 = 1.2 ∙ 750кН(10.5м + 6.8м) =15570 кН∙м W = 3.7 ∙ 12.7²/6 = 99.5 м³ Определяем давления под подошвой фундамента: R = 1.7{343[1 + 0.1(3.7-2)] + 3∙19.9(5.7 -3)}=956.25 кПа p=15592.95кН /44.4м² =351.2кПа ≤ γcR/γn=1.2∙956.25/1.4=819.6кПа pmax=15592.95кН/44.4м² + 15570кН∙м/99.5м³= 507.7кПа≤ γcR/γn=819.6 кПа pmin=15592.95кН/44.4м ² - 15570кН∙м/99.5м³= 194.7кПа >0 Выбранные глубина заложения подошвы и размеры фундамента удовлетворяют условию по первой группе предельных состояний. Принимаем размеры поперечного сечения подошвы фундамента: d = 5.7 м – глубина заложения фундамента hф =6.2 м – высота фундамента a=12.7 м – длина подошвы фундамента b= 3.7 м – ширина фундамента 2.4 Расчет основания фундамента по деформациям Различные по величине осадки соседних опор не должны вызывать появления в продольном профиле дополнительных углов перелома, превышающих для автодорожных мостов 2 ‰ [2, п. 1.47]. Для расчёта осадок основания фундаментов по приложению 2 [3] рекомендует метод послойного суммирования: величина осадки фундамента определяется по формуле S = β∑σzpi ∙hi/Ei где β=0,8 - безразмерный коэффициент; σzpi - среднее вертикальное (дополнительное) напряжение в i-м слое грунта; hi и Ei - соответственно мощность и модуль деформации i-го слоя грунта; п - число слоев, на которое разбита сжимаемая толщина основания Нс. Сжимаемая толщина основания Нс определяется как расстояние от подошвы фундамента до нижней границы сжимаемой толщи; нижняя граница обозначена символами B.C. При этом B.C. находится на той глубине под подошвой фундамента, где выполняется условие σzpi = 0,2σzgi. Вертикальное напряжение от собственного веса грунта на уровне подошвы фундамента, определяется по формуле: σzgо= γohi где, γo -осредненный удельный вес грунта и воды, залегающих выше подошвы фундамента; hi -глубина заложения подошвы фундамента, м. σzgо=1.6∙10+4.7·20+1·19.9=129.9 кПа Дополнительное вертикальное напряжение в грунте в уровне подошвы фундамента определяют по формуле: σzро = р0 - σzgо Среднее давление на грунт от нормативных постоянных нагрузок: р0 = Nп /A=351.2кН σzро = 351.2-129.9=221.3 кПа Дополнительные вертикальные напряжения в грунте вычисляются по формуле: σzрi = αi ∙ σzр0 где α - коэффициент, принимаемый по таблице 1 приложения 2 [3] в зависимости от соотношения сторон прямоугольного фундамента η = l/ b = 2,85 и относительной глубины, равной ξ = 2z/b, где z - расстояние до границы элементарного слоя от подошвы фундамента. Условие σzрi =0,2∙σzgi выполняется при z = 8.2 м, т.е. Таблица 3 – Расчет осадка основания фундамента Расстояние от подошвы Фундамента до подошвы i-того слоя Zi Мощность i слоя грунта hi, м Удельный вес грунта γ, кН/м³ Коэффициент ζ=2z/b (табл.1,прил.2,[2]) Коэффициент α (табл.1 прил.2 [2]) Дополнительное давление σzpi, кПа Природное давление σzgi, кПа 0,2σzgi, кПа Модуль деформации Е, МПа Осадка слоя Si, см 1 2 3 4 5 6 7 8 9 10 0 0 19.9 0 1 221.3 129.9 25.98 42 0 0.7 0.7 19.9 0.38 0.96 211.8 143.83 28.8 42 0.28 1.4 0.7 19.9 0.76 0.79 175.5 157.76 31.5 42 0.23 2.1 0.7 19.9 1.1 0.78 172.9 171.69 34.3 42 0.23 2.6 0.5 19.9 1.4 0.69 152.5 181.64 36.3 42 0.145 3.3 0.7 20.6 1.8 0.52 115.2 196.1 39.2 28 0.23 4.0 0.7 20.6 2.2 0.5 108.3 210.5 42.1 28 0.22 4.7 0.7 20.6 2.5 0.43 95.7 224.9 44.98 28 0.19 5.4 0.7 20.6 2.92 0.37 81.9 239.32 47.86 28 0.16 6.1 0.7 20.6 3.3 0.32 70.5 253.7 50.7 28 0.14 6.8 0.7 20.6 3.7 0.28 61.0 268.1 53.6 28 0.12 7.5 0.7 20.6 4.1 0.24 53.3 282.5 56.5 28 0.1 8.2 0.7 20.6 4.4 0.22 48.3 296.9 59.4 28 0.097 ∑ 2.142 Осадка фундамента S = 2.142см. Максимально допустимый угол перелома при осадке опор не более 2‰, величина пролета 48 м =4800 см. 2.142/4800 = 0,00045 = 0.45‰ < 2‰ Величина осадки фундамента не превышает нормативную осадку по СНиП 2.5 Крен фундамента Крен фундамента i при действии внецентренной нагрузки определяется по приложению 2 [3] i = (1-ν²)∙ke∙MII /[Ekm(a/2)³] где Е - модуль деформации, кПа, v - коэффициент Пуассона грунта основания; ке- безразмерный коэффициент, принимаемый по таблице 5 приложения 2 [2]; MII - момент, действующий вдоль соответствующей стороны прямоугольной подошвы фундамента, кН∙м; а - сторона подошвы прямоугольного фундамента, в направлении которой действует момент MII; кт - безразмерный коэффициент. b<10м - кт =1; (см. таблица 3, приложения 2 [3]). Коэффициент Пуассона v принимается равным для грунтов: песков и супесей - 0,30. Должно выполнятся условие: i<iu, где iu = 0,5 √lp, предельно допустимый крен подошвы фундамента; lp - длина меньшего, примыкающего к опоре, пролёта моста, м. MII = 15570 кН∙м a = 3,7 м E = 20 МПа i=(1 – 0,3²)∙0,2∙15,570/[3,7/2]³·42] = 0,0025м iu = 0,5√48 = 3,4м Условие i<iu выполняется. Крен фундамента не превышает предельно допустимое значение. 2.6 Проверка положения равнодействующей активных сил Для нескальных оснований фундамента мелкого заложения положение равнодействующей вертикальных нагрузок (по отношению к центру тяжести площади подошвы фундамента), характеризуемое относительным эксцентриситетом ео/r, должно быть ограничено для постоянных и временных нагрузок значением – 1,0, согласно п.7.7 и табл. 107 [2]. Эксцентриситет определяется по выражению eo = M/N, а радиус ядра подошвы фундамента – r = W/A, где М = 15570 кН∙м - момент сил в площади подошвы фундамента, действующий относительно главной центральной оси подошвы фундамента; N =15592,95 кН - равнодействующая вертикальных сил; W =88,8 м3 — момент сопротивления площади фундамента; А =44,4 м² - площадь подошвы фундамента. eo = 15570/15592,95= 0,999 м r = 99.5/ 44,4= 2.2м eo/r = 0,4995< 1,0 2.7 Расчёт фундамента на устойчивость против опрокидывания Расчёт фундамента на устойчивость должен исключать возможность его опрокидывания во взаимно перпендикулярных направлениях площади подошвы фундамента [2, п. 1.40*]. Расчётная схема устойчивости основания фундамента представлена на рис. 3.2. Устойчивость фундамента против опрокидывания определяется по формуле Mu ≤ m∙Mz /γn где Ми и Mz - соответственно моменты опрокидывающих и удерживающих сил относительно оси возможного поворота (опрокидывания) фундамента, проходящей по крайним точкам О опирания, кН∙м; т= 0,8 - коэффициент условий работы; γn = 1,1 - коэффициент надежности по назначению. Момент удерживающих сил Мz рассчитываем по выражению Mz = ∑ N1∙ b/2 Mz = 15592,95∙3,7/2 =28846,96 кН∙м Mu = 1,2∙Т∙(hф + H) = 15570 кН∙м 15570 кН∙м< 0,8∙28849,96/1,1 = 20979,6 кН∙м Рисунок 3 – Расчетная схема фундамента на устойчивость 2.8 Расчёт фундамента на устойчивость против поверхностного сдвига Устойчивость фундамента против поверхностного сдвига (скольжения) подошвы относительно основания определяется по формуле [2, п. 1.41*]: Qr ≤ m∙Qz /γn где Qr и Qz — соответственно горизонтальные сдвигающие и удерживающие силы в плоскости подошвы фундамента, кН; т = 0,9 - коэффициент условий работы; γn = 1,1 - коэффициент надежности по назначению. Определяем горизонтальные опрокидывающую и удерживающую силы: Qr = Т = 750 кН; Qz = f ∑N1 где f - коэффициент трения подошвы фундамента по грунту, принимаемый: для глин во влажном состоянии— 0,25 [2, п. 7. 14]. Qz = 0,4∙15592,95 = 6237,18 кН 750 кН < 0,9∙6237,18/1,1 = 5103,15 кН 2.9 Проверка несущей способности подстилающего слоя грунта Слои слабого грунта, залегающего ниже подошвы фундамента, отсутствуют. Поэтому проверка несущей способности подстилающего слоя грунта не требуется. 2.10 Конструирование фундамента мелкого заложения Переход от стаканной части фундамента к подошве обеспечивается путём устройства уступов (ступеней). Высота уступа фундамента принимается обычно не более 0,5 hy, при этом отношение ширины уступа к его высоте не превышает tg30° = 0,577 [5, п. 7. 26]. Принимаем Высоту уступа 1 м, а ширину 0,5 hy =0,5м. 3. Проектирование свайного фундамента 3.1 Глубина заложения и размеры ростверка. Длина и поперечное сечение свай На суходоле следует проектировать свайные фундаменты с низким ростверком. Обрез низкого ростверка располагается так же, как обрез фундамента мелкого заложения на естественном основании. Подошва низкого ростверка располагается на глубине 1,3 м. Сваи заделаны в ростверк на длину 0,7 м. 3.1.1 Назначение длины и поперечного сечения свай В курсовой работе принят вариант свайного фундамента на забивных призматических сваях, для таких свай рекомендуется применять забивные железобетонные сваи сплошного квадратного сечения (сеч. 30x30, 35x35, 40x40 см), выбираем сваи сечением 40x40 см (см. приложение Б, таблица Б.1). Длина сваи определяется положением подошвы ростверка и кровли прочного грунта, в который целесообразно заделывать сваю. Длину принимаем равной 7 м. 3.1.2 Определение несущей способности сваи Так как действуют не небольшие горизонтальные нагрузки, и принят низкий ростверк, сваи размещаем вертикально. Расчет свай по первому предельному состоянию заключается в определении несущей способности свай (допускаемая нагрузка на сваю) по грунту, так как свая висячая (Е=20 МПа<50 МПа). Несущая способность висячей забивной и вдавливаемой сваи всех видов определяется по формуле Fd=γc(γcRA + u∑γcfi fi∙hi), где γc; γcR γcfi = 1 — соответственно коэффициенты условий работы сваи в грунте, работы грунта под острием сваи и по боковой поверхности для забивных призматических свай [5, таблица 3]; R - расчетное сопротивление грунта под нижним концом сваи, кПа, принимаемое по таблице [5, таблица 1]; A -площадь опирания сваи на грунт, м2; и - наружный периметр поперечного сечения сваи, м; fi - расчетное сопротивление i-го слоя грунта основания на боковой поверхности сваи, кПа, принимаемое по таблице [5, таблица 2]; hi -толщина i-го слоя грунта, соприкасающегося с боковой поверхностью сваи, м. В формуле суммировать сопротивления грунта следует по всем слоям грунта, пройденным сваей, при этом пласты грунтов под подошвой ростверка следует делить на однородные слои с hi < 2 м. u=1,4 м R = 7356 кПа Fd=1∙[1∙7356∙0,16+1,4∙1∙(7∙1+7 ∙1+7,13∙1,2+7,42∙1,2+7,54 ∙1,2+61∙2 + +0∙0,7)] = 1228,6 кН 3.1.3 Определение расчетной нагрузки на сваю Количество свай в фундаменте определяется по формуле n = ηN1/Fd расч где N1- расчётная нагрузка, передаваемая на свайный фундамент, определяемая в общем случае по формуле N1 = 1,2 (Р0+Рп+Рр+Рг) +1,13Ртр, где Рр — вес ростверка, МН; Fd расч — расчётное сопротивление одиночной сваи, МН; η - коэффициент, учитывающий перегрузку отдельных свай от действующего момента, равный 1,2. N1 = 1,2∙(373,5 + 1350) + 1,13∙6075= 8932,95 кН Расчётное сопротивление одиночной сваи, определяемое как наименьшее из двух Fd расч = min(Fdm, Fd)/γn где γn =1,4 — коэффициент надежности. Fd расч = 1228,6/1,4 = 877,6 кН n = 1,2∙8932,95/877,6 = 12,2 Так как в определении N1 не был учтен вес ростверка и грунта на его уступах, принимаем n = 21 3.1.4 Определение размеров ростверка В курсовой работе принимаем вертикальные сваи, размещая их равномерно в рядовом порядке. Расстояние от края подошвы ростверка до наружного края сваи r = 0,3 м (г > 0,25 м), а между осями свай а = 1,2м (3d <а<(5...6) d - для висячих свай), где d = 0,35 м- размер поперечного сечения сваи. После размещения свай в плане окончательно определяют длину и ширину ростверка. 3.2 Расчет деформации основания свайного фундамента 3.2.1 Проверочный расчет свайного фундамента по несущей способности Обычно проверяют крайнюю, наиболее удаленную сваю, на расчётную нагрузку N со стороны наибольшего сжимающего напряжения. При этом распределение вертикальных нагрузок между сваями фундаментов мостов определяется расчётом их как рамной конструкции. В курсовой работе допускается проверить усилие в свае с учётом действия одной горизонтальной силы Т (в плоскости вдоль моста) по следующей формуле: N/n + M1∙Ymax/∑Yi² ≤ Fd где Mi - расчётный момент в плоскости подошвы ростверка от сил торможения, в которой вместо hф принимается высота hp ростверка; Ymax -расстояние от главной центральной оси подошвы фундамента до оси крайнего ряда свай в направлении действия момента М1 (в плоскости вдоль моста); Yi - расстояние от той же оси до оси каждой сваи; Fd - расчётное сопротивление одиночной сваи; п - число свай; N- полная расчётная вертикальная нагрузка с учётом веса свай, определяемая по формуле N=l,2(Po+Pn+Pp + PCB+Pr)+1,13Pтp, Если условие не удовлетворяется, т.е. N>Fd, то необходимо пересчитать несущую способность сваи, увеличив её длину или поперечное сечение. N = 1,2(373,5+1350+745,4+877,6+240,8)+1,13·6075=11169,5 кН n = 21 M1 = 1,2∙Т∙(H + hp) = 1,2∙750∙(11,4+4,4) = 14220 кН∙м Ymax = 1,75 м ∑Yi² = 42,88 м² 11169,5/21 +14220∙1,75/42,88 = 1112,4 кН < Fd =1228,6 кН 3.2.2 Определение границ условного массивного фундамента Для перехода от свайного фундамента к условному массивному фундаменту определяются границы условного массивного фундамента в соответствии с [2,приложение 25]. Для этого находят средневзвешенное значение угла внутреннего трения грунтов, пройденных сваями φm = ∑φi ∙hi /lp где φi - расчётное значение углов внутреннего трения отдельных пройденных сваями слоев грунта; hi - толщина слоев грунта, пройденных сваями; lp = ∑ hi = 6,3 м - расчётная глубина погружения свай от подошвы ростверка. φm =(19·2+39∙3,6+20∙0,5)/6,3 =30º Построение свайно-грунтового массива УСГМ: Нижняя граница условного массивного фундамента проходит на отметке торцов свай. Из точки пересечения крайней сваи и подошвы ростверка откладываем угол φm /4 до пересечения с нижней границей условного массивного фундамента и поднимаем вертикали до верхнего уровня грунта. Ширина условного массивного фундамента bУГСМ = d + a∙(t-l) + 2tg(φm /4), где d= 0,4 м - поперечный размер сваи, м; а = 1,75 м - расстояние между сваями, м; t - количество рядов свай, шт. Аналогично ширине bусгм определяется и длина lусгм подошвы условного массивного фундамента. t1 = 3; t2 = 7 bусгм =4,16 м ; lусгм =11,16 3.2.3 Проверка напряжений по подошве условного фундамента Проверка напряжений по подошве условного фундамента производится по формулам p =Nc/ lусгм ∙bусгм ≤ γс ∙R / γn p =Nc/ lусгм ∙bусгм + 6 lусгм (3Mc + 2Т∙hp)/ bусгм(к∙ hp4/cb + 31³усгм ) ≤ γс ∙R / γn где Nc -расчётная нормальная нагрузка в основании условного массивного фундамента, кН; определяется как сумма нагрузки на обрезе фундамента N и массы свайно-грунтоеого массива Gусгм; Mc - расчётный момент по подошве ростверка, кН∙м; (за плечо принять высоту ростверка hр);1усгм и bусгм - соответственно длина и ширина условного массивного фундамента, м; R - расчётное сопротивление грунта в уровне подошвы условного массивного фундамента, МПа, при b = bусгм и d = dусгм; hp — глубина заложения условного фундамента, определяемое от подошвы ростверка до нижних торцов свай, м; к — коэффициент пропорциональности, определяющий нарастание с глубиной коэффициента постели грунта, расположенного выше подошвы фундамента; cb — коэффициент постели грунта в уровне подошвы условного фундамента, kH/м3[определяемый по формулам при hp<10 м, Сь = 10 к; T— горизонтальная составляющая внешней нагрузки (тормозная сила), кН . Nc =1,2∙(Po + Pп + Gугсм) + 1,13∙Ртр Gугсм = (4,5∙9,6 + 3,6∙10,25 + 0,5∙11,01)∙4,16∙11,16 = 3974,03 кН Nc =1,2∙(373,5 + 750 + 3974,03) + 1,13∙6075 = 12981,8 кН R = 1.7{R0[1 + k1(bугсм-2)] + k2γ(dугсм -3)}, R = 1.7{318,5[1 + 0,1(4,16-2)] + 3∙11,01∙(8,8 -3)}=984,1 кПа p=12981,8/11,16∙4,16 = 279,6 кПа < 843,5 кПа p= 279,6+ 6∙11,16∙(3∙14220 + 2∙750∙6,3)/[2,9∙(0,09∙6,34 + 3∙11,16³)] = 558,7 кПа<1034,7 кПа 3.2.4 Расчёт деформации основания свайного фундамента Расчёт деформации основания свайного фундамента сводится к определению её для условного массивного фундамента площадью подошвы на естественном основании с использованием расчётной схемы. При этом равнодействующая всех вертикальных сил складывается из вертикальных сил (по заданию), действующих на обрезе фундамента и массы свайно-грунтового массива. Выполняется построение эпюр бытовых и дополнительных давлений, определяется нижняя граница сжимаемой толщи В.С. Рассчитывается осадка условного свайного фундамента. Проверяется условие S Различные по величине осадки соседних опор не должны вызывать появления в продольном профиле дополнительных углов перелома, превышающих для автодорожных и городских мостов 2 ‰ σzgо= γodo = 1,6∙10 + 4,5∙20 + 3,6∙19,9 + 0,5∙20,6 = 187,9 кПа σzро = р - σzgо=558,7 – 187,9= 370,8 кПа σzрi = αi ∙ σzро σzg= σzgо + ∑ γi hi η = lусгм /bусгм = 11,16/4,16 ≈ 2,6 ξ = 2z / b b = 4,16 м Условие σzрi =0,2∙σzgi выполняется при z = 10,8 м Осадка фундамента S = 7,9 см. Максимально допустимый угол перелома при осадке опор не более 2‰, величина пролета 48 м =4800 см. 7,9/4800 = 0,0016 =1,6‰ < 2‰ Величина осадки фундамента не превышает нормативную осадку по СНиП. Таблица 4 – Расчет осадка основания фундамента Расстояние от подошвы Фундамента до подошвы i-того слоя Zi Мощность i слоя грунта hi, м Удельный вес грунта γ, кН/м³ Коэффициент ζ=2z/b (табл.1,прил.2,[2]) Коэффициент α (табл.1 прил.2 [2]) Дополнительное давление σzpi, кПа Природное давление σzgi, кПа 0,2σzgi, кПа Модуль деформации Е, МПа Осадка слоя Si, см 1 2 3 4 5 6 7 8 9 10 0 0 9,6 0 1 370,8 187,9 37,6 10 0 1,2 1,2 9,6 0,6 0,92 341,1 199,4 39,9 10 3,2 2,0 0,8 9,6 0,96 0,82 304,1 207,1 41,4 10 1,9 3,2 1,2 10,25 1,5 0,62 229,9 219,4 43,9 42 0,5 4,4 1,2 10,25 2,1 0,53 196,5 231,7 46,3 42 0,4 5,6 1,2 10,25 2,7 0,37 137,2 244 48,8 42 0,3 6,8 1,2 11,01 3,3 0,31 118,7 257,2 51,4 28 0,4 8,0 1,2 11,01 3,8 0,27 100,1 270,4 54,1 28 0,3 9,2 1,2 11,01 4,4 0,19 71,7 283,6 56,7 28 0,2 10,4 1,2 11,01 5 0,18 66,7 296,8 59,4 28 0,2 11,6 1,2 11,01 5,6 0,13 48,5 310,0 62 28 0,1 ∑ 7,9 4. Технико-экономическое сравнение вариантов фундаментов Технико-экономическое сравнение вариантов фундаментов выполняется на основании показателей стоимости прямых затрат на устройство фундаментов (приложение В, таблица В.1) с заполнением таблицы 5. Для заполнения таблицы 5 необходимо определить состав и объёмы работ при устройстве каждого варианта фундаментов: 1. Земляные работы (объём разработки и обратной засыпки котлована; 2. Монолитное бетонирование (объём песчаной (бетонной) подготовки, площадь опалубки и объем монолитного бетона при устройстве фундаментов мелкого заложения или ростверка); 3. Свайные работы (объём свай фундамента) и др. 4.1 Определение объема котлована Размеры котлована определяются исходя из полученных размеров подошвы и глубины заложения фундамента (ростверка). Размеры дна котлована фундамента промежуточной опоры моста в плане определяются размерами подошвы фундамента и минимальной шириной зазора между фундаментом и стенкой котлована, позволяющей выполнять работы в котловане (принимаем 1 м). Размеры котлована поверху складываются из размеров дна котлована и ширины откосов или конструкций крепления его стенок. Глубина котлована определяется отметкой заложения фундамента и дополнительного устройства (песчаной подушки, пластового дренажа и т.п.). Формула определения объема котлована VK =Hk[ab + (a + c)(b + d)+cd] / 6 где Нк — глубина разработки котлована, м; а и b — длина и ширина котлована понизу, м; c u d - длина и ширина котлована по верху, м. Для ФМЗ: a = 12.7 м; b = 3,7 м VK =3,7·12,7·5,7=267,8 м³ Для свайного фундамента a = 11,4 м; b = 4,4 м VK =11,4·4,4·2,5=125,4 м³ 4.2 Определение объемов фундаментов Объемы фундамента мелкого заложения, ростверка и свай определяются как объёмы геометрических тел по геометрическим размерам конструкций. ФМЗ V= 161,2 м³ Свайный фундамент Объем ростверка V= 100,32 м³ Объем свай V= 26,88 м³ Таблица 5 – Технико-экономическое сравнение вариантов № Обоснование Наименование работ ед. изм сметная стоимость варианты фундаментов ФМЗ свайные фундаменты объем стоимость объем стоимость Раздел 1. Земляные работы Разработка котлована 1 ТЕР1-01-003-8 Разработка грунта в отвал экскаваторами “драглайн” или обратная лопата с ковшом вместимостью 0,65 (0,5-1) м³, группа грунтов 2 1000 м3 2981,23 0,268 798,4 0,125 372,7 Раздел 2. Фундаменты мелкого заложения 2 ТЕР6-01-001-05 Устройство железобетонных фундаментов под опору моста 100 м3 66059,22 1,612 106487 3 ТЕР8-01-003-7 Гидроизоляция боковая обмазочная битумная в 2 слоя по выровненной поверхности бетона 100м2 1817,6 0,863 1568,6 Раздел 3. Фундаменты свайные 4 ТЕР 5-01-002-04 Погружение дизель-молотом копровой установки на базе экскаватора железобетонных свай длиной до 8 м в грунты группы 2 1 м3 сваи 682,04 26,88 18333 5 СЦМ-441-3001-1101 Сваи забивные, ж/б, цельные сплошного квадратного сечения с ненапрягаемой продольной арматурой С7-30 шт 1091,9 24 262056 6 ТЕР06-01-001-05 Устройство железобетонных фундаментов-ростверков 100 м3 66059,22 1,003 66271 Итого: 108854 111182,3 Вывод Проведя технико-экономическое сравнение выбираем фундамент мелкого заложения, так как он является наиболее экономически выгодным. Список использованной литературы ГОСТ 25100-95. Грунты. Классификация. Межгосударственный стандарт -М, 1996. СНиП 2.05.0-84*. Мосты и трубы/Госстрой России. - М.: ГУП ЦПП, 2003.-214 с. СНиП 2.02.01-83*. Основания зданий и-сооружений/Госстрой СССР. - М.:Стройиздат, 2002.- 48 с. СНиП 2.03.01-84 . Бетонные и железобетонные конструкции/Госстрой СССР. - М.: ЦИТП Госстроя СССР, 1985.- 79 с. СНиП 2.02.03-85. Свайные фундаменты/Госстрой СССР. - М.: ЦИТП Госстроя СССР, 1985.-79 с. СП 50-102-2003. Проектирование и устройство свайных фундаментов/Госстрой России. - М.: ФГУП ЦПП, 2003.- 81 с. Руководство по проектированию оснований зданий и сооружений. - М.;Стройиздат, 1978.- 375 с: ил.
n, где S - расчётная осадка, см; Sn — нормативное допускаемое значение осадки [2,п.1.47].
Характеристики
Тип файла документ
Документы такого типа открываются такими программами, как Microsoft Office Word на компьютерах Windows, Apple Pages на компьютерах Mac, Open Office - бесплатная альтернатива на различных платформах, в том числе Linux. Наиболее простым и современным решением будут Google документы, так как открываются онлайн без скачивания прямо в браузере на любой платформе. Существуют российские качественные аналоги, например от Яндекса.
Будьте внимательны на мобильных устройствах, так как там используются упрощённый функционал даже в официальном приложении от Microsoft, поэтому для просмотра скачивайте PDF-версию. А если нужно редактировать файл, то используйте оригинальный файл.
Файлы такого типа обычно разбиты на страницы, а текст может быть форматированным (жирный, курсив, выбор шрифта, таблицы и т.п.), а также в него можно добавлять изображения. Формат идеально подходит для рефератов, докладов и РПЗ курсовых проектов, которые необходимо распечатать. Кстати перед печатью также сохраняйте файл в PDF, так как принтер может начудить со шрифтами.
















