144740 (620716), страница 2
Текст из файла (страница 2)
Термическое сопротивление слоя многослойной ограждающей конструкции:
- толщина слоя, м
- расчетный коэффициент теплопроводности материала соя, принимаемый по прил.3 СНиП II-3-79*
Таким оброзом, термическое сопротивление конструкции равно:
Термическое сопротивление конструкций как сумма термических сопротивлений слоев:
Этим выражение необходимо найти неизвестное значение
(толщина утеплителя):
Тогда общая толщина стены:
Без учета штукатурки
-
Определение глубины заложения ленточных фундаментов.
Исходные данные:
,
, здание имеет подвал полы устраиваются по утепленному цокольному перекрытию
, т.к. грунты в основание фундамента неоднородного сложения
определяется как средневзвешенное
, УГВ
Сумма абсолютных значений среднемесячных отрицательных температур воздуха:
Нормативная глубина сезонного промерзания крупных песков:
Расчетная глубина промерзания грунта у фундамента:
Расстояние от промерзшего грунта до грунтовых вод:
С учетом того, что грунты в основании представлены глинами и суглинками глубина заложения фундамента должно быть не менее расчетной глубины промерзания грунта. Проектом принимается граница заложения фундамента 1,2 м.
-
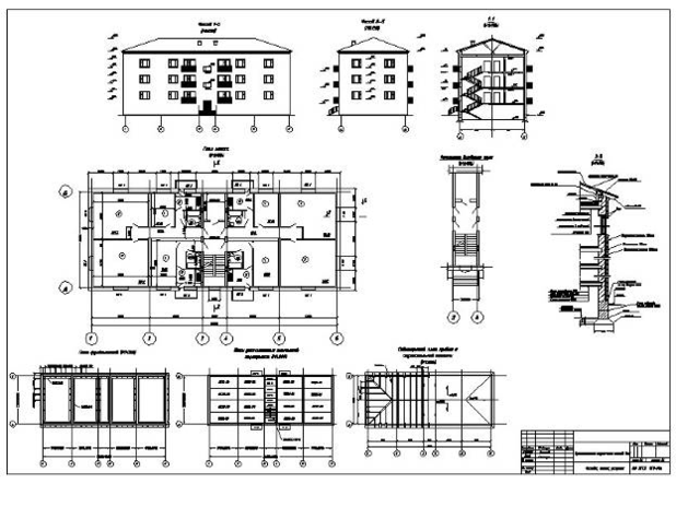
Расчет лестницы.
Исходные данные: лестница двухмаршевая, высота этажа
, ширина марша
, уклон i=1: 2, размеры ступеней: высота подступёнка
, ширина проступи b-300мм.
Решение:
-
Высота лестничного марша:
-
Число подступёнков в марше:
-
Число подступней в марше:
-
Длина горизонтальной проекции марша: d=9*300=2700мм
-
Ширина лестничной клетки: В = а+400+а=1200+300+1200=2,7м.
-
Длина лестничной клетки:
, где С1=1,3м - ширина этажей, С2=1,3 - ширина промежуточной площадки.
6. Список литературы
-
И.А. Шерешевский "Конструирование гражданских зданий" Стройиздат, 1981г.
-
СНиП II-3-79* "Строительная теплотехника". М., 1999г.
-
СНиП 2.01.99г. "Строительная климатология геофизика"
-
СНиП 2.02.83г. "Основы зданий и сооружений"
-
ГОСТ 21.103-73 "Общие требования к текстовым документам"
-
ГОСТ 21.101-79 "Основные требования к чертежам".
, где С1=1,3м - ширина этажей, С2=1,3 - ширина промежуточной площадки.















