144377 (620555)
Текст из файла
Федеральное агентство по образованию
Ангарская государственная техническая академия
Кафедра промышленного и гражданского строительства
Пояснительная записка
по курсовой работе
по металлическим конструкциям
на тему: «Расчет и конструирование элементов рабочей площадки»
Выполнил
Студент гр. ПГС – 07 - 1
Очаковская Ю. А.
Проверил
Савенков А.И.
Ангарск 2010
Исходные данные
Вариант – 3.1.2.
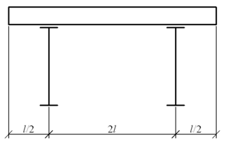
Схема поперечника рабочей площадки приведена на рисунке 1.
Схема поперечника рабочей площадки
Рис. 1.
Размеры площадки в плане – 2L x 3B
Шаг колонн в поперечном направлении, L (м) – 12
Шаг колонн в продольном направлении, В (м) – 6
Отметка чистого пола первого этажа – ±0.000
Отметка верха настила – +8.400
Отметка верха габарита помещения под рабочей площадкой – +6.200
Нормативная полезная нагрузка (кН/м2) – 20
Характер действия полезной нагрузки – статическая
Расчетная температура – -350
Сечение колонн – сквозная
Материал настила – ж/б
Класс бетона фундаментов – В10
Способы соединения элементов конструкций:
- заводские – сварка;
- монтажные – сварка, болты.
Монтажный стык главной балки запроектировать в середине или 1/3 пролета.
Марка стали – С255
Rу = 24,5 кН/см2
Ru = 37 кН/см2
1. Технико-экономическое обоснование балочной клетки
Расстановка колонн и главных балок устанавливается заданием. Поэтому основными факторами, определяющими экономичность вариантов, является компоновочная схема и ее параметры.
1.1. Выбор компоновочной схемы
Различают три вида балочных клеток: упрощенный, нормальный и усложненный. Необходимо сравнить нормальный (рис. 2.1.1) и усложненный (рис. 2.1.2) варианты балочных клеток.
При железобетонном настиле шаг балок настила – назначается 1,5–3 м, шаг вспомогательных балок назначается – 3-5 м.
Рис.1.1.1. Простая балочная клетка Рис.1.1.2. Усложненная балочная клетка
1. 2. Расчет настила
Материала настила – железобетон. Толщина и максимальный расчетный пролет определяется в зависимости от величины временной нормативной нагрузки по таблице 2.1.1. При этом для снижения суммарной стоимости настила и поддерживающих балок, толщина плиты принимается минимальной.
Таблица 1.2.1 Толщина и пролет железобетонной плиты
| Расчетный пролет плиты, м | Толщина плиты (в см.) при временной нормативной нагрузке, кПа (кН/м2) | ||||
| менее 15 | 20 и более | менее 25 | от 25 до 30 | 30 и более | |
| <=1,5 | 8 | 8 | 12 | 12 | 14 |
| <=2,0 | 10 | 10 | |||
| <=2,5 | 12 | 14 | 16 | ||
| <=3,0 | 12 | 14 | 14 | 16 | 18 |
Толщина настила, t = 10 cм
Расчетный пролет плиты = 2,0 м
Нормативная величина нагрузки от собственного веса настила
1.3. Расчет балок настила и вспомогательных балок
В работе и расчете балок настила и вспомогательных балок нет принципиальных различий, кроме вопросов определения действующих нагрузок и обеспечения общей устойчивости.
1.3.1. Определение нормативных и расчетных нагрузок
Нормативная и расчетная величины равномерной и распределенной нагрузки, действующей на балки настила, могут быть определены по формулам:
где α – шаг балок настила, м;
- нормативная величина полезной нагрузки,
- нормативная величина нагрузки от собственного веса настила,
где
- коэффициент надежности по нагрузке для временной нагрузки, принимаемый:
= 1,2
- коэффициент надежности для постоянной нагрузки, принимаемый:
= 1,1
1.3.2 Определение усилий и подбор сечения простой балочной клетки
В однопролетной разрезной балке (расчетная схема рис. 1.3.2.1) действуют усилия:
Рис. 1.3.2.1. Расчетная схема балок.
Расчетный изгибающий момент -
Нормативный изгибающий момент -
Поперечная сила -
Балки настила могут работать упруго или при органичном развитии пластических деформаций. Учет пластической работы материала допускается в балках сплошного сечения, несущих статическую нагрузку, у которых величина касательных напряжений в расчетом сечении τ ≤ 0,9 Rу. При этом предполагается, что пластические деформации локализуются в узкой зоне около наиболее нагруженного сечения в середине однопролетной балки, загруженной равномерно распределенной нагрузкой.
Балки настила, несущие динамическую нагрузку, и вспомогательные балки работают упруго. Их предельное состояние наступает при достижении максимальными по величине нормальными или касательными напряжениями значений Rу или RS соответственно. При этом нормальные напряжения определяют в крайних волокнах сечения с максимальным изгибающим моментом, а касательные – по нейтральной оси опорного сечения.
Номер прокатного профиля балки можно определить по прочности (из условия равенства величины максимальных нормальных напряжений расчетному сопротивлению стали растяжению, сжатию) или по жесткости (из условия равенства фактического прогиба величине предельно допустимого прогиба).
Поскольку основной единицей измерения, является сантиметр, для удобства вычислений при выполнении конструктивных расчетов следует перейти от размерности, кН м, в которой ранее были определены усилия, к размерности кН см, для чего величины моментов нужно умножить на 100, Rу, в МПа разделить на 10, модуль продольных деформаций принять равным Е = 20600 кН/см2.
Требуемый момент сопротивления поперечного сечения балки, определенной по прочности, равен: при упругой работе:
Wreq = M/(Rу ∙ γc),
где Rу – расчетное сопротивление стали при растяжении, сжатии, изгибе, определенное по пределу текучести.
γc – коэффициент условия работы, принимаемый равный 1.
Wreq = 24075/1,12*24,5= 877,37 см3
По полученной упругой работе подбираем профиль проката:
Профиль – 40Б2
Н = 39,6 см
bf = 16.5 см
tw = 0.75 cм
tf = 1,15 см
А = 69,72 см2
Iх = 18530 см4
Wх = 935,7 см3
Линейная плотность = 0,548 кН/м
Sх = 529,7 см3
It = 33,094 см4
1.3.3 Проверка принятого профиля простой балочной клетки
Проверка принятого сечения балки следует выполнять:
- по уточненным нагрузкам, определенным с учетом дополнительной нагрузки от собственного веса балки;
- по расчетному сопротивлению стали, уточненному в зависимости от фактической толщины проката, равной толщине полки балки;
- по фактическим статическим характеристикам сечения балки.
Усилия, уточненные с учетом действия дополнительной нагрузки от собственного веса балки (в размерности кН м, кН):
- изгибающий момент нормативный
- изгибающий момент расчетный
- поперечная сила
Проверка нормальных напряжений
- При расчете в упругой стадии
Максимальная величина нормальных напряжений, действующих в середине пролета:
=>
<
-
условие выполнилось
Проверка касательных напряжений
Касательные напряжения следует определять и проверять в опорном сечении:
где
- опорная реакция балки.
=> 5,796 < 14,21 – условие выполнилось.
Проверка жесткости
Проверка жесткости балки производится по формуле:
=> 0,00336 < 0,005 –
условие выполнилось.
1.3.4 Определение усилий и подбор сечения усложненной балочной клетки (балки настила)
В однопролетной разрезной балке (расчетная схема рис. 2.3.4.1) действуют усилия:
Рис. 1.3.4.1. Расчетная схема балок.
Wreq = M/(Rу ∙ γc)
По полученной упругой работе подбираем профиль проката:
Профиль – 35Б1
Н = 34,6 см
bf = 15,5 см
tw = 0,62 cм
tf = 0,85 см
А = 49,53 см2
Iх = 10600 см4
Wх = 581,7 см3
Линейная плотность = 0,389 кН/м
Sх = 328,6 см3
It = 14,843 см4
1.3.5 Проверка принятого профиля усложненной балочной клетки (балки настила)
Проверка нормальных напряжений
- При расчете в упругой стадии
Максимальная величина нормальных напряжений, действующих в середине пролета:
=>
<
- условие выполнилось
Проверка касательных напряжений
Касательные напряжения следует определять и проверять в опорном сечении:
где
- опорная реакция балки.
=> 6 < 14,21 – условие выполнилось.
Проверка жесткости
Проверка жесткости балки производится по формуле:
=> 0,0026 < 0,005 – условие выполнилось.
1.3.6 Определение усилий и подбор сечения усложненной балочной клетки (вспомогательной балки)
В однопролетной разрезной балке (расчетная схема рис. 2.3.4.1) действуют усилия:
Рис. 1.3.6.1. Расчетная схема балок.
Q1 = 121,25 кН
Wreq = M/(Rу ∙ γc)
По полученной упругой работе подбираем профиль проката:
Профиль – 55Б1
Н = 54,3 см
bf = 20 см
tw = 0,95 cм
tf = 1,35 см
А = 113,37 см2
Iх = 55680 см4
Wх = 2051 см3
Линейная плотность = 0,891 кН/м
Sх = 1165 см3
It = 73,366 см4
1.3.5 Проверка принятого профиля усложненной балочной клетки (вспомогательной балки)
Проверка нормальных напряжений
- При ограниченном развитии пластических деформаций
Максимальная величина нормальных напряжений, действующих в середине пролета:
=>
<
-
условие выполнилось
Проверка касательных напряжений
Касательные напряжения следует определять и проверять в опорном сечении:
где
- опорная реакция балки.
=> 5 < 14,21 – условие выполнилось.
Проверка жесткости
Проверка жесткости балки производится по формуле:
=> 0,002 < 0,005 – условие выполнилось.
1.4 Выбор оптимального варианта
Для принятия варианта компоновки балочной клетки производится сравнение вариантов по расходу материалов, стоимости и количеству элементов, результаты которого заносятся в таблицу 2.4.1. В качестве определяющего показателя при выборе оптимального варианта принимается расход стали (кг/см2) или стоимость материала конструкций (руб./м2). В том случае, если расход стали или стоимость по вариантам отличаются менее чем на 5%, в качестве оптимального варианта принимается вариант с меньшим количеством монтажных элементов. Выявленный на основании сравнения оптимальный вариант принимается к дальнейшей разработке.
Таблица 1.4.1
Сравнение вариантов балочной клетки
| Наименование | Простая балочная клетка | Усложненная балочная клетка | |||||||||
| Расход стали, кг/м2 | Количество балок | Масса стали, кг | Расход стали, кг/м2 | Количество балок | Масса стали, кг | ||||||
| Одной балки | Всех балок | Одной балки | Всех балок | ||||||||
| Балки настила | 28,41 | 84 | 54,8 | 4603,2 | 12,97 | 72 | 38,9 | 2800,8 | |||
| Вспом. Балки | 21,45 | 39 | 89,1 | 3474,9 | |||||||
| Итого | 28,41 | 34,42 | |||||||||
2. Расчет главной балки
Главная балка проектируется составного сварного семеричного двутаврового сечения.
2.1 Определение нормативных и расчетных нагрузок
При действии на балку более 4-х сосредоточенных сил, нагрузка принимается равномерно - распределенной. Выделим две составляющие этой нагрузки:
- составляющая, вызванная действием временной нагрузки
- составляющая, вызванная действием постоянной нагрузки (собственный вес конструкций)
где b – шаг главных балок (м),
нормативная нагрузка от собственного веса балок настила и вспомогательных балок (кН/м2).
2.2. Определение усилий
В двухконсольной балке при действии равномерно-распределенной нагрузки максимальный пролетный и изгибающий момент:
- максимальный опорный момент
Рис.22.1. Эпюры моментов и поперечных сил в двухконсольной балке
Поперечная сила, действующая в опорном сечении со стороны консоли:
- в опорном сечении со стороны пролета:
Максимальная величина опорной реакции двухконсольной балки:
.
2.3 Компоновка сечения
Компоновка сечения, то есть определение размеров элементов в пределах принятого типа сечения (Рис.3.3.1.), является технико-экономической задачей: необходимо выбрать размеры элементов сечения из предлагаемого перечня (сортамента) таким образом, чтобы удовлетворялись условия прочности, жесткости, общей и местной устойчивости, конструктивные требования и, в то же время, принятое сечение имело минимальный вес.
Из определяемых параметров сечения (hw, t w, bf и tf) наибольшее влияние на вес оказывает высота стенки балки hw или близкая к ней высота сечения h.
,
где
,
толщина стенки принимается: t w = 2см.
Рис. 2.3.1. Составное сечение главной балки
Кроме оптимальной высоты, существует минимальная высота, определяемая из условия обеспечения требуемой жесткости балки:
где n0 – величина обратная предельному относительному прогибу, для главных балок рабочих площадок, несущих технологические нагрузки,
n0 = 300
Требуемая площадь сечения пояса:
Ширина пояса, которая обеспечивает общую устойчивость балки и равномерное распределение нормальных напряжений по ширине пояса:
Толщина пояса:
, при этом должны соблюдаться условия:
и tf ≤ 3tw
13 < 29 – условие выполнилось.
5 < 6 - условие выполнилось.
Рис. 2.3.2. Составное сечение главной балки
2.4. Проверка нормальных напряжений
Геометрические характеристики принятого сечения: - площадь:
- момент инерции:
- момент сопротивления:
Характеристики
Тип файла документ
Документы такого типа открываются такими программами, как Microsoft Office Word на компьютерах Windows, Apple Pages на компьютерах Mac, Open Office - бесплатная альтернатива на различных платформах, в том числе Linux. Наиболее простым и современным решением будут Google документы, так как открываются онлайн без скачивания прямо в браузере на любой платформе. Существуют российские качественные аналоги, например от Яндекса.
Будьте внимательны на мобильных устройствах, так как там используются упрощённый функционал даже в официальном приложении от Microsoft, поэтому для просмотра скачивайте PDF-версию. А если нужно редактировать файл, то используйте оригинальный файл.
Файлы такого типа обычно разбиты на страницы, а текст может быть форматированным (жирный, курсив, выбор шрифта, таблицы и т.п.), а также в него можно добавлять изображения. Формат идеально подходит для рефератов, докладов и РПЗ курсовых проектов, которые необходимо распечатать. Кстати перед печатью также сохраняйте файл в PDF, так как принтер может начудить со шрифтами.
















