144269 (620468), страница 2
Текст из файла (страница 2)
Sn = An·(h0/2) = 10·84 = 8400 см3.
Сдвигающая сила Т воспринимается двумя швами, тогда минимальная толщина этих швов при длине lw = 1 см, будет
kf ≥ QSn/n·I·(βRw)·γc = T/2·(βRw)·γc = 6000/2·1·1·16200 = 0,185 см,
где (βRw) – меньшее из произведений коэффициента глубины проплавления (βf или βz) на расчетное сопротивление, принимаемое по условному срезу металла на границе сплавления шва (Rwzγwz); при γwt = γwz = = 1 и для автоматической сварки проволокой d = 2 мм марки СВ – 08А (по ГОСТ 2246 – 70*) βf = 0,9 имели
βfRwfγwf = 0,9·180·1 = 162 МПа.
Принимаем конструктивно минимальную толщину шва kf = 7 мм, рекомендуемую при толщине пояса 17 – 22 мм (см. табл. 3.3. с. 62 [II]).
6. Изменение сечения балки по длине
Рисунок 4 – К изменению сечения по длине
Место изменения сечения принимаем на расстоянии 1/6 пролета от опоры. Сечение изменяем уменьшением ширины поясов. Разные сечения поясов соединяем сварным швом встык электродами Э42 без применения физических методов контроля.
Определяем расчетный момент и перерезывающую силу в сечении:
x = l/6 = 15,6 = 2,5 м
M1 = [qx·(l – x)]/2 = [170·2,5·(15 – 2,5)]/2 = 2656 кН·м = 265600 кН·см
Q1 = q·(l/2 – x) = 170·(15/2 – 2,5) = 850 кН
Определяем требуемый момент сопротивления и момент инерции измененного сечения исходя из прочности сварного стыкового шва, работающего на растяжение:
Определяем требуемый момент инерции поясов (Iст = 381191 см4)
In1 = I1 – Iст = 1154725 – 381191 = 773534 см4
Требуемая площадь сечения поясов
An1 = 2In1/h01 = 2·773534/1682 = 54,8 см2
Принимаем пояс 280×20 мм, An1 = 56 см2
Принимаемый пояс удовлетворяет рекомендациям
bn1 > 18 см, bn1 >170/10 = 17 cм
Определяем момент инерции и момент сопротивления уменьшенного сечения:
I1 = Iст + 2b1tn·(h0/2)2 = 381191 + 2·28·2·(168/2)2 = 1171463 cм4
W1 = 2I1/h = 2·1171463/170 = 13782 cм3
σmax = M1/W1 = 265600/13782 = 19,3 кН/см2 < Rсв = 0,85·23 = 19,55 кН/см2
7. Проверка общей и местной устойчивости элементов главной балки
1) Проверка прочности балки.
Проверяем максимальные нормальные напряжения в поясах в середине балки:
σ = Mmax/C1W = 478100/1,1 = 20,6 кН/см2 < R = 23 кН/см2
Проверяем максимальное касательное напряжение в стенке на опоре балки:
Проверяем местные напряжения в стенке под балкой настила
σm = F/tст·lм =128,88/1·17,5 = 7,36 кН/см2 < R,
где F = 2·21,48·6/2 = 128,88 кН – опорные реакции балок настила
lм = b + 2tn = 13,5 + 2·2 = 17,5 см – длина передачи нагрузки на стенку банки.
Проверяем приведенные напряжения в месте изменения сечения балки (где они будут максимальны):
где
Проверки показали, что прочность балки обеспечена.
2) Проверяем общую устойчивость балки в месте действия максимальных нормальных напряжений, принимая за расчетный пролет l0 – расстояние между балками настила в середине пролета балки, где учтены пластические деформации:
и
где
, так как τ = 0 и С1 = С
В месте уменьшенного сечения балки (балка работает упруго и δ = 1)
Проверки показали, что общая устойчивость балки обеспечена.
3) Проверка прогиба не производится, так как h = 170 > 50 см = hmin
Рисунок 5 – Схема монтажного стыка главной балки
8. Расстановка ребер жесткости
Определяем необходимость постановки ребер жесткости:
λст = 2,2 – при действии местной нагрузки на пояс балки.
Вертикальные ребра жесткости необходимы. Кроме того, в зоне учета пластических деформаций необходима постановка ребер жесткости под каждой балкой настила, т. к. местные напряжения в стенке в этой зоне не допустимы. Определяем длину зоны использования пластических деформаций в стенке по формуле:
Определяем средние значения М и Q на расстоянии х = 157,9 см. от опоры под балкой настила
M2 = [qx·(l – x)]/2 = [170·1,579 (15 – 1,579)]/2 = 1801 кН·м = 180100 кН·см
Q = q·(l/2 – x) = 170·(15/2 – 1,579) = 1006,5 кН
Определяем действующие напряжения:
где W = 20787 см3 из определения высоты и размеров главной балки.
σм = 7,36 кН/см2 (из расчета балки на устойчивость)
Определяем критические напряжения:
где h0 = hcт, λусл = λст = 4,9
Rср = 13,5 кН/см2
Размеры отсека a1/h0 = M = 0,95 и δм/σ = 7,36/8,46 = 0,86
По таблице 7.6. (с. 158 [I]) при δ = 1,9; a/h0 = 0,9 предельное значение σм/σ = 0,109
Расчетное значение σм/σ = 0,86 > 0,109
σкр определяем по формуле:
где скр = 33,1 по табл. 7.4 (с. 155 [I]) при δ = 1,9
Определяем σмкр
где
с1 = 11 по табл. 7.5 (с. 156 [I]) при δ = 1,9
a1/2hст = 157,9/2·166 = 0,47
Подставляем все значения в формулу
Устойчивость стенки обеспечена и постановка ребер жесткости на расстоянии а1 = 157,9 см возможна.
Определяем размеры ребер жесткости ширина bp = hст/30+40 = 1660/30 + 40 = 95 мм
Примем bp = 120 мм
толщина
Примем tp = 7 мм
9. Расчет монтажного стыка главной балки
Рисунок 6 – Схема опорной части главной балки
Стык делаем в середине пролета балки, где М = 4781 кН·м и Q = 0.
Стык осуществляем высокопрочными болтами d = 20 мм из стали «селект», имеющий по таблице 6.2
; обработка поверхности газопламенная. Несущая способность болта, имеющего две плоскости трения:
где
γб = 0,85:
т. к. разница в номинальных диаметрах отверстия и болта больше 1 мм;
М = 0,42 и γн = 1,02;
Принимая способность регулирования натяжения болта по углу закручивания, k = 2 – две плоскости трения.
Стык поясов. Каждый пояс балки перекрываем тремя накладками сечениями 500×12 мм и 2×220×12 мм, общей площадью сечения
An = 1,2·(50 + 2·22) = 112,8 см2 > An = 100 см2
Усилие в поясе определяем по формуле:
Mn = MIn/I = 4781·1385704/1792391 = 3696 кН·м
Nn = Mn/h0 = 3696/1,68 = 2200 кН
где I, In, h0 – из расчета главной балки
Количество болтов для прикрепления накладок рассчитываем по формуле:
n = Nn/QВБ = 2200/132 = 16,6
Принимаем 16 болтов.
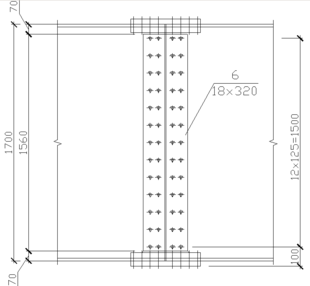
Стык стенки. Стенку перекрываем двумя вертикальными накладками сечением 320×1560×8 мм.
Определяем момент, действующий на стенку
Мст = MIст/I = 4781·381191/1792391 = 1016 кН·м
Принимаем расстояние между крайними по высоте рядами болтов:
amax = 1660·2·80 = 1500
Находим коэффициент стыка
= Mст/mamaxQВБ = 101600/2·150·132 = 2,56
Из таблицы 7.8 (с. 166 [I]) находим количество рядов болтов по вертикали k.
при
= 2,56 k = 13
Принимаем 13 рядов с шагом 125 мм.
Проверяем стык стенки по формуле:
Проверяем ослабление нижнего растянутого пояса
Ап.нт = 2,0·(50 – 2·5,785) = 86,86 см2 > 0,85 Аn = 0,85·100 = 85 см2
Ослабление пояса можно не учитывать.
Проверяем ослабление накладок в середине стыка четырьмя отверстиями
= 112,8 – 4·2·1,2·5,785 = 57,2 см2 < 0,85An = 85 см2.
Принимаем накладки толщиной 18 мм
= 1,8·(50+2·22) – 4,2·1,8·5,785=85,9 cм2 >0,85An = 85 см2
10. Расчет опорной части главной балки
Опорная реакция балки F = 1275 кН
Определяем площадь смятия торца ребра
где Rсм.т. = 35,5 кН/см2 = 355 МПа (прил. 4 [I]).
Принимаем ребро 280×14 мм,
Ар = 28·1,4 = 39,2 см2 >35,9 см2. Проверяем опорную стойку балки на устойчивость относительно оси Z. Ширина участка стенки, включенной в работу опорной стойки:
Аст = АР + tcт·bст = 39,2 + 1·19,45 = 58,65 см2
Iz = 1,4·283/12 + 19,45·13/12 = 2562 cм4
λ = hст/iz = 166/6,6 = 25,1 по приложению 7 (I) φ = 0,947
Рассчитываем прикрепление опорного ребра к стенке балки двусторонними швами полуавтоматической сваркой проволокой СВ – 08Г2. Предварительно находим параметры сварных швов и определяем минимальное значение β
. По таблице 5.1 (I) принимаем
= 215 МПа = 21,5 кН/см2; по прилож. 4 (I) –
=165 МПа = 16б5 кН/см2, по табл. 5.4. (I)
βш = 0,9; βс = 1,05
βш·
= 0,9·21,5 = 19,3 кН/см2 > βc·
= 1,05·16,5 = 17,32 кН/см2
Определяем катет сварных швов по формуле:
Принимаем швов kм = 7 мм.
Проверяем длину рабочей части шва:
lм = 85·βс·kм = 85·1,05·0,7 = 62,5 см < hcт = 166 см
Ребро привариваем к стенке по всей высоте сплошными швами.
11. Подбор и компоновка сечения сквозной колонны
Постоянная нагрузка от собственного веса колонны – 1,5 кПа. Расчетное усилие в стержне колонны:
N = 1,01·(np·p + ng·g) ·A·B = 1,01·(1,2·22 + 1,05·1,5) ·15·6 = 2540 кН
Длина колонны: l0 = 11 – 0,01 – 0,3 – 1,72 = 8,97 м
Зададимся гибкостью λ = 60 и находим φ = 0,785 (по прил 7 [1]), площадь сечения
Aтр = N/(φ·R) =2540/0,785·28 = 115,5 см2,
где R = 28 кН/м2 – расчетное сопротивление для стали марки Вст 3nc6 – 2 радиус инерции:
imp = l0/λ = 897/60 = 14,95
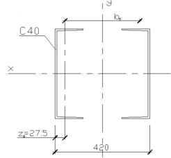
По сортаменту ГОСТ 8240 – 72* принимаем два швеллера 40 со значениями А = 2·61,5 = 123 см3; ix = 15,7 см.
Рассчитываем гибкость относительно оси х
λх = 897/15,7 = 57; φх = 0,800 (прил. 7)
Проверяем устойчивость относительно оси х
σ = N/φA = 2540/0,8·123 = 25,8 кН/м2 < R = 28 кН/см2
Рисунок 7 – Сечение сквозной колонны
















