tv (598240), страница 2
Текст из файла (страница 2)
В направлении x изображение состоит из Nx элементов:
А в направлении y , соответственно
Если принять x = y (одинаковое разрешение в горизонтальном и вертикальном направлении), то общее количество элементов изображения N составит:
В ряде случаев (требования к зернистости люминофора и т.п.) представляет интерес обратная зависимость:
N = 4bh2вгр
Пространственная частота поля изображения и скорость формирования растра (скорость сканирования) определяют, как будет показано позже (гл. 6), требования к полосе частот (временных) аппаратуры телевизионной системы.
1.3. Преобразование изображения в электрический сигнал
Для черно-белого телевидения каждый элемент характеризуется мгновенным значением яркости; поэтому при поэлементной развертке образуется сигнал яркости как функция времени.
Необходимо преобразовать лучистую энергию в электрический сигнал. Для этого используются фотоэлектрические преобразователи – с внешним и внутренним фотоэффектом.
Внешний фотоэффект (А.Г. Столетов, 1890) – появление электронной эмиссии с освещаемой поверхности некоторых металлов и их окислов. Внутренний фотоэффект – изменение проводимости некоторых веществ при их освещении.
Пусть в плоскости фотокатода (тонкая полупрозрачная пленка из металла с внешним фотоэффектом) сформировано оптическое изображение, так что энергетическое состояние каждого элемента фотокатода определено освещенностью Ei и его спектральным составом. Значит, с каждого элемента фотокатода эмиттируют электроны, плотность которых j вблизи поверхности пропорциональна освещенности:
ji Ei ,
а поле электронов отображает освещенность элемента изображения. Если теперь полностью отбирать ток электронов, то он тоже пропорционален средней освещенности:
ii Ei
Если осуществляется поочередная выборка элементов электронного изображения (временная развертка), то получается сигнал изображения i(t), величина которого в каждый момент пропорциональна освещенности разворачиваемого элемента изображения.
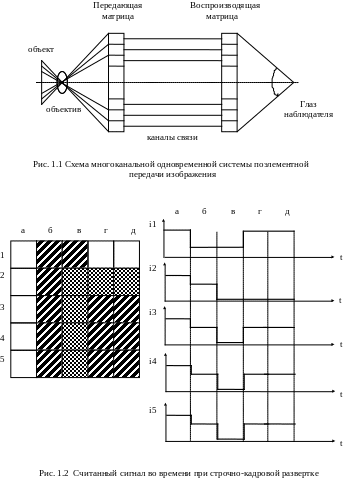
Каким образом осуществить развертку изображения? В качестве примера рассмотрим механическую систему, позволяющую осуществить последовательное освещение фотокатода с помощью подвижной диафрагмы, равной по площади одному элементу изображения (диск Нипкова).
Диафрагмы в виде прозрачных отверстий в непрозрачном диске перемещаются в плоскости оптического изображения, а фоточувствительный элемент (один!) располагается за диском (рис. 1.5).
Отверстия в диске размещены по спирали так, чтобы была сплошная развертка (смещены по радиусу на свой диаметр). Диск Нипкова представляет собой оптический коммутатор. В телевизионной системе этого типа (в Москве, 1931 г.) было 30 строк (z=30), частота кадров – 12,5 Гц. Частота кадров равна ¼ частоты сети, что удобно для синхронизации. Полоса частот была малой, что позволяло передавать сигнал по радиовещательному каналу.
Второй способ осуществления временной развертки изображения – это перемещение электронного изображения относительно диафрагмы – ловушки по определенному закону. И в этом случае, как и системе с диском Нипкова, в образовании фототока принимает участие только та часть света от данного элемента изображения, которая в этот момент развертывается.
Если полный световой поток изображения Fo (отраженный световой поток от объекта), то средний поток одного элемента составит:
а средний ток электрического сигнала i = iср = E F`o = E
, где Е – чувствительность преобразователя
.
Если N = kz2, где k – формат кадра (k =
), z – число строк кадра, то
Такие системы называются системами мгновенного действия. Чувствительность этих систем обратно пропорциональна квадрату числа строк разложения, это их главный недостаток. Количество света (экспозиция)
, т.е. произведение светового потока на время его использования за время прохождения одного элемента изображения
В силу малости сигнала, представляют интерес способы его увеличения. Известны и используются два таких способа.
-
Если есть возможность, то можно использовать весь имеющийся в наличии световой поток для поочередного освещения деталей объекта, соответствующих отдельным элементам изображения. Это так называемые системы с бегущим лучом – например, при передаче изображений с кинопленки, в факсимильной связи. Весь необходимый для работы системы свет здесь сосредоточен в одном луче (т.е.
), который перемещается по носителю изображения в соответствии с законом развертки изображения. Это тоже система мгновенного действия. -
При невозможности освещения объекта световым бегущим лучом (что обычно и имеет место) используют накопление сигнала в течение всего кадра и последующего его полного считывания (использования) во время коммутации данного элемента. Из общих соображений ясно, что энергетически оба способа эквивалентны, хотя система с накоплением более универсальна.
1.4. Обобщенная структурная схема телевизионной системы
Телевизионная система (ТВС) – комплекс технических средств, обеспечивающих передачу визуальной информации путем ее прямого и обратного преобразования через электрические сигналы.
Обобщенные, обязательные для любой системы устройства и их функциональная взаимосвязь показаны на рис. 1.6. С помощью объектива формируется плоское оптическое изображение на фотокатоде преобразователя свет-электрический сигнал (ПСС). В ПСС лучистая энергия преобразуется в электрическую в ходе развертки изображения, так что на выходе ПСС получается временной сигнал, называемый исходным сигналом яркости Ec, мгновенные значения которого пропорциональны значениям яркости передаваемого в данный момент элемента изображения.
Сигнал с выхода ПСС усиливается, и в него вводятся дополнительные (служебные) импульсные сигналы, предназначенные для запирания обратного преобразователя сигнал-свет в перерывах между разверткой строк и кадров (сигналы гашения). Исходный сигнал вместе с сигналом гашения называется сигналом яркости.
Для обеспечения синхронности и синфазности используется принудительная синхронизация – 1 раз на период строки и 1 раз на период кадра с помощью специальных сигналов синхронизации, подмешиваемых в сигнал во время передачи гасящих импульсов. Строчные и кадровые синхроимпульсы больше по амплитуде, чем гасящие импульсы, поэтому они выделяются из полного телевизионного сигнала с помощью амплитудных селекторов. Между собой строчные и кадровые синхроимпульсы различаются по длительности. Сигнал, состоящий из сигналов яркости вместе с синхронизацией, называется полным телевизионным сигналом.
Полный ТВ сигнал далее поступает в канал связи. Это может быть кабельная, радиорелейная, вещательная, волноводная, спутниковая линия связи, удовлетворяющая требованиям неискаженной передачи ТВ сигнала. В канале связи сигнал может неоднократно подвергаться различным преобразованиям, но на выходе должен восстанавливаться исходный сигнал, который и поступает на усилитель-селектор. Усилитель обеспечивает уровень сигнала, необходимый для управления обратным преобразователем сигнал-свет. В селекторе выделяются синхронизирующие импульсы, которые подаются на управление разверткой ТВ-приемника (синтезатора изображения).
Качество ТВ изображения определяется параметрами и характеристиками ТВ системы. Воспроизведение мелких деталей и резких границ участков изображения с разной яркостью (контуров изображения) определяется в первую очередь количеством строк разложения, т.е. количеством элементов изображения. Слитность восприятия импульсных по своей природе сигналов яркости и плавность движений определяются количеством кадров в единицу времени. Число воспроизводимых градаций яркости зависит от динамического диапазона системы. Геометрическое подобие передаваемого и воспроизводимого изображений зависит от точности синхронизации, а также от дифференциального подобия разверток передающей и приемной сторон ТВ системы.
Таким образом, выбор параметров системы зависит от качества изображения. С другой стороны, повышение качества влечет за собой усложнение и удорожание системы. Поскольку вещательная ТВ система сделана для зрителя, получателя информации, то ее показатели должны быть компромиссом между приемлемым качеством и приемлемой стоимостью. Еще лучше, если есть выбор из нескольких возможностей, хотя этого в телевидении пока нет (в отличие от радиоприема, где качество звучания и приема в основном зависит от качества приемника, а в эфир «выпускается» сигнал очень высокого качества).
Для дальнейшего грамотного, осознанного рассмотрения телевизионных систем необходимо обратиться прежде всего к зрительной системе человека.
-
ОПТИЧЕСКОЕ ИЗОБРАЖЕНИЕ И ЕГО ВОСПРИЯТИЕ
-
Глаз человека
Глаз – один из сложнейших органов человека, «световое окно» в мозг. Глаз вместе с мозгом образуют зрительную систему, через которую поступает по разным оценкам от 70 до 90% всей информации из внешнего мира к человеку.
Блоки зрительной системы (рис. 2.1) охвачены прямыми и обратными связями, которые создают возможность адаптивной перестройки оптической системы и светочувствительного блока.
















