160926 (595142), страница 10
Текст из файла (страница 10)
- та інші.
4.2 Характеристика приміщення
Основними, в плані безпечності на підприємстві є приміщення, де розміщуються автоматичні телефонні станції, які мають в цілому шкідливі показники і негативно впливають на обслуговуючий персонал, що знаходиться в цих приміщеннях. В таблиці 4.1 вказано назви характеристики факторів і їх відповідність нормативно-технічній документації по критеріям вибору.
Таблиця 4.1 – Характеристика факторів
| Назва характеристики | Критерій вибору | Нормативно-технічні документи |
| 1. Площа приміщення | Комфортні умови праці | СНиП 2.09.04-87 |
| 2. Виробниче освітлення | Комфортні умови зорових робіт | СНиП II-4-79 |
| 3. Сприятливі умови мікроклімату | Комфортні умови праці | ГОСТ 12.1.005-88.CCБТ |
| 4. Електробезпека | Безпека умов праці | ГОСТ 12.1.004-91ССБТ |
| 5. Пожежна безпека | Безпека умов праці | ГОСТ 12.1.019-79ССБТ |
До небезпечних і шкідливих виробничих факторів відносять фактори, що впливають на робітників і приводять до захворювання, ГОСТ 12.0.003-74.ССБТ [30].
4.3 Шкідливі та небезпечні фактори на підприємстві
При проходженні стажування у ТОВ «Базіс» встановлено, що на працівників можуть негативно впливати такі шкідливі і небезпечні фактори:
– запиленість;
– знижене освітлення;
– шум, вібрація;
– психофізіологічний фактор;
– підвищена або знижена температура повітря.
Перелік шкідливих та небезпечних факторів, які супроводжують працю на зазначеному підприємстві, а також джерела їх виникнення наведені у таблиці 4.2.
Таблиця 4.2 - Перелік шкідливих і небезпечних виробничих факторів
| Шкідливі й небезпечні фактори | Джерела виникнення |
| 1. Пожежонебезпека приміщення | Наявність горючих матеріалів і джерел опалювання |
| 2.Вібрація | Від працюючого обладнання АТС |
| 3.Шуми | Від працюючого обладнання АТС |
| 4. Мікрочастинки пилу | Зовнішні джерела; папки з документацією |
| 5. Психофізіологічні фактори | Перенапруга зору, емоційні перевантаження |
| 6. Підвищена/знижена рухливість повітря, температура, знижена/підвищена вологість | Мікроклімат приміщення: стан систем опалення, кондиціювання, вентиляції |
| 7. Несприятливе освітлення | Нераціональна організація освітлення робочих місць |
Площа приміщення становить 60 м2, у ньому 3 робочих місця, на кожне робоче місце доводиться приблизно 20м2, приміщення відповідає санітарним нормам проектування приміщень для використовування під АТС. В приміщенні два великих вікна, встановлено кондиціонер, є штучне освітлення.
У технічному відділі, до якого відносить персонал АТС, періодично виконуються комплекси заходів, спрямованих на оздоровлення умов праці працівників і підвищення продуктивності, усунення несприятливо діючих на здоров'я шкідливих факторів і попередження професійних захворювань. Їхній характер і вид визначаються особливостями роботи, що виконується та технікою, яка використовується.
4.4 Виробнича санітарія
Умови праці на підприємстві ТОВ «Базіс» не вимагає фізичної напруги, але вимагає максимальної концентрації уваги й тримає працівника в постійній напрузі. Тому ця робота, відповідно до ГОСТ 12.1.005-88 [32], віднесена до легкої категорії 1а - легкі фізичні, виходячи з наступних факторів: категорії важкості робіт, періоду року. Енерговитрати становлять до 139 Вт.
Оптимальні норми температури параметрів метеорологічних умов відповідно до категорії робіт і залежно від періоду року наведені в таблиці 4.3.
Таблиця 4.3 - Оптимальні параметри мікроклімату
| Категорія робіт | Періоди року | Температура | Відносна вологість % (не більше) | Швидкість руху повітря, м/с (не більше) |
| Легка 1а | Холодний | 22-24 | 40-60 | 0,1 |
| Легка 1а | Теплий | 23-25 | 40-60 | 0,1 |
Збереження комфорту в приміщенні забезпечує відчуття комфорту, створює передумови для високого рівня праці.
З метою профілактики різних захворювань, а також для забезпечення умов нормальної роботи у відділі застосовуються різні методи і засоби попередження впливу шкідливих виробничих факторів на організм людини.
Основними засобами є щоденне вбирання приміщення, провітрювання, підтримка необхідного температурного режиму за допомогою різних технічних пристроїв (у холодну пору року), вентиляція або кондиціювання (що обумовлено, також наявністю на робочих місцях співробітників закладу) СНиП 2.04.05-91 [38] .
4.5 Освітлення виробничого приміщення
У відділі застосовується природне бічне висвітлення [39].
Норми природного освітлення для відділу представлені в таблиці 4.4.
Таблиця 4.4 - Характеристика виробничого висвітлення
| Найменування основних виробничих приміщень | Площа підлоги, м2 | Розряд зорової роботи | Вид освітлення | |
| природне КПО, % | штучна мінімальна освітленість, Е min | |||
| Приміщення АТС | 60 | ІІІ | бічне, 1,5 | 300 |
На АТС із природним бічним висвітленням працюють 3 людини, у приміщені знаходяться 2 стола, 3 стільці, 3 комп'ютера, 6 шаф. Для умов міста Харкова, величина КЕО розраховується за формулою:
(4.1)
де
– нормована величина КЕО для третього пояса світлового клімату дорівнює 1,5%;
с - коефіцієнт сонячного клімату, с = 0,75 (вікна на захід);
m - коефіцієнт світлового клімату, m = 0,9.
Штучне освітлення створюється електричними джерелами світла.
Розряд зорової роботи, обумовлений найменшим об'єктом розрізнення – ІІІ (робота високої точності з найменшим об'єктом розрізнення від більш ніж 0,3 мм до 0,5 мм), мінімальне нормована освітленість 300 мк.
Для розрахунку загального рівномірного освітлення при горизонтальній робочій поверхні основним є метод коефіцієнта використання світлового потоку, що враховує світловий потік, відбитий від стелі й стін. Світловий потік розраховується за формулою:
(4.2)
де Emin – нормована мінімальна освітленість, лк;
k - коефіцієнт запасу;
S - освітлювана площа, м2;
Z - коефіцієнт мінімальної освітленості (коефіцієнт нерівномірності освітлення);
N - число світильників;
n - число ламп у світильнику;
η - коефіцієнт використання світлового потоку в долях одиниці.
З урахуванням розряду зорових робіт (III б) Emin = 300 лк.
Освітлювана площа S = 60 м2
Коефіцієнт запасу k враховує запиленість приміщення, зниження світлового потоку ламп у процесі експлуатації. Значення k= 1,2.
Коефіцієнт мінімальної освітленості Z характеризує нерівномірність освітлення. Для люмінесцентних ламп Z = 1,1.
Для визначення коефіцієнта використання світлового потоку ή знаходять індекс приміщення і й передбачувані коефіцієнти відбиття поверхонь приміщення: стелі ρп, стін ρс, підлоги рр (для світлих адміністративно-конторських приміщень: ρcтл = 70%, ρстн = 50%, ρр = 30%), вибирають тип світильника.
Для освітлення приміщення застосовуються люмінесцентними лампами як з гігієнічної так і з економічної точок зору. Для зниження пульсації люмінесцентних ламп до нормальних величин слід використовувати дволампові світильники з лампами типу ЛБ, ЛТБ, ЛХБ, ЛТПЦ, ЛН.
Індекс приміщення визначається за такою формулою:
(4.3)
де А, В, h - довжина, ширина й розрахункова висота (висота підвісу світильника над робочою поверхнею) приміщення, м;
(4.4)
де Н - геометрична висота приміщення;
hсв - звис світильника. Звичайно hсв = 0,2 .. .0,8 м;
hp - висота робочої поверхні. hp = 0,8...1,0 м.
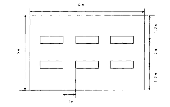
А = 12 м; В = 5 м; h = 3 - 0,2 - 0,8 = 2м; і = 1,22.
На основі отриманого значення і коефіцієнта використання світлового потоку η = 49 %.
Отже, світловий потік, відповідно до формули (4.2), дорівнює:
лм.
Як джерела світла використаються люмінесцентні лампи потужністю 40 Вт або енергозберігаючі потужністю 36 Вт типу ЛБ, ЛХБ, ЛДЦ як найбільш ефективні й прийнятні з погляду спектрального складу, колірна температура випромінювання яких перебуває в діапазоні 3500-4200 К.
На основі розрахованого значення світлового потоку підбирається найближча стандартна лампа, у цьому випадку це люмінесцентна лампа ЛДЦ 40-4 зі значенням світлового потоку Фл ~ 1995 лм.
Після цього розраховується необхідна кількість цих ламп для розглянутого приміщення:
Округляємо до цілого й одержуємо, що в приміщенні потрібно встановити 6 світильників.
Схема розташування світильників наведена на рис 4.1.
В робочому приміщенні штучне освітлення виконується системою загального рівномірного освітлення. Загальне освітлення виконане у вигляді переривчастих ліній світильників. Лінії світильників розташовані ліворуч від робочих місць паралельно лінії розташування робочих місць. Кількість світильників у лінії дорівнює трьом. У кожному світильнику дві лампи типу ЛДЦ 40-4. Коефіцієнт запасу світильників дорівнює 1,2; коефіцієнт пульсації ламп - 5%, для чого розташовані поруч світильники підключені до різних фаз трифазної мережі. Таким чином, загальна кількість світильників дорівнює 6, що відповідає розрахунковому значенню кількості світильників даного типу. Можна зробити висновок, що система штучного освітлення даного приміщення задовольняє пред'явленим вимогам.
Рисунок 4.1 Схема розташування світильників
4.6 Виробничий шум та вібрація
Високий рівень шуму та вібрації - один з найпоширеніших шкідливих факторів на виробництві, він викликає стомлення, зниження продуктивності праці, а при тривалому впливі розлад здоров'я й навіть появу професійних захворювань. Підвищений рівень шуму впливає на систему травлення і кровообігу, серцево-судинну систему. Шум не лише погіршує самопочуття, а й знижує продуктивність праці на 10-15 відсотків. У зв’язку з цим боротьба з ним має не лише санітарно-гігієнічне, а й велике техніко-економічне значення.















