150632 (594563), страница 13
Текст из файла (страница 13)
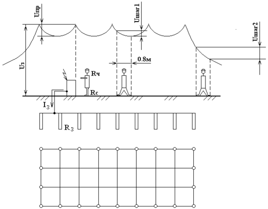
Напряжение Uшаг не нормируется, так как путь тока нога-нога для человека менее опасен, чем путь рука-ноги.
Рисунок 24
7.2.2. Расчет заземляющих устройств
Порядок выполнения расчётов. Согласно ПУЭ заземляющие устройства электроустановок выше 1 кВ сети с эффективно заземленной нейтралью выполняются с учетом сопротивления Rз 0.5 Ом или допустимого напряжения прикосновения.
Расчёт по допустимому сопротивлению Rз 0.5 Ом приводит к неоправданному перерасходу проводникового материала и трудозатрат при сооружении заземляющих устройств для подстанций небольшой площадью, не имеющих естественных заземлителей. Опыт эксплуатации распределительных устройств 110 кВ и выше позволяет перейти к нормированию напряжения прикосновения, а не величины Rз. Обоснованием этого служат следующие соображения. В момент прикосновения человека к заземлённому оборудованию, находящемуся под потенциалом, часть сопротивления заземлителя шунтируется сопротивлением тела человека Rч и сопротивлением растеканию тока от ступней в землю Rс. На тело человека фактически будет действовать напряжение:
Uч = Uпр. – Uс ,(7.5)
где Uс = Iч Rс – падение напряжения в сопротивлении растеканию с двух ступней человека в землю.
Если принять ступню человека за диск радиусом 8 см, то
где в,с – удельное сопротивление верхнего слоя земли, Ом;
г – радиус ступни, м.
Ток, протекающий через человека:
.
Опасность поражения зависит от тока и его длительности протекания через тело человека. Согласно принятым нормам допустимый ток определяется так:
Длительность действия тока, с 0.1 0.2 0.50.7 1.0
Допустимый ток, мА 5002501007565
Зная допустимый ток, можно из (7.5) найти допустимое напряжение прикосновения :
.
Подставляя значения Uc и Rc получаем:
, (53)
Из (7.6) видно, что чем больше
, тем большее напряжение прикосновения можно допустить. Приняв некоторую среднюю величину
, можно рекомендовать для расчетов приведённые ниже допустимые напряжения:
Длительность воздействия, сдо 0.1 0.2 0.5 0.71.01.3
Наиболее допустимое напряжение
прикосновения, В 50040020013010065
За расчетную длительность воздействия
принято:
,
где tр,з – время действия релейной защиты;
tотк,в – полное время отключения выключателя.
Заземляющее устройство, выполненное по нормам напряжения прикосновения, должно обеспечить в любое время года ограничение Uпр. до нормированного значения в пределах всей территории подстанции, а напряжение на заземляющем устройстве Uз должно быть не выше 10 кВ. Если Uз > 5-10 кВ, необходимо принять меры по предотвращению выноса высокого потенциала за пределы электроустановки.
Заземляющее устройство для установок 110 кВ и выше выполняется из вертикальных заземлителей, соединительных полос, полос, проложенных вдоль рядов оборудования, и выравнивающих полос, проложенных в поперечном направлении и создающих заземляющую сетку с переменным шагом. Расстояние между полосами должно быть не более 30 м.
Рисунок 25 - заземляющее устройство подстанции;
Расчет производится в следующем порядке :
-
Зная наибольшее допустимое напряжение прикосновения, определяем напряжение на заземлителе по формуле:
(54)
где kп – коэффициент напряжения прикосновения; для сложных заземлителей он определяется по формуле
, (5
5)
где lв – длина вертикального заземлителя, м;
Lг – длина горизонтальных заземлителей, м;
а – расстояние между вертикальными заземлителями, м;
S – площадь заземляющего устройства, м2;
М – параметр, зависящий от удельного сопротивления грунта;
- коэффициент, определяемый по сопротивлению тела человека Rч и сопротивлению растекания тока от ступней Rс:
.(56)
В расчетах принимают Rч=1000 Ом; Rc=1.5в,с.
-
Так как Uз = Iз Rз, то сопротивление заземляющего устройства должно быть, Ом:
, (57)
где Iз – ток, стекающий с заземлителя проектируемого заземляющего устройства при однофазном КЗ.
Если однофазное КЗ произошло в пределах электроустановки, то
, (58)
где
- ток однофазного КЗ в месте повреждения;
х0 – результирующее индуктивное сопротивление нулевой последовательности до места КЗ;
хт1 – сопротивление нулевой последовательности трансформаторов рассматриваемой электроустановки.
-
Определяют общее сопротивление сложного заземлителя, преобразованного в расчетную модель, Ом:
, (59)
Где
при
; (60)
где
- удельное сопротивление земли, Ом м;
Lв – общая длина вертикальных заземлителей; Lв = lв nв.
Полученное значение Rз должно быть меньше Rз,доп.
Если сопротивление превышает требуемые значения, то необходимо увеличение площади S, длины Lг , числа вертикальных заземлителей nв и их длины. Всё это приводит к дополнительным расходам и на подстанциях трудно осуществимо. Эффективной мерой уменьшения опасности прикосновения является подсыпка гравия или щебня слоем 0.1-0.2 м у рабочих мест. Удельное сопротивление верхнего слоя при этом резко возрастает (5000-10000 Ом м), что снижает ток, проходящий через человека, так как сопротивление растекания тока со ступней Rc. В расчёте соответственно уменьшается коэффициент и увеличивается допустимое сопротивление заземляющего устройства.
Расчёт заземляющего устройства. Расчёт будем производить с учётом существующего заземляющего устройства. Заземляющее устройство выполняем в виде сетки из полосы
мм.
Исходные данные для расчета : удельное сопротивление земли =300 Ом м; глубина заложения горизонтальных полос t=0,7м; общая длина горизонтальных полос Lг=2150 м; длина вертикальных заземлителей lв = 3,5м с диаметром d=16мм; количество вертикальных заземлителей nв=60; время действия релейной защиты tр,з = 0,12 с; полное время отключения выключателя tотк,в = 0,05 с; естественных заземлителей нет.
Рисунок 26
а) заземляющее устройство подстанции;
б) расчетная модель.
Площадь заземляющего устройства равна :
м2.
Для = 0,12 + 0,05 = 0,17с находим Uпр,доп = 400 В.
Коэффициент прикосновения по формуле:
=
;
здесь М = 0,5 [2];
Потенциал на заземлителе по:
=
В,
что в пределах допустимого (меньше 10 кВ).
Сопротивление заземляющего устройства по:
Ом,
здесь Iз – однофазное КЗ по формуле:
А
где
- ток однофазного КЗ;
х0 – результирующее сопротивление нулевой последовательности до места КЗ, Ом, х0* =5,01 о.е., в именованных единицах:
Ом;
хт1 – сопротивление нулевой последовательности трансформатора, Ом, хт1*=16.66 о.е. , в именованных единицах :
Ом.
Длина сторон ячейки:
B=5 м.
Длина полос в расчётной модели:
м.
Общая длина вертикальных:
Lв = lв·nв = 3,5·60 = 210 м.
Относительная глубина:
,
тогда по (7.13)
.
Общее сопротивление сложного заземлителя
Ом,
что меньше допустимого Rз,доп = 2.89 Ом.
Найдем напряжение прикосновения:
В,
что меньше допустимого значения 400 В.
Определим наибольший допустимый ток, стекающий с заземлителей подстанции при однофазном КЗ:
А.
Вывод. Из расчёта видно, что заземлители с сопротивлением 1,69 Ом не превышают допустимого значения. Напряжение прикосновения удовлетворяет условию безопасности.
7.3 Средства индивидуальной защиты
Средства индивидуальной защиты предназначены для защиты людей, работающих в электроустановках от поражения электрическим током, от воздействия электрической дуги, электромагнитного поля. К средствам относятся: очки, каски, диэлектрические перчатки, боты, калоши, индивидуальные экранирующие комплекты.
Правила применений и испытаний средств защиты, используемых в электроустановках, подразделяют электрозащитные средства на группы;
1) шланги, изолирующие, клещи изолирующие, указатели напряжения;
-
диэлектрические перчатки, боты, калоши, коврики, изолирующие подставки, изолирующие накладки;
-
экранирующий костюм;
-
переносные заземления.
Изолирующие штанги, в зависимости от их назначения, подразделяются на: оперативные, ремонтные и измерительные.
Для установления наличия или отсутствия напряжения на токоведущих частях используют указатели напряжения типа УВН-10, УВН-90.
В качестве основного средства защиты в установках до 1000 В применяют диэлектрические перчатки, они служат средством защиты от прикосновения при операциях с ручными приводами и т.п. При работе в распределительном устройстве во время операций, выполняемых штангой, при проверке наличия или отсутствия напряжения применяют диэлектрические боты.
Для защиты оперативно-ремонтного персонала от воздействия электромагнитных полей распределительного устройства 110 кВ служат экранирующие костюмы. В процессе эксплуатации изолирующие средства защиты периодически осматривают и испытывают повышенными напряжениями в сроки, предусмотренные правилами.
Согласно инструкции по применению и испытанию средств защиты, используемых в электроустановках, для бригады эксплуатационного обслуживания подстанции, нормы комплектования средствами защиты следующие:
-
изолирующие штанги (оперативные и измерительные) - 2 шт.;
-
указатель напряжения выше 1000 В- 4 шт.;
-
указатель напряжения до 1000 В - 2 шт.;
-
переносные заземления на 110 кВ - 2 шт.;
-
переносные заземления на 35 кВ - 2 шт.;
-
указатель напряжения для проверки совпадения фаз - 2 шт.;
-
диэлектрические перчатки - 4 пары;
-
диэлектрические боты - 1 пара;
-
предохранительные монтерские пояса и страховочные канаты - 2 шт.;
-
защитные очки - 2 пары;
-
защитный щиток для электросварщика - 2 шт.;
-
изолированный инструмент - 2 комплекта;
-
диэлектрические ковры и изолирующие накладки - 2 шт.;
-
плакаты и знаки безопасности;
-
защитные каски для каждого члена бригады.
7.4 Контроль изоляции
В сетях переменного тока выше 1 кВ с изолированной нейтралью, как правило, должен выполнятся автоматический контроль изоляции, действующей на сигнал при снижении изоляции одной из фаз ниже заданного значения, с последующем контролем асимметрии напряжения при помощи показывающего прибора.
Допускается осуществлять контроль изоляции путем периодических измерений напряжения с целью визуального контроля асимметрии напряжения.
Принцип действия контроля изоляции кабельных линий, сети переменного тока, основан на измерении напряжения нулевой последовательности, возникающего при коротком замыкании одной из фаз на землю.
Для контроля изоляции линий, отходящих от распределительного устройства, используется селективная сигнализация от замыканий на землю с действием на сигнал.
В электрической сети при однофазном замыкании на землю через перемежающую дугу происходят феррорезонансные процессы, которые приводят к повреждению трансформаторов напряжения.
Применяется антирезонансный трансформатор. Схема соединения представлена на рисунке 14.















