125244 (593076), страница 5
Текст из файла (страница 5)
V – оббьем воздуха необходимый на 1 человека
ρ – плотность воздуха
c – теплоёмкость воздуха
Qраб – количество теплоты выделяемое рабочими в камере
(2.4)
Qобщ – количество тепла поступающее в камеру
(2.5)
Проведен анализ нескольких видов теплоизоляции и построен график зависимости теплопритоков в зависимости от толщины теплоизоляции рисунок 2.2
2.2 Расчет оборудования камеры хранения c оребренными батареями
Схема расположения оборудования приведена на рисунке 2.3
L – Длина потолочной батареи определяют по формуле
(2.6)
где lcг – длинна головной секции (lcг=2,75 м)
lсх – длинна хвостовой секции (lсх=2,75 м)
lсс – длинна средней секции (lсс= 4,5 м)
n – число средних секций
F – теплопередающая площадь поверхности потолочной батареи
2.7)
Теплопередающая площадь поверхности секции зависит от длинны секции, шага оребрения и количества труб в секции. Потолочные батареи собираются из шеститрубных секций.
fc – теплопередающая поверхность головной секции (fc=17,5 м2 )
fcx – теплопередающая поверхность хвостовой секции (fcx =17,5 м2)
fcc - теплопередающая поверхность средней секции (fc=27 м2 )
Fs – суммарная теплопередающая площадь поверхности четырёх потолочных батарей.
(2.8)
Q – количество теплоты отводимое потолочными батареями
(2.9)
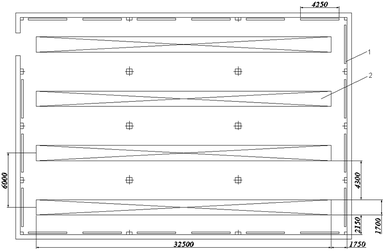
1– пристенная батарея,
2 – потолочная батарея
Рисунок 2.3 Размещение батарей в камере хранения
κ – коэффициенты теплопередачи потолочной батареи (κ=3,8 Вт/(м2 ∙К))
∆t – разница между температурами воздуха в камере и кипящего хладагента (∆t=10 Со)
Qg – тепловая нагрузка пристенных батарей
(2.10)
Fp – теплопередающая поверхность пристенных батарей
(2.11)
np – необходимое число секций
(2.12)
fcz – площадь поверхности одной секции
Fp1 - теплопередающая поверхность пристенных батарей
(2.13)
n1 – количество пристенных секций из формулы 1.12 округляем
Fb - общая теплопередающая поверхность пристенных и потолочных батарей
(2.14)
an – оснащенность камеры охлаждающими приборами
(2.15)
Gm(x) – абсолютный расход металла, идущий на оборудование охлаждающих приборов камеры находим по формуле 1.16
(2.16)
gcx – масса хвостовой секции потолочной батареи (gcx = 105,6 кг)
gcg – масса головной секции потолочной батареи (gcg = 105,6 кг)
gcc – масса средней секции потолочной батареи (gcc = 162 кг)
g – масса секции пристенной батареи (g = 162 кг)
gm – удельный расход металла, отнесённый к 1 м2 строительной площади камеры
(2.17)
Sплощадь – площадь поверхности пола камеры
Ltp – длинна труб потолочных батарей
(2.18)
m – количество параллельных труб в потолочной батареи
npb – количество потолочных батарей
Ltpr – длинна труб пристенных батарей
(2.19)
Lo – суммарная длинна труб батареи секций
(2.20)
V – оббьем жидкого аммиака в охлаждающих приборах находиться по формуле 1.21
(2.21)
ν – ёмкость отрезка 1 м трубы
κ – коэффициент заполнения труб батареи жидким аммиаком
Gam – масса жидкого аммиака
(2.22)
где ρam – плотность жидкого аммиака при to= – 30o C и ра= 675 кг/м3
2.3 Расчет оборудования для камеры с подвесными воздухоохладителями
Схема камеры с подвесными воздухоохладителями приведена на рисунке 2.4
Fbo – площадь поверхности воздухоохладителей находиться из зависимости и равняется
(2.23)
где κ1 – коэффициент теплопередачи и равняется κ1 = 12 Вт/(м2∙К)
nbo – число воздухоохладителей в камере
(2.24)
fbo – площадь поверхности принятого типа воздухоохладителя ВОП – 100 и равняется fbo=100 м2.
n21 – дополнительные воздухоохладителей для компенсации теплопритоковот работы электродвигателей вентиляторов
(2.25)
Qbo – количество теплоты отводимое этими аппаратами
(2.26)
Qd – действительный теплоприток в камеру
(2.27)
n двигателей – число двигателей вентиляторов в одном воздухоохладителе
N – установленная мощность одного двигателя
a1n – Оснащенность камеры охлаждающими приборами
Рисунок 2.4 Размещение подвесных воздухоохладителей в камере хранения
(2.28)
G1m – абсолютный расход металла, идущий на оборудование охлаждающих приборов камеры
(2.29)
где gbo – масса одного воздухоохладителя gbo = 828 кг
g1m – удельный расход металла
(2.30)
V1 – оббьем жидкого аммиака в воздухоохладителях определяем из уравнения
(2.31)
νbo – вместимость одного воздухоохладителя νbo = 0,03 м3
κbo – коэффициент заполнения жидким аммиаком κbo = 0,5
Gam1 – масса жидкого аммиака в охлаждающих приборах
(2.32)
S – удельная установочная мощность электродвигателей вентиляторов
(2.33)
V0 – количество подаваемого в камеру воздуха находят из выражения
(2.34)
ν ν – расход одного вентилятора м3 /с
V11 – кратность циркуляции ч-1
(2.35)
2.4 Экономический затраты на строительство камеры хранения
Для строительства камеры хранения нужно просчитать ее стоимость. Которую будут составлять расходы на строительство самой холодильной камеры, холодильного оборудования.
Строительство холодильной камеры включает в себя расходы на материал (теплоизоляцию), двери для холодильной камеры, ленточные ПВХ завесы для уменьшения теплопритоков в камеру, на работу монтажной бригады.
Холодильное оборудование – стоимость теплообменников которые используются в холодильной камере, жидкого хладагента, на работу монтажной бригады.
S – расходы на строительство.
(2.36)
Где Sмат – стоимость теплоизоляции
Sдве – стоимость холодильной двери
S1мон – зарплата рабочей бригады
Sобр – стоимость оборудования для холодильной камеры
Sхла – стоимость жидкого хладагента
S2мон –зарплата рабочей бригады на установку холодильного оборудования
S =44730+6000+4000+378600+ 618+65000 =498948 ~ 500000 гривень
ЗАКЛЮЧЕНИЕ
В проведенной дипломной работе было проанализировано холодильную камеру, точнее влияние качества теплоизоляции на два вида холодильного оборудования. Для того, чтобы определить оптимальные показатели для использования одного или другого вида воздухоохладителя.
При выборе теплоизоляции рассчитали теплопритоки в камеру в зависимости от толщины теплоизоляции представлены на рисунке 2.2.
По типовому расчету холодильного оборудования, проведен расчет двух видов испарителей: змеевикового и подвесного воздухоохладителя, для охлаждения воздуха в холодильной камере. Чтобы определить какой из представленных воздухоохладителей, целесообразней использовать в камере при определенной толщине теплоизоляции.
Поэтому произведен расчет и построен график зависимости на расход материала, для изготовления испарителей в данную холодильную камеру. График приведен на рисунке 3.1.
Из этого графика видно, что до толщины теплоизоляции 190 мм целесообразнее применять подвесные воздухоохладители, а свыше 190 мм выгодней использовать змеевиковые. Так как на них будут идти меньшие материальные затраты.
Рисунок 3.1 График зависимости расхода металла на изготовления испарителя
Gm(x,12) – подвесных воздухоохладителей
G1m(x,3.8) – змеевиковых воздухоохладителей
Построен график зависимости массы жидкого хладагента, находящегося в охлаждающих приборах камеры от толщины теплоизоляции и представленный на рисунке 3.2
По графику жидкого хладагента видно что подвесной в отличии от змеевикового требует меньшего количества хладагента. Но так как хладагент в отличии от оборудования дешевле, то он играет не очень существенную роль в материальных затратах.
Для того, чтобы быть полностью уверенным при выборе воздухоохладителя для камеры построен график себе стоимости показанный на рисунке 3.3 .
Рисунок 3.2 График зависимости массы жидкого хладагента от толщины теплоизоляции
Рисунок 3.3 График себе стоимости
СПИСОК ИСТОЧНИКОВ ИНФОРМАЦИИ
-
http://www.frostland.com.ua/pages/refrigirating-chambers/
-
М.М. Голянд - Сборник примеров и лабораторных работ по курсу холодильное технологическое оборудование, Москва: Легкая и пищевая промышленность, 1981г
-
Е.М. Костенко - Устройство, ремонт и обслуживание холодильного оборудования, Киев: Основа, 2004
-
http://www.vsv-group.com.ua/sendvich.htm
-
http://www.xiron.ru/content/view/19315/28/
















