124042 (592890), страница 20
Текст из файла (страница 20)
Рекомендуется заменить рабочий стул. Конструкция рабочего стула должна обеспечивать поддержание рациональной рабочей позы при работе с ВДТ и ПЭВМ, позволять изменять позу с целью снижения статического напряжения мышц шейно-плечевой области и спины для предупреждения развития утомления и нарушения осанки. Рабочий стул должен быть подъемно-поворотным и регулируемым по высоте и углам наклона сиденья и спинки, а также расстояния спинки от переднего края сиденья, с легкой и надежной фиксацией всех положений [19].
Наиболее удобным считают сиденье, имеющее выемку, соответствующую форме бедер. Спинка стула должна быть изогнутой формы, обнимающей поясницу. Длина ее 0,3 м, ширина 0,11 м, радиус изгиба 0,3 – 0,35 м. Движения работника должны быть такими, чтобы группы мышц его были нагружены равномерно, а лишние непроизводственные движения устранены.
Уровень шума в помещениях с персональными компьютерами не должны превышать допустимого, регламентированного в ГОСТ 12.2.003-83 «Шум. Общие требования безопасности». Уровень шума не должен превышать 50 дБА. В качестве мер по снижению шума можно предложить следующее:
-
облицовка потолка и стен звукопоглощающим материалом (снижает шум на 6-8 дБ);
-
экранирование рабочего места (постановкой перегородок, диафрагм);
-
установка в компьютерных помещениях оборудования, производящего минимальный шум (установка современных низкошумных кулеров, регулярная раз в месяц – чистка кулеров).
К общим мерам защиты от статического электричества можно отнести общее или местное увлажнение воздуха.
Повышенная температура внешней среды не создаёт нарушения состояния здоровья работающего, но вызывает дискомфортные ощущения, ухудшает самочувствие и понижает работоспособность.
В кабинете не предусмотрена система кондиционирования в теплое время года. Рекомендуется установить кондиционер для охлаждения воздуха до оптимальной температуры (23-25 оС).
Расчет кондиционирования воздуха.
Для выбора кондиционера надо рассчитать суммарные избытки тепла, в которые входят также выделяемое тепло от солнечной радиации, освещения, людей, оргтехники и так далее. Подбирают такие модели кондиционеров, которые в сумме по холодопроизводительности дают такое же или несколько большее значение.
Теплоизбытки Q1 помещения в зависимости от объема, рассчитываются по формуле:
Q1 = S х h х q, Вт, (4.1)
где S - площадь помещения, м2;
h - высота помещения, м;
q - коэффициент, равный 30 Вт, если нет солнца в помещении; 35 Вт, если среднее значение и 40 Вт, если большое остекление с солнечной стороны.
Посчитаем теплоизбытки по формуле (4.1) и получаем Q1 равные 3238,725 Вт.
Подсчитываем избыточное тепло Q2 от находящейся в помещении оргтехники. В среднем берется 300 Вт на 1 компьютер, или примерно 30 % от потребляемой мощности оборудования и получаем Q2 равные 900 Вт.
Избыточное тепло Q3 от людей, находящихся в помещении. Примем 1 человек - 100 Вт (для офисных помещений) и получаем Q3 равные 300 Вт.
Суммарный избыток тепла, рассчитаем по формуле:
Qобщ. = Q1 + Q2 + Q3. (4.2)
Получаем суммарный избыток тепла Qобщ. равный 4,4 кВт (формула (4.2)).
Подбираем близкую по мощности модель кондиционера из стандартного ряда – на 5,0 кВт (большинство производителей выпускает кондиционеры с мощностями, близкими к стандартному ряду: 2,0; 2,5; 3,5; 5,0; 7,0 кВт). Наиболее подходит кондиционер Daikin, FTY5 имеет мощность 5,0 кВт. Параметры:
-
режим повышенной мощности. Лицевая панель легко снимается и моется. 24-часовой таймер. К одному наружному блоку типа "мульти" может быть подключено до 5 внутренних. Система самодиагностики;
-
пульт дистанционного управления: есть;
-
потребляемая мощность (охлаждение / обогрев), Вт: 1440/1500;
-
дополнительные режимы: автоматический режим;
-
внутреннего блока сплит-системы или мобильного кондиционера (В х Ш х Г), мм: 250x750x180;
-
другие функции и особенности: дезодорирующий фильтр;
-
тип: сплит-система;
-
мощность в режиме обогрева, Вт: 5600;
-
основные режимы: охлаждение / обогрев;
-
мощность в режиме охлаждения, Вт: 5000;
-
установка внутреннего блока: настенная;
-
таймер включения/выключения: есть.
4.3 Меры пожарной безопасности
Пожарная безопасность – это состояние защищенности людей, имущества, собственности, общества и государства от пожаров. Лица виновные в нарушении требований правил противопожарной безопасности, несут уголовную, административную или иную ответственность в соответствии с действующим законодательством [20]. Пожары представляют особую опасность, так как сопряжены с большими материальными потерями, а возможно и с гибелью людей.
Возникновение пожара возможно, если на объекте имеются горючие вещества, окислитель и источники зажигания. Для оценки пожарной опасности проанализирована вероятность взаимодействия этих трех факторов, а также их угроза для жизни людей и возможный размер материального ущерба от пожара.
Горючий компонент в рассматриваемом помещении: оконные рамы, двери, полы, изоляция силовых, а также радиотехнические детали и изоляция соединительных кабелей, жидкости для очистки элементов и узлов ПЭВМ от загрязнения.
Источниками зажигания могут оказаться электрические искры, дуги и перегретые участки элементов и конструкций ПЭВМ. Источники зажигания возникают в электрических и электронных приборах, устройствах, применяемых для технического обслуживания элементов ПЭВМ.
Отсутствие системы АПС, предназначенной для обнаружения пожаров в их начальной стадии, и системы оповещения о времени и месте возникновения пожара возлагает эти обязанности на работников.
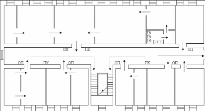
Должны быть разработаны и вывешены на видном месте план эвакуации людей (рисунок 4.2) в случае пожара, а также табель боевого расчета действия на случай возникновения пожара. Работники должны соблюдать правила пожарной безопасности.
-
Существует пять категорий производств по взрывопожарной опасности, рабочее место диспетчера относится к категории В – твердые горючие материалы и вещества (помещения, где есть компьютеры, стулья, столы, дверь, шкафы).
Учитывая высокую стоимость оборудования, а также категорию пожароопасности, здание, в котором предусмотрено размещение ЭВМ, имеет II степень огнестойкости.
На предприятии, где находится рабочее место диспетчера, предусмотрены следующие меры пожарной безопасности:
-
проводится инструктаж персонала;
-
размещены на видных местах таблички с указанием номера телефона вызова пожарной охраны;
-
размещены планы эвакуации людей;
-
в здании на каждом этаже размещены специальные шкафы с первичными средствами пожаротушения (огнетушители, пожарные рукава и т.д.).
Около оборудования, имеющего повышенную пожарную опасность, следует вывесить стандартные знаки безопасности.
Помещение должно быть обеспечено исправными первичными средствами пожаротушения. Первичные средства пожаротушения предназначены для тушения пожара до прибытия противопожарной команды. К ним относятся огнетушители, вода, песок, кошма. На этаже, где расположен рабочий кабинет диспетчера, имеются пожарный кран и огнетушитель порошковый. Рекомендуется в кабинет установить порошковый огнетушитель (баллонного типа) ОП-5, который предназначен для тушения дерева, ткани, пластмассы, нефтепродуктов, спирта, электрооборудования до 1000 В и газообразных веществ. В качестве пускового болона используется углекислотный огнетушитель, что повышает эффективность пожаротушения. Работоспособность огнетушителя при температуре от -40 до +50 градусов.
Расположение средств пожаротушения показано на рисунке 4.2.
Стационарные наружные пожарные лестницы, стремянки на перекладке здания, ограждения на крыше здания должны содержаться в исправном состоянии и не менее 2-х раз в год проверяться на предмет их пригодности к использованию на пожаре.
При эксплуатации согласно [20] в здании запрещается:
-
устанавливать не открывающие металлические решетки на окна;
-
осуществлять мойку помещений;
-
курить вне специально оборудованных для этой цели местах;
-
проводить работы на оборудовании с неисправностями, могущими привести к пожару;
-
загромождать проходы, коридоры, лестничные площадки;
-
установка замков, вместо легко открываемых запоров, на дверях на пути эвакуации людей.
ОП – огнетушитель порошковой, ПК – пожарный кран
Рисунок 4.2 – План эвакуации
Вывод: при условии соблюдения вышеизложенных мероприятий работа диспетчера будет безопасной.
5. Промышленная экология
Вода единственный источник кислорода, поступающего в атмосферу при фотосинтезе. Вода входит во все клетки и ткани живых организмов. Она является наилучшим растворителем. Вода – единственное в мире минеральное вещество, которое нельзя заменить другими веществами.
В условиях бурного развития промышленности увеличивается расход воды, а вместе с этим и количество жидких отходов – сточных вод, что является основным источником загрязнения водных бассейнов.
Карагандинская область является промышленным центром Республики Казахстан. Поэтому для неё остро стоит проблема охраны окружающей среды, в частности, водного бассейна р. Нуры. РГП «Канал им. К. Сатпаева» имеет пересечение с р. Нурой (образуя общий узел – Д-127 и В/в-126).
Нура является единственной самой крупной рекой Центрального Казахстана. Из всех рек области только Нура почти на всем протяжении круглый год обладает непрерывным течением. Это способствует сохранению в ней пресной воды. Лишь в низовьях к концу лета Нура разбивается на плесы и вода ее осолоняется [13]. Вода реки используется:
-
для питьевых нужд из колодцев или водонапорных башен из аллювиальных горизонтов долины р. Нура;
-
для отдыха и рыболовства;
-
для сельскохозяйственных нужд;
-
для обеспечения водой г. Астана (в перспективе);
-
для питания водой оз. Тенгиз;
-
для промышленных нужд.
Многие годы р. Нура служила сборником для необработанных промышленных отходов. Воды и донные отложения Нуры сильно загрязнены техногенными отходами. На р. Нура расположено много крупных предприятий-загрязнителей.
Сбросы в р. Нура осуществляются с четырех предприятий по четырем В/в:
-
с ОАО "Миталлстил" сброс нормативно чистые воды (НЧВ) по объединенному каналу через пруд-охладитель в Самаркандское водохранилище;
-
НЧВ цеха В-20 Темиртауский химико-металлургический завод (ТХМЗ) в Самаркандское водохранилище;
-
НЧВ «АБС–Энерго», «КарГРЭС–1» в Самаркандское водохранилище;
-
объединенный выпуск очищенных сточных вод с очистных сооружений ОАО "Миталлстил" и ТХМЗ в р. Нура ниже г.Темиртау.
Один раз в год осуществляется сброс НЧВ с Карагандинского прудового хозяйства в р. Нура.
Кроме того, в районе поселка Молодецкое в р. Нура впадает ее крупнейший приток Шурубай-Нура, которая несет в себе воды после очистных сооружений г. Караганды, Шахтинска, Сарани и п. Топар.
К основным техногенным объектам-загрязнителям относятся, кроме вышеперечисленных выпусков сточных вод, полигоны промышленных отходов, которые являются косвенными источниками загрязнения реки через воздушный бассейн и фильтрацией через подземные воды.
Сточные воды "Миталлстил" содержат такие вещества как фенолы, нефтепродукты, смолы, углеводороды, тиоцианиды, цианиды, органические взвеси, железо, медь, цинк, азотосодержащие вещества. Вода приобретает окраску, неприятный фенольный запах и вкус, покрывается пленкой органических веществ. Такие сточные воды снижают содержание в воде кислорода, увеличивают ее окисляемость и снижают биохимическую потребность в кислороде (БПК).
Сточные воды ТХМЗ содержат органику (-метилстирол, ацетальдегид), железо, марганец, раньше содержали ртуть. Под влиянием таких стоков вода изменяет цвет, вкус, запах, прозрачность, на дне водоемов слагаются нерастворимые осадки, повышается БПК.
Загрязнение поверхностных вод р. Нуры и подземных вод в зоне интенсивного техногенного влияния является препятствием для их использования в хозяйственно-питьевом водоснабжении. Для этих целей в данное время используется вода РГП «Канала им. К. Сатпаева» и ряд месторождений подземных вод верхней и частично средней части бассейна р. Нуры.
Для р. Нуры в соответствии с Водным кодексом РК в целях поддержания благоприятного водного режима и предупреждения загрязнения поверхностных водоемов Постановлением кабинета Министров РК № 102 от 22.01.1995г. "Об утверждении положения о водоохранных зонах и полосах" установлены:
-
минимальная ширина водоохранных зон по каждому берегу от уреза среднемноголетнего меженного уровня воды, учитывая сложные условия хозяйственного пользования и напряженную экологическую обстановку на водосборе – 1000 м, при простых условиях – 500 м;
-
минимальная ширина водоохранных полос с учетом формы и типа речных долин от 25 до 100 м.
Контроль за качеством поверхностных вод осуществляется Карагандинским территориальным центром гидрометеорологии на пунктах гидрохимических наблюдений и Карагандинским областным управлением охраны окружающей среды, в основном, в местах сброса сточных вод, а также промышленными предприятиями. Для оценки качества поверхностных вод р. Нура используется ПДК для водных объектов р.х. назначения. Уровень загрязнения организованных промышленных и коммунально-бытовых стоков в р. Нуру после их очистки (механической или биологической) на очистных сооружениях оценивается согласно норм ПДС или ВСС, разработанных для основных предприятий.
Качество исходной воды х.п. назначения определяется организациями владельцами В/з сооружений и контролируется Карагандинской областной СЭС согласно санитарных норм и правил по ПДК для объектов хозяйственно-питьевого водоснабжения.
В верхнем течении реки на качество поверхностных вод, в основном, оказывают влияние сельскохозяйственные и естественно-природные источники загрязнения [14].
В среднем течении р. Нура и ее основных притоков основные источники загрязнения связаны с инфраструктурой Караганда-Темиртауского промышленного района, который включает города: Караганда, Темиртау, Шахтинск, Абай, Сарань, Шахан. Здесь расположены предприятия угольной промышленности (шахты, углеобогатительные фабрики), 7 крупных ТЭЦ и ГРЭС, металлургический комбинат АООТ «Миталлстил», химические предприятия, ПО "Каррезинотехника", предприятия машиностроения, стройиндустрии, очистные сооружения и др. объекты. Зона регионального загрязнения, обусловленная Караганда-Темиртауским промрайоном, по данным картирования объема и химического состава пыли в снежных осадках вытянута с юго-запада на северо-восток более чем на 120 км при ширине от 45 до 100 км. Количество пылевых выпадений изменяется от 50-60 кг/км2 в сутки (фоновые значения) по периферии района до 5000 кг/км2 в сутки и более в эпицентрах промышленных зон городов Караганда и Темиртау. Средняя нагрузка составляет порядка 650-700 кг/км2 в сутки. В пылевых выпадениях на загрязненных участках концентрации свинца, цинка, ртути, бериллия, меди, молибдена, фтора, стронция, селена и др. элементов превышают фоновые значения до 100-300 и более раз. В снежных атмосферных выпадениях находится большое количество воднорастворимых (солевых) выпадений.
















