123238 (592787)
Текст из файла
Введение
Согласно Энергетической стратегии главными районами прироста углеводородного сырья будут Западносибирская, Лено-Тунгусская и Тимано-Печорская нефтегазоносные провинции. Поиск, разведка и освоение нефтяных и газовых месторождений на шельфе арктических, дальневосточных и южных морей являются одним из наиболее перспективных направлений развития сырьевой базы нефтяной и газовой промышленность. Начальные суммарные извлекаемые ресурсы углеводородов морской периферии России составляют, по оценкам, около 100 млрд. т в пересчете на нефть. Основная часть этих ресурсов приходится на шельфы северных морей. С учетом географического распределения прогнозных ресурсов нефти и газа, а также достигнутого уровня геолого-геофизической изученности предполагается ускоренный рост подготовки запасов углеводородов в среднесрочной перспективе в Баренцевом, Карском и Охотском морях, а также в российском секторе Каспийского моря. Поиски новых месторождений нефти и газа должны быть продолжены в нефтегазоносных провинциях со снижающейся добычей нефти Волго-Уральской и Северокавказской. Для достижения намеченной Энергетической стратегией добычи предусматривается ввод новых месторождений на Сахалинском шельфе и шельфах северных морей в Тимано-Печорской и Восточносибирской нефтегазовых провинциях, где имеются значительные запасы нефти, но требуются доразведка и создание инфраструктуры практически с нуля. Перспективная добыча нефти в России будет определяться в основном следующими факторами: уровнем мировых цен на топливо, налоговыми условиями и уровнем применения научно-технических достижений в разведке и разработке месторождений, а также качеством разведанной сырьевой базы.
Основным нефтедобывающим районом России рассматриваемую перспективу останется Западная Сибирь (рис. 4), хотя ее доля в общей добыче нефти к 2020 г. и снизится до 58–55 против 68% в настоящее время. Для удержания российских позиций на европейском нефтяном рынке и обеспечения роста экспорта российской нефти на рынки стран АТР и США энергетическая стратегия предусматривает реализацию нескольких масштабных инфраструктурных проектов, один из которых:
– дальнейшее развитие Балтийской трубопроводной системы (БТС) (рис. 5) с увеличением ее мощности до 60 млн. т нефти в год (соответствующее решение Правительства уже принято);
Рис. 2. Сырьевая база нефтяной промышленности России
Рис. 3. Прогноз прироста запасов и добычи нефти по регионам России
Рис. 4. Динамика добычи нефти по регионам и России в целом
Рис. 5. Развитие Балтийской трубопроводной системы
Реализация этих и других инфраструктурных проектов, в том числе предусмотренных Энергетической стратегией, позволит создать транспортную инфраструктуру, необходимую для обеспечения прогнозного роста добычи нефти.
Система среднего и специального образования в нашей стране почти утвердилась как основная форма подготовки квалифицированных рабочих среднего звена и стала высоким фактором формирования политических и социальных качеств мастеров и бригадиров. На производство приходят работники владеющие компьютерной техникой и высокой культурой. Поэтому современные механизмы призваны подготавливать квалифицированных рабочих, способных к быстрой смене труда в условиях постоянной модернизации производственных процессов, владеющих сложными профессиями и способных трудиться в бригадах и быстро адаптироваться на предприятии. Совершенствование системы среднеспециального образования и ускорения учебно-воспитательного процесса требует перехода на путь интеграции профессии и подготовки квалифицированных кадров по ведущим мировым профессиям, особенно смежных специальностей.
В этих условиях возникает острая проблема, необходимость создания учебно-материальной базы производственного обучения, интенсификация учебного процесса, техническое перевооружение с рациональным использованием всех возможностей для получения необходимых знаний и навыков по иной профессии.
Для этого необходимо обеспечить все учебные кабинеты, мастерские техникума и других учебных заведений наглядными пособиями.
1. Назначение модели
Фонтанирование нефтяной скважины – это процесс движения нефти от её забоя к устью, происходящий под действием пластовой энергии.
Естественное фонтанирование нефтяной скважины возможно лишь при условии, если ее забойное давление больше гидростатического давления, создаваемого на забой весом столба газонефтяной смеси, поднимающейся к устью. Фонтанный способ эксплуатации нефтяных скважин наиболее экономичен и выгоден.
Выбрав темой диплома данный способ эксплуатации и наглядно продемонстрировав макет фонтанной арматуры крестового типа, я закреплю свои знания, а также обеспечу учебный кабинет техникума наглядным пособием.
Модель-макет фонтанной арматуры крестового типа предназначен в качестве наглядного пособия в обучении студентов. Наглядные пособия способствуют повышению качества знаний студентов, помогают преподавателю объяснить конструкцию, принцип действия оборудования и, кроме того, наглядно показать его работу. В результате у студентов улучшается усвоение материала.
Модель позволяет преподавателю объяснить материал, не совершая экскурсии на предприятие. А также позволит сэкономить массу времени на прохождение изучаемого материала.
2. Компоновка модели
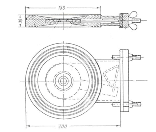
Модель макет фонтанной арматуры крестового типа состоит из трубной головки и фонтанной елки. Вся арматура смонтирована на деревянном основании и хорошо закреплена во избежание падения. На основание сначала крепится трубная головка состоящая из крестовины, кранов и манометра, затем переводная катушка (патрубок с внутренней резьбой) и фонтанная елка которая состоит из крестовины, кранов и манометра.
В мире существуют также и другие арматуры фонтанного типа. Арматура тройникового типа (рис. 7), ее отличие от арматуры крестового типа (рис. 6) в том, что на фонтанной елке отсутствуют крестовины, вместо них используются тройники. А также крестовая арматура по высоте меньше тройниковой; это облегчает ее обслуживание.
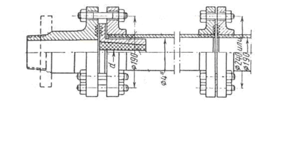
Фонтанную арматуру изготовляют для однорядного и двухрядного подъемников. Фонтанные трубы при оборудовании скважин под однорядный подъемник подвешивают к переводной катушке, ввинчивая их непосредственно в нарезанный нижний конец катушки или при помощи специальной переводной втулки.
Арматура для двухрядного подъемника отличается от описанной лишь тем, что к этой схеме добавляется тройник с задвижкой на боковом отводе, который устанавливают на верхний фланец крестовика. Тогда катушку устанавливают на добавляемый к схеме тройник.
Рис. 6. Фонтанная арматура крестового типа для однорядного подъемника
Рис. 7. Фонтанная арматура тройникового типа для двухрядного подъемника
3. Назначение узлов модели
Фонтанная арматура состоит из трубной головки и фонтанной елки.
Трубная головка предназначена для подвешивания фонтанных труб и герметизации пространства между ними и эксплуатационной колонной. Устройство трубной головки позволяет при помощи обвязки (системы трубопроводов с задвижками) соединять кольцевые пространства между трубами первого и второго рядов и между трубами первого ряда и эксплуатационной колонной с каким-либо оборудованием (насосом, компрессором). Переводная катушка предназначена для подвешивания фонтанных труб.
Фонтанная елка предназначена для контроля и регулирования фонтанной струи, направления ее по тому или иному выкиду и в случае необходимости для закрытия скважины.
В фонтанной арматуре уплотнение между фланцами осуществляется овальным кольцом из мягкой стали.
Для регулирования фонтанной струи и направления ее в выкидные линии служат задвижки или краны, установленные на боковых отводах крестовин или тройников.
На выкиде после задвижки или крана помещают специальную болванку со сквозным отверстием или шайбу называемую штуцером (рис. 8 и 9). С его помощью поддерживают заданный режим работы скважины, заключающийся в рациональном расходовании пластовой энергии, т.е. в установлении путем регулирования струи такого суточного дебита скважины, который обеспечивал бы длительное и бесперебойное фонтанирование с наибольшей добычей нефти за этот период.
Также помимо сменяемых забойных штуцеров, за рубежом широко применяют и другие сменяемые приборы, например предохранительные клапаны. Предохранительный освобождающийся клапан действует мгновенно.
Он приспособлен для установления определенной нормы течения продукции (дебита) скважины; если фонтанная струя по каким-либо причинам увеличится, клапан закроется и фонтанирование по подъемным трубам прекратится.
Наблюдение за работой фонтанных скважин ведется по показаниям двух манометров, установленных на каждой скважине. Верхний манометр предназначен для замера давления на устье скважины, которое называется буферным. По нижнему манометру, устанавливаемому на крестовике трубной головки, определяется затрубное давление.
Рис. 8. Штуцер сураханского типа для скважин, дающих нефть с песком
Рис. 9. Быстросменный штуцер для скважин, не имеющих в нефти песка
4. Техпроцесс изготовления модели
Для изготовления модели мне понадобилось: краны, мет. переходники с резьбой с обеих сторон, спилы, гвозди, гайки, манометры, кусок деревянной доски под основание, сварка, краска синяя и красная (0,5 л).
1. изготовление основания для устойчивости и фиксации арматуры в целом.
2. изготовление крестовин при помощи сварки.
3. покраска всех деталей модели.
4. сборка.
5. Классификация фонтанной арматуры
Фонтанные арматуры классифицируются по конструктивным и прочностным признакам:
1. по рабочему давлению.
Тройниковая и крестовая фонтанные арматуры выпускаются на рабочее давление 7, 14, 21, 35, 70, 100 МПа. В зависимости от ожидаемого давления при эксплуатации на устье скважины устанавливают фонтанную арматуру, рассчитанную на данное рабочее давление.
2. по схеме исполнения.
Рис. 10. Типовые схемы фонтанных арматур
3. по числу спускаемых в скважину рядов труб.
Диаметр и длину колонны подъемных труб устанавливают для каждого пласта опытным путем, исходя из ожидаемого дебита, пластового давления, глубины скважины и условий эксплуатации. Условные диаметры подъемных труб от 33 до 114 мм.
Различают однорядные и двухрядные подъемники. Применение двух рядов труб в фонтанных скважинах позволяет более рационально использовать энергию расширяющегося газа и предотвращать образование песчаных пробок на забое.
Обычно в фонтанные скважины спускают одноразмерную колонну, чаще из труб диаметром 73 мм или же ступенчатую колонну из комбинации труб диаметром (в мм): 114 и 89; 114 и 73; 114,89 и 73; 102,89 и 73; 89 и 73 и др.
4. по конструкции запорных устройств.
К запорным устройствам относятся пробковые краны (рис. 12) или прямоточные, клиновые задвижки (рис. 11). Минус клиновых задвижек в их недостаточной герметичности.
Особенности прямоточной задвижки в том, что при движении потока через нее нефть и газ не соприкасаются с уплотняющими поверхностями, благодаря чему достигается крайне незначительный их износ.
По сравнению с клиновой задвижкой проходной пробковый кран обладает большей коррозионной стойкостью, имеет меньший габаритный размер и меньшую массу.
5. по размеру проходного сечения ствола арматуры и боковых отводов.
Диаметры проходных сечений от 50–150 мм. Диаметры боковых отводов от 50–100 мм.
Характеристики
Тип файла документ
Документы такого типа открываются такими программами, как Microsoft Office Word на компьютерах Windows, Apple Pages на компьютерах Mac, Open Office - бесплатная альтернатива на различных платформах, в том числе Linux. Наиболее простым и современным решением будут Google документы, так как открываются онлайн без скачивания прямо в браузере на любой платформе. Существуют российские качественные аналоги, например от Яндекса.
Будьте внимательны на мобильных устройствах, так как там используются упрощённый функционал даже в официальном приложении от Microsoft, поэтому для просмотра скачивайте PDF-версию. А если нужно редактировать файл, то используйте оригинальный файл.
Файлы такого типа обычно разбиты на страницы, а текст может быть форматированным (жирный, курсив, выбор шрифта, таблицы и т.п.), а также в него можно добавлять изображения. Формат идеально подходит для рефератов, докладов и РПЗ курсовых проектов, которые необходимо распечатать. Кстати перед печатью также сохраняйте файл в PDF, так как принтер может начудить со шрифтами.















